
Roopa Flexi Manual, 30-65XXX-6
User Manual
Mounting Instructions

![]()
User Manual Mounting Instructions Keep this folder with product at all times!
PDF 6021 / Rev 005
PA 2004 00634
Introduction
You have chosen Flexi, the multi-flexible, height-adjustable, easy-to-mount frame. The frame may be used separately or in combination with Diagonal, Verti or Verti-Inside, the adjustable system for wall cupboards.
The frame has no inconvenient fascia and, consequently, the adjustment of the working height from 65 to 95 cm + worktop thickness may be fully utilised.
Under the worktop there is sufficient room for knees and legs for wheelchair users, who obtain freedom of movement and a perfect working posture.
Flexi is available as a manually or electrically operated frame. The electrical version may be retrofitted in a few minutes.
If you choose the electrical version you obtain a quick and easy adjustment of the frame by activating the control buttons.
The correct use, operation and inspection are decisive factors for efficient and safe performance.
This document must ALWAYS be kept with the product and have been read and understood by the user.
Conformity with EU Directive and UK Directive
This product has CE marking and is thus in accordance with the basic requirements concerning functionality and safety of the current EU Directive.
This product has UKCA-marking and thus complies with the basic safety requirements.
Application
The Flexi frame is adjustable in height in order to obtain optimum working height for user and helper. Do NOT use Flexi as a lifting table or person lifter.
The product should be used indoor, at temperatures and humidity as described in section 3
Technical data Flexi
| Product name: | Ropox FlexiManual Length of worktop = 60-204 cm (supported by two legs) Length of worktop = 205-300 cm (supported by three legs) |
| Item numbers: | Manual 30-65XXX: XXX = Length of worktop The frame is always 5 cm shorter than the worktop |
| Height adjustment: | 65–95 cm manual without worktop |
| Material: | Welded steel tubes St. 37 Aluminium alloy 606045-T6 Stainless steel spindle and various plastic components |
| Surface treatment: | Chromite, Powder coating, Standard RAL 9010, mat white |
| Max. load of frame: | 150 kg evenly distributed over the entire worktop |
| Temperature: | 5-45°C |
| Air humidity: | 5-85% (non-condensing) |
| Complaints: | See complaints, page 27 |
| Manufacturer: | Ropox A/S, DK-4700 Naestved, Tel.: +45 55 75 05 00 |
Installation information
Minimum area for reinforcement of wall. Wall material must be suitable for screw mounting.
Area for electric and plumbing installations.
Max. load 150kg evenly distributed over the worktop up to 300cm in width, according to DS/EN 12182.
Minimum load capacity per screw/bolt: 40 kg
Support arms must always sit above the leg and with a mutual distance of maximum 60cm.
Exceptionally when sink, hob or other items are installed in the worktop.
The fitter should always consider the material, condition and strength of the wall and use screws and rawlplugs suitable for the specific wall type.

It is advisable to place water supply and waste within the hatched area. Also it is important to use flexible hoses for water supply and waste to ensure that the Flexi will move freely without obstacles within the height adjustment range 65-95 cm. excl. worktop. It is advisable to place the water supply and waste close to the sink. The drain may also be installed in the floor.
Arrange for the fixed feed pipes on the wall to be pointing down, at a height of max. 40 cm. This will ensure that the flexible feed pipes will always flex in a neat curve close to the wall without kinking. A 90 degree valve with a 1/2″ exposed thread is recommended.
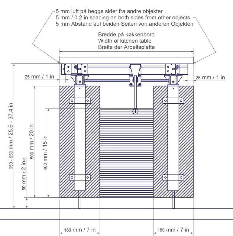
For worktops with cut-outs the distance from either side of the worktop should be considered as shown on the illustration.

Always keep 0,5 cm space all away around the worktop
Mounting instructions
The equipment should always be assembled by competent personnel.
Prior to assembly check that all parts have been provided. See list of components, from page 21. If supporting feet have been ordered, follow assembly of these under paragraph for mounting of accessories first.
Assembly of frame
- Place the aluminium profile on the floor.

- Insert the transmission with fasteners into the groove of the aluminium profile and pass the spindle through the transmission (do not secure).

- Fit a stop ring on the spindle on either side of the transmission (do not secure.)

- Push the legs into the groove of the lower side of the aluminum profile, one leg from either side.

- Position the adjustable legs on the aluminum profile. If there are any socket outlets obstructing the legs, move the leg a little towards the middle. For frames with two legs, place one leg on either side. For frames with three legs, place the third leg at the middle of the aluminum profile. Secure each leg to the aluminums profile with two bolts.
Note: If the sink or hotplate is placed at the middle of the worktop, move the third leg if any, to the right or left to ensure that the leg and support arm are fitted in the immediate vicinity of the sink, hotplate etc.
Mounting the support arms on the frame
Note: Prior to mounting of the support arms it is important to know the location of the sink and hotplate in relation to the support arms and the handle rod.
Where you have an adjustable leg always position a support arm directly over it. Do not adjust the tilting of the arm supports that are positioned on top of the legs (see 6.8).
Position the transmission box for the winding handle spindle at the required position before mounting the support arms from either side.
- The support arms may be pushed into the aluminum profile from either side to the required position and fastened with two screws on each support.
We recommend a maximum distance between the support arms of 60 cm in order to obtain optimum stability.
- To prevent the spindle from working its way out of the frame during use, push the two stop rings and spacers of the spindle towards each leg and fasten.

Mounting the frame on the wall
- Place the frame against the wall and align it. Adjust the two threaded bolts under the legs to ensure that the frame is horizontal.

- To obtain the correct height (65-95 cm without worktop) adjust the threaded bolt to each leg. After mounting, the threaded bolts can be removed.
Mark and drill the holes for fastening. Fasten the frame to the wall by means of screws and raw plugs suiting the material of the wall.
- Misalignments up to 0,45 cm on the wall may be adjusted by fitting the provided spacers (0,15 cm) between the legs and the wall. Loosen the legs a bit and slide the spacers in between the wall and the legs, as required, at the top or bottom depending on whether the wall is vertical.

Mounting of fittings for front fascia
- Fittings for mounting of the wooden front fascia are provided, corresponding to the number of support arms. Place the front fascia fittings on the side of the support arm and fasten them loosely by means of the screw provided.

- On the outermost support arms we recommend pointing the front fascia fittings towards the middle of the frame to prevent them from conflicting with the side fascia.

Mounting the worktop
- Place the tabletop on the frame. The maximum permissible distance from the back of the tabletop to the wall is 0.5 cm. (safety issue)
If the frame is moved away from the wall, the distance from the back of tabletop to the wall MUST still be equal to or less than 0.5 cm.
- The standard aluminum profile is 5 cm shorter than the worktop, resulting in a 2.5 cm projection on either side.

- Fasten the worktop with screws through the holes of the support arms.

Adjusting the worktop/ support arms
- After placing the worktop on the frame you may have to compensate for the weight of the worktop if the frame is no longer horizontal from the wall to the front fascia.

- By means of the two lower screws of each support arm the “tilting” may be adjusted. Start by loosening the two screws fastening the support arm to the aluminium profile and adjust the two lower screws to make the worktop horizontal. Finally retighten the two upper screws. Repeat this procedure for the support arms in the middle.

Do not adjust the support arms placed directly above the legs.
Mounting the wooden front fascia
- Fasten the wooden front fascia at the required position under the worktop by means of a clamp. Press the front fascia fittings forward against the wooden front fascia and fasten with screws from the inside.

- By screwing the front fascia fittings into the worktop you pull the front fascia upward. Finally tighten the screws on the side of the support arm.

Mounting the side fascia
- Furniture fittings are provided with the frame to keep the wooden side fascia up against the worktop.

Mounting the handle
- When the worktop and front fascia are in place the transmission spindle may be mounted.
First drill a 20 mm dia. hole in the wooden front fascia where you want the handle.
Place the chrome bush for the handle rod in this hole.
- Insert the assembled spindle into the transmission.

- Loosen one of the M4-screws of the stop ring and pull the transmission spindle out to the required position in relation to the front fascia. Retighten the screw.

- Pull the spindle suspension fitting forward so that it may be fitted under the worktop and fasten it with screws.
Push the ”small” stop ring forward against the fitting and tighten the M4-screw.
- Finally fit the handle.
When the frame has been assembled, tighten all screws securely.
Mounting of distance plates
- In case of skirting boards, you can use the 1 cm deep distance plate to pack the frame out from the wall.

Mounting of covers
- Place the 2 endcaps on standard cover and push over outer leg.

It is very important that screws fastening the legs and support arms to the aluminum profile are tightened securely.
Mounting of accessories
Mounting the supporting feet
- Remove the adjusting screw of the leg.

- Fit the foot and the extension to the leg with the screws provided and tighten the screws.

Mounting the covers for the legs
- Press the covers, consisting of an inside and an outside cover, carefully over the leg.

- Lift up the upper/outside cover and press the snap lock into the hole of the leg. It is important to pull the snap lock completely out prior to mounting. Now press in the snap lock to lock it.

Convertion from manual to electric
- Cut the spindle into two parts. Loosen the stop rings on each side of the spindles. Then push the spindles away from each other.

- Remove the bolts for fastening the transmission, and remove the transmission from the spindle.

- For worktop length 60-104 cm one motor is mounted. For mounting of motors return to 7.3.7 Together with the mounting bracket there is a nut, which fits into the grove at the bottom edge of the aluminum profile. When you start tightening the bolt, the nut will turn and interlock in the groove.

- For worktop length 105-300 cm two motors are mounted. For mounting of motors return to 6.3.7 Together with the mounting bracket there is a nut, which fits into the grove at the bottom edge of the aluminum profile. When you start tightening the bolt, the nut will turn and interlock in the groove.

- Slide the connecting bush onto the spindle, and push the two spindle parts together inside the connection. Fasten the four bolts.


- Place the motors at the illustrated distance from either end of the aluminium profile and fasten them.

Mounting the control unit
- The 2 special nuts on the control box plate are turned vertically, making them fit into the long track in the alu profile. The plate is positioned on the front of the alu profile and the 2 M6 screws are tightened. (The special nuts are automatically turned in place, when the screws are tightened).
Mount all cable connections as illustrated. Note that the safety strip sit in S2. For connection sequence see section 8 (start-up procedure) on page 19
- Place loose cables into cable tubeswhich can be mounted onto aloo profile.

Mounting of switch
- The control switch for the height adjustment must be fitted in the wooden front fascia.
It consists of a control switch with a 200 cm long cable provided with a DIN plug for the control switch.
Choose the required position in the front fascia and drill an 18 mm dia. hole in the fascia.
Push the cable through the hole in the front fascia from the front.
The control switch has double-adhesive tape on the back. Remove the protective paper and fit the control switch on the wooden front fascia.
Fit the DIN plug of the cable on the control switch.
After fitting the socket, fasten the cable under the worktop with the cable bearer so that it does not sag.

Mounting of safety strip under worktop
- Follow separate mounting instruction for safety strip.

Mounting of press pad
- The press pad for height adjustment must be placed in the wooden front fascia.
It consists of a press pad contact and a 150 cm long cable provided with a DIN plug.
The press pad and the cable are delivered as one unit ready for mounting.
Drill holes as illustrated to suit the required position.
- Fit the press pad by pulling the cable through the large hole and fasten it in the small holes by means of the M6 nuts provided.

- After fitting the press pad, fasten the cable under the worktop with cable bearers so that it does not sag. Finally fit the DIN-plug in the control unit.

Mounting the flexible water connections and waste hoses
When connecting hot and cold water as well as waste hoses ALWAYS use flexible hoses to enable the frame to move freely within the height adjustment range (65-95 cm). The flexible hoses should be fitted so that they may move in an arch parallel with the wall, but without getting squeezed.
The length of the hoses must suit the fastening and the travel of the frame.
We recommend that water seal and waste pipe be directed backwards towards the wall in order to obtain optimum space under the table and the sink.

Mounting of support arms 30-67642/30-67643
- Push support arm into aluminum profile and make sure support arm is level with profile. Afterwards tighten screws.
By using this support arm it is possible to mount hotplate or sink closer to edge of tabletop.

Performance test
After installation and prior to use all functions of Flexi must be tested. The test must be carried out by competent personnel. Subsequently the test shall be carried out at least once a year:
Performance test, manually operated frame
- Check that the mounting instructions have been observed.
- Check that all bolts have been tightened.
- There must be no load on the frame.
- There must be nothing preventing the frame from moving freely within the height adjustment range (65-95 cm).
- Turn the handle, move the frame to bottom position and check that the movement is smooth and even. Make sure that the hoses follow the movement of the frame and do not get squeezed.
- Now turn the handle and move the frame to top position and check that the movement is smooth and even. Make sure that the hoses follow the movement of the frame and do not get squeezed.
If all these tests are ok, the Flexi is ready for use.
Performance test, electrically operated frame
Testing prior to connection of mains voltage:
- Check that the mounting instructions have been observed.
- Check that all bolts have been tightened.
- Check that all cables have been connected correctly and that the plugs have been pressed home.
- Check that there is no load on the Flexi frame.
- Check that there is nothing preventing the Flexi from moving freely within the height adjustment range.
Start-up Procedure
- Connect the net cable and turn on the power
- Connect the motor cables to M1 and M2
- Connect the control switch to HS
- Press DOWN on the control switch, move the frame to bottom position, check that the movement is even and smooth. Make sure that the hose connections follow the movement of the frame and that they do not get squeezed. The frame is now reset.
- Press UP on the control switch, move the frame to top position and check that the movement is even and smooth. Make sure that the hose connections follow the movement of the frame and that they do not get squeezed.
If a safety strip has been mounted under the Flexi frame it must be tested as follows: Press DOWN on the control switch and let the Flexi frame move 2-5 cm downward. Now activate the safety strip by pressing it lightly. The frame must stop the downward movement, move 1-2 cm upward and stop.
If a safety strip and smartbox2 has been fitted above the frame, e.g. on a wall cupboard “Diagonal”, this must also be tested as follows:
Make sure that the Flexi frame is in the bottom position. Press UP on the button and let the frame move 2-5 cm upward. Now the safety strip above the Flexi frame will be activated. The Flexi frame must now stop its UPWARD movement and move 1-2 cm downward and stop.
If all these tests are ok, the Flexi frame is ready for use. Se section 11 “Safety in use”.
List of components for FlexiManual for worktop 60-300 cm
| Legs, standard height 65-95 cm. 30-67600: Length of worktop = 60-204 cm Length of worktop = 205-300 cm | 2 legs 3 legs | |
| The legs comprise: 30-67681 Spacers (0.15 cm) For misalignment | 3 pcs./leg | |
| 30-67680 Distance plates (1 cm) For skirting board | 2 pcs/leg | |
| 30-67685 Cable bearer | 1 pc./leg | |
| 30*65591-008 Basic cover | 1 pc/leg | |
| 30*65591-009 End cover for basic cover | 2 pcs/leg | |
| Support arm for worktop 60-62 cm 30-67620: Length of worktop = 60-104 cm Length of worktop = 105-204 cm Length of worktop = 205-249 cm Length of worktop = 250-300 cm | 2 pcs. 4 pcs. 5 pcs. 7 pcs. | |
| Aluminum profile 30-68xxx: Length (XXX) = Worktop length ¸ 5cm At increments of 5 cm | 1 pc. | |
| The profile comprises: 30-69xxx Spindle Length (xxx) = Worktop length -15cm At increments of 5 cm | 1 pc. | |
| Handle incl. transmission 30-67650: Depth of worktop = 50-72 cm The handle comprises: 30-67670 Mounting parts: | 1 pc. | |
| 30*65500-084 Stop ring | 2 pcs. | |
| 97002730 Furniture fittings | 4 pcs. | |
| 97800-003 Fascia sorrel | 1 pc. |
Options for Flexi Manual
| Support arm for worktop depth 70-72 cm 30-67621: Length of worktop = 60-104 cm Length of worktop = 105-204 cm Length of worktop = 205-254 cm Length of worktop = 255-300 cm | 2 pcs. 4 pcs. 5 pcs. 7 pcs. | |
| Support arm for worktop depth 58-60 cm 30-67624: Length of worktop = 60-104 cm Length of worktop = 105-204 cm Length of worktop = 205-254 cm Length of worktop = 255-300 cm | 2 pcs. 4 pcs. 5 pcs. 7 pcs. | |
| Support arm for worktop depth 50-52 cm 30-67622: Length of worktop = 60-104 cm Length of worktop = 105-204 cm Length of worktop = 205-254 cm Length of worktop = 255-300 cm | 2 pcs. 4 pcs. 5 pcs. 7 pcs. | |
| Support arm for worktop depth 58-62 cm 30-67642: Right side. Support arm is placed further out against the end of worktop | 1pcs | |
| Support arm for worktop depth 58-62 cm 30-67643: Left side. Support arm is placed further out against the end of worktop | 1pcs | |
| Distance plate (1 cm) 30-67680: For skirting board | 1 pc. | |
| Distance bracket (7 cm) 30-67672: For void behind the frame | 1 pc. | |
| Cover 30-67735: Length of worktop = 60-204 cm Length of worktop = 205-300 cm | 2 pcs. 3 pcs. | |
| Cover for supporting foot 30-67737: Length of worktop = 60-204 cm Length of worktop = 205-300 cm | 2 pcs. 3 pcs. | |
| Fittings for concealment panels 30-67760: | 1 set | |
| Supporting foot, L = 30 cm 30-67702: Length of worktop = 60-204 cm Length of worktop = 205-300 cm | 2 pcs. 3 pcs. | |
| Supporting foot L = 49 cm 30-67703: Length of worktop = 60-204 cm Length of worktop = 205-300 cm | 2 pcs. 3 pcs. | |
| Each foot comprises: 30*65561-004 Leg extension for foot | 1 pc. | |
| Electrical kit 1 for Flexi 60-104 cm 30-67866: Comprises 1 motor and 1 control unit | 1 pc. | |
| Electrical kit 2 for Flexi 105-300 cm 30-67867: Comprises 2 motor and 1 control unit | 1 pc. |
Safety in use
- The Flexi frame should only be used by people, who have read and understood these instructions.
- Flexi is a height-adjustable frame and should not be used as a lifting table or person lifter.
- Always use the Flexi frame so there is no risk of damage to people or property. The person, who operates the Flexi frame, is responsible for avoiding damage or injury.
- If the Flexi frame is used in publicly accessible locations where children or people with reduced observation ability may get close to the Flexi frame, the person operating the Flexi frame must pay sufficient attention in order to prevent dangerous situations.
- Make sure that there is free space above and below the Flexi frame to allow height adjustment.
- Do not overload the Flexi frame and make sure that the load distribution is correct.
- Do not operate the Flexi frame in case of errors or damage.
- Do not use the Flexi frame in an explosive environment.
- Any modification of the Flexi frame, which may influence its operation or construction, is forbidden.
- Installation, service and repairs must be carried out by competent personnel.
- In case of inspections, service or repairs make sure that the Flexi frame is not loaded.
- If the Flexi frame has not been installed in accordance with these mounting instructions, the guarantee may become void.
- Only use Ropox original spare parts as replacement parts. If other spare parts are used, the guarantee may become void.
Cleaning and maintenance
Cleaning
The frame may get dirty during use. It is very important to clean the frame as described in these instructions.
Clean the frame with a damp cloth using lukewarm water and ordinary cleaning agents. Do not use Corrosive/ abrasive liquids or abrasive cloths, brushes or sponges. After cleaning dry the frame.
Maintenance
The frame is maintenance-free and the moving parts have been lubricated for life. For reasons of safety and reliability we recommend inspection of the frame once a year.
Inspections, service and repairs must be carried out by competent personnel
During inspections:
- Check that all bolts have been tightened.
- Check that the frame moves freely from bottom to top position without problems.
- Check that water and waste pipes are tight and undamaged.
After each inspection the service schedule shall be filled in. See item 12.3.
Only use Ropox original spare parts as replacement parts. If other parts are used, the guarantee may become void.
Label
Each unit has its own label as illustrated. This label contains important information to be stated in connection with inquiries to the supplier. The label is located as illustrated.

Symbols:
The user manual must be read before use.
Waste must be sorted – if possible, for recycling.
Roopa is the manufacturer of the product in question.
Service schedule, operation and maintenance
Service and maintenance Serial No.:
Date:……..
Sign:……
Remarks:…….
Trouble shooting
Manuel operated frames
a) The frame seems loose or unstable
The screws assembling the frame have not been securely tightened.
Tighten all screws, cf. mounting instructions.
b) The worktop is not horizontal in relation to the wall
After installation of the frame the worktop will be loaded. This deflection may be balanced by repeating item 6.6 ”Adjusting the Support arms” of the mounting instructions.
Also check that the legs are vertical – see item 6.3.
c) The height of the frame cannot be adjusted / adjustment seems very difficult
- Check that the frame is not overloaded.
- Check that the frame moves freely and that no objects have been squeezed above or below the worktop.
- Check that the handle has been fitted correctly in the transmission – see mounting instructions.
Complaints
We refer to our general Terms of sale and delivery on our homepage www.ropox.com
ROPOX A/S
Ringstedgade 221 DK – 4700 Nested
Tel.: +45 55 75 05 00 Fax.: +45 55 75 05 50
E-mail: [email protected]
www.ropox.com








































Mount all cable connections as illustrated. Note that the safety strip sit in S2. For connection sequence see section 8 (start-up procedure) on page 19

























