HUAWEI SUN2000-2KTL-6KTL-L1 Inverter User Guide
NOTICE
- The information in this document is subject to change without notice. Every effort has been made in the preparation of this document to ensure accuracy of the contents, but all statements, information, and recommendations in this document do not constitute a warranty of any kind, express or implied. You can download this document by scanning the QR code.
- Before installing the device, closely read the user manual to get familiar with product information and safety precautions.
- Only certified electricians are allowed to operate the device. Operation personnel must wear
proper personal protective equipment (PPE). - Before installing the device, check that the package contents are intact and complete against the packing list. If any damage is found or any component is missing, contact your dealer.
- The device damage caused by the violation of instructions in this document is not covered under warranty.
- The cable colors involved in this document are for reference only. Select cables in accordance with local cable specifications.
Overview

- LED indicators
- Front panel
- Hanging kit
- Mounting bracket
- Heat sink
- Vetilation valve
- Screw hole for the DC switch
- DC switch (DC SWITCH)
- DC input terminals (PV1+/PV1–)
- DC input
- terminals (PV2+/PV2–)
- Battery terminals (BAT+/BAT–)
- Smart Dongle port (4G/FE)
- Antenna port (ANT)
- COM port ( COM)
- AC output port (AC)
- Ground point
Note
- a: The screw is used to secure the DC switch to prevent accidental startup. Thescrew is delivered with the solar inverter.
- b: DC input terminals PV1 and PV2 are controlled by the DC switch.
Installing the Device
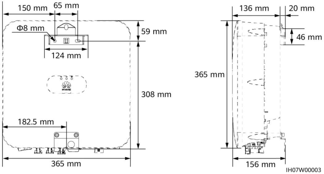
Installation Requirements
- Space

- Angle

- Mounting Hole Dimensions

Installing the Solar Inverter
- Install the mounting bracket.
Danger
Avoid drilling holes in the water pipes and cables buried in the wall.
Note- M6x60 expansion bolts are delivered with the solar inverter. If the length and number of the bolts do not meet installation requirements, prepare M6 stainless steel expansion bolts by yourself.
- The expansion bolts delivered with the solar inverter are mainly used for solid concrete walls. For other types of walls, prepare bolts by yourself and ensure that the wall meets the load bearing requirements of the solar inverter.
- In residential areas, do not install the solar inverter on drywalls or walls made of similar materials which have a weak sound insulation performance because the noise generated by the solar inverter is noticeable.
- Loosen the nut, flat washer, and spring washer of the expansion bolt at the bottom.

- (Optional) Install the screw for locking the DC switch.

- Install the solar inverter onto the mounting bracket.

- (Optional) Install an anti-theft lock.

Note
Prepare an anti-theft lock by yourself. The lock should be suitable for the lock hole diameter (Ф10 mm) so that it can be installed successfully. An outdoor waterproof lock is recommended.
Connecting Cables
Preparing Cables
Notice
- Connect cables in accordance with the local installation laws and regulations.
- Before connecting cables, ensure that the DC switch of the solar inverter and all the switches connected to it are set to OFF. Otherwise, the high voltage produced by the solar inverter may cause electric shocks.
Prepare cables based on site requirements.
| No. | Cable | Type | Conductor Cross- Sectional Area Range | Outer Diameter |
| 1 | Protective earthing (PE) cable | Single-core outdoor copper cable | 4–10 mm2 | N/A |
| 2 | AC output power cable | Two-core (L and N) or three-core (L, N, and PE) outdoor copper cable | 4–6 mm2 | 10–21 mm |
| 3 | DC input power cable and (optional) battery cable | Standard outdoor PV cable in the industry | 4–6 mm2 | 5.5–9 mm |
| 4 | (Optional) Signal cable | Outdoor shielded twisted pair cable | When cables are crimped: 0.20–0.35 mm2When cables are not crimped: 0.20–1 mm2 | l four-hole rubber plug: 4–8 mml two-hole rubber plug: 8–11 mm |
Installing the PE Cable
Danger
Do not connect the neutral wire to the enclosure as a PE cable. Otherwise, electric shocks may occur.
Note
- The PE point at the AC output port is used only as a PE equipotential point, and cannot substitute for the PE point on the enclosure.
- Silica gel or paint must be applied around the ground terminal after the PE cable is connected.
- It is recommended that the right ground point be used for grounding. Theother ground point is reserved.
Installing a WLAN Antenna or Smart Dongle
Note
- If FE communication is used, install a WLAN-FE Smart Dongle (SDongleA 05). You need to purchase the WLAN-FE Smart Dongle by yourself.
- If 4G communication is used, install a 4G Smart Dongle (SDongleA-03).You need to purchase the 4G Smart Dongle by yourself.

WLAN Antenna (WLAN Communication)
(Optional) WLAN-FE Smart Dongle (FE Communication)
You are advised to use a Cat 5e outdoor shielded network cable (outer diameter < 9 mm; internal resistance ≤ 1.5 ohms/10 m) and shielded RJ45 connectors.
(Optional) 4G Smart Dongle (4G Communication)
Notice
- If your Smart Dongle is configured with a SIM card, you do not need to install the SIM card. The configured SIM card can be used only on the Smart Dongle.
- If your Smart Dongle is not equipped with a SIM card, prepare a standard SIM card (size: 25 mm x 15 mm) with the capacity greater than or equal to 64 KB.
- Install the SIM card in the arrow direction.
- Where installing the cover of the Smart Dongle, ensure that the buckle springs back in place (you can hear a click)

Note
- For details about how to operate the WLAN-FE Smart Dongle SDongleA-05, see SDongleA05 Quick Guide (WLAN-FE).
- For details about how to operate the 4G Smart Dongle SDongleA-03, see SDongleA-03 Quick Guide (4G).
- The quick guide is delivered with the Smart Dongle. You can download them by scanning the QR code below.
WLAN-FE
4G
Installing the AC Output Power Cable
Notice:
Ensure that the protective layer of the AC output power cable is inside the connector, that the core wires are totally inserted into the cable hole, and that the cable is connected securely. Failing to do so may cause device malfunction or damage.
- Connect the AC output power cable to the AC connector.
Three-Core Cable (L, N, and PE)
Note
The method for connecting a two-core AC output power cable is the same except that the cable is not connected to PE - Connect the AC connector to the AC output port. Check the route of the AC output power cable.

Note
To remove the AC connector, perform the operations inreverse order of installing the AC connector. Then, remove the plug insert, as shown in the following figure.
Installing DC Input Power Cables
Notice
- Ensure that the PV module output is well insulated to ground.
- Use the Staubli MC4 positive and negative metal terminals and DC connectors supplied with the solar inverter. Using incompatible positive and negative metal terminals and DC connectors may result in serious consequences. The caused device damage is not covered under warranty.
- The DC input voltage of the solar inverter must not exceed maximum input voltage.
- Before installing DC input power cables, label the cable polarities to ensure correct cable connections.
- If DC input power cables are reversely connected, do not operate the DC switch as well as positive and negative connectors immediately. Failing to do so may cause device damage, which is not covered under warranty. Wait until the solar irradiance declines at night and the PV string current reduces to below 0.5 A, and then turn off the DC switch and remove the positive and negative connectors. Correct the string polarity before reconnecting the PV string to the solar inverter
- Assemble DC connectors

Note
If the PV strings are configured with Smart PV Optimizers, refer to the Smart PV Optimizer Quick Guide to check the cable polarity - Connect DC input power cables.

(Optional) Installing Battery Cables
Danger
- Use insulated tools when connecting cables.
- Connect battery cables with correct polarity. If battery cables are reversely connected, the solar inverter may be damaged.
Assemble the positive and negative connectors by following the instructions in section 3.5 “Installing DC Input Power Cables.”
Battery terminals (BAT+/BAT–)
Optional) Installing Signal Cables
Notice
- When laying out a signal cable, separate it from power cables to avoid strong signal interference.
- Ensure that the protective layer of the cable is inside the connector, that excess core wires are cut off from the protection layer, that the exposed core wire is totally inserted into the cable hole, and that the cable is connected securely.
- Block the unused cable hole using a cap and tighten the cable gland.
- If more than one signal cables are required, ensure that they have the same outer diameter.

COM Port Pin Definitions
| No. | Label | Definition | Description |
| 1 | 485B1 | RS485B, RS485 differential signal– | Solar inverters cascading scenario: used for connecting to the solar inverters. |
| 2 | 485A1 | RS485A, RS485 differential signal+ | |
| 3 | 485B2 | RS485B, RS485 differential signal– | Used for connecting to the RS485 signal ports of the battery and power meter. When both battery and power meter are configured, they need be crimped to the 485B2 and 485A2 ports. |
| 4 | 485A2 | RS485A, RS485 differential signal+ | |
| 5 | GND | GND of the enable signal/12V/DI1/DI2 | Used for connecting to GND of the enable signal/12V/DI1/DI2. |
| 6 | EN+ | Enable signal+/12V+ | Used for connecting to the enable signal of the battery and the 12V positive signal. |
| 7 | DI1 | Digital input signal 1+ | Used to connect to the DI1 positive signal. It can be used for connecting to the DRM0 scheduling signal or serve as a port for the rapid shutdown signal. |
| 8 | DI2 | Digital input signal 2+ | Used to connect to the DI2 positive signal. It can serve as a port for the feedback signal of the Backup Box. |
Crimping Two Signal Cables
Crimping Three Signal Cables
Connecting Signal Cables
Verifying the Installation erifying the Installation
| No. | Acceptance Criteria |
| 1 | The solar inverter is installed correctly and securely. |
| 2 | The WLAN antenna is installed correctly and securely. |
| 3 | Cables are routed properly as required by the customer. |
| 4 | Cable ties are evenly distributed and no burr exists. |
| 5 | The PE cable is connected correctly and securely. |
| 6 | The DC switch and all the switches connected to the solar inverter are set to the OFF position. |
| 7 | The AC output power cable, DC input power cables, and signal cable are connected correctly and securely. |
| 8 | Unused terminals and ports are locked by watertight caps. |
| 9 | The installation space is proper, and the installation environment is clean and tidy. |
Powering On the System
Notice
- Before turning on the AC switch between the solar inverter and the power grid, check that the AC voltage is within the specified range using a multimeter set to the AC position.
- If the solar inverter is connected to an LG battery, turn on the DC switchwithin 1 minute after turning on the AC switch. If you turn on the DC switch after more than 1 minute, the solar inverter will shut down and start again.
- If a battery is connected, turn on the battery switch.
- Turn on the AC switch between the solar inverter and the power grid.
- (Optional) Remove the screw for locking the DC switch

- Turn on the DC switch (if any) between the PV string and the solar inverter.
- Turn on the DC switch at the bottom of the solar inverter.
- Observe the LED indicators to check the operating status of the solar inverter.
| Type | Status (Blinking at long intervals: On for 1s and then Off for 1s; Blinking at short Intervals: On for 0.2s and then Off for 0.2s) | Meaning | |||
| Running indication | LED1 | LED2 | N/A | ||
| Steady green | Steady green | The solar inverter is operating in grid-tied mode. | |||
| Blinking green at long intervals | Off | The DC is on and the AC is off. | |||
| Blinking green at long intervals | Blinking green at long intervals | Both the DC and AC are on, and the solar inverter is not exporting power to the power grid. | |||
| Off | Blinking green at long intervals | The DC is off and the AC is on. | |||
| Off | Off | Both the DC and AC are off. | |||
| Blinking red at short intervals | N/A | There is a DC environmental alarm, such as an alarm indicating that High String Input Voltage, String Reverse Connection, or Low Insulation Resistance. | |||
| N/A | Blinking red at short intervals | There is an AC environmental alarm, such as an alarm indicating Grid Undervoltage, Grid Overvoltage, Grid Overfrequency, or Grid Underfrequency. | |||
| Steady red | Steady red | Fault. | |||
| Type | Status (Blinking at long intervals: On for 1s and then Off for 1s; Blinking at short Intervals: On for 0.2s and then Off for 0.2s) | Meaning | |||
| Communication indication | LED3 | N/A | |||
| Blinking green at short intervals | Communication is in progress. | ||||
| Blinking green at long intervals | A mobile phone is connected to the solar inverter. | ||||
| Off | There is no communication. | ||||
| Device replacement indication | LED1 ![]() | LED2 | LED3 | N/A | |
| Steady red | Steady red | Steady red | The solar inverter hardware is faulty. Thesolar inverter needs to be replaced. | ||
Commissioning
Note
- The screenshots are for reference only. The actual screens may vary.
- Obtain the initial password for connecting to the solar inverter WLAN from the label on the side of the solar inverter.
- Set the password at the first login. To ensure account security, change the password periodically and keep the new password in mind. Not changing the password may cause password disclosure. A password left unchanged for a long period of time may be stolen or cracked. If a password is lost, devices cannot be accessed. In these cases, the user is liable for any loss caused to the PV plant.
Downloading the App
Method 1: Search for Fusion Solar on Huawei App Gallery and download the latest installation package.
Fusion Solar
Method 2: Access https://solar.huawei.com using the mobile phone browser and download the latest installation package.
Method 3: Scan the following QR code and download the latest installation package.
(Optional) Registering an Installer Account
Note
If you already have an installer account, skip this step.
Creating the first installer account will generate a domain named after the company.
Creating a PV Plant and a Plant Owner

Note
- In the quick settings, the grid code is set to N/A by default (automatic startup is not supported). Set the grid code based on the area where the PV plant is located.
- For details, see the Fusion Solar App Quick Guide. You can scan the QR code to download the quick guide.

Setting the Physical Layout of Smart PV Optimizers
Note
- If Smart PV Optimizers are configured for PV strings, ensure that the Smart PV Optimizers have been successfully connected to the solar inverter before performing the operations in this section.
- Check that the SN labels of Smart PV Optimizers are correctly attached to the physical layout template.
- Take and save a photo of the physical layout template. Place the template on a flat surface. Keep your phone parallel to the template and take a photo in landscape mode. Ensure that the four positioning points in the corners are in the frame. Ensure that each QR code is attached within the frame.
- For details about the physical layout of Smart PV Optimizers, see sionSolar App Quick Guide.
Scenario 1: Setting on the Fusion Solar Server Side (Solar Inverter Connected to the Management System)
- Tap the plant name on the Home screen to access the plant screen. Select layout, tap and upload the physical layout template photo of the PV plant as prompted.

- Log in to https://intl.fusionsolar.huawei.com to access the WebUI of the FusionSolar Smart PV Management System. On the Home page, click the plant name to go to the plant page. Select layout. Choose Generate layout, and create a physical layout as prompted. You can also manually create a physical location layout.

Note
You can also upload the physical layout template photo on the WebUI as follows: Log in to https://intl.fusionsolar.huawei.com to access the WebUI of the PV Monitor Smart PV Management System. On the Home page, click the plant name to go to the plant page. Select layout. Choose Click to Upload, and upload the physical layout template photo.
Scenario 2: Setting on the Solar Inverter Side (Solar Inverter Not Connected to the Management System)
- If the solar inverter is not connected to the Fusion Solar Smart PV Management System, access the Device commissioning screen (Refer to 7.1 Device Commissioning.) on the Fusion Solar app to set the physical layout of Smart PV Optimizers.
- Log in to the Fusion Solar app. On the Device commissioning screen, choose Maintenance > Optimizer layout. The Optimizer layout screen is displayed.
- Tap the blank area. The Identify image and Add PV modules buttons are displayed. You can use either of the following methods to perform operations as prompted:
- Method 1: Tap Identify image and upload the physical layout template photo to complete the optimizer layout. (The optimizers that fail to be identified need to be manually bound.)
- Method 2: Tap Add PV modules to manually add PV modules and bind the optimizers to the PV modules.

Setting Battery Parameters
Note
If the solar inverter connects to batteries, set battery parameters.
- Log in to the Fusion Solar app and choose My > Device commissioning. The Device commissioning screen (Refer to 7.1 Device Commissioning.) is displayed.
- Choose Power adjustment > Battery control and set battery parameters, including Charge from grid, Control mode (Fully fed to grid, TOU(Time-of-use), Maximum self-consumption), and so on.

FAQ
Device Commissioning
- Access Device commissioning. 7.1 Device Commissioning Scenario 1: Your phone is not connected to the Internet.

Scenario 2: Your phone is connected to the Internet.
- Connect to the solar inverter WLAN and log in as installer to access the device commissioning screen.

Resetting the Password
- Ensure that the SUN2000 connects to the AC and DC power supplies at the same time. Indicators
and
are steady green or blink at long intervals for more than 3 minutes. - Perform the following operations within 3 minutes:
- Turn off the AC switch and set the DC switch at the bottom of the SUN2000 to OFF. If the SUN2000 connects to batteries, turn off the battery switch. Wait until all the LED indicators on the SUN2000 panel turn off.
- Turn on the AC switch and set the DC switch to ON. Ensure that the indicator is blinkinggreen at long intervals.
- Turn off the AC switch and set the DC switch to OFF. Wait until all LED indicators on the SUN2000 panel are off.
- Turn on the AC switch and set the DC switch to ON
- Reset the password within 10 minutes. (If no operation is performed within 10 minutes, all inverter parameters remain unchanged.)
- Wait until the indicator
blinks green at long intervals. - Obtain the initial WLAN hotspot name (SSID) and initial password (PSW) from the label on the side of the SUN2000 and connect to the app.
- On the login screen, set a new login password and log in to the app.
- Wait until the indicator
- Set router and management system parameters to implement remote management.
Installation Video
Note
You can scan the QR code below to obtain the installation video.
Customer Service Contact Information
| Customer Service Contact | |||
| Region | Country | Service Support Email | Phone |
| Europe | France | [email protected] | 0080033888888 |
| Germany | |||
| Spain | |||
| Italy | |||
| UK | |||
| Netherlands | |||
| Other countries | For details, see solar.huawei.com. | ||
| Asia Pacific | Australia | [email protected] | 1800046639 |
| Turkey | [email protected] | N/A | |
| Malaysia | [email protected] | 0080021686868/1800220036 | |
| Thailand | (+66) 26542662 (charged by local call) | ||
| 1800290055 (free in Thailand) | |||
| China | [email protected] | 400-822-9999 | |
| Other countries | [email protected] | 0060-3-21686868 | |
| Japan | Japan | [email protected] | 0120258367 |
| India | India | [email protected] | 1800 103 8009 |
| Republic of Korea | Republic of Korea | [email protected] | N/A |
| North America | USA | [email protected] | 1-877-948-2934 |
| Canada | [email protected] | 1-855-482-9343 | |
| Latin America | Mexico | [email protected] | 018007703456/0052-442-4288288 |
| Argentina | 0-8009993456 | ||
| Brazil | 0-8005953456 | ||
| Chile | 800201866 (only for fixed) | ||
| Other countries | 0052-442-4288288 | ||
| Middle Eastand Africa | Egypt | [email protected] | 08002229000/0020235353900 |
| UAE | 08002229000 | ||
| South Africa | 0800222900 | ||
| Saudi Arabia | 8001161177 | ||
| Pakistan | 0092512800019 | ||
| Morocco | 0800009900 | ||
| Other countries | 0020235353900 | ||
Huawei Technologies Co., Ltd
Huawei Industrial Base, Bantian, Longgang
Shenzhen 518129, People’s Republic of China
solar.huawei.com












































