
TZ-4 Total Zone® Zone Control Panel
PRODUCT DATA

APPLICATION
The TZ-4 TotalZone Zone Control Panel controls single-stage, multi-stage, conventional or heat pump heat/cool equipment. It controls 2, 3 or 4 zones, and is expandable up to 32 zones with optional TotalZone® Add-A-Zone™ Four Zone Control Panel.
FEATURES
- Up to three stages heat and two stages cooling can be controlled by thermostat, built-in timer, or based on the percentage of zones calling.
- Controls single-stage, multi-stage, conventional, heat pump or dual-fuel equipment.
- Controls up to four zones and can be expanded up to 32 zones with Add-A-Zone Control Panels.
- Uses Honeywell four-wire, single-stage, multi-stage, or select heat pump thermostats.
- Zone-A-Lone central setback feature.
- Purge timer protects equipment between calls for heat or cool with choice of panel or HVAC equipment controlled fan.
- System and zone damper LEDs indicate system and damper status.
- Individual zone fan control.
- Discharge Air Temperature Sensor for capacity control with adjustable high and low limits.
- Thermal circuit breaker protects panel and transformer from damage if miswired.
For Internet access:
www.honeywellzoning.com
For technical support, call 1-800-828-8367.
To download Zoning literature: http://hbctechlit.honeywell.com
® U.S. Registered Trademark
Copyright © 2002 Honeywell · All Rights Reserved

SPECIFICATIONS
Input Ratings:
Voltage: 20-30 Vac, 50/60 Hz.
Power: 13 VA, nominal.
Output Ratings:
1.5A run, 200,000 cycles (30 Vac). 3.5 inrush.
1.5A run, 100,000 cycles (30 Vac) 7.5A inrush.
Humidity Ratings:
5 to 90 percent RH, non-condensing.
Temperature Ratings:
Shipping: -20° to 120°F.
Operating: -40° to 150°F.
Dimensions: 10-3/4 in. H x 12-3/4 in. W x 1-7/8 in. D. See Fig. 1.
Mounting: Mounts with four 1 in. no. 8 screws (provided) through holes in cabinet back. Wall anchors are provided.
Wiring: 18-gauge wire for all equipment and system connections.
Wiring Connections:
Thermostat: R, C, W1/E, W2, W3/AUX, Y1, Y2, G, L, O/B
Dampers: M6 (Closed); M4 (Open); M1 (Common).
Discharge Air Temperature Sensor (C7735A1000); DATS, DATS.
Zone-A-Lone: OC, OC.
Outdoor Temperature: OT, OT.
Transformer 1: R (hot), C (common).
Transformer 2: T1 (hot), T2 (common).
Equipment: Rc-Rh, W1/E, W2, W3/AUX Y1, Y2, G, O/B.
Thermostats (See Table 1):
Most conventional four-wire (R,W,Y,G) thermostats can be used to control conventional, heat pump, or multi-stage equipment.
Manual or automatic changeover switching thermostats can be used.
Multi-stage or select heat pump thermostats can also be used.

Fig. 1. TZ-4 dimensions in in. (mm).
Table 1. Recommended Thermostats.
| System | Non-Programmable | Programmable |
| Single Stage | T87F1859/Q539A1014 T87F4010/Q539A4026 T8501D1046 T8400C1016 T8400C1040 T8400C1099 | T8601D2027 T8600D2069 T8600D2028 T8601D2019 T8602D2018 T8602D2000 T8000C1002 T8000C1010 T8001C1019 PC8900/W8900A/C |
| Heat Pump b | Y594R1243 a,c,d Y594G1252a,e T8411R1002 T8411R1028 | T8611G2051 T8011R1006 T8011R1014 |
| Multi-Stage b | Y594D1347f T8524D1015 | T8624D2004 T8624D2012 |
a Heat pump thermostat with single Y first-stage terminals. See Heat Pump Thermostats section and Fig. 6.
b Multi-stage and heat pump thermostats are not required to control multi-stage and heat pump systems with TotalZone. They are used only when second stage or emergency heat control from the zone thermostat is needed.
c The Y594R1243 must be wired to the panel using the B terminal for changeover.
d Cut thermostat second-stage variable heating anticipator wire (gray).
e Cut thermostat first-stage fixed heating anticipator wire (bare) and second-stage variable heating anticipator wire (gray).
f Cut thermostat second-stage cooling anticipator wire (lowest bare wire).
Recommended Dampers (See Table 2):
Ten ZD or ARD dampers maximum connected to each panel and a maximum of five dampers per zone when using two 40 VA transformers.
Use SDCR and 40 VA transformer for additional dampers required on one zone.
Dampers are connected to M1 Common, M4 Open, and M6 Closed (see Fig. 7-10 for hookups).
| Motor Terminal | Damper Action |
| Common/M1 | Common |
| Open/M4 | Power Open |
| Closed/M6 | Power Close |
Table 2. Recommended Dampers.
| Honeywell Damper Type | Round | Rectangular |
| Power-open/power-closed (for systems > 2000 cfm) | MARD | D643 using ML6161 Motor Actuator |
| Spring-open/power-closed (for systems </= 2000 cfm) | ARD | ZD |
Accessories: For required accessories, see Table 3.
Table 3. Required Accessories (Not Supplied).
| Accessory | Description | Bypass Rating (cfm) |
| 40 VA transformers | AT140D1046 (PMT-40) | – |
| Capacity protector | C7735A1000 | – |
| Outdoor Temperature Sensor (Required for dual-fuel applications) | C7089B1000 | – |
| Round static pressure regulator damper | SPRD7 SPRD8 SPRD9 SPRD10 SPRD12 SPRD14 SPRD16 | 300 400 600 750 1200 1800 2400 |
| Rectangular static pressureregulator damper | SPRD12x8 SPRD12x10 SPRD12x12 SPRD20x8 SPRD20x10 SPRD20x12 | 1000 1200 1400 1600 2000 3000 |
3. Mount the TZ-4 zone panel near the HVAC equipment; (on a wall or on the cold-air return). See Fig. 2.
4. Level the TZ-4 for appearance only.
Wiring
CAUTION
Voltage Hazard.
Can cause electrical shock or equipment damage.
Disconnect power before continuing installation.
Wiring must comply with applicable codes, ordinances, and regulations.
- Connect thermostats as shown in Fig. 3-6.
- Connect dampers as shown in Fig. 7-10.
- Connect C7735A Discharge Air Temperature Sensor (not supplied) to the DATS terminals. The wires are not polarized. See Fig. 13.
- Connect Add-A-Zone panels (if used) to the AZ1 and AZ2 terminals.
- Connect the HVAC equipment to the EQUIP terminals on the panel. See Fig. 15-21.
- Connect a 40 VA, 24 volt transformer to R (hot) and C (common). This must be a dedicated transformer and each TAZ-4 board also requires a transformer. See Fig. 12.
- The auxiliary 40 VA 24-volt transformer can be connected to T1 and T2 if additional power for dampers is required. This second transformer is not required; however, total power consumption of panel and damper is limited to 40VA without it.

Fig. 2. TZ-4 mounting location.
Wiring Diagrams (Fig. 3 and 4)
Conventional Thermostats
Conventional (RWYG) thermostats can be used to control conventional, multi-stage, and heat pump equipment. If the thermostat has a common terminal, it is wired to C on the panel, see Fig. 3. A multi-stage thermostat is wired with the second and third stage of heat to W2 and W3 on the panel thermostat connections, and with the second stage of cooling to Y2. Leave the zone O/B thermostat jumper on the TZ-4 disconnected. See Single and Multi-Stage Operation in the Operation section for instructions on staging the TZ-4.
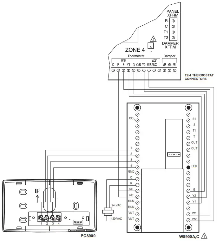
The PC8900 with the W8900A or W8900C can be used as a zone thermostat. See Fig. 4 for hookup. This thermostat can be used to control up to 2 heat and 2 cool stages of conventional equipment. When used to control heat pump equipment, the W8900A is recommended.
Connect a jumper on the W8900 from Rc to Rh as shown in Fig. 4. Wire terminals R and C to a transformer. If the system current draw is within specifications, the R and C on the W8900 could alternately be connected to R and C on the TZ-4. The PC8900/W8900 draws 5 VA.

1. COMMON (C) TERMINAL IS USED ONLY BY THERMOSTATS THAT REQUIRE A COMMON WIRE.
2. MULI-STAGE THERMOSTATS ARE WIRED SIMILARLY BUT WITH Y2 AND W2 USED FOR SECOND STAGE COOL AND HEAT. THIRD STAGE OF HEAT (W3) CAN BE WIRED TO W3/AUX.
3. LEAVE O/B JUMPER ON TZ-4 DISCONNECTED.
M20509B
Fig. 3. Typical single-stage thermostat wiring.

1. W8900A/C IS RECOMMEDED FOR CONVENTIONAL AND HEAT PUMP APPLICATIONS. THE W8900B CANNOT
SWITCH THE PANEL TO EMERGENCY HEAT.
2. LEAVE O/B JUMPER ON TZ-4 DISCONNECTED.
M20508B
Fig. 4. PC8900 with W8900A,C Thermostat wiring.
Heat Pump Thermostats
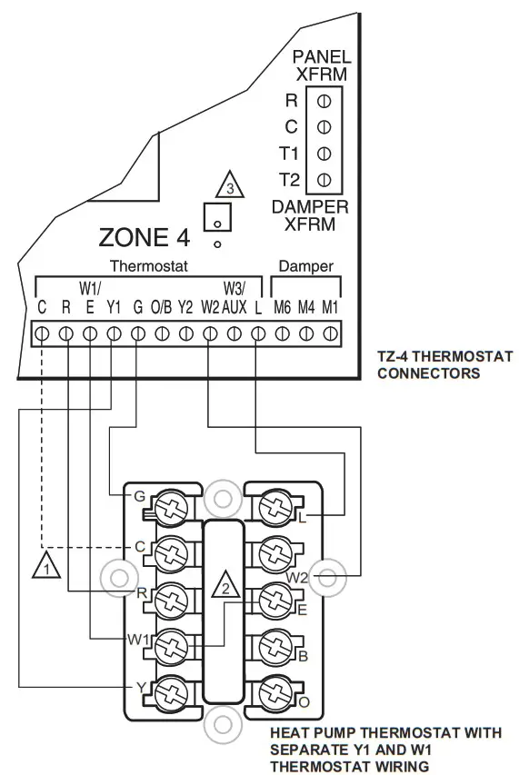
Select a heat pump thermostat from Table 1. If the thermostat selected has a separate Y1 and W1 wire, as shown in Fig. 5, leave the zone O/B thermostat type jumper on the TZ-4 disconnected, and wire as shown in Fig. 5.
If the PC8900/W8900 /Thermostat is used in a heat pump application, use the W8900A, not the W8900B, and wire as shown in Fig. 4.

1. COMMON (C) TERMINAL IS USED ONLY BY THERMOSTATS THAT REQUIRE A COMMON WIRE.
2. JUMP E TERMINAL TO W1 FOR EMERGENCY HEAT.
3. LEAVE O/B JUMPER ON TZ-4 DISCONNETED.
M20506B
Fig. 5. Heat pump thermostat with separate Y1 and W1 terminals and multi-stage thermostat wiring.
If the thermostat selected from Table 1 has a single Y terminal for first stage heat and cool, wire as shown in Fig. 6. Wire either O or B (not both) from the thermostat to the O/B terminal on the panel. Locate the O/B thermostat jumper on the TZ-4 near each zone thermostat wiring terminal. Connect the jumper if O was used or leave disconnected if B was used. Connect second stage, auxiliary heat to W2.
When using two- or three-stage heat pump thermostats with single Y first-stage hookup, place a jumper from W2 to Y2 on the TZ-4 thermostat connections. See Fig. 7.
See Single and Multi-Stage Operation in the Operation section for instructions on staging the TZ-4.
ARD or ZD Dampers
Wire the ARD or ZD Damper to the panel as shown in Fig. 8.
Multiple dampers can be wired in parallel. Use these dampers on systems up to 2000 cfm.
AOBD Dampers
Wire the AOBD dampers to the panel as shown in Fig. 9. Two AOBD can be wired in tandem as shown in Fig. 10. More than two AOBD dampers require the Slave Damper Control Relay (SDCR).

1. COMMON (C) TERMINAL IS USED ONLY BY THERMOSTATS THAT REQUIRE A COMMON WIRE.
2. NORMALLY, CONNECT E ON THERMOSTAT TO W1 ON PANEL. ALTERNATIVELY, INSTALL JUMPER FROM E TO Y1 ON
THERMOSTAT.
3. CONNECT O/B TERMOSTAT JUMPER ON TZ-4 PANEL IF USING O FROM THERMOSTAT; DISCONNECT IF USING B.
M20507B
Fig. 6. Heat pump thermostat with single Y thermostat wiring.

1. COMMON (C) TERMINAL IS USED ONLY ON THERMOSTATS THAT REQUIRE A COMMON WIRE.
2. ALTERNATIVELY, JUMPER E THERMOSTAT TERMINAL TO Y1 FOR EMERGENCY HEAT.
3. CONNECT O/B JUMPER ON TZ-4 WHEN USING O OR DISCONNECT WHEN USING B FOR CHANGEOVER.
4. FIELD INSTALLED JUMPER FROM Y2 TO W2 ON PANEL THERMOSTAT CONNECTIONS.
M20891
Fig. 7. Heat pump thermostat with 3-stage heat, 2-stage cool single Y thermostat wiring.

Fig. 8. Wiring ARD or ZD damper to panel.

Fig. 9. Wiring AOBD damper to panel.

Fig. 10. Wiring two AOBD dampers in parallel.
MARD Dampers or Dampers Using an ML6161 Motor Actuator
Wire the MARD Damper or ML6161 Actuator to the panel as shown in Fig. 11. These are floating control actuators, but are controlled as two-position devices on the TZ-4 panel. Multiple dampers can be wired in parallel.
The ML6161 Motor causes the damper LED to illuminate green constantly. WIre a relay as shown in Fig. 12 to restore damper position indication.
Use the MARD or D643 with the ML6161 on systems above 2000 cfm.

Fig. 11. Wiring MARD Damper or ML6161 Actuator to panel.

Fig. 12. MARD or ML6161 Damper Motor Actuator using R8222 Relay wiring.
Transformer
- Wire the transformers to the panel as shown in Fig. 13. One 40 VA, 24 Vac transformer controls up to five ARD or ZD dampers.
- Connect the transformer to terminals R and C.
- Add the auxiliary transformer if six to ten ARD or ZD dampers are used.
a. Wire auxiliary transformer to terminals T1 and T2.
b. It is important that these two transformers be wired in phase. If they are wired out of phase, the internal circuit breaker trips and the board de-powers. If this occurs, remove power, correct the wiring and restore power to the board.
IMPORTANT
If more than five dampers are required for one zone or if more than ten dampers are used for the TZ-4, use the Slave Damper Control Relay (SDCR).

Fig. 13. Wiring transformer(s) to panel.
Discharge Air and Outdoor Temperature Sensors
Wire the C7735A Discharge Air Temperature Sensor (DATS) to the panel as shown in Fig. 14. The Purge LED (yellow) flashes in all modes except purge if no DATS is connected to the TZ-4 or if there is a problem with the DATS or the wiring. For dual fuel applications, connect the C7089 Outdoor Temperature Sensor as shown in Fig. 14.

Fig. 14. Wiring C7735A Discharge Air Temperature Sensor (DATS) to panel.
Add-A-Zone Panel
Remove power from TZ-4 before connecting AZ-1 and AZ-2.
Wire the Add-A-Zone (TAZ-4) Panel to the TotalZone (TZ-4) Panel as shown in Fig.15. Up to seven TAZ-4 Panels can be wired to one TZ-4 panel to control up to 32 zones.

Fig. 15. TotalZone Add-A-Zone wiring.
Conventional Equipment
Wire the heating and cooling equipment to the equipment terminals on the TZ-4 Panel as shown in Fig. 16.
Conventional Equipment: Set DIP switch 5-1 to on.
Electric Furnaces: Set DIP switch 5-6 to off to energize the fan with a call for heat.
Hydro-Air: Wire the zone valve or circulator relay to the Rh and W1 equipment terminals. (If the circulator relay has powered terminals, remove the Rh Rc jumper.) Set DIP switch 5-6 to off to energize the fan with a call for heat.
Oil Heat: Wire the oil primary T, T terminals to the Rh and W equipment terminals. (If the oil primary has powered terminals, remove the Rh Rc jumper.)
Multi-Stage: Wire the equipment as shown in Fig. 16 using the W2 and W3 terminals for second and third stages of heat. Wire Y2 for second stage of cooling.
See Single and Multi-Stage Operation in the Operation section to configure DIP switches 4-1, 4-2, 4-3, and 4-4.

Fig. 16. Wiring conventional heating and cooling equipment to TZ-4 panel.
Heat Pump Equipment
See Fig. 17-22 for heat pump wiring. Refer to manufacturer instructions for additional wiring details and substitute the TZ-4 equipment terminals for the thermostat terminals shown.
- Connect the changeover relay to O/B equipment terminal.
- Set switch number 5-7 to on for O (cool) changeover, or to off for B (heat) changeover.
- Set switch number 5-1 to off for heat pump equipment.
- Set DIP switches 4-1, 4-2, 4-3, and 4-4. See Single Stage and Multi-Stage Operation in the Operation section.
IMPORTANT
Some heat pump manufacturers (such as York and Trane) use the B terminal as the transformer common. Do not connect the common from the
equipment to the zone control panel.
Single-Speed Compressor: Wire the compressor to the Y1 terminal.
If the same heat source is used for auxiliary heat and emergency heat:
- Wire a jumper from W2 (auxiliary heat) to W1/E (emergency heat).
- Do not connect W3/AUX. See Fig. 17.
If auxiliary heat is separate from emergency heat:
- Connect the auxiliary heat to W2 jumped to W3/AUX.
- Connect the emergency heat to W1/E. See Fig. 18.

Fig. 17. Wiring single-stage heat pump with auxiliary heat.

Fig. 18. Wiring single-stage heat pump with separate auxiliary and emergency heat.
Two-speed Compressor: Wire the first stage compressor to Y1 and the second stage compressor to Y2.
If the same heat source is used for auxiliary heat and emergency heat:
- Wire a jumper from W3/AUX (auxiliary heat) to W1/E (emergency heat), see Fig. 19.
If auxiliary heat is separate from emergency heat:
- Wire the auxiliary heat to W3/AUX.
- Wire emergency heat to W1/E, see Fig.20.

Fig. 19. Wiring two-stage heat pump with auxiliary heat.

Fig. 20. Wiring two-stage heat pump with separate auxiliary and emergency heat.
Dual Fuel Heat Pumps: Install C7089B1000 Outdoor Temperature Sensor to terminals OT and OT.
- Set outdoor sensor setting to:
- Balance point temperature of heat pump or
- Outdoor temperature above which the heat pump is to be used and below which the fossil fuel is to be used.
- Set DIP switch number 5-8 to off for dual fuel operation.
- Connect compressor to Y1. See Fig. 21.
- Connect fossil fuel heat to W1/E.
- Connect second stage of fossil fuel to W3/AUX.
- Connect second stage of compressor to Y2. See Fig. 22.

Fig. 21. Dual Fuel with single-stage heat pump and singlestage fossil fuel.

Water Source Heat Pumps
Wire the equipment, as applicable, to the TZ-4 as shown in Fig. 17-19. Refer to manufacturer instructions for additional wiring instructions and substitute the TZ-4 equipment terminals for the thermostat terminals shown.
- Wire first stage compressor to Y1, second stage compressor to Y2.
- Connect auxiliary heat to W3/AUX and emergency heat to W1/E.
- If auxiliary heat and emergency heat are the same, wire a jumper from W1/E to W3/AUX.
- Connect changeover relay to O/B equipment terminal.
- Set DIP switch 5-7 to on for O (cool) changeover, or to off for B (heat) changeover.
- Set DIP switch 5-1 to off for heat pump equipment.
STARTUP AND CHECKOUT
After the installation is complete, verify correct operation:
- Place the Em Heat switch in the Off (down) position.
- Place the Zone-A-Lone switch in the Occup/Remote (up) position.
- Verify that DIP switches are set correctly. See Sequence of Operation section and Table 8 for correct configuration.
- Power up the TZ-4 and set the thermostats so no zones are calling. The board then enters the Purge mode where all dampers open and the fan operates for two or three and one-half minutes (configurable). (If there is no Discharge Air Temperature Sensor connected to the panel, the purge LED flashes in all modes other than purge.) The damper LEDs are green to indicate the dampers are open. Press Purge Override button on panel to exit Purge mode.
- Set zone one thermostat to heat and raise the setpoint to call for heat. Verify that the heat LED is red and zone one damper remains green while the other damper LEDs turn off.
- Raise zone two setpoint to call for heat. Lower zone one setpoint to stop the call for heat to that zone. Verify that zone one LED turns off and zone two LED turns green.
- Repeat for zones three and four.
- Alternately, lower the setpoint to call for cooling. Verify that the green cool LED illuminates.
OPERATION
Identifying DIP Switches
This panel has two banks of DIP switches, DIP switch 4 (S4) and DIP switch 5 (S5). Each bank has eight individual switches that are identified by two numbers; the first number is the bank number (4 or 5) and the second number identifies the individual switch. For example, DIP 5-1 is bank 5,
switch 1.
Sequence of Operation
- When there is no call for heat, cool or fan, the board is in idle mode, no system LEDs are illuminated and the green damper LEDs indicate open.
- On a call for heat, cool, or fan, the calling zone damper stays open, and other zone dampers close:
- TZ-4 panel energizes the HVAC equipment and conditioned air is delivered to the calling zone.
- Heat LED (red), cool LED (green), or fan LED (green) illuminates to indicate equipment operation.
- Fan LED illuminates only on a call for circulation; it does not illuminate during a call for heat or cool.
- When the call is satisfied, the system enters the Purge mode. After purge, all dampers return to the Open position, depending on the setting of DIP switch S5-5.
- Any zone thermostat can call for heating or cooling. If there are co-existing calls for heat and cool, the panel accepts the first call.
- Once that call is satisfied, or a maximum of 20 minutes has elapsed, the panel switches to allow the opposite call after completing Purge mode.
Purge Mode
At the end of every call for heat or cool, the panel enters a Purge mode that holds open the calling zone damper for two (default) or three and one-half minutes.
During this time, the panel or the HVAC equipment can be configured to operate the fan. The Purge LED lights to signal that the system is in the Purge mode. Pressing the purge override button overrides the Purge mode.
Unless there is a new call for heat or cool during the Purge mode, all dampers are moved to the Open position at the end of purge.
The panel can be configured to open all dampers during the purge mode.
| DIP Switch Number | Status | Purge Operation |
| 5-3 | Off | 3.5 minutes |
| 5-3 | On | 2 minutes |
| 5-4 | Off | Panel control of fan in purge |
| 5-4 | On | HVAC control of fan in purge |
| 5-5 | Off | All dampers open during purge |
| 5-5 | On | Damper positions unchanged during purge |
Individual Zone Fan Control
When all zones are satisfied, the fan switch of each thermostat controls the fan operation for that zone.
- When the fan switch is in the On position, the fan is energized, and dampers close to zones where fan switch is in Auto position.
- During a call for heat or cool at this time, the circulation mode ceases, and the heat or cool call is honored.
- When the zone calling is satisfied, the circulation call resumes.
Single and Multi-Stage Operation
The panel can control up to three stages of heating and two stages of cooling:
- First stage is energized by the thermostat.
- Second stage of heating or cooling and third stage of heating can be energized by the thermostat, timer, or the percentage of zones calling. (For instance, first and second stage of heat and cool can be thermostat energized and third stage heat can be configured for timer energizing.)
- See Tables 5 and 6 for second and third stage configuration. Note that second and third stage can be controlled differently. Set stages not used to Off.
DIP Switch bank 4, switches 1-4, are used to configure the staging method:
- Switches 1 and 2 configure second stage control. See Table 4.
- Switches 3 and 4 configure third stage control. See Table. 5.
- When stage two or three is not used, disable that stage by turning off the corresponding switches.
Single Stage
- If equipment is single stage, set bank 4, DIP switches 1-4 Off:
| DIP Switch Number | Stage | Status |
| 4-1 | 2nd Stage | Off |
| 4-2 | 2nd Stage | Off |
| 4-3 | 3rd Stage | Off |
| 4-4 | 3rd Stage | Off |
THERMOSTAT-CONTROLLED STAGES
Use a thermostat that energizes W2 and Y2 for second stage of heat and cool, and W3 for third stage of heat. Configure for thermostat as shown in Tables 4 and 5.
TIMER-CONTROLLED STAGES
- The Timer energizes second stage of heat or cool after the first stage begins calling for the set amount of time.
- The third stage of heat is energized once the second stage of heat is calling for the set amount of time.
- Second and third stages remain energized until the call for heat or cool is satisfied.
See Table 6 for stage timer configuration of DIP switch bank 4, switches 5, 6, and 7.
PERCENTAGE OF ZONES CALLING – CONTROLLED STAGES
Percentage of zones calling energizes second or third stage based on the percentage of zones called for heat or cool on the TZ-4 and TAZ-4.
The percentage of zones necessary to turn stages two and three on and off:
| Stage | On | Off |
| Stage 2 Heat | >33% | </=25% |
| Stage 2 Cool | >33% | </=25% |
| Stage 3 Heat | >66% | </=56% |
HEAT PUMP OPERATION
The panel can control single- or two-stage heat pumps with or without auxiliary heat. Set DIP switch 5-1 to Off for heat pump control. This energizes equipment terminal Y1 on a call for first stage heat or cool. If second stage is configured to operate with DIP switch 4-1 and 4-2, Y2 energizes to call for second stage compressor. When in heat pump mode, the panel energizes the fan with a call for heat and a call for cool.
Configure DIP switch 5-7 for correct changeover valve control. See Table 7.
DUAL FUEL OPERATION
The panel can control a heat pump and a fossil fuel furnace in a dual-fuel application. A C7089B1000 Outdoor Temperature Sensor is wired to the OT and OT terminals on the TZ-4 to switch the panel from heat pump to fossil fuel operation. DIP switch 5-8 is set to Off to enable dual-fuel operation. The dual-fuel OT setting (see Fig. 16 for location) is set to the outdoor temperature that locks out the heat pump and uses the fossil fuel mode. The fan is energized by the panel for two minutes after the changeover and the Em Ht LED illuminates when in the fossil fuel mode.
IMPORTANT
A C7089B1000 Outdoor Temperature Sensor and a
C7735A1000 Discharge Air Temperature Sensor are required for dual fuel operation.
Table 4. DIP Switch Bank 4, Stage 2 Configuration.
| Operation | Switch 4-1 | Switch 4-2 |
| Thermostat | On | On |
| Timer | On | Off |
| % of Zones | Off | On |
| Off | Off | Off |
Table 5. DIP Switch Bank 4, Stage 3 Configuration.
| Operation | Switch 4-3 | Switch 4-4 |
| Thermostat | On | On |
| Timer | On | Off |
| % of zones calling | Off | On |
| Off | Off | Off |
Table 6. DIP Switch Bank 4, Stage Timer Configuration.
| Time | DIP Switch 4-5 | DIP Switch 4-6 | DIP Switch 4-7 |
| 5 minutes | On | On | On |
| 10 | On | On | Off |
| 15 | On | Off | On |
| 20 | On | Off | Off |
| 30 | Off | On | On |
| 40 | Off | On | Off |
| 50 | Off | Off | On |
| 60 | Off | Off | Off |
Table 7. DIP Switch Bank 5 Settings and Functions.
| DIP Switch | Function | On (Default) | Off |
| 5-1 | System Type | Conventional | Heat Pump |
| 5-2 | DATS low limit. | 40°F | 48°F |
| 5-3 | Purge mode timing. | Two minutes. | Three and one-half minutes. |
| 5-4 | Fan control during purge. | HVAC controlled. | Panel controlled. |
| 5-5 | Damper control during purge | Last zone(s) calling open. | All dampers open. |
| 5-6 | Fan control in heat. | Fan controlled by panel in cool and HVAC equipment in heat. | Panel in heat and cool controlling fan. |
| 5-7 | Operation of 0/B heat pump changeover equipment terminal. | 0/B equipment terminal is energized in cool (0). | 0/B equipment terminal is energized in heat (B). |
| 5-8 | Dual fuel operation. | Disabled. | Enabled. |
Thermostat Operation
Conventional Thermostats
Conventional (R,W,Y,G) heat/cool thermostats can be used with the TZ-4 to control single or multi-stage gas, electric or oil systems and heat pumps with auxiliary heat.
The panel can be configured to control second stage heat and cool and third stage heat using a 5-60 minute timer, or staging can be controlled by the percentage of zones calling.
When using conventional thermostats on heat pump applications, set DIP switch 5-1 to Off for heat pump equipment. Set DIP switch 5-7 for correct reversing valve operation. See Table 7.
Heat Pump Thermostats
HEAT PUMP THERMOSTATS WITH SINGLE Y OUTPUT
Thermostats that have a single Y terminal for first stage heat and cool and those with separate Y1 and W1 can be used. Thermostats of either wiring type can be used on any zone.
For thermostats with a single Y, the reversing valve wire must be connected to O/B:
- Connect the thermostat Y terminal to Y1 on the panel.
- If the thermostat energizes O on a call for cool, connect the O/B jumper located near the thermostat wiring terminals.
- If the thermostat energizes B on a call for heat, leave the O/B jumper disconnected.
HEAT PUMP THERMOSTATS WITH SEPARATE Y1 AND W1 TERMINALS
Heat pump thermostats with separate Y1 and W1 terminals for first stage heat and cool are wired to Y1 and W1/E. Leave the O/B jumper, located near the thermostat wiring terminals, disconnected.
Emergency Heat Control
Emergency heat is defined as using an auxiliary heat source without using the heat pump. When the Em Heat switch is in the emergency heat position, the heat pump is locked out and calls for heat are sent to the W1/E equipment terminal for fixed stage emergency heat. Second stage emergency heat energizes equipment terminals W3/Aux. Second stage emergency heat is configured with DIP switch S41 and 2. When the panel is in the heat pump mode, W1/E is energized only in emergency heat.
A recommended heat pump thermostat can also control emergency heat from the thermostat system switch. See Table 1.
Multi-Stage Thermostats
Use multi-stage thermostats to control up to three stages of heat and two stages cool with the W1/E,W2, W3/AUX, Y1, and Y2 thermostat terminals.
Manual and Automatic Changeover Thermostats
Manual or automatic changeover thermostats can be used.
The panel determines the call for heat or cool based on which was called for first. Subsequent calls for heat or cool are honored when the initial call is satisfied, or 20 minutes has elapsed.
Rebooting Microprocessor
To reset the panel, press and release the Boot button. The system reboots and enters the Purge mode.
Discharge Air Temperature Sensor
The C7735A1000 Discharge Air Temperature Sensor (not included) is a supply-duct-mounted temperature probe used to control capacity and prevent high limit or coil-icing. The sensor attaches to the two DATS terminals on the panel. When a high or low limit is reached, the panel shuts off the equipment and keeps the fan operating for 2-1/2 minutes. After this time, it re-energizes the equipment after the discharge air recovers by 10 degrees. When the DATS exceeds the high or low limit, the Heat (red) or Cool (green) LED flashes.
Set the temperature from 110°F to 160°F. See Fig. 23. The recommended setting for fossil fuel/ electric systems is 160°F (default factory setting). For heat pump systems, the recommended setting is 120°F. When using a heat pump with dual fuel activated (DIP 5-8), the high limit will automatically be set for 120 degrees when the outputs call for compressor only operation. When the outputs call for non heat pump operation, the high limit will be set to the adjustable 110° to160°F setting.
The cooling temperature limit can be set at 40°F or 48°F.

Fig. 23. DATS high-limit temperature dial.
IMPORTANT
Be sure the Discharge Air Temperature Sensor wiring does not run parallel with line voltage wiring unless more than 12 in. of separation exists or shielded cable is used.
Use DIP switch 5-2 to change cooling limit settings:
| Dip Switch | Status | Cooling Temperature Limit |
| 5-2 | On | 40°F |
| 5-2 | Off | 48°F |
Zone-A-Lone Switch
When the Zone-A-Lone switch is in the occupied (up) position and the OC/OC terminals are not used, the system functions as a zone control system.
When switched to the unoccupied (down) position, all dampers are opened and all requests for heat, cool, or fan, except from zone one, are not honored.
The zone one thermostat becomes the controlling thermostat for the entire system. During long unoccupied periods, one thermostat can be set back instead of adjusting each zone thermostat in the building.
The T8601D2027 and T8611G2051 include two OC terminals. When wired to the TZ-4 OC terminals, and with the Zone-A- Lone switch in the occupied (up) position, the board enters the unoccupied mode during the Leave and Sleep programs. This feature requires two extra wires to the Zone 1 thermostat.
Circuit Breaker Protection
A built-in thermal circuit breaker protects the TotalZone panel. This circuit breaker protects the panel against shorts in the thermostat and damper wiring. It does not protect against shorts in the wiring of the HVAC equipment into the panel.
When the circuit breaker is tripped, none of the LEDs illuminate and the yellow rectangular component located left of the R and C terminals is hot to touch. Remove power to the panel for at least five minutes to allow the circuit breaker to cool off and reset. To eliminate the short, verify the dampers and thermostat wiring.
Fan On In Heat
The system blower can be set to come on with a call for heat as required for hydro-air or electric heat systems. Set the blower function using DIP switch 5-6.
When DIP switch 5-1 is set to Off for heat pump control, the panel brings the fan on with a call for heat and a call for cool.
| DIP Switch 5-6 | Fan Control |
| On | HVAC system |
| Off | Fan on in heat |
TotalZone Add-A-Zone Panels
Using TotalZone Add-A-Zone Panels, the system can be expanded to up to 32 zones using TAZ-4 Add-A-Zone panels.
Two wires connect the AZ1 and AZ2 terminals on the TZ-4 to the matching terminals on the TAZ board(s).
See Fig. 15 and the TAZ installation instructions for more information.
TROUBLESHOOTING
Table 8. Troubleshooting.
| Symptom | Possible Cause | Action |
| No LEDs are Illuminated | No power to the board. | Check for 24 Vac (±10%) across R and C. |
| Transformers out of phase | If 48 Vac across R and T1, reverse T1 and T2 wires. | |
| Shorted wire. | Check thermal circuit breaker. If hot, a short exists in thermostat or damper wiring. | |
| Damper LEDs on, but no other LEDs illuminated. | Insufficient voltage. | Check for 24 Vac (±10%) across R and C. |
| Incorrect configuration. | Check jumpers and DIP switches for correct configuration. | |
| Heat pump operates incorrectly or not at all. | Incorrectly wired. | Verify equipment and thermostat terminal wiring. |
| Incorrectly configured. | Verify DIP switch configuration. Verify position of 0/B thermostat type jumper. | |
| Erratic Operation | Emergency Heat switch on. | Turn off (down) Emergency Heat switch. |
| Zone-A-Lone Feature on. | Turn off (up) Zone-A-Lone. | |
| Heat LED flashing. | High limit reached. | LED stops flashing with ten-degree fall and 2-1/2 minute delay. |
| Cool LED flashing. | Low limit reached. | LED stops flashing with ten-degree rise and 2-1/2 minute delay. |
| Purge LED flashes continuously. | DATS or OT problem or not connected. | Verify that DATS and OT (if any) are connected and wired correctly. |
| Add-A-Zone not operating. | Incorrectly configured. | Verify DIP switch settings on the TAZ panels. |
| Incorrectly wired. | Check AZ1and AZ2 for correct wiring. Verify that a separate transformer is used for each TAZ-4 panel. | |
| Be sure that AZ1 and AZ2 are at least 12 in. from line voltage wiring. |
Table 9. LED Indicators.
| LED | Color | Illuminated | Not Illuminated | Flashing |
| Heat | Red | Heat call. | No heat calls. | High limit reached. |
| Cool | Green | Cool call. | No cool calls. | Low limit reached. |
| Purge | Amber | Purge mode. | Not in Purge mode. | • DATS failure: slow flash. • OT failure: fast flash. • DATS and OT failure: alternating fast and slow flash. |
| Fan | Green | Fan only call. | No fan only call. | — |
| EM Heat | Red | Emergency Heat mode or dual-fuel mode. | Not in emergency Heat mode or dual-fuel mode. | — |
| Zones 1,2,3.4 | Green | Damper is open or opening. | Damper is closed or closing. | — |

Automation and Control Solutions
Honeywell
1985 Douglas Drive North
Golden Valley, MN 55422
Honeywell Limited-Honeywell LimitØe 35 Dynamic Drive Scarborough, Ontario M1V 4Z9
![]()
Printed in U.S.A. on recycled paper containing at least 10% post-consumer paper fibers.
68-0259-1 G.H. Rev. 12-02
www.honeywell.com/yourhome



















