TRANE MAYCURB002A Full Perimeter Roof Mounting Curb

ALL phases of this installation must comply with NATIONAL, STATE AND LOCAL CODES
IMPORTANT — This Document is customer property and is to remain with this unit. Please return to service information pack upon completion of work.
Safety Section
WARNING
Only qualified personnel should install and service the equipment. The installation, starting up, and servicing of heating, ventilating, and air-conditioning equipment can be hazardous and requires specific knowledge and training. Improperly installed, adjusted or altered equipment by an unqualified person could result
in death or serious injury. When working on the equipment, observe all precautions in the literature and on the tags, stickers, and labels that are attached to the equipment.
WARNING
HAZARDOUS VOLTAGE!
Failure to follow this Warning could result in property damage, severe personal injury, or death. Disconnect all electric power, including remote disconnects before servicing. Follow proper lockout/tagout procedures to ensure the power cannot be inadvertently energized.
CAUTION
SHARP EDGE HAZARD!
Failure to follow this Caution could result in personal injury.
Be careful of sharp edges on equipment or any cuts made on sheet metal while installing or servicing. Personal injury may result.
General Data
The FULL PERIMETER ROOF MOUNTING CURB (or frame) is to be field assembled with insulation on side and end rails. See Figure 1.
Inspection
Check carefully for any shipping damage. This must be reported to and claims made against the transportation company immediately. Any missing parts should be reported to your supplier at once and replaced with authorized parts only.

Installation Instructions
These instructions are organized for an easy step-by step procedure.
NOTE: These instructions do not purport to cover all variations in system nor to provide for every possible contingency to be met in connection with the installation. Should further information be desired or should particular problems arise which are not covered sufficiently for the purchaser’s purposes, the matter should be referred to the manufacturer.
- Adequate support must be provided beneath the roof mounting curb for the entire length of the curb. The total weight of the unit, curb, and duct, plus any accessories must be considered when selecting and placing the curb on the roof.
- Be sure location of the roof mounting curb will allow needed service clearance around unit when the unit is in place. See Figure 2.
NOTE: The roof mounting curb (frame) not only provides support for the unit, but permits easy penetration of the roof for the connecting ductwork. The roof mounting curb provides for proper flashing and sealing by the roofing contractor as approved by the National Roofing Contractors Association. - Roof Mounting Curb (frame) must be installed on a flat, level section of the roof (maximum of 1/4” per foot pitch), providing a level mounting surface for the unit, even though the roof is not level. If the pitch of the roof exceeds 1/4” per foot, it will be necessary for the contractor to construct a subbase on which to install the roof mounting curb level.
- Do not locate the mounting curb near exhaust vents or other sources of contaminated air that could enter the unit air inlets. Although unit is water proof, guard against water run off from higher overhanging structures.
- Field Fabricated Ductwork – Secure all ducts to building structure. Use flexible duct connectors between curb and ducts.
Ducts passing thru unconditioned space must be insulated and covered with a vapor barrier.

Roof Mounting Curb and Supply/Return Size Required Air Opening
Important: The opening must be covered temporarily to prevent anyone or anything from falling thru the opening. Follow this safety precaution when working in other areas of installation, and leaving the job site overnight for any extended period of time.
- All duct work must be installed in accordance with the National Fire Protection Association Standards No. 90A and 90B.
- Remove only that portion of the roof deck to permit the installation of field fabricated air ducts.
Roof decking remaining beneath unit base pan will reduce sweating on bottom of unit base pan during high humidity conditions. - All components are used to assemble roof curb. See Figure 4 for components of curb.
SERVICE CLEARANCE DIMENSIONS A B C D 12” 18” 24” 48” 
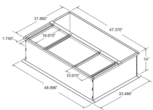
Figure 3. Full Perimeter Roof Mounting Curb Outline

Roof Mounting Curb Assembly
The Roof Mounting Curb is shipped disassembled with the components to be assembled on the job site as illustrated. See Figure 4 for list of components before starting job.
- Remove the components of the mounting curb from packing and separate pieces from each other.
- Lay out separate pieces on flat surface close to area where it will be used. See illustrations to determine proper placement of parts. Assemble by snapping the tabs on Channel End Rails, into the slots on Channel Side Rails, the mating parts of the mounting curb. When properly sealed, the tab will lock into place.
- Set supports A and B onto channel sides and channel ends as shown in Figure 4.
Important: The curb does not have insulation on inside perimeter of curb. To prevent condensation from forming on the inside surface of the curb, insulate and seal the outside surface of the curb as shown in illustration. If the roof deck is removed or omitted from the entire inside area of the roof curb, insulation should be secured to the bottom of the unit base pan to prevent condensation from forming. Insulate the bottom of the condenser section of the unit base pan after the unit has been placed on the curb. Glue a 1” thick foil covered fiberglass duct board or equivalent to the bottom of the unit base pan, with foil side out. Do not use water base glue.Figure 4. Component Drawing

- Place Mounting Curb assembly over hole cut in roof.
Square the Curb by measuring from one corner diagonally to the opposite corner. Repeat this measurement of opposite corners and adjust the Curb until the measurements are the same.
NOTE: The top of the Supports must be flush with the top of the Side Rails to insure a good water and air seal against the bottom of the unit. - Secure Mounting Curb assembly to roof structure by welding or bolting.
- Install flashing and roofing in accordance with local codes. A typical section of insulation, roof, and mounting curb is shown in Figure 5.
NOTE: If unit is not ready to be set into position at this time, stop work on mounting curb at this point. When unit is ready to set into position, and just prior to setting unit, complete installation. - Field Fabricated Ducts are to be installed from above mounting curb, they should be installed at this time. See Figures 7 and 8 for installation illustrations.
- Apply a bead of architectural grade caulking (field supplied) at corners of curb to seal all voids, preventing water leaks.
Figure 5. Curb Roofing


Side x Side Ducts Installed from Above Mounting Curb
Lower Field Fabricated Ducts into position on Duct Supports. See Figures 7 and 8. Make assembly secure with sheet metal screws.

- P.V.C. gasket to be applied to curb as shown in just prior to setting unit on the mounting curb.
- P.V.C. rubber gasket (supplied with curb) must be applied in continuous strips of overlapped 1” minimum for complete watertight seal.

NOTES
- Overlap and position joints in P.V.C rubber gasket
- Air Seals – Apply P.V.C rubber last to insure there is adequate P.V.C. for the water seal.
- Use typical sealing methods to prevent air duct leakage at curb-duct joint.
- Apply gasket on top of side flanges of duct.
About Trane and American Standard Heating and Air Conditioning
Trane and American Standard create comfortable, energy efficient indoor environments for residential applications. For more information, please visit www.trane.com or www.americanstandardair.com
The manufacturer has a policy of continuous data improvement and it reserves the right to change design and specifications without notice. We are committed to using environmentally conscious print practices.
Representative-only illustrations included in this document.
88-MACC018-1A-EN 02 Feb 2022 Supersedes (New)
























