MONTIGO DL6315NI RX 200 Control Module Installation Guide
- The installation of this fireplace must be done by a qualified and certified gas appliance installer.
- Check local codes and read all instructions prior to installation.

WARNING:
FIRE OR EXPLOSION HAZARD
Failure to follow safety warnings exactly could result in serious injury, death, or property damage.
- Do not store or use gasoline or other flammable vapors and liquids in the vicinity of this or any other appliance.
- WHAT TO DO IF YOU SMELL GAS
- Do not try to light any appliance.
- Do not touch any electrical switch; do not use any phone in your building.
- Leave the building immediately.
- Immediately call your gas supplier from a neighbour’s phone. Follow the gas supplier’s instructions.
- If you cannot reach your gas supplier, call the fire department.
- Installation and service must be performed by a qualified installer, service agency or the gas fitter.
CAUTION
Ensure that all power to the appliance is off at the electrical breaker or fuse before beginning installation. Ensure gas is turned off at the shutoff valve before beginning installation.
WARNING
When installing the fireplace – gas lines, fittings, accessories or any other objects cannot impede the proper movement of the door buckles.
WARNING
Some materials used in the manufacturing process of this product can expose you to Benzene which is known in the State of California to cause cancer and birth defects or other reproductive harm. For more information go to www.P65warnings.ca.gov
| KIT # | Contents |
| RX200NG RX300NG | Control Module, Remote Control, Stepper Motor-NG, Manual Override switch with harness and bracket, backup battery pack, Proflame 2 operations manual, hardware and batteries. |
| RX200LP RX300LP | Control Module, Remote Control, Stepper Motor-LP, Manual Override switch with harness and bracket, backup battery pack, Proflame 2 operations manual, hardware and batteries. |

Figure 1 Contents of Proflame 2 Upgrade Kit

Figure 2 Fireplace front cover
GENERAL INFORMATION
This upgrade kit contains the necessary components for field upgrade of an approved Montigo fireplace from Proflame 2 basic control system to Full Load with remote.
The installation of this unit must also conform with local codes or, in the absence of local codes, with the American National Fuel Gas Code, ANSI Z223.1, or the Canadian Installation Code, CAN / CGA B149.
WARNING
This upgrade kit shall be installed by a qualified service agency in accordance with the manufacturer’s instructions and all applicable codes and requirements of the authority having jurisdiction. If the information in these instructions are not followed exactly, a fire, explosion or production of carbon monoxide may result causing property damage, personal injury or loss of life. The qualified service agency is responsible for the proper installation of this kit. The installation is not proper and complete until the operation of the converted appliance is checked as specified in the manufacturer’s instructions supplied with this kit.
Note
Upon successful installation of this upgrade kit, the following features are available for the user:
- Thermostatic and smart thermostatic control of the fireplace
- Main burner flame modulation (6 levels)
- Choice of Standing or Intermittent pilot (CPI switch or jumper required)
- Comfort fan speed modulation (Remote Fan Kit RFK3002R or RFK3004R required)
- Battery backup for the main burner during power outage
Before You Begin
Ensure that the power supply has been turned off at the breaker or fuse before beginning the installation.
Shut off the gas supply at the shut-off valve, and ensure that the main burner and pilot light have been turned off and the fireplace has been cooled off for at least two hours before installation.
Tools Required
- T20 Torx bit
- Impact gun / Drill
- 1/4 ” Nut driver bit
Note: You may remove the front cover (See Figure 2), or the burner assembly to access the control module and wiring. If removed, please ensure it is re-installed properly and all gas connections are leak tested.
Disconnect Control Module and Harness
- Disconnect Control Module Powercord from the PPO box.

Figure 3 Powercord in PPO box - Disconnect Spark Wire and Sensor Wire from connectors X2 and X3 of the control module.
- Disconnect the wall switch harness from X4 Control Module and discard.

Figure 4 Control module with wires - Remove the Valve Harness from X5 of the control module.

Figure 5 X5 plug of control module - Remove the connector from X1 of the control module.

Figure 6 X1 plug of control module - Remove the control module from firebox compartment and discard. Note: module is attached by velcro strips.
Stepper Motor Installation
- Using a Torx T20 or slotted screw driver, remove the two screws that are attached to the Hi-Low knob on the Gas Control Valve (Figure 7) and discard the screws and the knob. Remove gasket and discard.

Figure 7 Replace Hi-Lo knob on valve
Figure 8
Figure 9 Stepper Motor – LP
Figure 10 Stepper Motor – NG - Ensure the prefitted rubber gasket is properly positioned (Figure 11 – D). Otherwise, fit the gasket as shown

Figure 11 Stepper Motor Installations - Position the stepper motor on the gas control valve as shown in Figure 12 – E.
- Manually thread the two supplied mounting screws into the valve body. Use a torque screw driver with Torx T20 bit, to tighten the two screws to a torque setting of 25 lb-in +/- 5%.
- Install the enclosed identification label to the valve body Figure 12 – G.

Figure 12 Label Installation
Figure 13 Identification Label – NG
Figure 14 Identification Label – LP
Control Module Installation
- Position the new control module on the fireplace floor ( the red switch “SW1” must be towards the front of the fireplace).

Figure 15 New Control Module - Connect the Power Plug to X1

Figure 16 X1 plug on control module - Connect the Spark and sensor wires to X2 and X3
- Connect the Manual ON/OFF switch to X4
- Connect the Valve Harness to X5
- Connect the Stepper motor harness to X6
- Attach the Control module to the bottom of the firebox using the velcro strips supplied.

Figure 17 X2 > X6 plugs on control module
Main ON/OFF Switch Installation
- Position the Main/off Switch bracket on the right leg of the firebox.
- Using the two selftapping screws supplied attach the bracket.
- Feed the switch and the wires through the slot in the bracket as shown and install the switch to the bracket. See Figure 21.
- Secure the wires to the floor of the fireplace using the supplied cable tie and cable tie mounts.
- Attach the “Main ON/OFF” sticker supplied to the switch bracket.

Figure 18 Attach switch bracket to front of fireplace
Figure 19 Attach switch bracket to front of fireplace
Figure 20 Attach switch to bracket.
Figure 21 Attach switch to bracket.
Battery Holder Installation
- Secure the battery holder to the fireplace floor using the supplied velcro strips. See Figure 22.
Note: The velcro strips act as an electrical isolation, do not attach the battery holder to any metal part without using the velcro strips, or the control module will be damaged. - Connect the red and black wires from the battery holder to the red and black wires from the valve harness. See Figure 23.

Figure 22 Battery holder
Figure 23 Battery holder wires
Operation with Backup Battery
- Install the four supplied AA batteries to the battery holder.
CAUTION: Please note battery orientation while installing them. Incorrect orientation may damage battery, cause fire hazard and the fireplace may not function properly. - Follow the instructions on the “Proflame2 Operation and Maintenance Manual- XG0677” to install batteries on the remote control.
- Turn the gas supply ON.
- Program the remote control to the control module (see “Proflame2 Operation and Maintenance Manual- XG0677”).
- Check the stepper motor for gas leaks and ensure no leak.
- Turn the fireplace ON and modulate the flame using the remote control and ensure proper operation (see “Proflame 2 Operation and Maintenance Manual XG0677”).

Figure 24 Proflame Remote Control
Operation with MAIN Power
- Remove the four batteries from the battery holder
- Plug the Control Module Power cord to PPO box. See Figure 3.
- Turn the fireplace ON using the remote control and confirm operation with main power ON.
Note: You may re-install the backup batteries to the battery holder at this point to ensure that fireplace is operational during power outage. It is recommended to check and replace the backup batteries at least once a year. More frequent battery replacement may be required in case of extended operation on backup batteries.
“Why use CPI mode”?
There are several reasons why you may choose to use CPI mode. When a flue is cold it can be difficult to light the appliance. It can take a bit of time (particularly on tall vents) to initialize vent action. This can result in “lifting” or “ghosting” of the flames during the first two to three minutes of operation. It is also possible to encounter times when the fireplace fails to light successfully. The fireplace will then attempt to re-light a second or third time depending on prevailing temperatures or altitude. When in CPI mode the pilot also keeps the system warm. During a “cold” start, condensation will normally form on the inner glass surface of the door. This condensation will quickly dry, however, the condensation tends to run down the glass and cause some streaking. CPI mode helps to resolve this issue. If CPI mode is used during the winter months the energy it takes to run the pilot is partially recovered as heat into the building, so it does not waste as much energy as running a pilot in the off season.
A connector is supplied with this unit that can be plugged into the wire harness connected to the controller. This Jumper Cable gives the Remote Control the ability to operate the CPI / IPI switch and set the unit to operate in either condition. CPI means “Continuous Pilot Ignition” or “Standing Pilot” as it is commonly known. IPI means “Intermittent Pilot Ignition”, which only initializes the pilot when you are going to be using the appliance.
The difference between IPI and CPI
IPI (Intermittent Pilot Ignition) Mode: is a fuel saving mode in which the pilot is only used when the main burner is on.
CPI (Continuous Pilot Ignition) Mode: The pilot runs continuously even when the main burner is off. (Typically only used for winter months)
Installing the CPI Jumper Cable
- Open the control box drawer.

Figure 19. Open the control box drawer - Remove the bag containing the Jumper Cable from the wire harness connected to the controller.

Figure 19.b Locate Jumper cable - Find the corresponding plug attached to the control wire harness and connect the CPI jumper.

Figure 19.c Connect CPI - See operation section to turn remote into CPI mode.
Adding options to DL units requires control board upgrades for the following options
Fan Kit DFK-3
LED Kit MCLEDDL63
Remote Control
Stepper Motor
Powervents
When upgrading the Distinction control board, the board will be shipped with the board installed in the drawer and with the appropriate cables installed.
- Remove existing basic board drawer by unplugging all existing connections.

Figure 24. Remove existing basic board - Unplug PPO from board located underneath the pilot assembly. Disconnect the ground and remove drawer completely.

Figure 24.b Remove existing basic board - Discard old drawer and wall switch and valve wires.
- New Board.

Figure 24.c Proflame2 Board
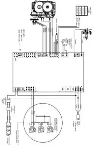
D6315 (ST) (N/L) I-2 Wiring Diagram
Figure 24.d D6315 (ST) (N/L) I-2 Wiring Diagram - Feed On/Off switch through drawer frame

Figure 24.e On/Off switch through drawer - Feed Fan, LED, PPO, and pilot wires through drawer frame.

Figure 24.f Fan, LED, PPO, and pilot wires through drawer - Disconnect On/Off switch and feed cable through drawer frame. Install in space on left inner wall

Figure 24.g On/Off switch - Place Fan wire on leftside firebox floor with adhesive wire pad. For fan Install instructions see Optional fan kit Install/Replace instructions

Figure 24.h Fan wire - Place on LED wire on rightside firebox floor with adhesive wire pad. For LED Install instructions see Optional LED kit Install/ Replace instructions

Figure 24.i LED wire - Loop Pilot wires from behind control board drawer to the front. Plug into X2 and X3

Figure 24.j Pilot wires - . Valve wires are plugged into the valve in the Green, Red, and yellow ports respectively.

Figure 24.k Valve wires
Verify that the following items are present in the package.
- Pressure regulator assembly (E)
- Two (2) screws (F)
- Identification label (G)
- Installation instructions
- Shut off the gas supply to the valve and shut down the electric supply
- Using a Torx T20, or slotted screwdriver, remove and discard the two (2) pressure regulator mounting screws (A), pressure regulator tower (B), and the spring and diaphragm assembly (C), (If applicable).
- Access gas valve by removing the valve blind
- Ensure the rubber gasket (D), which is prefitted as part of assembly (E), is properly positioned, otherwise fit the gasket as shown.
- Install the new STEPPER MOTOR pressure regulator assembly, as shown in Fig. 3 and Fig. 4. Use the supplied screws (F)
- Manually thread the two conversion kit mounting screws into the valve body. Use a standard screwdriver or T20 Torx bit and tighten to the screws with a fixing torque of 251b-in ± 5%. IN THE EVENT THAT THE THREADS OF THE VALVE ARE STRIPPED OR DAMAGED, REPLACE THE VALVE.
- Install the enclosed identification label (G) to the valve body where it can be easily seen.
- Make STEPPER MOTOR and valve electrical connections, apply gas to system and relight appliance according to manufacturers instructions.
- With the main burner “ON”, test the new pressure regulator assembly for leaks using a soap solution.
- Relight the main burner and verify proper burner ignition and operation
WARNING!
Do not use power drill.
WARNING!
Installation should be carried out in a clean environment.
WARNING!
This modulating conversion kit must ONLY be applied as part of a
conversion kit supplied by montigo for the specific appliance, and type
of fuel, being converted.
WARNING!
Correct operation of the system cannot be guaranteed if the conversion kit or valve has been dropped or has sustained a strong impact.























































