SFE-220400 Sauna Safety Switch
Instruction Manual
SFE-220400 Sauna Safety Switch
These instructions for installation and use are intended for the owner or the person in charge of the sauna, as well as for the electrician in charge of the electrical installation of the safety switch, control unit, and heater. After completing the installation, the person in charge of the installation should give these instructions to the owner of the sauna or to the person in charge of its operation. Please read the instructions for use carefully before using the heater.
The safety switch is designed to cut power to the heater, should it be covered with any objects. It not to be used for any other purpose.
Congratulations on your safety equipment choice!
Guarantee:
- The guarantee period for heaters and control equipment used in saunas by families is two (2) years.
- The guarantee period for heaters and control equipment used in saunas by building residents is one (1) year.
- The guarantee period for heaters and control equipment used in saunas by institutions is three (3) months.
- The guarantee does not cover any faults resulting from failure to comply with installation, use or maintenance instructions.

Contents of the package
Following items are included in the package:
- Safety switch
- Silicon cable
- Fastening accessories
- Instructions for installation and use
INSTRUCTIONS FOR INSTALLATION AND USE
The safety switch is designed to cut off power from a heater, should e.g. a towel or a piece of clothing be placed or fall on it, causing a serious fire hazard if the heater stays on.
Compatible heaters
The safety switch SFE is designed and tested to function with heaters listed in Table 1.
| Safety switch model | |||||||
| Heater Ofen | Output Leistung | SFE- 220400 | SFE- 350400 | SFE- 500500 | SFE- D350 | SFE- D450 | SFED530 |
| Cilindro | 7 – 11 kW | x | |||||
| Cilindro Pro | 10 – 13,5 kW | x | |||||
| Cilindro Pro | 16,5 – 20 kW | x | |||||
| Club | 11 – 15 kW | x | |||||
| Club Combi | 11 – 15 kW | x | |||||
| Concept R | 9 – 15 kW | x | |||||
| Concept R Combi | 9 – 10,5 kW | x | |||||
| Concept R Mini | 3,5 – 7,5 kW | x | |||||
| Concept R Mini Combi | 3,5 – 7,5 kW | x | |||||
| Elegance | 10,5 – 18 kW | x | |||||
| Figaro | 7 – 9 kW | x | |||||
| Glow | 7 – 9 kW | x | |||||
| Home fin | 4,5 – 9 kW | x | |||||
| Home Combi | 6 – 9 kW | x | |||||
| Home Premium | 7 – 11 kW | x | |||||
| Home Premium Combi | 7 -11 kW | x | |||||
| KIP | 6 – 9 kW | x | |||||
| Legend | 11 – 16,5 kW | x | |||||
| Moderna | 4,5 – 8 kW | x | |||||
| 220×400 mm | 350×400 mm | 500×500 mm | D 350 mm | D 450 mm | D 530 mm | ||
A heater equipped with a correct size SFE safety switch (see Table 1) passes the covering test defined in the safety standard EN 60335-2-53 section 19.101, and it can be used with a control unit that has a remote use function.
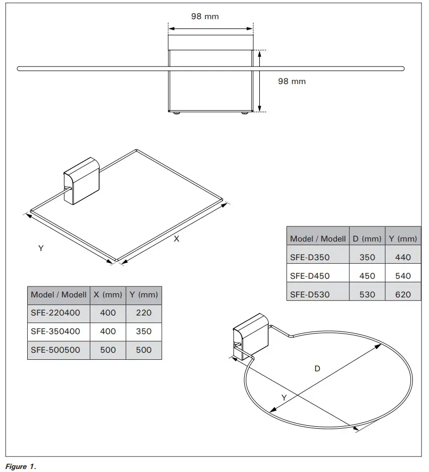
Measurements and distances
See Figure 1.

Mounting
Before installation, make sure that the safety switch is suitable for your heater’s model and output. The switch must be of correct size to comply with the safety standard EN 60335-2-53 and reliably switch the heater off.
Mounting position of the safety switch
For the safety switch to operate reliably, it must be mounted high enough above the heater and heater stones. In the correct position the safety switch’s rim can be lowered to its downmost position without it touching the heater or stones (see Figure 2).
NOTE:
If the safety switch is mounted too high, the space between the rim and the heater may accommodate objects that create a fire hazard.
The safety switch must be aligned to the center line of the heater (see Figure 3, section 2). If the safety switch cable is run behind wall panels, mark a hole through the safety switch’s back plate before mounting the safety switch. Drill a hole to the wall panel and run the cable through to your control unit.


Do not press the safety switch rim below 45 degrees angle with the cover removed. The rim’s retainer springs may be damaged.
- Open the casing screws and lift the case off.
- Note that the safety switch must be aligned to the heater’s center line. Mark the correct position to the panel (pay attention also to the correct installation height, see Figure 2) and fasten the safety switch with attached screws.
- Adjust the rim to be horizontally level with the adjustment screw.
- Replace the case and secure it with screws. Make sure that the safety switch rim moves freely.
Connecting the safety switch
The connections must be carried out by a qualified electrician in accordance to local regulations.
The connecting cable can be extended with following conditions:
- a high temperature silicon cable (rated for at least 150 °C) is used
- the cable has a cross-sectional area of 0,5 mm 2
- the total length of the cable does not exceed 20 meters.
Control units with connectors for safety functions (eg. Harvia Xafir and Xenio from 2018): - Attach one lead from the safety switch’s cable to terminal X15 (N) and another to terminal

Sentiotec control units with connectors for safety functions:
- Attach the leads to the contol unit’s safety device terminals (see the control unit’s manual for further information).
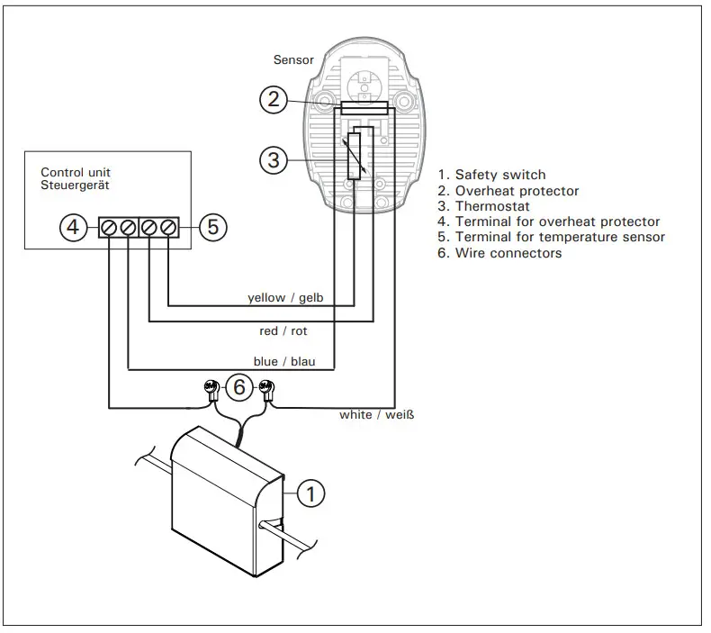
Sentiotec control units without connectors for safety functions: - Attach the leads to the heater overheat protector circuit according to Figure 5.
Control units without terminals for safety functions:
- Attach the cables to the heater’s overheat protector circuit (see Figure 6).

Figure 6. Wiring diagram for control units with no terminals for safety functions.
In control units with no terminals for safety functions, pressing the safety switch’s rimcauses an error state which always requires
Using the safety switch
The safety switch’s fault-free operation must betested after installation.
- Make sure that the safety switch’s rim can pivot freely without touching the stones or the heater.
- Turn on the control unit.
- Press the safety switch rim down.
- The heater should be switched off by the control unit. Additionally (depending on the control unit model) an error message may be shown.
- Check also (depending on the control unit model) if possible remote use modes have been deactivated.
SPARE PARTS

| # | Part number | Spare part |
| 1 | Y08-0008 | Micro switch |
| 2 | Y06-0023 | Spring |
P.O.Box 12
Teollisuustie 1-7
40951 Muurame
FINLAND
+358 207 464 000
[email protected]




















