GAZCO Studio Slimline Range Zero Clearance Box

Instructions for Installation
IMPORTANT
These products are only for use with the Studio Slimline products listed and must be installed and used in accordance with these instructions. This manual is to be read in conjunction with the Studio Slimline Installation Instructions (PR2015).
GENERAL
This manual has been designed to show the installation methods available when installing a Studio Slimline with the Gazco Zero Clearance Box.
Please carefully read in conjunction with the Installation Instructions for the Studio Slimline making sure the appropriate method is understood before attempting to install the product.
KIT CONTENTS
- 1 x Installation Instructions (PR2268)
- 1 x A4 Self Sealing Bag
Box Fixings:
- 4 x Universal Rawl Plug
- 4 x 1/2″ Recessed Pozi Screw
- 2 x M5 Pozi Screw
Frame Fixings:
- 2 x Retaining Clip
- 4 x M5 Pozi Screw
APPLIANCE LOCATION
NOTE: THIS APPLIANCE HAS BEEN PRIMARILY DESIGNED TO BE RECESSED INTO THE INTERNAL BRICKWORK OF A STANDARD CAVITY WALL. HOWEVER, IT IS ALSO POSSIBLE TO INSTALL THE APPLIANCE INTO A FALSE CHIMNEY BREAST CONSTRUCTED OF STUDWORK AND PLASTERBOARD CLADDING.
BUILDINGS CLAD IN COMBUSTIBLE MATERIAL ONLY:
IMPORTANT: REAR FLUE INSTALLATION
When fitting the appliance with a rear flue terminal it is essential to observe distances to combustible material when flue passes through a combustible wall. Ensure the terminal is suitably protected if fitting to an external combustible structure. There is a fixing kit available from Gazco (Part No 999-220). DO NOT INSTALL DIRECTLY ONTO A COMBUSTIBLE SURFACE.
- If this appliance is fitted at floor level (giving a visible opening located 193mm from the floor) then it will require a hearth to protect the floor.
- The hearth should have a minimum non-combustible thickness of 12mm, projecting 300mm in front and 150mm either side of the base of the appliance.
- This appliance must stand on a non-combustible platform that is at least 12mm thick.
- This can be made from brickwork or using non-combustible board.
- Using the Zero Clearance Box the appliance can only be finished with the decorative frame supplied.
- It will be necessary to remove the appliance subframe prior to installation, see installation instructions provided. here are two methods of installation:
- Masonry Installation
- Studwork Installation
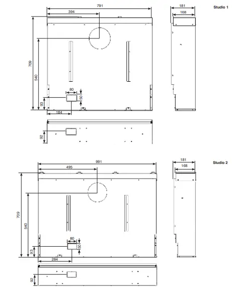
TECHNICAL SPECIFICATION
DIMENSIONS

FRAME DIMENSIONS

| MODEL | STUDIO 1 SLIMLINE | STUDIO 2 SLIMLINE | |
| A | 940 | 1140 | |
| B | 615 | 615 | |
| C | 739 | 939 | |
| D | 414 | 414 | |
| E | GLASS | 31 | 31 |
| STEEL | 27 | 27 | |
| F | 20 | 20 | |
| G | 99 | 99 | |
| H | 417 | 417 | |
| I | 99 | 99 | |
INSTALLATION
MASONRY INSTALLATION
This method of installation requires structural alteration to the intended location. A suitable supporting lintel must be installed to maintain the structural integrity of the surrounding blockwork.
The Masonry Installation is finished with a Decorative Frame. Carefully read and understand the installation section before proceeding.
Mark the position of the lintel so that it sits centrally over the intended installation. Remove the blockwork and install the lintel using mortar to ensure a strong bond with the surrounding wall.
| MODEL | STUDIO 1 SLIMLINE | STUDIO 2 SLIMLINE |
| A | 801mm | 1001mm |
| B | 719mm | 719mm |
| C | 153mm | 153mm |
With the lintel in position mark the width of the aperture and remove the blockwork.
Remove wall finish (eg plaster) from the area shown in diagram to the size of the appliance and lintel area.
It is recommended a larger area is removed above the opening so that when reapplying plaster joints are outside the heat zone.

Consider the final flue position ensuring that all required clearances are complied with, see Installation Instructions, Site Requirements.
Mark the position of the flue on the wall by measuring from the top of the finished hearth level/ base of the appliance.

A 152mm (6″) diameter hole is required to install the flue. This can be achieved by either:
- Core drill
- Hammer and chisel
It is advisable to drill small holes around the circumference when using method b. Make good both ends of the hole.
Prepare gas supply and cable.
If installing into a cavity, no joints should be within the cavity and the pipe must be sleeved. Refer to gas installation requirements.
Install the battery cable and wall plate box.
Gazco recommend that the cable is installed through conduit or similar to give protection and allow for future servicing.
When deciding the route of the cables consideration must be given to avoid contact with the appliance and the flue system.
IMPORTANT – Do not run the battery cable up the side of the appliance outer casing.
See Installation Instructions for wall box and batteries installation.
The wall box must be installed using a non-metallic mounting box, please ensure that the plastic dry lining box is used where possible. For masonry installation it is possible to drill through the rear of the box and secure in position using wall plugs and screws although a small amount of finishing work will be required to cover the plastic side securing tags. Alternatively a standard 45mm (or greater) deep patress box can be used to surface mount the wall plate.
Fit the Zero Clearance Box into the builders opening.
The two standoffs on top of the box are to ensure sufficient air circulation around the appliance.
Ensure nothing is closer than these two points.

The fitted box will protrude 28mm from the opening.
This allows for the wall to be finished with a sheet of 12mm plasterboard≠≠ and a 3mm skim of plaster up to the first protruding edge.

Secure with 4 x 1/2″ bolts through the holes in the sides and base of the box.
Remove the lower plate.
Make sure rubber seal on the inner spigot is not damaged, it may be necessary to lubricate the seals with washing up liquid (or similar) to ease assembly.

Remove engine and burner assembly.
NOTE: Before fitting the Studio Slimline it will be necessary to remove the subframe from the appliance. Carefully read installation instructions
(PR2015) provided.
The subframe is not required for installation with the Zero Clearance box.
Slide the appliance into the box taking care to fit the flue into position.
Secure through the base of the appliance using the fixing screws supplied.

Attach the front panel to the Zero Clearance Box.

Finish the wall to the first protruding edge top, bottom and sides using plasterboard* and a plaster skim.
Note: This will leave an exposed metal face which will be covered by the decorative frame.
Do not finish up to the flange for the frame.

Proceed to Fitting The Frame Section (page 8).
STUDWORK INSTALLATION
Build the studwork chimney breast and enclosures to the desired size including the protected platform at the required height.

| MODEL | STUDIO 1 SLIMLINE | STUDIO 2 SLIMLINE |
| A | 801mm | 1001mm |
| B | 719mm | 719mm |
| C | 153mm | 153mm |
The Studwork Installation is finished with a Decorative Frame. Carefully read and understand the installation section before proceeding.
Consider the final flue position ensuring that all required clearances are complied with, see Installation Instructions, Site Requirements.
Mark the position of the flue on the wall by measuring from the top of the finished hearth level/ base of the appliance.

A 152mm (6″) diameter hole is required to install the flue. This can be achieved by either:
- Core drill
- Hammer and chisel
It is advisable to drill small holes around the circumference when using method b. Make good both ends of the hole.
Prepare gas supply and cable.
If installing into a cavity, no joints should be within the cavity and the pipe must be sleeved. Refer to gas installation requirements.
Fit the Zero Clearance Box into the builders opening.
The two standoffs on top of the box are to ensure sufficient air circulation around the appliance.
Ensure nothing is closer than these two points.

The fitted box will protrude 28mm from the opening. This allows for the wall to be finished with a sheet of 12mm plasterboard and a 3mm skim of plaster up to the first protruding edge – see page 8 or more details.

Secure with 4 x 1/2″ bolts through the holes in the sides and base of the box and into the studwork.
Remove the lower plate.
Make sure rubber seal on the inner spigot is not damaged, it may be necessary to lubricate the seals with washing up liquid (or similar) to ease assembly.

Remove engine and burner assembly.
NOTE: Before fitting the Studio Slimline it will be necessary to remove the subframe from the appliance. Carefully read the installation instructions (PR2015) provided).
The subframe is not required for installation with the Zero Clearance box.
Slide the appliance into the box taking care to fit the flue into position.
Secure through the base of the appliance using the fixing screws supplied.

Attach the front panel to the Zero Clearance Box.

Finish the wall to the first protruding edge top, bottom and sides using plasterboard and a plaster skim.
Note: This will leave an exposed metal face which will be covered by the decorative frame.
Do not finish up to the flange for the frame.

Commission the appliance as described in the main installation instructions.
FITTING THE FRAME
The Zero Clearance box is supplied with a choice of bespoke frames, however the fitting method is the same for both.
The frame consists of two parts – a subframe and a decorative inner frame.
FITTING THE SUB-FRAME
Offer the subframe to the Zero Clearance Box.
The tabs with fixing holes on each side must go outside the box wall.

Secure on each side with 2 fixing screws.
Before fitting the top screws, retaining brackets must be used to hold back the Zero Clearance Box.
NOTE: When fitting the retaining brackets it is essential to push the brackets as far back into the slots of the Zero Clearance Box as possible. Maintain pressure whilst securing with the screws to ensure the box is in the correct position.

FITTING THE INNER-FRAME
ZC Glass Only
The inner frame has a specific orientation. Ensure the tab on the rear of the frame is at the top when fitting.

All models
Offer the Inner frame in an upright position to the subframe.

Push the four studs on the Inner frame into the catches on the subframe.

The inner frame is held securely and can be pulled off if servicing requires.

NOTE: IT IS POSSIBLE TO FIT/REMOVE THE DECORATIVE FRAME WITH THE WINDOW FRAME ASSEMBLY IN POSITION, HOWEVER IT IS EASIER TO DO THIS OPERATION WITH THIS REMOVED – SEE INSTALLATION INSTRUCTIONS FOR DETAILS.
TAKE CARE NOT TO MARK THE DECORATIVE FRAME WHEN REMOVING/FITTING THE WINDOW FRAME ASSEMBLY.
FOR ENQUIRIES IN THE U.K (EXCLUDING NI):
Gazco Limited, Spitfire Avenue,
Skypark, Clyst Honiton, Exeter,
Devon, England EX5 2FR
Tel: (01392) 474011
E-mail: [email protected]
FOR ENQUIRIES IN EUROPE (INCLUDING NI):
Stovax Heating Group (NI) Ltd (Comp reg NI675194),
40 Linenhall Street, Belfast,
BT2 8BA DX 400 NR Belfast
Tel: +44 (0)1392 261990
E-mail: [email protected]



















