VISA LIGHTING CM1980-W Symmetry Ceiling Light

When using electrical equipment, basic safety precautions should always be followed, including the following:
- Read all instructions carefully before installing and save for future use.
- Make sure all connections are in accordance with the National Electrical Code and local regulations.
- To avoid possible electric shock, be sure the power supply is turned off before servicing or installing the fixture
- Service should be performed by qualified personnel.
- These instructions may not cover all details or variations. If additional information is needed, please contact Visa Lighting
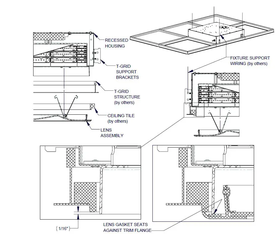
LENS AND TRIM FRAME ASSEMBLY

DIMENSIONS

T-BAR GRID INSTALLATION

- Remove trim flange, driver/wiring cover and LED lamp plate.
NOTE: See Sheet 4 for details. - Install the remaining recessed housing into the T-bar grid system by lifting the fixture through the opening and lowering it onto the T-bar grid.
- Adjust the corner brackets so the trim flange protrudes from the ceiling tile face by 1/16″. Adjust if necessary.
- Support the fixture with wires attached to the building structure per code.
- NOTE: if a thermal protector is present, the fixture MUST NOT come in contact with insulation.
SHEETROCK INSTALLATION

- Provide a framed opening for centering the fixture. The recessed housing opening should measure 23-3/4″. This will help support the fixture when it is fully installed.
- Remove lens and trim frame. Reattach the trim frame screws to the recessed housing for use later. The lens and trim frame are not reinstalled until all sheetrock work is completed.
- Remove driver/wiring cover, and LED lamp plate.
- Secure the fixture to the structure with mounting screws (by others) through the slots located in the recessed housing. Adjust the fixture so the bottom of the recessed housing is 1-3/8″ above the bottom of the finished surface.
- NOTE: See Sheet 6 for the alternative method of securing the recessed housing to an above structure using struts and threaded rods (by others).
- Make all the electrical connections required per applicable local codes.
- Complete sheetrock installation.
- Once sheetrock installation is completed, cut circular opening for trim frame.
NOTE: Opening diameter to be 22-5/16″ to 22-9/16″. Use the trim flange as a guiding edge to assist. - Reattach the LED lamp plate and secure to (4) standoffs in recessed housing.
- Reattach the trim flange to the recessed housing. NOTE: The trim flange must protrude from the sheetrock face by 1/16″. Adjust if necessary. NOTE: See Sheet 3 for details.
- Reattach the driver/wiring cover, and lens assembly.
- NOTE: if a thermal protector is present, the fixture MUST NOT come in contact with insulation.
ALTERNATE SHEETROCK INSTALLATION
- Follow instructions on Sheet 4 except for threaded rod support shown above.
- Adjustment to fixture height is done at the threaded rods from inside the fixture.

THERMAL PROTECTOR INSTALLATION (when supplied):

- The thermal protector is shipped taped to the side of the housing to prevent damage in shipment.
- After installation into the T-bar grid system, remove the tape and push the thermal protector into the hole in the housing until it snaps in place.
CAUTION: The thermal protectors must not contact the T-bar grid system.
FIXTURE FIELD WIRING
FOR OVERBED MODEL (CM1980-W):
BOTH AMBIENT AND EXAM CIRCUITS MUST BE ENERGIZED TO ACHIEVE EXAMINATION LUMEN VALUES

1717 West Civic Drive Milwaukee, WI 53209 414-354-6600 Design Modification Rights Reserved © Visa Lighting 2016
















