kleenmaid CCTB6020 Ceramic Cooktop

To register your warranty or make a warranty claim, scan this QR code

Dear Customer, Thank you and congratulations for choosing Kleenmaid. Your new appliance has been designed and meticulously tested to ensure that it meets all your culinary requirements, and has been carefully manufactured using top quality materials to give you years of reliable performance. For best results, carefully read the instructions on how your new appliance is to be installed. Correct installation will avoid delays and unnecessary service call costs. Once installation is complete, please read this instruction manual carefully and get to know the controls and the features of your new Kleenmaid appliance. These simple instructions will enable you to achieve excellent results from the very first time you use it. Again, congratulations and thank you for choosing The Best You Can Own. KLEENMAID
Safety Warnings
Your safety is important to us. Please read this information before using your cooktop. NOTE: Before making preparations for or commencing installation, the installer should refer to the current online version of the User Manual, which is available on the Kleenmaid website (see back cover for details).
Installation Warnings
Electrical Shock Hazard
- Disconnect the appliance from the mains electricity supply before carrying out any work or maintenance on it.
- Connection to a good earth wiring system is essential and mandatory.
- Alterations to the domestic wiring system must only be made by a qualified electrician.
- Failure to follow this advice may result in electrical shock or death.
Cut Hazard
- Take care – panel edges are sharp.
- Failure to use caution could result in injury or cuts.
Important safety instructions
- Read these instructions carefully before installing or using this appliance.
- No combustible material or products should be placed on this appliance at any time.
- Please make this information available to the person responsible for installing the appliance as it could reduce your installation costs.
- In order to avoid a hazard, this appliance must be installed according to these instructions for installation.
- This appliance is to be properly installed and earthed only by a suitably qualified person.
- This appliance should be connected to a circuit which incorporates an isolating switch providing full disconnection from the power supply.
- Failure to install the appliance correctly could invalidate any warranty or liability claims.
Operation and Maintenance Warnings
Electrical Shock Hazard
- Do not cook on a broken or cracked cooktop. If the cooktop surface should break or crack, switch the appliance off immediately at the mains power supply (wall switch) and contact a qualified technician.
- Switch the cooktop off at the wall before cleaning or maintenance.
- Failure to follow this advice may result in electrical shock or death.
Health Hazard
This appliance complies with electromagnetic safety standards.
Hot Surface Hazard
- During use, accessible parts of this appliance will become hot enough to cause burns.
- Do not let your body, clothing or any item other than suitable cookware contact the glass until the surface is cool.
- Metallic objects such as knives, forks, spoons and lids should not be placed on the cooktop surface since they can get hot.
- Children shall be kept away unless continuously supervised
- Handles of saucepans may be hot to touch. Check that saucepan handles do not overhang other cooking zones that are on. Keep handles out of reach of children.
- Failure to follow this advice could result in burns and scalds.
Cut Hazard
- The razor-sharp blade of a cooktop scraper is exposed when the safety cover is retracted. Use with extreme care and always store safely and out of reach of children.
- Failure to use caution could result in injury or cuts.
Important safety instructions
- Never leave the appliance unattended when in use. Pots left to boil over cause smoking and greasy spillovers that may ignite.
- Never use your appliance as a work or storage surface.
- Never leave any objects or utensils on the appliance.
- Never use your appliance for warming or heating the room.
- After use, always turn off the cooking zones and the cooktop as described in this manual (i.e. by using the controls).
- Do not allow children to play with, sit, stand, or climb the appliance.
- Do not store items of interest to children in cabinets above the appliance. Children climbing on the cooktop could be seriously injured.
- Do not leave children alone or unattended in the area where the appliance is in use.
- This appliance is not intended for use by persons (including children) with reduced physical, sensory or mental capabilities, or lack of experience and knowledge, unless they have been given supervision or instruction concerning use of the appliance by a person responsible for their safety.
- Do not repair or replace any part of the appliance unless specifically recommended in the manual. All other servicing should be done by a qualified technician.
- Do not use a steam cleaner to clean your cooktop.
- Do not place or drop heavy objects on your cooktop.
- Do not stand on your cooktop.
- Do not use pans with jagged edges or drag pans across the glass surface as this can scratch the glass.
- Do not use scourers or any other harsh abrasive cleaning agents to clean your cooktop, as these can scratch the glass.
- If the supply cord is damaged, it must be replaced by the manufacturer, its service agent or similarly qualified persons in order to avoid a hazard.
- CAUTION: The cooking process has to be supervised. A short term cooking process has to be supervised continuously.
- This appliance is intended to be used in household and similar applications such as:
- staff kitchen areas in shops, offices and other working environments;
- farm houses;
- by clients in hotels, motels and other residential type environments;
- bed and breakfast type environments.
- WARNING: The appliance and its accessible parts become hot during use. Care should be taken to avoid touching heating elements.
- Children shall not play with the appliance. Cleaning and user maintenance shall not be made by children without supervision.
- WARNING: Unattended cooking on a cooktop with fat or oil can be dangerous and may result in fire. NEVER try to extinguish a fire with water, but switch off the appliance and then cover flame e.g. with a lid or a fire blanket.
- WARNING: Danger of fire: do not store items on the cooking surfaces.
- WARNING: If the surface is cracked, switch off the appliance to avoid the possibility of electric shock, for cooktop surfaces of glass-ceramic or similar material which protect live parts
- The appliance is not intended to be operated by means of an external timer or separate remote-control system.
NOTE: It is recommended that you read this User Manual completely in order to fully understand how to install correctly and operate it.
For installation, please read the installation section. Read all the safety instructions carefully before use and keep this User Manual for future reference. The latest version of this manual is available on our website. (See back cover for details.)
Product Overview
Top View

- max. 200mm 1800 W zone
- max. 165mm 1200 W zone
- max. 200mm 1800 W zone
- max. 165mm 1200 W zone
- Glass plate
- Control panel
Control Panel

- Cooking zone indicator
- Power level display
- Power regulating control knob 0~7 power level settings
Before using your New Ceramic Cooktop
- When unpacking the cooktop please ensure that all contents of the carton are removed prior to disposing of the packaging. These articles should be retained for the installer.
Contents include:- 1 x Ceramic Cooktop
- 1 x User Manual
- 4 x Brackets
- 4 x Screws
- Read this user manual, taking special note of the ‘Safety Warnings’ section.
- Remove any protective film that may still be on your ceramic cooktop.
Choosing the right Cookware
A ceramic cooktop doesn’t require specific cookware to activate it. You can use metal or glass pots or pans, such as copper pots, woks, stainless steel cookware, glass pots and casserole and ceramic pots. Do not use cookware with jagged edges or a curved base.

Make sure that the base of your pan is smooth, sits flat against the glass, and is the same size as the cooking zone. Always centre your pan on the cooking zone.

Always lift pans off the ceramic cooktop – do not slide, or they may scratch the glass.

Using your Ceramic Cooktop
Setting the Cooking Zone Temperature
Place the pan on the selected Cooking Zone. Now turn the associated power regulating control knob clockwise to the required heat level. Power settings range from ‘1’ lowest to ‘7’ highest setting and the selected level will be shown on the power level display. Turn the power regulating control knob anti-clockwise to 0(Off) when you have finished cooking.

Hot Surface Warning Indicator
Please note, a hot surface indicator (H) will show on the control panel display when one or more of the heat zones has been used. It will go out when the zone is completely cool. It is important that you use only metal or glass pans specifically designed and/or approved for use on Ceramic Cooktops (see page 10). Never allow melamine or plastic containers to come in contact with the cooking zones.
Over-Temperature Protection
An inbuilt temperature sensor monitors the temperature inside the cooktop. When an excessive temperature is detected, the cooktop will stop operation automatically.
Residual Heat Warning
When the cooktop has been operating for some time, there will be residual heat. The letter “ H ” appears as a warning against possible injury from hot surfaces. Auto Shutdown
Another safety feature of the cooktop is auto shut down. This occurs whenever you forget to switch off a cooking zone. The maximum shutdown times (in hours) are shown in the table below:
| Power level | 1 | 2 | 3 | 4 | 5 | 6 | 7 |
| Default working timer (hour) | 8 | 8 | 4 | 4 | 2 | 2 | 2 |
Cooking Guidelines
Take care when frying as the oil and fat heat up very quickly, particularly if you’re using high power levels. At extremely high temperatures oil and fat will ignite spontaneously and this presents a serious fire risk.
Cooking Tips
- When food comes to the boil, reduce the temperature setting.
- Using a lid will reduce cooking times and save energy by retaining the heat.
- Minimise the amount of liquid or fat to reduce cooking times.
- Start cooking on a high setting and reduce the setting when the food heats through
Simmering, cooking rice
- Simmering occurs below boiling point, at around 85C, when bubbles are just rising occasionally to the surface of the cooking liquid. It is the key to delicious soups and tender stews because the flavours develop without overcooking the food. You should also cook egg-based and flour thickened sauces below boiling point.
- Some tasks, including cooking rice by the absorption method, may require a setting higher than the lowest setting to ensure the food is cooked properly in the time recommended.
Searing steak
To cook juicy flavoursome steaks:
- Stand the meat at room temperature for about 20 minutes before cooking.
- Heat up a heavy-based frying pan.
- Brush both sides of the steak with oil. Drizzle a small amount of oil into the hot pan and then lower the meat onto the hot pan.
- Turn the steak only once during cooking. The exact cooking time will depend on the thickness of the steak and the doneness you prefer. Times may vary from about 2 – 8 minutes per side. Press the steak to gauge how cooked it is – the firmer it feels the more ‘well done’ it will be.
- Leave the steak to rest on a warm plate for a few minutes to allow it to relax and become tender before serving
Stir-frying
- Choose a ceramic compatible flat-based wok or a large frying pan.
- Have all the ingredients and equipment ready. Stir-frying should be performed quickly. If cooking large quantities, cook the food in several smaller batches.
- Preheat the pan briefly and add two tablespoons of oil.
- Cook any meat first, put it aside and keep warm.
- Stir-fry the vegetables. When they are hot but still crisp, turn the cooking zone to a lower setting, return the meat to the pan and add your sauce.
- Stir the ingredients gently to make sure they are heated through.
- Serve immediately.
Heat Settings
The settings below are guidelines only. The exact setting will depend on several factors, including your cookware and the amount you are cooking. Experiment with the cooktop to find the settings that best suit you.
| Heat setting | Suitability |
| 1 – 2 | • delicate warming for small amounts of food • melting chocolate, butter, and foods that burn quickly • gentle simmering • slow warming |
| 3 | • reheating • rapid simmering • cooking rice |
| 4 | • pancakes |
| 5-6 | • sautéing • cooking pasta |
| 7 | • stir-frying • searing • bringing soup to the boil • boiling water |
Care and Cleaning
| What? | How? | Important! |
| Everyday soiling on glass (fingerprints, marks, stains left by food or non-sugary spillovers on the glass) | 1. Switch the power to the cooktop off. 2. Apply a cooktop cleaner while the glass is still warm (but not hot!) 3. Rinse and wipe dry with a clean cloth or paper towel. 4. Switch the power to the cooktop back on. | • When the power to the cooktop is switched off, there will be no ‘hot surface’ indication but the cooking zone may still be hot! Take extreme care. • Heavy-duty scourers, some nylon scourers and harsh/abrasive cleaning agents may scratch the glass. Always read the label to check if your cleaner or scourer is suitable. • Never leave cleaning residue on the cooktop: the glass may become stained. |
| Boil overs, melts, and hot sugary spills on the glass | Remove these immediately with a fish slice, palette knife or razor blade scraper suitable for ceramic glass cooktops, but beware of hot cooking zone surfaces: 1. Switch the power to the cooktop off at the wall. 2. Hold the blade or utensil at a 30° angle and scrape the soiling or spill to a cool area of the cooktop. 3. Clean the soiling or spill up with a dish cloth or paper towel. 4.Follow steps 2 to 4 for ‘Everyday soiling on glass’ above. | • Remove stains left by melts and sugary food or spillovers as soon as possible. If left to cool on the glass, they may be difficult to remove or even permanently damage the glass surface. • Cut hazard: when the safety cover is retracted, the blade in a scraper is razor-sharp. Use with extreme care and always store safely and out of reach of children. |
| Spillovers on the controls | 1. Switch the power to the cooktop off. 2. Soak up the spill 3. Wipe the control area with a clean damp sponge or cloth. 4. Wipe the area completely dry with a paper towel. 5. Switch the power to the cooktop back on. | • Make sure you wipe the control area dry before turning the cooktop back on. |
Hints and Tips
| Problem | Possible causes | What to do |
| The cooktop does not turn on. | No power. | Make sure the cooktop is connected to the power supply and that it is switched on. Check whether there is a power outage in your home or area. If you’ve checked everything and the problem persists, call a qualified technician. |
| The glass is being scratched. | Rough-edged cookware.
Unsuitable, abrasive scourer or cleaning products being used. | Use cookware with flat and smooth bases. See ‘Choosing the right cookware’ page 10.
See ‘Care and cleaning’ page 14. |
If the appliance fails to operate correctly during the warranty period please visit our website to request a warranty service (see back cover of this manual for details). When booking a service please provide your Model No: CCTB6020 and the individual Serial Number of your appliance. This is found on the rating label on the underside of the cooktop or on your appliance paperwork.
Technical Specification
- Model CCTB6020
- Cooking Zones 4 Zones
- Supply Voltage 220-240V/380-415V 50-60Hz
- Installed Electric Power 5490-6533W
- Product Size L×W×H(mm) 590X520X52
- Building-in Dimension (mm) 560X490
Weight and Dimensions are approximate. Because we continually strive to improve our appliances we may change specifications and designs without prior notice
Installation
NOTE: Before making preparations for or commencing installation, the installer should refer to the current online version of the User Manual, which is available on the Kleenmaid website (see back cover for details).
Selection of installation equipment
Cut out the work surface according to the sizes shown in the drawing (Fig. 1). For the purpose of installation and use, a minimum of 50mm space shall be preserved around the hole. Be sure the thickness of the work surface is at least 30mm. Please select heatresistant work surface material to avoid deformation caused by the heat radiation from the hotplate. As shown below:
Note: The seal, as shown in this illustration below, is a factory-fitted foam strip.

| Model | L(mm) | W(mm) | H(mm) | D(mm) | A(mm) | B(mm) | X(mm) |
| CCTB6020 | 590 | 520 | 52 | 48 | 560 | 490 | 50 min |
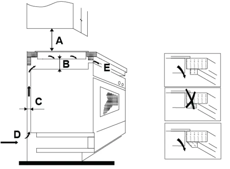
Under all circumstances, make sure the ceramic cooktop is well ventilated and the air inlet and outlet are not blocked. Ensure the ceramic cooktop is positioned correctly, as shown below (see Fig. 3 and Fig. 4).

| A(mm) | B(mm) | C(mm) | D | E |
| 760 | 50 min | 20 min | Air intake | Air exit 5mm |
NOTE: The safety distance between the hotplate and the cupboard above the cooktop should be at least 760mm.
NOTE: The safety gap between the cooktop and the rangehood placed above must comply with the recommendations of the rangehood manufacturer. In case of no instructions, a minimum distance of 650mm (or other minimum distance as may be specified by AS/NZS 5601 and interpreted by a certified installer) should apply.
Before locating the fixing brackets
The unit should be placed on a stable, smooth surface (use the packaging as padding). Do not apply force onto the controls protruding from the cooktop.
Adjusting the bracket position
Fix the cooktop onto the work surface by screwing the 4 brackets on the bottom case of the cooktop after checking placement within the cutout (see picture). (Screws and brackets supplied.) Adjust the bracket position to suit the thickness of the work surface

| A | B | C | D |
| Screw | Bracket | Screw hole | Bottom case |

Cautions
- The cooktop must be installed by qualified personnel or technicians. If necessary, please see the “Support” section on our website for suitably qualified installers. Unqualified persons should not attempt to install this appliance
- The ceramic cooktop shall not be installed adjacent to cooling equipment, dishwashers and rotary dryers.
- The ceramic cooktop shall be installed such that sufficient heat radiation can be ensured to enhance its reliability.
- The wall and cabinetry above and adjacent to the work surface should be heat resistant.
- To avoid any damage, the sandwich layer and adhesive must be resistant to heat.
- A steam cleaner is not to be used.
Connecting the cooktop to mains power supply
The power supply should be connected in compliance with the relevant standard, or a single-pole circuit breaker. The method of connection is shown below.

- If the supply cord is damaged, it must be replaced by the manufacturer, its service agent or similarly qualified person in order to avoid a hazard.
- If the appliance is being connected directly to the mains supply, an omnipolar circuit breaker must be installed with a minimum gap of 3mm between the contacts.
- The installer must ensure that the correct electrical connection has been made and that it complies with safety regulations.
- The cable must not be bent, kinked or compressed.
- The cable must be checked regularly and only replaced by a properly qualified person
WARNING: IT MUST BE ENSURED THAT THIS APPLIANCE IS CONNECTED ONLY TO A 230VAC +10%/-6% 50Hz MAINS POWER SUPPLY WHICH CONTINUOUSLY COMPLIES WITH THE RELEVANT AUSTRALIAN STANDARD. FAILURE TO DO sO MAY SERIOUSLY DAMAGE THE APPLIANCE AND ANY SUCH DAMAGE IS NOT COVERED BY THE MANUFACTURER’S WARRANTY.
DISPOSAL: Do not dispose this product as unsorted municipal waste. Collection of such waste separately for special treatment is necessary. This appliance is labeled in compliance with European directive 2012/19/EU for Waste Electrical and Electronic Equipment (WEEE). By ensuring that this appliance is disposed of correctly, you will help prevent any possible damage to the environment and to human health, which might otherwise be caused if it were disposed of in the wrong way. The symbol on the product indicates that it may not be treated as normal household waste. It should be taken to a collection point for the recycling of electrical and electronic goods. This appliance requires specialist waste disposal. For further information regarding the treatment, recovery and recycling of this product please contact your local council or your household waste disposal service.
KLEENMAID WARRANTY
TERMS AND CONDITIONS
- Compass Capital Services Pty Ltd ABN 96 138 214 525 trading as Kleenmaid will provide parts and labour to you the customer as set out herein.
- Kleenmaid may engage a Service Agent to provide service under this warranty.
- Kleenmaid’s Products come with guarantees that cannot be excluded under the Australian Consumer Law. You are entitled to a replacement or refund for a major failure and for compensation for any other reasonably foreseeable loss or damage. You are also entitled to have the goods repaired or replaced if the goods fail to be of acceptable quality and the failure does not amount to a major failure.
- The benefits given to you under this Kleenmaid Warranty are in addition to other rights and remedies to which you may be entitled under the Australian Consumer Law in relation to the Product to which this Kleenmaid Warranty relates. Subject to the conditions below, the Product is warranted by Kleenmaid and/or its agents to be free from defects in materials and workmanship for the Warranty Period for normal Domestic Use.
- Product Identification: –
- a. Kleenmaid reserves the right to reject claims for any services or work where you cannot produce for verification the serial number and a proof of purchase for the Product (including but not limited to the original invoice).
- b. this Kleenmaid Warranty will be voided if the serial number for the Product cannot be verified. This is not intended to exclude, restrict or modify any right or remedy to which you may otherwise be entitled under the consumer guarantee provisions of the Australian Consumer Law.
- c. in the event that a request for repair is made against this Kleenmaid Warranty where the serial number for the Product cannot be verified or you cannot produce for verification a proof of purchase for the Product (including but not limited to the original invoice), the repairer will not carry out any repairs on the Product and you will be charged a service call-out fee.
- What is covered by this Kleenmaid Warranty: –
- a. the Product is covered for faulty workmanship or parts that have failed under normal Domestic Use.
- b. Kleenmaid and/or its agents will determine by objective testing if there are any defects in the Product and/or faulty workmanship.
- c. this Kleenmaid Warranty is only applicable if repairs on Products are carried out within Mainland Australia.
- d. this Kleenmaid Warranty: –
- covers a Product purchased as new, manufactured for use in Mainland Australia;
- commences from the date of delivery of the Product;
- provides for the labour and replacement parts necessary to maintain the Product in good operating condition as specified in this Kleenmaid Warranty, however, if repair is needed because of Product failure during normal Domestic Use, Kleenmaid has the option to repair or replace the defective Product or part of the Product with a product or part of like kind and quality. A replacement part may be new or reconditioned of like kind and quality and may cost less than the original Product purchased and no charges or refunds will be made based on the replacement product or part cost difference; and
- is only applicable when the Product is used and operated in accordance with the Manufacturer’s instructions.
- What is not Covered by this Kleenmaid Warranty (excluded):-
- a. any damage or failure to or of the Product or part of the Product:
- due to the Product being inadequately serviced to manufacturer’s recommendations;
- resulting from environmental conditions including and not limited to dirt, dust, rodents, insects, rust, corrosion, salt built-up, of or in any part of the Product;
- resulting from excessive use but fair wear and tear is excepted;
- resulting from installation by an unqualified or uncertified tradesperson;
- resulting from poor or incorrect installation including and not limited to positioning and externally fitted equipment such as plumbing and drainage, cabling, antennae or due to incompatibility of connected equipment;
- caused by overheating as a result of sitting or positioning of the Product, where there is no provision for adequate ventilation or adequate protection from excessive dust;
- if the Product has been dismantled, repaired or serviced by any person other than someone authorised by Kleenmaid or its agents or representatives;
- caused by power surges or spikes, including and not limited to, mains power and telecommunications connections, or to other unspecified sources, incorrect power current, voltage fluctuation, amperage fluctuation, rust or corrosion;
- if the Product is dropped, collision of the Product with another object, use for which the Product is not designed, damage to the Product caused by your own negligence, accidental or deliberate misuse of the Product by you, theft, abuse, vandalism, flood, fire, earthquake, electrical storms or any other act of God or any war related events; or
- due to the introduction of abnormal heat loads to the Product;
- b. costs of attendance and testing where no fault or defect covered by the terms of this Kleenmaid Warranty is identified in the Product;
- c. initial setup and installation of the Product;
- d. normal maintenance costs and costs incurred through the installation of items listed as requiring periodic replacement;
- e. Products with removed or altered serial numbers;
- f. broken or cracked glass other than transport damage to the initial point of delivery;
- g. consumables such as but not limited to bulbs/globes, seals, filters, batteries and remote controls;
- h. removal and reinstallation of an internal component not performed by an authorised Kleenmaid agent or representative or authorised service centre;
- i. cosmetic or structural items; or
j. any failures due to interference from or with other products and/or sources.
- a. any damage or failure to or of the Product or part of the Product:
- This Kleenmaid Warranty ceases if: –
- a. the Product ceases to carry the original manufacturer’s serial number or is sold at an auction;
- b. the Product is rented; or
- c. there is failure to pay monies owing on invoices as a result of non-warranty work being carried out at the request of the end user as per point 16 below.
- Service under this warranty may be limited by the area in which you live. Service to remote and regional areas may incur additional travel costs which will be payable by you. You will be advised of this at the time you make a claim and Kleenmaid arranges to attend your premises.
- Neither Kleenmaid nor its representatives provide loan equipment under the terms of this Kleenmaid Warranty.
- Any unauthorised access to the internal hardware of the Product will void this Kleenmaid Warranty.
- Repair Notice: Products presented for repair may be replaced by refurbished Products of the same type rather than being repaired. Refurbished parts may be used to repair the Products.
- Replacement items are “like for like” and is not “new for old” and does not indicate in any way that a faulty Product will be replaced with a new part or unit. “Like for like” may either be a quality checked, refurbished or reconditioned unit of the same or later batch of model/size/specifications
- The cost of making a claim under this Kleenmaid Warranty is not covered by Kleenmaid, including any costs of transportation or travel expenses between your home and your nearest authorised service agent.
- Kleenmaid accepts no liability for items that are lost, damaged, or stolen as a result of freight, transport or storage. If you are required to transport the Product to an authorised service centre, you must ensure that it is securely packed and insured.
- On Public Holidays or other periods when regular business and wholesale operations are temporarily ceased, repairer availability and warranty response times may extend beyond the standard response times due to the unavailability of repairers and parts.
- For any repair performed on a Product under this Kleenmaid Warranty where no fault can be found, or the item is deemed by Kleenmaid or an authorised agent, to be not faulty under this Kleenmaid Warranty, or the repair or fault is not covered under this Kleenmaid Warranty, a ‘No Fault Found’ fee is payable by you. Kleenmaid will advise you of this cost and seek your agreement to pay such costs before commencing such repairs.
- Any repairs or services required that are outside the terms and conditions of this Kleenmaid Warranty can be carried out at your request at your cost (including where the Product has not been installed or set up correctly). Kleenmaid will always advise you of this cost and seek your agreement to pay such costs before commencing such repairs. A credit card may be required prior to the commencement of such services.
- Extra charges will be payable by the customer should the Product not be readily accessible without special equipment, such as but not limited to cranes and lifts or should the Product be installed in a position that service access is blocked and/or repair work is not possible without uninstalling the Product to gain access.
- You, the customer, may be entitled to purchase an extended warranty in respect of the Product. Any extended warranty will not be issued by Kleenmaid but by a third party. Any extended warranty services will be provided directly by the third party as principal and not as agent for Kleenmaid, under their extended warranty terms and conditions and not under this Kleenmaid Warranty.
- To make a claim under this Kleenmaid Warranty, please have your proof of purchase and the serial number of the Product ready and call (02) 9310 1207 during business hours.
- This Kleenmaid Warranty is given by:
Name: Compass Capital Services Pty Ltd ABN 96 138 214 525 trading as Kleenmaid Business address: Level 2, Suite 3, 204 Botany Rd, Alexandria NSW Australia 2015 Telephone: (02) 9310 1207 - Definitions:
- a. Australian Consumer Law means the Competition and Consumer Act 2010 (Cth).
- b. Domestic Use means use of the Product for personal, domestic or household purposes.
- c. Kleenmaid means Compass Capital Services Pty Ltd ABN 96 138 214 525 trading as Kleenmaid.
- d. Mainland Australia means the following States and Territories of Australia: New South Wales, Victoria, South Australia, Western Australia, Queensland, Tasmania, Northern Territory, Australian Capital Territory.
- e. Product means the appliance sold by Kleenmaid to you as evidenced by the original purchase invoice.
- f. Service Agent means any independent service agent engaged by Kleenmaid to carry out any repair or service under this warranty.
- g. Warranty Period means for domestic use and for Products purchased on or after 1 January 2019 the period of 60 months, otherwise 36 months. For non-domestic use 12 months or such alternative period as may be specified.
UPDATE NOTICE: This Kleenmaid Warranty is current as at 1 December 2022 but is subject to variation from time to time. For the latest version of the Kleenmaid Warranty, please see our website https://kleenmaid.com.au/warranty/ or phone us on (02) 9310 1207.
Other products available in the Kleenmaid range of appliances
- Washing machines
- Clothes dryers
- Dishwashers
Ovens - Cooktops
- Steam ovens
- Microwave ovens
- Built in espresso coffee machines
- Rangehoods
- Freestanding ovens
- Refrigerators & Freezers
- Beverage Serving Cabinets
- Water Dispensers
- Vacuum Cleaners
To register your warranty or make a warranty claim, scan this QR code:

Compass Capital Services Pty Limited trading as Kleenmaid ABN 96138214525 Level 2, 204 Botany Road Alexandria NSW 2015
- Register your Kleenmaid Appliances Warranty www.kleenmaidwarranty.com.au
- Request a Warranty Service www.kleenmaidwarranty.com.au
- E: [email protected]
Please download the current User Manual for this appliance at www.kleenmaid.com.au



















