FABER STIL36SSV2 Stilo Wall Mount Range Hood

IMPORTANT SAFETY INSTRUCTIONS
READ AND SAVE THESE INSTRUCTIONS BEFORE YOU START INSTALLING THIS Range Hood
WARNING: –
TO REDUCE THE RISK OF A RANGE TOP GREASE FIRE:
- a) Never leave surface units unattended at high settings. Boilovers cause smoking and greasy spillovers that may ignite. Heat oils slowly on low or medium setting.
- b) Always turn hood ON when cooking at high heat or when flambeing food (i.e. Crepes Suzette, Cherries Jubilee, Peppercorn Beef Flambé).
- c) Clean ventilating fans frequently. Grease should not be allowed to accumulate on fan or filter.
- d) Use proper pan size. Always use cookware appropriate for the size of the surface element. WARNING: – TO REDUCE THE RISK OF INJURY TO PERSONS IN
THE EVENT OF A RANGE TOP GREASE FIRE, OBSERVE THE FOLLOWING*:
- a) SMOTHER FLAMES with a close-fitting lid, cookie sheet, or metal tray, then turn off the burner. BE CAREFUL TO PREVENT BURNS. If the flames do not go out immediately EVACUATE AND CALL THE FIRE DEPARTMENT.
- b) NEVER PICK UP A FLAMING PAN – You may be burned.
- c) DO NOT USE WATER, including wet dishcloths or towels – a violent steam explosion will result.
- d) Use an extinguisher ONLY if:
- You know you have a Class ABC extinguisher, and you already know how to operate it.
- The fire is small and contained in the area where it started.
- The fire department is being called.
- You can fight the fire with your back to an exit.
- Based on “Kitchen Firesafety Tips” published by NFPA
WARNING
TO REDUCE THE RISK OF FIRE OR ELECTRIC SHOCK, do not use this fan with any solid-state speed control device.
- TO REDUCE THE RISK OF FIRE, ELECTRICAL SHOCK, OR INJURY TO PERSONS, OBSERVE THE FOLLOWING:
- Use this unit only in the manner intended by the manufacturer. If you have any questions, contact the manufacturer.
- Before servicing or cleaning unit, switch power off at service panel and lock the service disconnecting means to prevent power from being switched on accidentally. When the service disconnecting means cannot be locked, securely fasten a prominent warning device, such as a tag, to the service panel.
CAUTION:
For General Ventilating Use Only. Do Not Use To Exhaust Hazardous or Explosive Materials and Vapors.
WARNING
TO REDUCE THE RISK OF FIRE, ELECTRICAL SHOCK, OR INJURY TO PERSONS, OBSERVE THE FOLLOWING:
- Installation Work And Electrical Wiring Must Be Done By Qualified Person(s) In Accor-dance With All Applicable Codes And Standards, Including Fire-Rated Construction.
- Sufficient air is needed for proper combustion and exhausting of gases through the flue (chimney) of fuel burning equipment to prevent backdrafting. Follow the heating equipment manufacturer’s guideline and safety standards such as those published by the National Fire Protection Association (NFPA), and the American Society for Heating, Refrigeration and Air Conditioning Engineers (ASHRAE), and the local code authorities.
- When cutting or drilling into wall or ceiling, do not damage electrical wiring and other hidden utilities.
- . Ducted fans must always be vented to the outdoors.
ALL WALL AND FLOOR OPENINGS WHERE THE Range Hood IS INSTALLED MUST BE SEALED.
This Range Hood requires at least 24″ of clearance between the bottom of the Range Hood and the cooking surface or countertop. This hood has been approved by UL at this distance from the cooktop. This minimum clearance may be higher depending on local building codes. For gas cooktops and combination ranges, a minimum of 30″ is recommended and may be required. Overhead cabinets on both sides of this unit must be a minimum of 18″ above the cooking surface or countertop. Consult the cooktop or range installation instructions given by the manufacturer before making any cutouts. MOBILE HOME INSTALLATION The installation of this Range Hood must conform to the Manufactured Home Construction and Safety Standards, Title 24 CFR, Part 3280 (formerly Federal Standard for Mobile Home Construction and Safety, Title 24, HUD, Part 280). See Electrical Requirements”
VENTING REQUIREMENTS
Determine which venting method is best for your application. Ductwork can extend either through the wall or the roof. The length of the ductwork and the number of elbows should be kept to a minimum to provide efficient performance. The size of the ductwork should be uniform. Do not install two elbows together. Use duct tape to seal all joints in the ductwork system. Use caulking to seal exterior wall or floor opening around the cap. Flexible ductwork is not recommended. Flexible ductwork creates back pressure and air turbulence that greatly reduces performance. Make sure there is proper clearance within the wall or floor for exhaust duct before making cutouts. Do not cut a joist or stud unless absolutely necessary. If a joist or stud must be cut, then a supporting frame must be constructed.
WARNING
To Reduce The Risk Of Fire, Use Only Metal Ductwork.
CAUTION
To reduce risk of fire and to properly exhaust air, be sure to duct air outside
- Do not vent exhaust air into spaces within walls or ceilings or into attics, crawl spaces, or garages.
Cold Weather installations
An additional back draft damper should be installed to minimize backward cold air flow and a nonme-tallic thermal break should be installed to minimize conduction of outside temperatures as part of the vent system. The damper should be on the cold air side of the thermal break. The break should be as close as possible to where the vent system enters the heated portion of the house.
WARNING
- Venting system MUST terminate outside the home.
- DO NOT terminate the ductwork in an attic or other enclosed space.
- DO NOT use 4″ laundry-type wall caps.
- Flexible-type ductwork is not recommended.
- DO NOT obstruct the flow of combustion and ventilation air.
- Failure to follow venting requirements may result in a fire.
ELECTRICAL REQUIREMENTS
A 120 volt, 60 Hz AC-only electrical supply is required on a separate 15 amp fused circuit. A time-delay fuse or circuit breaker is recommended. The fuse must be sized per local codes in accordance with the electrical rating of this unit as specified on the serial/rating plate located inside the unit near the field wiring compartment.
WARNING
- Electrical ground is required on this Range Hood.
- If cold water pipe is interrupted by plastic, nonmetallic gaskets or other materials, DO NOT use for grounding.
- DO NOT ground to a gas pipe.
- DO NOT have a fuse in the neutral or grounding circuit. A fuse in the neutral or grounding circuit could result in electrical shock.
- Check with a qualified electrician if you are in doubt as to whether the Range Hood is properly grounded.
- Failure to follow electrical requirements may result in a fire.
State of California Proposition 65 Warning (US only)
WARNING
This product contains chemicals known to the State of California to cause cancer and birth defects or other reproductive harm.
For more information go to www.P65Warnings.ca.gov
RANGE HOOD DIMENSIONS
INSTALLATION HEIGHT REQUIREMENTS

- MIN. 24″ OVER ELECTRIC MIN. 30″ OVER GAS
PARTS
PARTS INCLUDED
| REF. | PART | QTY | |
| A | Hood body | 1 | |
| B | Telescopic Lower Chimney | 1 | |
| C | Telescopic Upper Chimney | 1 | |
| D | Chimney Brackets | 2 | |
| E | Damper Flaps | 2 | |
| F | Hood wall Brackets | 1 | |
| REF | PART | ||
| G | Pozi Screws 3/16″ x 1 3/4″ | ![]() | 6 |
| H | Pozi Screws (1/8″ x 3/16″) | ![]() | 2 |
| I | Torx Screws 1/8″ x 7/16″ | ![]() | 4 |
| L | Torx Screws (1/4″ x 2 3/4″) | ![]() | 2 |
PARTS NEEDED
| PART | |
| 6″ Round Metal Ductwork | ![]() |
| Drywall plugs or other suitable wall fasteners based on your installation. | ![]() |
| Foil tape | ![]() |
ACCESSORIES AVAILABLE
| ACCESSORY | SKU# |
| Replacement Activated Charcoal Filter | #FILTER2 |
| Wireless Remote Control | #REMCTRL |
| Direct Connect Wiring Box | # WIREBOX |
| High Ceiling Chimney Kit – Upper and Lower Chimney Flue to replace the original flue’s to fit up to 11′ ceilings | # HIGH3 |
| Ductless Kit – Includes Ductless Diverter, Charcoal Filters | # DUCT4 |
TOOLS NEEDED
| TOOL | |
| Tape Measure | ![]() |
| Pencil | ![]() |
| Electric Drill with 5/16″ Drill Bit | ![]() |
| Phillips Screwdriver | ![]() |
| Torx Screwdriver | ![]() |
| Metal sheers | ![]() |
| Work gloves | ![]() |
VENTING METHOD
Option 1: REAR OR TOP VENTED Ducted Venting Installation
Option 2: RECIRCULATING Non ducted – recirculation
Requires purchase of Activated Charcoal Accessory kit.
INSTALLING
DRAW CENTER LINES
Draw a vertical line X on the supporting wall to the ceiling or upper limit, at the center of the area in which the hood will be installed. Draw a horizontal line Y where the bottom edge of the hood will be located, a minimum of 24″ above an electric cooking surface and 30″ above a gas cooking surface.
- MIN. 24″ OVER ELECTRIC/MIN. 30″ OVER GAS
- Place a bracket D on the wall as shown about 1/8″ from the ceiling or upper limit, aligning the center (notch) with the vertical reference line X and mark the wall at the centers of the holes in the bracket.
- Place the second bracket D on the wall as shown, below the first bracket, at the height of the upper chimney section C supplied and aligning the center (notch) with the vertical line.
- Mark the wall at the centers of the holes in the bracket and mark the point 1 and 2 for the Hood Body installation as shown(12
5/8″ from the horizontal line and 4 9/16″ from the vertical line). - Drill ø 5/16″ holes at all the center points marked (point 1,2,3,4,5,6) as shown.

- Installation screws provided must be secured with wall plugs (purchase separately).

- Insert the two screws supplied with the hood into the Wall Bracket as shown and do not tighten all the way to wall leaving 3/16″ of the screw heads exposed.


- Use a level to insure that Wall Bracket F is level and then fully secure the two screws.

- Hook the hood body onto the hood wall bracket F .

- Tighten the 2 screws H as shown.


CHOOSING VENTING METHOD
VENTED
RECIRCULATING
ATTACH VENTING: DUCTED
- Install the Damper flaps E that are included with hood by snapping the tabs into place inside the top of the hood before connecting ductwork.

- Install Roof or Wall Cap purchased separately. Connect the 6″ metal ductwork to the Roof or Wall Cap and then attach ductwork. Seal with foil tape.

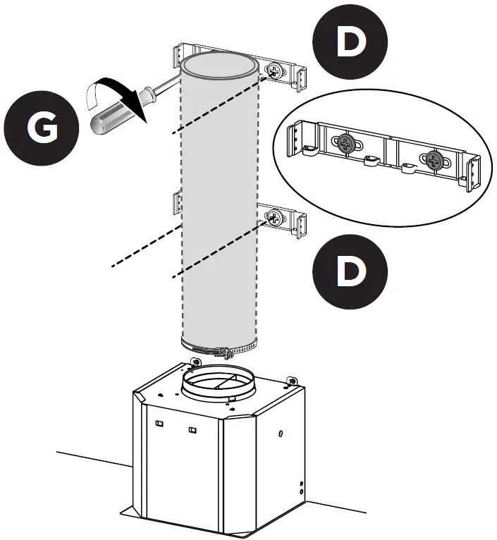
- Install the 2 Chimney brackets D to the middle and upper holes and secure with screws G as shown.


- Slightly widen the two sides of the upper chimney C and hook them behind the brackets D , making sure that they are well seated.

- Secure the sides to the brackets by using the 4 screws I .

Slightly widen the two sides of the the lower chimney hood B and hook them between the upper section and the wall, making sure that they are properly housed.
- Install the the lower chimney hood B laterally to the hood body using the 2 screws L supplied.


ATTACH VENTING: NON DUCTED RECIRCULATING
- Only for the recirculation version, connect the hood to the Air outlet. Con-nect 6″ metal ductwork to the hood air outlet with foil tape. The 6″ duct-ing needs to be cut to the size of the distance between the air exit and the ductless diverter (see the next page).

- Install the lower Bracket D with two screws G supplied as shown.


- Install the Ductless Diverter (not supplied) with the wo screws G supplied as shown.

- Required Ductless Diverter Accessory – sku # – DUCT4

- Required Ductless Diverter Accessory – sku # – DUCT4
- Slightly widen the two sides of the upper chimney C and hook them be-hind the brackets and connect to the Ductless Diverter, making sure that they are well seated.

- Secure the sides to the brackets D by using the 4 screws I .


- Attach a charcoal filter in the correct position and block it by the attaching hooks as shown. Unlock the hooks (push towards the back of the hood) to remove.

- Required Activated Charcoal Filter Accessory – sku # – FILTER 2 (purchased separately)

- Required Activated Charcoal Filter Accessory – sku # – FILTER 2 (purchased separately)
- Slightly widen the two sides of the the lower chimney hood B and hook them between the upper section and the wall, making sure that they are properly housed.

- Fix the the lower chimney hood B laterally to the hood body using the 2 screws H supplied.


CONNECTING HOUSE POWER
GROUNDING INSTRUCTIONS
This appliance must be grounded. In the event of an electrical short circuit, grounding reduces the risk of electric shock by providing an escape wire for the electric current. This appliance is equipped with a cord with a grounding wire and grounding plug. The plug must be plugged into an outlet that is properly installed and grounded.
WARNING
Improper grounding can result in a risk of electric shock. Consult a qualified electrician if the grounding instructions are not com-pletely understood, or if doubt exists as to whether the appliance is properly grounded.
- Do not use an extension cord. If the power supply cord is too short, have a qualified electrician install an outlet near the appliance.

ELECTRICAL INSTALLATION WITH OPTIONAL WIRING BOX
For permanent wiring, use only the Direct Connect Wiring Box accessory sku WIREBOX, manufactured by Faber.
- Direct Connect Wiring Box Accessory sku # WIREBOX (purchased separately)

OPERATING THE CONTROLS
FOR BEST RESULTS
Start the Range Hood several minutes before cooking to develop proper airflow. Allow the Range Hood to operate for several minutes after cooking is complete to clear all smoke and odors from the kitchen.
| Button | Function |
![]() | Fan On/Off Button: Turns the blower On or Off. The fan can be operated by pressing any of the fan setting buttons. |
| Hold down this button for 2 seconds to activate Delay off function which will keep the fan on for 15 minutes and automatically shut off. | |
| 1 | Fan Speed Setting: Low Speed |
| 2 | Fan Speed Setting: Medium Speed |
![]() | Fan Speed Setting: High Speed/Intensive Speed |
| Hold down the button for 2 seconds to activate the intensive speed, which is timed to run for 10 minutes. At the end of this time it will automatically return to the speed set before. Suitable to deal with maximum levels of cooking fumes. | |
![]() | Light button: On/Off switch for the lights. |
NOTE:
If your product has had a CFM adjustment, refer to the CFM adjustment manual for the information. Some motor speeds or functions may be reduced.
CLEANING STAINLESS STEEL
Cleaning Exterior surfaces:
Please note, abrasives and scouring agents can scratch range hood finishes and should not be used to clean finished surfaces.
Stainless Steel finish cleaning instructions:
Clean exterior surfaces with a commercially available stainless steel cleaner.
CARING FOR FILTERS
CLEANING METAL GREASE FILTERS
The filters must be cleaned every 2 months of operation, or more frequently for particularly heavy usage, and can be washed in a dishwasher.
- Remove the Filters one at a time, pushing them towards the back of the unit and at the same time pulling downward.
- Wash the Filters without bending them, and leave them to dry completely before replacing. (If the surface of the filter changes colour as time goes by, this will have absolutely no effect on the efficiency of the filter itself.)
- Replace, taking care to ensure that the handle faces forwards.
- No water can be present in filters before installing back in hood.
CAUTION:
Completely dry the Grease Filters after washing.
REPLACING ACTIVATED CHARCOAL FILTER
The filter is not washable and cannot be regenerated, and must be replaced approximately every 4 months of operation, or more frequently for particularly heavy usage.
- Remove the Filters one at a time, pushing them towards the back of the unit and at the same time pulling downward.
- Remove the saturated charcoal filter by releasing the hooks.
- Fit the new filter and fasten it in its correct position.
- Replace, taking care to ensure that the handle faces forwards.
- “When used in recirculation mode, to Reduce the Risk of Fire and Shock use only conversion kit Model FILTER 2”.

REPLACING BULBS
LED lights must be replaced by Faber factory authorized service.
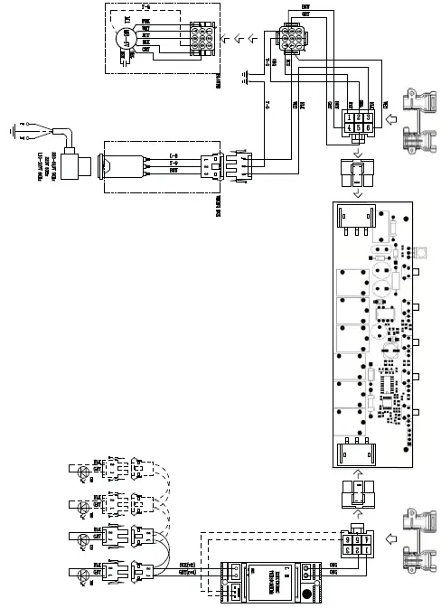
WIRING DIAGRAM

WARRANTY
FABER CONSUMER WARRANTY & SERVICE
All Faber products are warranted against any defect in materials or workmanship for the original purchaser for a period of 1 year from the date of original purchase (requires proof of purchase). This warranty covers labor and replacement parts. Faber, at its option, may repair or replace the product or components necessary to restore the product to good working condition. To obtain warranty service, contact the dealer from whom you purchased the range hood, or the local Faber distributor. If you cannot identify a local Faber distributor, contact us at (508) 358-5353 for the name of a distributor in your area.
The following is not covered by Faber’s warranty:
- Service calls to correct the installation of your range hood, to instruct you how to use your range hood, to replace or repair house fuses or to correct house wiring or plumbing.
- Service calls to repair or replace range hood light bulbs, fuses or filters. Those consumable parts are excluded from warranty coverage.
- Repairs when your range hood is used for other than normal, single-family household use.
- Damage resulting from accident, alteration, misuse, abuse, fire, flood, acts of God, improper installation, installation not in accordance with electrical or plumbing codes or Faber documentation, or use of products not approved by Faber.
- Replacement parts or repair labor costs for units operated outside the United States or Canada, including any non-UL or C-UL approved Faber range hoods.
- Repairs to the hood resulting from unauthorized modifications made to the range hood.
- Expenses for travel and transportation for product service in remote locations and pickup and delivery charges. Faber range hoods should be serviced in the home.
THIS WARRANTY DOES NOT ALLOW RECOVERY OF INCIDENTAL OR CONSEQUENTIAL DAMAGES, INCLUDING, WITHOUT LIMITATION, DIRECT, INDIRECT, INCIDENTAL, SPECIAL OR CONSEQUENTIAL DAMAGES, PERSONAL INJURY/WRONGFUL DEATH OR LOST PROFITS FABER WARRANTY IS LIMITED TO THE ABOVE CONDITIONS AND TO THE WARRANTY PERIOD SPECIFIED HEREIN AND IS EXCLUSIVE. EXCEPT AS EXPRESSLY SPECIFIED IN THIS AGREEMENT, FABER DISCLAIMS ALL EXPRESS OR IMPLIED CONDITIONS, REPRESENTATIONS, AND WARRANTIES INCLUDING, WITHOUT LIMITATION, ANY IMPLIED WARRANTIES OF MERCHANTABILITY OR FITNESS FOR A PARTICULAR PURPOSE.
This warranty gives you specific legal rights that may vary from state to state.
Model#: ______________________________
Serial #: _____________________________



























Slightly widen the two sides of the the lower chimney hood B and hook them between the upper section and the wall, making sure that they are properly housed.


































