KAYOBA 011745 Rope Ladder 
SAFETY INSTRUCTIONS
- Read these instructions carefully before assembly and use, and save them for future reference.
- Two technically proficient adults are needed for the assembly.
- The product must not be placed on a hard gravel surface, concrete, asphalt or other hard surface.
- Follow the recommendations concerning shock absorbing material and depth of fill.
- Falling on hard surfaces can result in serious personal injury.
- Do not use the product if it is not correctly assembled and suspended.
- Never use the product for anything other than the purpose it was designed for.
- The product must used under the supervision of an adult.
- An adult must check that the suspension ropes are correctly and safely fastened and cannot come loose or get entangled.
- It is recommended to remove and store the equipment during the winter because the ground (when frozen) is not suitable for playing.
- Carefully check before use that the product and its hangers are intact and correctly fitted.
- Do not use the product if the ropes or any other parts are damaged.
- Do not modify the product or its assembly in any way.
FOR SAFE USE
If children use the product they must be instructed by an adult not to:
- Go in front, behind or beside swings in motion.
- Twist the ropes or run them over the suspension beam, this can weaken them.
- Jump from the swing seat when it is moving.
- Climb up on the product when it is wet.
- Allow the product to swing when no one is using it.
- Fasten objects on the ropes or other parts of the product- risk of accidental strangulation.
- Wear scarves, ponchos or other loose clothing that can fasten and cause an accident when using the product.
- Wear a bike or sports helmet when using the product.
WARNING!
- Recommended for 3 year olds and older.
- Never allow children to use the product without the supervision of an adult.
- Pay attention to safety and use your common sense at all times.
- Max weight 100 kg.
- Only for home use indoors/outdoors.
- Must be assembled by a technically proficient adult.
- Long ropes – risk of strangulation!
- Risk of falling.
| SYMBOLS | |
![]() | Read the instructions. |
![]() | Approved in accordance with the relevant directives. |
![]() | Not suitab le for children under 3 years of age. |
TECHNICAL DATA
- Size
- L 210 xW 30 cm
- Max load
- 100 kg
- Number of rungs
- 5x
- Gap between rungs
- 43 cm
ASSEMBLY
NOTE:
If you are unsure how the rope ladder should be assembled in a safe way, consult an expert.
POSITIONING AND SUSPENSION
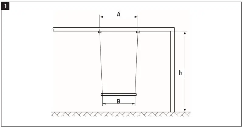
- The distance between the suspension points should be calculated as in the example:
A= 0.04 h + B
A: the distance between the hooks.
B: the distance between the seat and suspension points.
h: the distance between the surface and the hooks.
- For safe suspension in accordance with the standard EN 71-8 the rope ladder should be mounted as per:
- Swing unit
- Crossbar
- Hanger
- Hanger
- Link
- Swing unit (e.g. seat, rings, rod, gondola)

- The ropes have two S-hooks to adjust the length.
- Do not place the rope ladder over a hard surface, such as concrete or asphalt.
- Position the rope ladder where it is not exposed to direct sunlight.
- The surface under the rope ladder must as far as possible be soft and level. Follow the recommendations concerning shock absorbing material and depth of fill.
- When the rope ladder is assembled, check that the swing frame or other structures can withstand the weight and that there is no risk of anything fastening.
- Check that the rope ladder is correctly and safely suspended before it is used.
- The owner of the rope ladder and person supervising the assembly are responsible to inform all users of the safety instructions etc.
IMPORTANT:
- The rope ladder can be hung on an
A- frame or swing frame, or from the branch of a tree with a diameter of at least 25 cm. - The minimum distance between the surface and the seats is 0.35 m, and the maximum distance is 55 cm.
- The minimum permitted distance in the direction of swinging is 2 metres, measured from the front and back of the arc formed by the swing unit when in use.
- The minimum distance between the seats and between the seats and any part of the swing is 0.30 m.

- The highest permitted suspension height over the ground is 2.5 m.
- The minimum permitted gap between the rope ladder and the ground is:
- 200 mm for the rope ladder with the suspension beam no higher than 1200 mm over the ground.
- 350 mm for the rope ladder with the suspension beam more than 1200 mm over the ground.
- The rope must have a diameter of at least10 mm.
- The hooks for the suspension ropes should be crooked at least 540 degrees, to avoid the risk of a rope unhooking and releasing from the hook when in use. The material diameter of the hooks should be at least 10 mm.
- The hooks should be perpendicular to the direction of swinging – a person standing in front of the rope ladder should be able to see through the hooks. Otherwise the hooks will be subjected to excessive wear.
- Only use approved hanger parts that can withstand the weight and strain caused by the rope ladder.
- The swing framework must be safely anchored to the ground with suitable ground screws or ground anchors, so that it cannot tip over or move. The product should be placed on a flat surface with at least 1.8 m of free space on all sides.
If the ground surface is not sufficiently solid to ensure safe anchoring the ground screws should be embedded in concrete. Make sure the ground screws do not stick up – risk of tripping over.
Shock absorbing material and depth of fill
| Shock absorbing material | Depth of fill, uncompressed material |
| Bark | 23 cm |
| Wooden chips | 30 cm |
| Shavings | 30 cm |
| Coarse sand | 30 cm |
MAINTENANCE
CHECK AT REGULAR INTERVALS AND BEFORE USE
Before use an adult with sufficient technical proficiency should:
- Check and if necessary retighten the assembly parts and suspension of the rope ladder.
- Check the protectors on tubes, edges and corners, and replace any loose, damaged or missing protectors.
- Check all the moving parts on the rope ladder, including the swing seat and ropes for wear, rust and damage/ageing, and replace worn or damaged parts (posts, screws, S-hooks, lock washers, flat washers, and rings etc. can be bought separately).
- Check metal parts for rust and if necessary remove any rust and touch up with non-leaded paint that complies with the standard EN71.
- Check and if necessary replace defective parts in accordance with the instructions of the manufacturer.
- Lubricate all joints and moving metal parts in the suspension, if the rope ladder is hung up in the swing frame.
- Rake and loosen up the shock-absorbing material fill, remove any objects that should not be there, and if necessary supplement.
- At the end of the season, or if the temperature drops below 4°C, an adult with sufficient technical proficiency should:
- Dismantle the product from where it is suspended outdoors.
- Store the product in a clean and dry place indoors.This prolongs the life span of the product.


























