ELITE SCREENS ITE84VW3-E30 In-Ceiling Electric Motorized Front Projection Screen

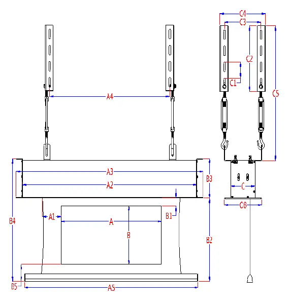
Elite Screens – evanesce Tab Tension Dimension Table
| Unit mm | ||||||||||||||||||||
| Models | Screen Diag. &Aspec Ratio | A | A1 | A2 | A3 | A4 | A5 | 8 | 81 | 82 | 83 | 84 | 85 | C | C1 | C2 | C3 | C4 | C5 | C6 |
| ITE84VW3-E30 | 84″(4:3) | 1707 | 95 | 2022 | 2082 | 1622 | 2012 | 1280 | 762 | 2142 | 118 | 2260 | 100 | 98 | 50 | 925 | 145 | 180 | 1145-1205 | 148 |
| ITE100VW3-E20 | 100″(4:3) | 2032 | 95 | 2347 | 2407 | 1947 | 2337 | 1524 | 508 | 2132 | 118 | 2250 | 100 | 98 | 50 | 925 | 145 | 180 | 1145-1205 | 148 |
| ITE120VW3-E10 | 120″(4:3) | 2438 | 95 | 2770 | 2830 | 2370 | 2760 | 1828 | 254 | 2182 | 118 | 2300 | 100 | 98 | 50 | 925 | 145 | 180 | 1145-1205 | 148 |
| ITE84HW3-E30 | 84″(16:9) | 1680 | 95 | 2175 | 2235 | 1775 | 2165 | 1046 | 762 | 1908 | 118 | 2026 | 100 | 98 | 50 | 925 | 145 | 180 | 1145-1205 | 148 |
| ITE100HW3-E24 | 100″(16:9) | 2214 | 95 | 2530 | 2590 | 2130 | 2520 | 1245 | 610 | 1955 | 118 | 2073 | 100 | 98 | 50 | 925 | 145 | 180 | 1145-1205 | 148 |
| ITE106HW3-E24 | 106″(16:9) | 2347 | 95 | 2660 | 2720 | 2260 | 2650 | 1320 | 610 | 2030 | 118 | 2148 | 100 | 98 | 50 | 925 | 145 | 180 | 1145-1205 | 148 |
| ITE120HW3-E20 | 120″(16:9) | 2657 | 95 | 2972 | 3032 | 2572 | 2962 | 1494 | 508 | 210’2 | 118 | 2220 | 100 | 98 | 50 | 925 | 145 | 180 | 1145-1205 | 148 |
| ITE135HW3-E12 | 135″(16:9) | 2989 | 95 | 3310 | 3370 | 2910 | 3300 | 1681 | 305 | 2086 | 118 | 2204 | 100 | 98 | 50 | 925 | 145 | 180 | 1145-1205 | 148 |
| ITE94XW3-E30 | 94″(16:10) | 2025 | 95 | 2347 | 2407 | 1947 | 2337 | 1265 | 762 | 2127 | 118 | 2245 | 100 | 98 | 50 | 925 | 145 | 180 | 1145-1205 | 148 |
| ITE108XW3-E24 | 108″(16:10) | 2326 | 95 | 2660 | 2720 | 2260 | 2650 | 1454 | 610 | 2164 | 118 | 2282 | 100 | 98 | 50 | 925 | 145 | 180 | 1145-1205 | 148 |
| ITE114XW3-E20 | 114″(16:10) | 2455 | 95 | 2770 | 2830 | 2370 | 2760 | 1534 | 508 | 2142 | 118 | 2260 | 100 | 98 | 50 | 925 | 145 | 180 | 1145-1205 | 148 |
| ITE126XW3-E14 | 126″(16:10) | 2714 | 95 | 3030 | 3090 | 2630 | 3020 | 1696 | 356 | 2152 | 118 | 2270 | 100 | 98 | 50 | 925 | 145 | 180 | 1145-1205 | 148 |
| ITE139XW3-E8 | 139″(16:10) | 2994 | 95 | 3310 | 3370 | 2910 | 3300 | 1871 | 203 | 2174 | 118 | 2292 | 100 | 98 | 50 | 925 | 145 | 180 | 1145-1205 | 148 |

Important Safety & Warning Precautions
Make sure to read this user’s guide and follow the procedures below.
Caution: The screen’s Black Top Drop is already set to its maximum drop distance. There is NO extra Black Top Drop in the roller. Please be aware of this as it will void your warranty with Elite Screens. Unapproved changes or modifications (except for cutting the power cord for hardwire installations) to this unit are prohibited and will void your warranty.
- Please retain this user’s guide for future reference.
- To avoid damaging the unit, do not use with any unauthorized accessories not recommended by the manufacturer.
- Handle the unit carefully during transportation to avoid any damages.
- To ensure safe and reliable operation, direct connection to a properly grounded power source is advised.
- The power outlet supplying power to the unit should be close to the unit and easily accessible.
- Do not install the unit on uneven, inclined surfaces;
- Do not install in damp places to avoid an electric shock or short circuit.
- Do not place any heavy objects over the power cord.
- Position the power cord properly to avoid creating a trip obstacle.
- To avoid an electrical shock or fire, due to a loose contact or short circuit, do not overload the power cord.
- The internal & external parts of this unit are not end user serviceable. Do not attempt to disassemble this unit by yourself. No one except authorized technicians can open and make repairs to this unit.
- Make sure the power source that this unit is connected to has a continuous power flow.
- If there is need to use an extension cord, make sure the cord has an equal rating as the appliance to avoid over heat.
- Do not handle the power plug when your hands are wet or your feet are in contact with water.
- Properly dispose of this equipment according to the environmental regulations in your area when product is no longer of service.
Do not use this unit under the following circumstances.
- Disconnect the power cord under the conditions of heavy rain, wind thunder or lightning.
- Avoid direct sun light, rain shower and moisture.
- Keep away from fire sources and high temperature to prevent this device from overheating.
- Cut off the power supply first before transportation or maintenance.
- To avoid possible injury and/or an electric shock, do not attempt to use this screen if there is obvious damage or if there are any evident broken parts.
Installation Warning
The instructions provided in this user’s guide are for reference only. Please consult a professional installation company for further installation and safety advice. The installer must insure that proper mounting hardware is used to provide adequate strength suitable for the installation. Elite Screens is not liable for any faulty installations. For limit adjustment instructions, please contact our Technical Support Department at (877) 511-1211 Ext. 604 The Screen’s Top Black Drop is already set to its maximum drop distance. There is NO extra top black drop in the roller. Please be aware of this as it will void the limitation of your warranty. Individual modifications to this product are prohibited and will void the warranty with the manufacturer. Please contact Elite Screens Customer Service for any questions.
NOTE:
This equipment has been tested and found to comply with the limits for a Class B digital device, pursuant to Part 15 of the FCC Rules. These limits are designed to provide reasonable protection against harmful interference in a residential installation. This equipment generates and can radiate radio frequency energy and, if not installed and used in accordance with the instructions, may cause harmful interference to radio communications. However, there is no guarantee that the interference will not occur on a particular installation. If this equipment causes harmful interference to radio or television reception, which can be determined by turning the equipment off and on, the user is encouraged to try to correct the interference by one or more of the following measures.
- Reorient or relocate the receiving antenna of the device which may be casing the interference.
- Increase the separation between the screen and the device’s receiver.
- Connect the equipment into a different power outlet other than the device.
Pre-Installation
- Carefully unpack the screen.
- Always handle the screen in a leveled position on a clean surface.
- In order to protect the screen from exposure to stains, keep the screen out of contact with foreign particles such as dust, sawdust, and/or liquids.
NOTE
Regardless of the mounting method, the screen should be securely supported so that the vibration or pulling on the viewing surface will not cause the casing to become loose or fall. The installer must insure the fasteners that are used are of adequate strength and suitable for the installation location.
Evanesce Tab-Tension Series| Controls and Accessories

Screen operation
Electric Current: Depending upon region, your Elite Screen will operate on 100v, 110v, or 220v voltage.
- After ensuring the power outlet & screen are compatible (voltage), plug the power cord into the power outlet.
- Once the screen has power, you’ll be able to control it using any of the 6 methods described below.
6 ways to control your Evanesce Tab-Tension
- IR remote control (Item A, Fig 1): The Infrared functions by direct line of sight contact with a beam range of 30 feet. Aim the IR remote at the
“e ye” receiver once it has been connected to the control box’s RJ45 port.
- IR “Eye” Receiver (Item E, Fig 2): The IR “Eye” Receiver plugs directly into the control box’s RJ45 port to present a low profile line-of-sight control option for your IR remote control even in a recessed ceiling ins installation.

- RF Remote Control (Item B): The radio waves eliminate the need for a direct line of sight with a range of 100 feet.
- 3-Way Wall Switch (Item C, Fig 3): The 3-way wall switch is a wall mount switch with an up/stop/down button and plugs directly into the control box’s RJ45 port.

- 5-12 volt trigger (Item D, Fig 4): The built-in 5-12V trigger input allows your screen to synchronize its drop & rise with the projector’s power cycle. The screen deploys when the projector powers up and will retract when the projector powers down. The 5-12 volt RJ45 cable connects to y our projector’s trigger output via a separate cable that may or may not be provided by the manufacturer of the projector. The trigger feature will not work without an output cable from the projector, but it can be tested by connecting the Red (+) and Green (-) cables to a 9-volt battery.

- Wireless 5-12 volt trigger (Item F, Fig 5): The RF remote control serves as a dual purpose, independently as a handheld remote control, or in conjunction with the Wireless 5-12 volt trigger cable. Radio frequency technology can be programmed to send a wireless signal to synchronize its drop/rise with the projector’s power cycle.

Here’s how to set up your Wireless 5-12 volt trigger | Synchronization Instructions
- Step 1: Connect one end of the 3.5 mm wireless 5-12 volt trigger cable to the RF remote.
- Step 2: Connect the other 3.5 mm end of the wireless 5-12 volt trigger cable to your projector
- Step 3: Make sure to unplug your screen from the power outlet
- Step 4: Hold the UP button on your RF remote
- Step 5: While holding the UP button, plug the screen back to the power outlet
- Step 6: Wait 5 seconds and then release the UP button
- Step 7: Your 5-12V wireless trigger should now be activated with your screen and ready to be used and able to control your screen with your projector’s power cycle Repeat the steps again if not successful. (Please be aware, the projector on/off cycle may take longer to fully activate. It usually takes around 20-30seconds for full off and on cycle each time)
Hardware Parts List for EvanesceTab-Tension Series

Please make sure all parts listed below are included before proceeding with the installation.
| Hardware Parts List | QTY |
| A. Case Rail Nut | 4-6 |
| B. Hex Screw | 4-6 |
| C. Hanging Bracket | 2-3 |
| D. Suspension Bar | 4 |
| E. Washer | 8-10 |
| F. Hex Nut | 4-6 |
| G. Suspension Bar J- Hook | 4 |
| H. M8 Top Expanding Bolt | 4 |
| I. M8 Threaded Rod | 4 |
| J. M8 Screw Nut | 20 |
| K. M8 Hexagonal Screw | 4 |
| L. M8 Screw Washer | 28 |
| M. Installation Bracket | 2 |
| N. Socket Wrench | 1 |
| O. White cover flange panel | 2 |
Installation Instructions
The Evanesce Tab-Tension allows access for above or below ceiling installation. Please follow the instructions described in the following steps below for your type of installation.
Power
The Evanesce Tab-Tension B Series includes a 3-Prong Power Cord (2-Prong Power Cord for some countries) for use in a non-concealed power outlet. If your installation will be entirely concealed (including power outlet), Elite Screens strongly recommends a hardwire connection. Please refer to the image below for both 110v & 220v wiring information.
Above ceiling installation instructions
Assembly
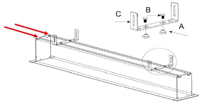
- Insert the Hex Screw (B) through the Hanging Bracket’s (C) screw hole and secure with the Case Rail Nut (A). Slide the Hanging Bracket (C) through the railing on top of the case.

- Place the Suspension Bar (D) on the Hanging Bracket (C) and align it with the hole as shown below. Secure the Suspension Bar (D) with the Hex Screw (B), Washer (E) and the Hex Nut (F). Install the Suspension Bars (D) to your ceiling according to their distance.

Optional Suspension Bar J-Hook (G)
- Attach the Suspension Bar J- Hook (G) to the bottom of the Suspension Bar (D) and secure with the Hex Screw (B), Washer (E) and Hex Nut (F).

- Attach the Suspension Bar J-Hook (G)to the Hanging Bracket (C) as shown in the figure below. Install the Suspension Bars (D) to your ceiling according to their distance.

Optional Installation (parts & hardware not included)

- Place the Hanging Bracket (C) in the desired location on the screen’s housing and measure the distance as shown below. (L = Distance)

- Mark the location of where the screen will be installed according to the distance (L) and then secure the bolt to the ceiling.

- Install the screen to the screw bolt as shown in the figure below.

Below are ceiling installation instructions
- Measure and cut the ceiling installation space. The width should not exceed 120mm. Please refer to the length on the screen size table (C3).
Note: The length of the installation space is not greater than the screen size table (C3), and the width is not less than the screen size table (A5). Consult the table below (C1) in regards to accommodating the screen casing.
- Drill 4 holes in the ceiling that correspond with the attachments on the various casing sizes.

- The expanding bolts (H) mount into thick wood beams, stone or concrete and will support the screen. Use the Socket wrench (N) to attach the hexagonal screws (K). The expanding bolts should be firmly tightened and tested to make sure that they will hold the weight of the screen.

- Push the screen up into the space. Use the threaded rods (I) to attach the screen assembly to the ceiling. The hexagonal screws (K) will connect the screen to the rest of the assembly. Once firmly in place, use the nuts (J) to ensure a firm connection. Use the socket wrench (N) to make sure that the bolts are firmly tightened.

- Install a plastic cover panel (O) to complete the installation.

For local Elite Screens contact or Technical Support, please visit www.elitescreens.com
Evanesce/Evanesce Tension Vertical Limit Switch Adjustment Instructions
Caution: The screen’s Top Black Masking is already set to its maximum distance. There is NO extra black top drop in the roller. Attempting to increase the drop will damage the motor and VOID your warranty with Elite Screens. DO NOT use these instructions to try and get more out of your standard black masking drop. Please contact Elite Screens before making any adjustments.
- If you over-adjust the rise position, the screen will attempt to go further into the case and cause it to jitter and bounce.
- If you over-adjust the drop position, the screen will begin to reverse itself back up.
- Reversing the adjustments should bring the screen back to normal operation
Allen Wrench
Limit switch adjustment holes
Note: The limit switches can only be viewed when the screen material is completely deployed. They are located on the right side of the screen when facing the back.
Note: When turning the limit switches, bear in mind that a full circle in either direction will create a one-inch adjustment.
How to adjust the Retract (rise) position (shown in Fig. 3 to Fig. 6)


NOTE: Adjustment should be made while facing the back of the screen.
How to adjust the position of the top black masking border (shown in Fig. 7 to Fig. 9)
Note: All electric screens come with standard top black masking and they cannot be dropped further. DO NOT use these instructions to try to get more out of your standard black masking drop.

NOTE: Adjustment should be made while facing the back of the screen.
Note: As a rule, Elite Screens does not recommend making any unnecessary adjustments to the screen, as improper adjustments will damage the unit. Please contact Technical Support for assistance @ (877) 511-1211.




































