
MANUAL
CORE
PLUS

General information
Please read these instructions in full before installing and using the ARKY Core Plus.
Important
- Maintenance and installation of the ARKY Core Plus should only be carried out by a qualified electrician for safety reasons.
- The ARKY Core Plus should ideally be fitted in a shaded location and never in full sunlight. Place the cabinet against a flat wall, taking into account the minimum
clearance space and applicable fire safety regulations.
Safety
- Ensure that the power is off when carrying out maintenance and/or when connecting the ARKY Core Plus.
- Leave a clearance of at least 30 cm around the ARKY Core Plus to ensure proper ventilation.
- Take into account the minimum clearance space and applicable fire safety regulations.
- Always keep the area under the ARKY Core Plus clear. • Do not fit the ARKY Core Plus close to radiators or other sources of heat.
- To prevent the risk of fire and electric shock, avoid naked flames in the vicinity of the ARKY Core Plus.
- Do not insert pointed objects into the recesses/openings on the ARKY Core Plus.
Environment
- Do not dispose of the ARKY Core Plus and its packaging in the household waste. Make use of the collection system available in your locality. The use of collection systems
helps to preserve the environment and health. - Use the original packaging of the ARKY Core Plus if you wish to return it.
Warranty
Failure to comply with the following will void any warranty, explicitly or implicitly:
- Do not remove any parts that belong to the ARKY Core Plus.
- Do not insert objects into the openings on the ARKY Core Plus.
- Only authorized personnel are permitted to carry out maintenance and repairs on the ARKY Core Plus.
ARKY Core Plus Maximum protection for your AED
- Five fans
- Two heating elements with a thermostat
- Electronic lock with Pincode
- Internal lighting
- Acoustic alarm

Installation
Important information
Please read these instructions in full before installing and using the ARKY Core Plus.
PLEASE NOTE
Never fit the ARKY Core Plus in full sunlight. It should ideally be situated in a shaded location on a flat wall. Take into account the minimum clearance space and applicable fire safety regulations.

- Wall section
- Cap
- Base
- Two heating elements
- Pinlock
- PCB compartment
Identification plate
Always state the type designation and serial number when contacting customer service or your supplier.

Setting the spinlock code
PLEASE NOTE
To use the pin lock, the ARKY Core Plus must be powered by a suitable power supply.

Default code: 1-5-1-5 (+OK)
Entering a code on the pin lock
- Enter the code on the spinlock.
Enter the correct code on the pin lock, Followed by OK. An alarm will sound and the lock will be released for 7 seconds. - There was an error when entering the code.
Press ‘C’. The code can then be entered again, starting from the first digit. - ‘OK’ was pressed after entering an incorrect code.
There will be two beeps. The code can then be entered again, starting from the first digit. - The pin-lock was pressed in or the code was not entered in full (without pressing ‘OK’).
After 20 seconds, the entry is automatically deleted. The code can then be entered again, starting from the first digit.
Changing the spinlock code

TIP
Change the code before suspending the cabinet. When setting a new code, the cabinet must be supplied with power. The changed code will remain saved if the power is disconnected.
Changing the code
Open the cabinet with the default code (15-1-5 +OK). The electronics compartment at the rear of the cabinet becomes visible. Remove the transparent cover. The PCB
is now accessible. Briefly press the reset button on the PCB and set a new code.
- After releasing the reset button, enter the current code.
- Press ‘OK’.
- Enter a new code.
- Press ‘OK’.
- The new code is saved and can be used immediately.
Conditions
- A pin code consists of between 4 and 8 numbers.
- These codes will be rejected when setting a new code:
a 1234
b Codes starting with 4 equal numbers (0000, 1111, 222254, etc.)
Changing the spinlock code after attachment

To change the code after the cabinet has been suspended, carry out the following steps first:
a Remove the (opened) cabinet from the wall. The cabinet can be lifted slightly to allow it to be removed from the wall.
b Carefully set the cabinet down on the ground/table or ask a second person to hold it.
PLEASE NOTE
Pull the power cable back from the wall at the same time to prevent tension on the cable.
c Carefully remove the transparent cover from the rear (see the adjacent figure).
Attachment/location

PLEASE NOTE
Use fixing materials that are suitable for the type of surface to which the ARKY Core Plus is being fitted. The minimum bearing capacity required is 20 kg.
Screw diameter: max. 8 mm
Collar diameter: max. 12 mm
Step-by-step instructions for attachment
- Identify a suitable location for the installation of the ARKY Core Plus.
PLEASE NOTE
a Never fit the ARKY Core Plus in full sunlight. It should ideally be situated in a shaded location on a flat wall.
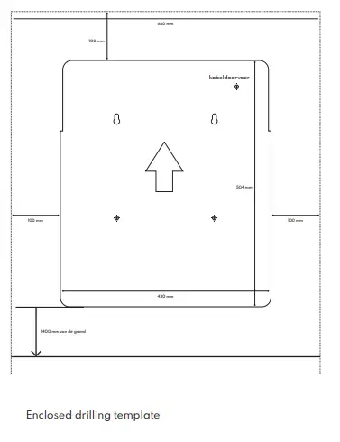
b, Take into account the minimum clearance space and applicable fire safety regulations. - Mark the attachment points and cable inlet on the wall. Use the enclosed drilling template to help you.
- Place the drilling template on the wall. Ensure that the arrow is visible and pointing upwards. If necessary, fix the drilling template in place with adhesive tape.
Recommended distance from ground: 140 cm, see drilling template. - Use a pencil/marker to mark the holes on the wall.
- Remove the drilling template from the wall.
- Drill the appropriate holes according to the fixing materials selected.
a Based on the enclosed fixing materials: drilling diameter 8 mm.
b Cable inlet: min. 8 mm. - Fit the mounting holes with plugs (except for the cable inlet).
- Only fit the top two mounting holes with a Torx screw and washer. Tighten the screw and washer with the Torx driver and ensure a minimum distance of 3 mm between the collar and the wall.
- Route the power cable through the cable inlet and feed through as far as possible.
- Suspend the ARKY Core Plus at the upper mounting holes. At the same time, continue to feed the power cable through. Ensure that the cable does not come between the
cabinet and the wall.
TIP
The mounting holes are visible through the transparent window on the front. - Secure the connector to the power cable.
PLEASE NOTE
Brown is + and blue is – - Connect the cabinet to a power source/mains using the enclosed power adapter.
PLEASE NOTE
The minimum voltage requirements for building-related installation: 100 – 240 V/AC, 50/60Hz. Never place the power adapter outside. - If the ARKY Core Plus has been connected correctly, the LED strip in the cabinet will light up.
- Open the cabinet with the default code: 1-5-1-5-OK (carry out the steps outlined in section 3 if a different code is required).
- With the cabinet open: fit the lower mounting holes with a bolt/screw and a sheet-metal washer, if necessary.
- Tighten all bolts (including the top two) with the enclosed open-end spanner or use a ratchet spanner.
- The cabinet has been installed and is ready for use.
Schematic view of the attachment
Schematic view of wall attachment (with enclosed fixing materials)
A Wall
B ARKY Core Plus
C Plug
D Torx screw

Power adapter
Always place the power adapter inside
- Only connect the ARKY Core Plus to a power source/mains grid that can be switched off and locked (always disconnect the power supply for maintenance and/or troubleshooting).
- Maintenance and installation of the ARKY Core Plus should only be carried out by a qualified electrician.
- Ensure that the power is off when carrying out maintenance and/or when connecting the ARKY Core Plus.

- Wall
- ARKY Core Plus
- Power adapter
PLEASE NOTE
When setting a code other than the default code, it can be helpful to (temporarily) keep the power cable on the inside as long as possible and not to fix it with cable clips, for example, so as to ensure freedom of movement.
Pictograms/stickers

Use
Opening the ARKY Core Plus
- Open the ARKY Core Plus by entering the correct code on the pin lock, then confirm with ‘OK’.
- The base moves down automatically.
- Center the AED on the aluminum plate against the rear wall as soon as the base moves no farther downwards.

Closing the ARKY Core Plus
Place a hand on either side of the base and push upwards until the base locks firmly into the wall section.
Step-by-step instructions for emergencies
In the event of an emergency, carry out the following steps.
- Call emergency services
• Speak loudly and clearly, outline the situation and state the location. - Start resuscitation (CPR)
- Open the cupboard
• Enter the correct code and confirm with ‘OK’. - Take the AED out of the cabinet
- Go to the victim
- Switch the AED on
- Follow the instructions on the AED

After using the AED
- Place the AED back in the cabinet.
- Close the cabinet.
- Contact your supplier.
Maintenance and cleaning
For safety reasons, maintenance and installation of the ARKY Core Plus/connection to the mains should only be carried out by a qualified electrician. Ensure that the power is off when carrying out maintenance and/or when connecting the ARKY Core Plus.
Cleaning the ARKY Core Plus
- Clean the surfaces of the ARKY Core Plus with a soft, damp cloth. Do not use chemical-based products or cleaning agents as these may damage the cabinet’s plastic enclosure.
- Dry the ARKY Core Plus with a soft, dry, and clean cloth.
- Do not rub the cabinet with a hard object. This may permanently damage the cabinet.
- Do not use a high-pressure cleaner to clean the ARKY Core Plus.
Specifications

Dimensions
430 x 504 x 214 mm
Weight
4,25 kg
Materials
Wall section: ABS
Base: ABS
Cover: PETG
PCB cover: PETG
Mounting bracket: Aluminium
Heater pack: Aluminum
Power supply/voltage limits
Power adapter: Meanwell GST120A24-P1M
Input: 100-240VAC, 50/60Hz
Output: 24V – 5.0A, 120W MAX
Operating temperatures
The ARKY Core Plus is designed for the protection and storage of an AED at ambient temperatures of between -30°C and +50°C.
Heating/ventilation
The ARKY Core Plus is equipped with five fans and two heating elements of 24 V/45 W.
Heating:
Switches on at <7°C
Switches off at >10°C
Ventilation:
Switches on at >40°C
Switches off at <35°C
Alarm
If the correct code is entered on the pin lock (when the ARKY Core Plus is powered by a suitable power supply), the cabinet will open and an acoustic alarm will sound.
The alarm will switch off automatically after a few seconds.
IP degree of protection
The ARKY Core Plus has an IP55 degree of protection. Overall dimensions in mm.
ARKY
Verlengde Bremenweg 12 9723 JV Groningen The Netherlands
+31 (0)50 31 16 085
[email protected]
www.arkycase.com
Step-by-step instructions for emergencies


















