POTTER INS-1500 IntelliGen Nitrogen Generator

Features
- Potter’s IntelliGen™ Controller (Patent Pending)
- Fully automates the air fill and nitrogen fill procedure
- Advance leak rate detection
- Integrated Bypass alarm
- Web Enabled – system can be monitored anywhere there is internet connectivity
- Automatically emails trouble alerts and maintenance reminders
- 7.5 HP lubricated tank mounted air compressor included to meet NFPA 13 required 30 minutes fill for 2,000 gallon system at 40 PSI.
- Handles up to 6,200 gallons of total sprinkler system capacity (based on NFPA 13 allowable leak rate of 1.5 PSI per 24 hours for a new sprinkler system).
- Three individual skids – 80 gallon tank mounted air compressor, nitrogen cabinet and 60 gallon nitrogen tank.
- FM Approved per Approval Standard 1035, Nitrogen Generators.
Description
Potter’s IntelliGen™ Series of Nitrogen Generators are specifically designed to generate on-site, 98%+ purity nitrogen for use in fire protection sprinkler systems. When used as a supervisory gas in fire sprinkler systems, nitrogen slows corrosion, improves the life of your system, and lowers maintenance costs.
The INS-1500 utilizes nitrogen membrane technology for gas separation. Nitrogen membranes are highly effective and a cost conscious way of producing on-site nitrogen. Acting as a gas filter, the nitrogen membrane separates the oxygen and water vapor molecules in the air from the nitrogen molecules. The high purity nitrogen gas is then piped through the air maintenance device and into the fire protection system. As the system fills with nitrogen, the remaining oxygen molecules in the fire protection system are exhausted by using the Potter IntelliPurge® Nitrogen Purge Valve. The Potter IntelliPurge® Nitrogen Purge Valve monitors the fire protection system to ensure high purity nitrogen is consistent throughout the sprinkler system. The INS-1500 is to be connected to a new or existing fire sprinkler system. This system includes an air compressor, nitrogen membrane, all air filtration equipment, tanks and the Potter IntelliGen™ Controller.
The Potter IntelliGen™ Controller ensures the contractor the easiest setup and operation of any nitrogen generator system in the industry. Each unit is designed to be turned on and walk away. The built-in monitoring capabilities will make corrections and alert you to any necessary changes.
Technical Specifications
| Compressor Package Size | 74” H x 37” W x 24” D |
| Nitrogen Cabinet Size | 70” H x 31” W x 13” D |
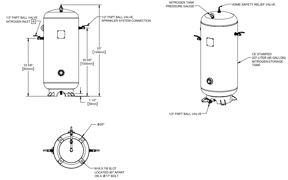
| Nitrogen Tank Size | 53”H x 20” Ø |
| Compressor Package Weight | 650 lbs |
| Nitrogen Cabinet Weight | 210 lbs |
| Nitrogen Tank Weight | 155 lbs |
| Air Compressor Power Supply* Available in: | 200-208V (26.8A), 230-240V (22.3A), 460-480V (11.1A) three phase |
| Rated Working pressure | 175 PSI |
| Temperature Range | 50°F (10°C) to 110°F (43°C) |
*Note: Requires two (2) 120 V connections for nitrogen cabinet and air tank blow-down solenoid.
Installation
The Potter INS-1500 should be installed in a dry, clean, and well ventilated room with ambient temperatures above 50°F at all times. Allow access to the front for service and place the unit in a location that is conveniently located near fire sprinkler system connections, a drain, and a dedicated electrical connection. The Potter IntelliGen™ Nitrogen Generator should always be installed in an adequately ventilated room. Rapid release of nitrogen gas into an enclosed space displaces the oxygen and can cause an asphyxiation hazard. For detailed installation and operation instructions please refer to the Potter IntelliGen™ Nitrogen Generator Manual #5403646.
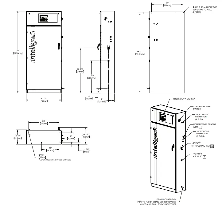
Dimensions
Cabinet Dimensions

Tank Dimensions

Compressor Dimensions

Ordering Information
| Part Number | Model | Description |
| 1119614 | INS-1500, 200-208VAC 3PH 60 HZ | Intelligen™ Nitrogen System-1500, 200-208VAC Three Phase |
| 1119615 | INS-1500, 230-240VAC 3PH 60 HZ | Intelligen™ Nitrogen System-1500, 230-240VAC Three Phase |
| 1119616 | INS-1500, 460-480VAC 3PH 60 HZ | Intelligen™ Nitrogen System-1500, 460-480VAC Three Phase |
| 1119478 | INS-pV | Intellipurge® Nitrogen Purge Valve |
| 1119784 | Ngp-SpV | Potter Purge Valve |
| 1119621 | NGP-AMD-1 | Potter Air Maintenance Device |
| 1119504 | pNa | Portable Nitrogen Analyzer |
Customer Support
Potter Electric Signal Company, LLC • St. Louis, MO • Phone: 800-325-3936 • www.pottersignal.com




















