INS-600 IntelliGen ™
Nitrogen Generator
![]()
Features
- potter’s Intelligen ™ Controller (patent pending)
- Fully automates the air fill and nitrogen fill procedure
- Advance leak rate detection
- Integrated Bypass alarm
- Web Enabled – system can be monitored anywhere there is internet connectivity
- Automatically e-mails trouble alerts and maintenance reminders
- Two Integrated 1/2 HP oil-less air compressors included to meet NFPA 13 required 30 minutes fill for 525 gallon system at 40 PSI.
- Handles up to 2,350 gallons of total sprinkler system capacity.
- Easy plug and play installation.
- 20 gallon nitrogen tank.
- Form C dry contacts for Building Management System (BMS) notification.
Description
potter’s Intelligen ™ Series of Nitrogen Generators are specifically designed to generate on-site, 98%+ purity nitrogen for use in fire protection sprinkler systems. When used as a supervisory gas in fire sprinkler systems, nitrogen slows corrosion, improves the life of your system, and lowers maintenance costs. The INS-600 utilizes nitrogen membrane technology for gas separation. Nitrogen membranes are highly effective and a cost conscious way of producing on-site nitrogen. Acting as a gas filter, the nitrogen membrane separates the oxygen and water vapor molecules in the air from the nitrogen molecules.
The high purity nitrogen gas is then piped through the air maintenance device and into the fire protection system. As the system fills with nitrogen, the remaining oxygen molecules in the fire protection system are exhausted by using the Potter IntelliPurge ® Nitrogen Purge Valve. The Potter IntelliPurge ® Nitrogen Purge Valve monitors the fire protection system to ensure high purity nitrogen is consistent throughout the sprinkler system. The INS-600 is a fully assembled package ready to be connected to a new or existing fire sprinkler system. This turn-key system includes an integrated air compressor, nitrogen membrane, tank, all air filtration equipment, and the Potter IntelliGen ™ Controller.
The Potter IntelliGen ™ Controller ensures the contractor the easiest setup and operation of any nitrogen generator system in the industry. Each unit is designed to be turned on and walk away. The built-in monitoring capabilities will make corrections and alert you to any necessary changes.
Technical Specifications
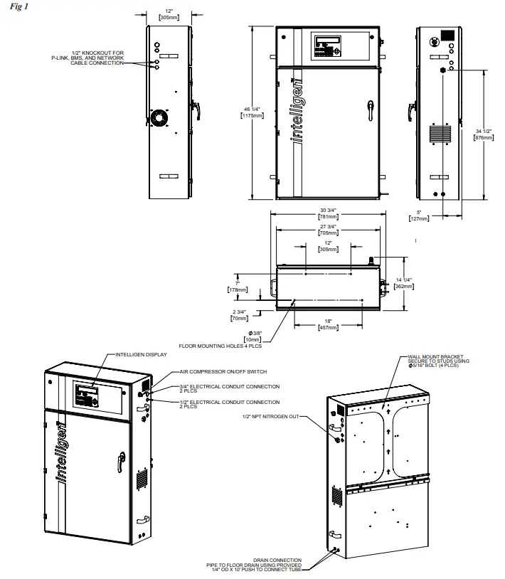
| Nitrogen Cabinet Size | 46″ H X 27.5″ W X 12″ D |
| Nitrogen Tank Size | 36″H X 18″W X 10″0 |
| Weight | 182 lbs. |
| Power Supply Available in: | 115-120V (11.4A) single phase, 230-240V (5.6A) single phase 60 Hz |
| Fire Sprinkler System Connection | ‘A” Female NPT |
| Nitrogen Cabinet Mounting Bracket Holes | (4) 0 5/16″ |
| Nitrogen Tank Mounting Holes | (4) 0 3/8″ |
| Operating Pressure | 120 PSI |
| Temperature Range | 50°F (10°C) to 110°F (43°C) |
Installation
The Potter INS-600 should be installed in a dry, clean, and well ventilated room with ambient temperatures above 50°F at all times. Allow access to the front for service and place the unit in a location that is conveniently located near fire sprinkler system connections, a drain, and a dedicated electrical connection. The Potter IntelliGen ™ Nitrogen Generator should always be installed in an adequately ventilated room. Rapid release of nitrogen gas into an enclosed space displaces the oxygen and can cause an asphyxiation hazard. For detailed installation and operation instructions please refer to the Potter IntelliGen™ Nitrogen Generator Manual #5403725.
Cabinet Dimensions

Tank Dimensions

Ordering Information
| Part Number | Model | Description |
| 1119656 | INS-600, 115-120VAC 1PH 60 HZ | IntelliGenm Nitrogen System-600, 115-120VAC Single Phase |
| 1119657 | INS-600, 230-240VAC 1PH 60 HZ | IntelliGenTh Nitrogen System-600, 230-240VAC Single Phase |
| 1119478 | INS-PV | IntelliPurge® Nitrogen Purge Valve |
| 1119784 | NGP-SPV | Potter Purge Valve |
| 1119660 | NAMD | Nitrogen Air Maintenance Device |
| 1119504 | PNA | Portable Nitrogen Analyzer |
Potter Electric Signal Company, LLC • St. Louis, MO
Phone: 800-325-3936
www.pottersignal.com
8820100 – REV B • 10/19
firealarmresources.com



















