NGP-2200D-M5 Nitrogen Generator
Owner’s Manual
NGP-2200D-M5
Nitrogen Generator
Features
- 7.5 HP lubricated air compressor needed for NFPA 13 required 30 minutes fill for 2200 gallon system at 40 PSI
- Handles up to 16,000 gallons of total sprinkler system capacity (based on NFPA 13 allowable leak rates for a new sprinkler system)
- Premium nitrogen membrane
- UL 508A listed industrial control panel
- Built-in Programmable Logic Controller for leak detection and air bypass alarm systems
- Form C dry contacts for Building Management System (BMS) notification
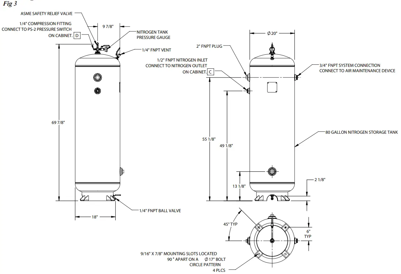
- 80 gallon air tank and 80 gallon nitrogen tank
- Includes all filters, relief valves, automatic drains and gauges

Description
The Potter Nitrogen Generator, NGP-2200D-M5, is specifically designed to provide on-site, high purity nitrogen for use in fire protection sprinkler systems. When used as a supervisory gas in fire sprinkler systems, nitrogen slows corrosion, improves the life of your system, and lowers maintenance costs. The NGP-2200D-M5 includes a tank mounted air compressor, nitrogen cabinet, and a nitrogen storage tank. These systems include all air filtration equipment, an air compressor, nitrogen membrane, as well as tanks required to keep the generator operating at peak efficiency. Potter Nitrogen Generator Systems provide a low cost, reliable, and efficient method of producing a minimum of 98% nitrogen at the point of usage.
The NGP-2200D-M5 utilizes nitrogen membrane technology for gas separation. Nitrogen membranes are highly effective and a cost conscious way of producing on-site nitrogen. Acting as a filter, the smaller oxygen and water vapor molecules can pass through the membrane quickly. The larger nitrogen molecules are less likely to diffuse through the separator tubes; therefore, they continue downstream to the separator outlet, through the air maintenance device and into the fire protection system. As the system fills with nitrogen, the remaining oxygen molecules in the fire protection system are exhausted by using the Potter IntelliPurge® Nitrogen Purge Valve. The Potter IntelliPurge® Nitrogen Purge Valve will periodically monitor the fire protection system to ensure high purity nitrogen is consistent throughout the sprinkler system.
Installation
The Potter NGP-2200D-M5 should be installed in a dry, clean, and well-ventilated room with ambient temperatures above 50°F at all times. Allow access to the front of the nitrogen cabinet for service and place the unit in a location that is conveniently located near fire sprinkler system connections and a drain.
The Potter Nitrogen Generator should always be installed in an adequately ventilated room. Nitrogen is nontoxic and largely inert.
Rapid release of nitrogen gas into an enclosed space displaces the oxygen and can cause an asphyxiation hazard. Inhalation of nitrogen in excessive concentrations can result in unconsciousness without any warning symptoms.
For detailed installation and operation instructions please refer to the Potter Nitrogen Generator Manual #5401550.
Technical Specifications
| Compressor Package Size (WxHxD) | 75” x 34” x 29” |
| Nitrogen Cabinet Size (WxHxD) | 72” x 30” x 15” |
| Nitrogen Tank Size (Hexi) | 70” x 20” |
| Compressor Package Weight | 500 lbs |
| Nitrogen Cabinet Weight | 250 lbs |
| Nitrogen Tank Weight | 200 lbs |
| Power Supply | Available in 208V (13.3A), 230V (12.4A), 460V (6.2A) three phase |
| Max Operating Pressure | 175 PSI |
| Temperature Range | 50ºF (10ºC) to 110ºF (43ºC) |
| Air Purity | ISO Class 1.4.1 or better: Free of water 38°F (3°C) Dew Point, compressor oil (0.008 PPM or .01 mg/m3), hydrocarbons, and particles (<0.01 μm microns) |
Cabinet Dimensions
Tank Dimensions
Storage Tank Dimensions

Ordering Information
| Model | Description | Stock No. |
| NGP-2200D-M5-2B | THREE PHASE 208V | 1119540 |
| NGP-2200D-M5-3B | THREE PHASE 230V | 1119541 |
| NGP-2200D-M5-4B | THREE PHASE 460V | 1119542 |
| Model | Description | Stock No. |
| NGP-MK | Maintenance Kit NGP-M2-M5 | 1119785 |
| INS-PV | Potter IntelliPurge® Nitrogen Purge Valve | 1119478 |
| NGP-SPV | Potter Purge Valve | 1119784 |
| NGP-AMD-1 | Potter Air Maintenance Device | 1119787 |
Potter Electric Signal Company, LLC
St. Louis, MO
Phone: 800-325-3936
www.pottersignal.com
firealarmresources.com



















