ARNELLE WALL HUNG TOILET
SKU: 953818, 953819
User Manual
BEFORE YOU BEGIN
We recommend consulting a professional if you are unfamiliar with installing plumbing fixtures. Signature Hardware accepts no liability for any damage to the faucet, plumbing, sink, counter top, or for personal injury during installation.
Observe all local plumbing and building codes. Unpack and inspect the product for shipping damage. If any damage is found, contact our Customer Relations team via live chat at www.signaturehard-ware.com or by emailing [email protected].
GETTING STARTED
Ensure that you have gathered all the required materials that are needed for the installation.
TOOLS AND MATERIALS:
IMPORTANT
- Adhere to the following installation instructions. Signature Hardware accepts no responsibility for damage or loss that are contributed to improper installation.
- Confirm the fixation location of cistern prior to installation and obtain the finished floor surface. Draw FFL on installation wall and follow it as baseline from ZERO (0) level.
- The instructions have been composed based in the latest product specifications. We reserve the right to make modifications to the packaging and specifications without providing prior notification.
NOTES:
- Mount before wall construction.
- All measurements listed in MM. 3. Follow the material product, should there be any unconformity with drawing.
Drainage System Layout
Drawing 1 through 3 are three different installation systems for drain pipe. Customer should confirm whichever installation system according to drainage outlet position. If the drainage outlet does not fall within the three systems. customer should follow one of three drainage system layouts to correspond installation of our concealed cistern.

General Dimensions and Water Supply Drawing

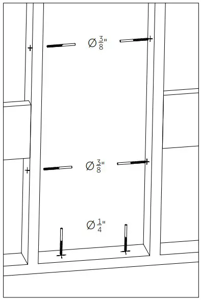
Drill the Holes and Insert the Expansion Bolt
Note: Images shown are theoretical dimensions of frame mounting. Please follow the practical location of frame 
- To install tank and carrier, a 2 x 4” or 2 x 6” wooden or metal frame construction is required. Studs must be placed 19-1/2” apart (clearance) where carrier will be positioned inside the wall. For 3-1 ⁄ 2” wall thickness vertical drainage only. For 5-1 ⁄ 8” min. wall thickness RH, LH and vertical drainage possible.

- FFL: Finished Floor Level
FSH: Finished Seat Height (min 15 3 ⁄ 4”(400mm))
WFH: Wall Fixing Height (min 44 4 ⁄ 5”(1140mm))
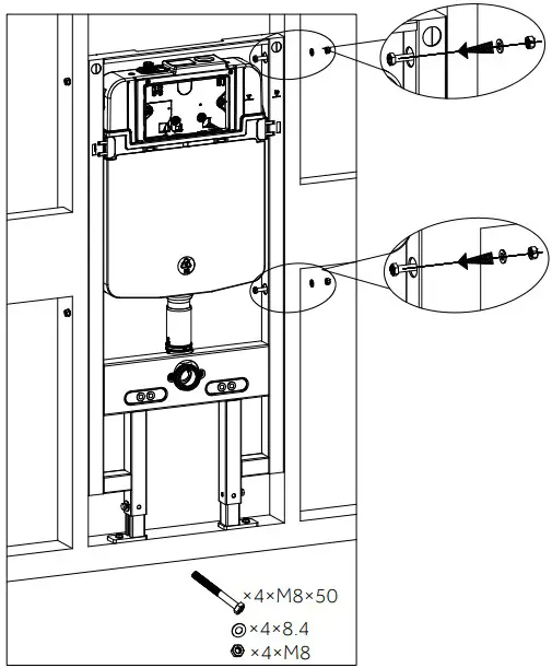
Determine FFL by adjusting the feet of steel frame by changing the pin setting in the carrier foot.
- Position carrier in frame to level. Adjust feet height as needed.
Note: Carrier face plate must be flushed with front of the surrounding studs to accomplish maximum support for the wall sheeting (applied later).
A. For wooden wall frame installation.
- With the carrier in place, mark all anchor and bolt hole locations onto studs of wooden frame.

- Remove carrier from wooden frame and drill holes.

- Set carrier back in place and install anchor bolts on the base.
With anchor bolts set, ensure carrier is flush to stud frame.
Adjust as needed before installing side stud bolts.
- With carrier set in place, secure carrier to studs by installing 4 stud bolts in marked locations. Ensure it is secure and even.

B. For metal wall frame installation.
(Fittings are not supplied)
- Drill out 2 marked 2 ⁄ 5”(10mm)anchor holes in the carrier base. Secure carrier feet in place within the frame using metal frame bolts. With anchor bolts set, ensure carrier is flush to metal frame front. Adjust as needed before installing side metal screws.

- Install 6 self-tapping screws 12” apart into the metal to secure carrier within frame.

- Install 2” or 3” wide 12 ga studs that are connected to the floor and ceiling with mounting brackets for optimal support. Install additional 12”(30cm) lateral plywood or drywall reinforcement for studs thinner than 12 ga.

- Ensure it is secure and even.

Accessories Installation:
- Position A: for 90° drop. use the front support holders.
Position B: for 45° drop. use the rear support holders. Install waste outlet no more than 45° right or left with a minimum vertical drop of one pipe diameter before transitioning to horizontal pitch.
- Remove actuator cover and ensure that the inlet on/off valve is completely turned off before connecting water supply.
Purge the water into an empty bucket to ensure any debris is cleared out of water supply line.
Apply teflon around threads and connect the water pipe.
Adjustment of socket head screw and floor fixing accessories
Installation of Draining Siphon
Adjust the frame, then secure it, and install the water line
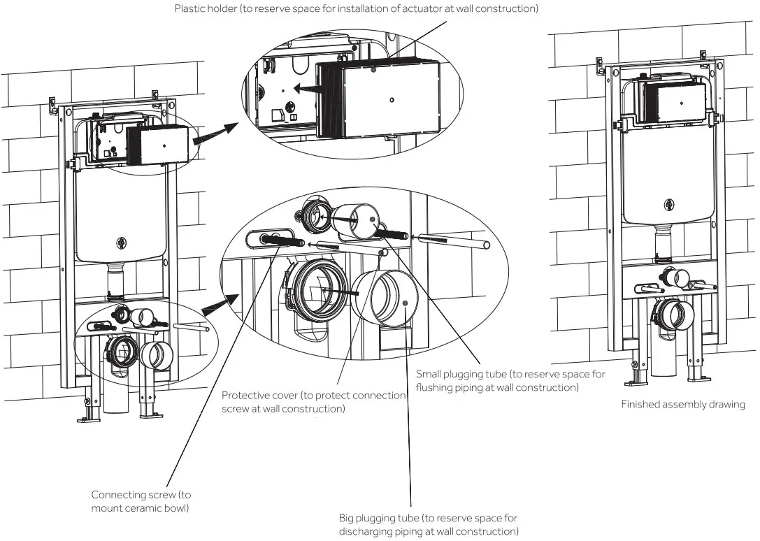
Mounting of installation accessories
Wall thickness ranges between 10-60 mm
(From the outer surface of cistern to the finished wall) 
Mounting of ceramic bowl
- Fully insert the straight tube into cistern flushing outlet and connecting pipe into discharging outlet.

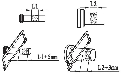
- Draw the lines as shown in picture below

- Apply lubricant on rubber washers of straight tube and connecting pipe, then insert into ceramic holes.

- Draw the lines as shown in picture below.

- As per drawing.
L1 is the distance between the two lines on straight tube.
L2 is the distance between the two lines on connecting pipe. Cut the straight tube and connecting pipe as per the below drawing.
- Polishing the cutting surface to get chamfer angle as per drawing and deburring.

- Cut the protection sleeve outside of the wall with a knife. Apply lubricant on joint surface of straight tube and connecting pipe.

- Adjust length of connecting bolt to be d+3/4″.

- Insert connecting pipe into discharging outlet and straight tube into ceramic hole.

- Secure part B onto the screw as the above picture.

- Place part C into the installing hole on the pan.

- Insert the part C into part B.

- Secure and tighten screws (part D) on part C using alien wrench (part A).

Toilet Seat Installation
- As shown in the drawing above, install the expansion nut, pressure plate. washer, hinge. and screw into the toilet installation hole in sequence and lock with a screwdriver.

- Buckle the decorative cover into the hinge as shown to complete the installation.

- Remove the decorative cover of the support as shown in the picture.

- Pull the seat cover forward as shown to disassemble the seat cover.

- Open the cover of installation box.

- Remove the excessive box along the finishing wall.

- Open the cistern cover.

- Close the adjustable valve, release and take off the water hose.

- Open the adjustable valve to test.

- Close the adjustable valve and install the water hose.

- Re-open the adjustable valve.

- Re-install the cistern cover.

- Install the bracket of cover plate. which should be tightly attached to the wall.

- Install the fixing rods to the bracket.

- Rotate the fixing rods 90°.

- Press the flip caps on the fixing rods into place to lock the rods to the bracket tightly.

- Install the screws closely to the bracket.

- Turn the screw 90° clockwise.

- Install the cover plate as showed.

- Press the buttons to test.

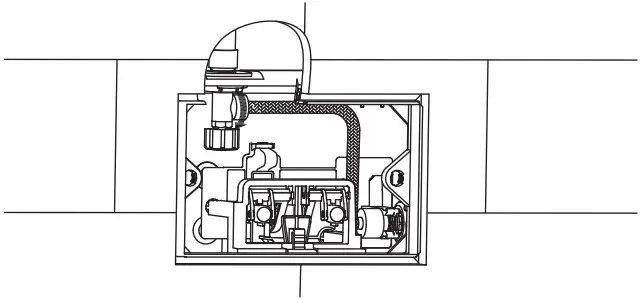
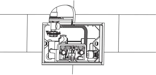
Internal flushing mechanism assembly drawing
The internal flushing mechanism are already assembled and above picture only for reference
List of main installation accessories
| No. | Description | Qty | Function |
| 1 | Expansion screw | 4 | Fixation of frame for the solid wall |
| 2 | Wall bracket | 2 | |
| 3 | Angle valve | 1 | Fill valve inlet and shut-off |
| 4 | Cistern cover | 1 | Mounting of locking bracket |
| 5 | Socket head screw | 2 | Mounting of frame and locking into wall bracket |
| 6 | Plastic holder | 1 | To reserve space for installation of actuator at wall building |
| 7 | Connecting tube | 1 | Water inlet to ceramic bowl |
| 8 | Fixing screws | 2 | To fix connecting tube |
| 9 | Flushing piping | 1 | To joint cistern into ceramic bowl (cutting in accordance with wall thickness |
| 10 | Connecting screw | 2 | To mount ceramic bowl |
| 11 | Piping stopper | 2 | To reserve space for flushing piping at wall construction To reserve space for discharging piping at wall construction |
| 12 | Connecting pipe | 1 | To joint drain pipe into ceramic bowl (cutting in accordance with wall thickness) |
| 13 | Draining syphon | 1 | To discharge liquid and solid waste from ceramic bowl |
| 14 | Mounting bracket | 1 | To mount draining syphon |
| 15 | Draining syphon holder | ||
| 16 | Screws | 6 | Fixation of frame for the wooden support |
1.855.715.1800
signaturehardware.com


Note: Carrier face plate must be flushed with front of the surrounding studs to accomplish maximum support for the wall sheeting (applied later).




























































