Belanger Laminates Laminate Countertop
Installation Guide
Congratulations! You have purchased the most beautiful and versatile countertop. If installed correctly, this DIMENSIONS laminate countertop will beautify your environment for many years to come with minimal care.
DAILY MAINTENANCE OF YOUR DIMENSIONS WORKTOP
Use a clean, damp, non-abrasive cloth with a mild detergent or household cleaner. To remove stuck-on residue, scrub with a nylon-bristled brush. Do not use harsh or abrasive cleaners or chemicals to clean the worktop. Do not place hot objects directly on the surface. Do not place a toaster, coffee maker, kettle, or other kitchen appliances that emit heat directly over a seam between two worktops because the heat can damage the seam. Avoid cutting directly on the worktop, as this may damage the surface. Do not allow bottles, rags, or any other container that holds harsh chemicals to come in contact with your worktop.
BEFORE STARTING:
- Be sure to read the entire manual before proceeding with the installation.
- Please note that these instructions should be followed to ensure proper installation of island or bar tops. It is preferable to have your countertops installed by a Belanger fabricator. If you should decide to tackle the job yourself, here are some helpful pointers:
o Laminate countertops are made of high pressure and density laminate glued to a lower density substrate such as particle board or plywood.
o The more porous the substrate, the more important it is to install the island top properly. Improper installation will result in warping or cupping of the top.
o It is normal for the top to present some level of warp prior to installation, as does solid wood or any other wood products. This is usually eliminated during the proper installation.
o Do not leave the tops lying on concrete floors or in areas of high humidity as this will cause warping of the top. - Note that the hardware, adhesive, sealant, and tools are not included.
- Wear the appropriate protective equipment to avoid injury (not included).
- Make sure you have all the tools you need for installation.
- IMPORTANT: To replace an existing countertop, determine if your countertop is:
A. A post-formed or ‘’molded’’ countertop.
▷ Follow the instructions for ‘’Existing cabinets’’.
B. A straight-edge countertop.
▷ Follow the instructions for ‘’New cabinets’’.
TOOLS REQUIRED

HOW TO MEASURE FOR EXISTING CABINETS

MEASURE THE DIMENSIONS OF THE EXISTING COUNTERTOP :
A. Measure the total length of each piece of countertop along the back where the top meets the wall.
B. Measure each additional piece of countertop. N.B. Measure to the nearest 1/16”.
NOTE: The depth differs from kitchen to bathroom.
FOR BARTOPS & ISLANDS :
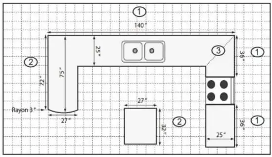
A. For bartops, measure the width (example: 27”) and the total length from the wall to the end of the bartop (example: 75”).
B. Measure the length from the wall to where the sweep (curve) starts (example 72”). The difference is the radius (example 75” – 72” = 3” sweep).
C. For Island, measure both length and width.
CHECK IF THE ANGLE OF YOUR WALL CORNER IS REALLY 90˚ :

Measure 3 feet on the wall from the corner and 4 feet on the other side and mark both measurements.
Measure the cross distance between the two wall points. A perfect 90˚ wall corner should indicate 5 feet (60’’).
A. If your measurement is greater than 60 1/4 “or less than 59 3/4”, note this on your measurements (example: 59 ¼’’). Make sure to note your exact measurement on your plan.
MEASURING A DIAGONAL CORNER :

- For diagonal, measure the distances A – B and C –
D. Be careful to measure to the wall including the backsplash depth. Be sure that you have also measured: 1-2, 3-4, 5-6, 2-7.
NOW CHOOSE YOUR FINISHING END.
HOW TO MEASURE FOR NEW CABINETS
Countertop measurements for new cabinets and for the replacement of straight-edge countertops are done in the same manner. Straight-edged tops often have non-standard depths. For this reason, your countertop supplier must know the exact dimensions your supplier should know the exact dimensions of the cabinets.

MEASURE THE TOTAL LENGTH FOR EACH CABINET SEGMENT:
- Along the walls (example 140’’, 36’’ & 36’’).
MEASURE THE DEPTH OF EACH CABINET SEGMENT:

- Be sure to give the exterior dimension.
- Do not include the thickness of the door.
VERIFY IF THE ANGLE IS A TRUE 90˚:

- Measure 3 feet on the wall from the corner and 4 feet on the other side and mark both measurements.
- Measure the cross distance between the two wall points. A perfect 90˚ wall corner should indicate 5 feet (60’’).
INDICATE THE LOCATION OF WALLS AND APPLIANCES.
COMPLETE THE FINISHING INSTRUCTION (TYPES OF FINISH ENDS).
TYPES OF FINISH ENDS
COUNTERTOP, FOR OR BUILT-UP:

- To allow for proper clearance of cabinet doors, indicate the type of countertop: “shape” or “built-up”.
FINISHING OF COUNTERTOPS ENDS:
- The ends of countertops should always be finished.3 types of finished ends are available:
I. Usually an apparent end countertop or island will be finished ‘’Full’’.
II. The ends butting up against the appliance are often finished ‘’Profile’’.
III. End (or ‘’return’’) splashes are used exclusively against the wall.
FINISHING BARTOP:
- Indicate how the bartop ends are to be shaped.

CUTTING THE COUNTERTOP
CUT YOUR COUNTERTOP :
- Trace a reference line at the final finished dimension.
- Apply transparent tape on the line.
- With a jigsaw, using a blade for laminate, cut at 1/8” longer than the finish line.
CAUTION: For 45˚ cuts, BELANGER LAMINATES strongly recommends that you order a custom countertop from your distributor. A 45˚ angle is extremely difficult to execute without a professional countertop table saw.

CUT FOR INSTALLATION BETWEEN TWO WALLS:

- Measure the length at the front (A) and back (B).
- Cut 1/4 ”shorter than the longest dimension.
- If your wall is not straight, sand off the excess.
SAND THE FINISH LINE :

- With your belt sander, sand the finish line.
- Be careful to keep the sander perpendicular to the countertop as illustrated above.
INSTALLING THE FINISH END
PARTICLE STICKS :
- Attach the particle sticks (A) and (B) included in your end cap kit.

ENDCAP LAMINATE STRIP :

- Apply the end cap laminate strip, and activate the glue using an iron at maximum heat in a back and forth movement.
- It is preferable to place a damp cloth between the iron and the laminate.
- With a small wood block, rub the end cap to make sure the glue properly adheres.
FINISHING THE INSTALLATION :

- When the material is cooled, file off the excess laminate using a router trimming bit to remove the excess laminate.
- File off with a medium wood file:
Place the file almost parallel to the countertop and file in a single-direction movement, always from front to back.
RETURN SPLASH
For countertops butting up against a wall, it is also possible to finish with a return or end splash.
A Return Splash Kit is available from your BELANGER LAMINATES distributor.
Follow the instructions included with this kit.

COUNTERTOP ADJUSTMENTS
- Place the countertop on the cabinets without joining them.

- Make sure that the countertop is level, if necessary, adjust it with wood shims.

- Make sure that there is clearance to open the cabinet doors. If your countertop needs to be raised to allow clearance, fix 5/8’’ blocks under the countertop at the points where it sits on the cabinet frame (B).

- If your wall is not straight, open a compass at the point where there is the largest gap between the countertop and the wall. Keeping the point always touching the wall, trace a line along with the countertop.

- Remove the excess with a belt sander or plane.

COUNTERTOP ASSEMBLY
There are three possible configurations when it comes to installing the island top.
Installation without build-up strips:
This is the most basic installation. It involves placing the top directly on the cabinet and attaching it with screws and small L-shaped brackets, or by screwing it directly through the structure of the cabinet into the underside of the top.
Installation with build-up strips:
This means that the top has 3-4-inch-wide strips of particleboard applied to the underside of the top. This option is used when the doors or drawers are flush with the top of the cabinet. It is important to use several strips or blocks to support the entire top, if not cupping will occur since there is little or no direct support for the top other than at the front and backside of the top. To avoid this, place build-up strips along the center of the top as well as the outside edges. This provides support for the center of the top along its entire length, thus avoiding cupping.
Installation with full build-up:
This means that the entire surface under the top has a sheet of build-up applied, rather than simply using strips. This allows for a uniform surface supporting the entire top. This option is also used when the doors or drawers are flush with the top of the cabinet.
PREPARE THE ASSEMBLY :

- Fix ¾’’ brackets to the cabinet with ½’’ screws. It is preferable to fix the brackets before placing the countertop on the cabinet. In the event that your countertop is lined with a blow sheet (configurations 2 & 3), use 1-1 / 8 “screws.
- In cases where there is already a horizontal strip of wood on the cabinets at the front and the back, you do not need brackets.
- Be sure to use the correct length of the screw (wood thickness + ½’’).
- The screws should not be spaced more than 16 “(40cm).
ASSEMBLE THE COUNTERTOP:
Note: The instructions described below are those supplied with the set of 4 BELANGER LAMINATE tightening wrenches that you can obtain from your retailer. The mitered edges should be assembled prior to installing them onto the cabinet.
- After having properly adjusted the countertops, cut 4 mortises* using a router to later insert the miter bolts (Illustration 1).
- Apply a waterproof adhesive between the joints and wipe off the excess to perfectly seal the junction of the countertops and prevent water infiltration.
- Place the 4 miter bolts in position (Illustration 2) and lightly tighten only to hold the miter bolts in place (use a combination or adjustable wrench of a ½ “(12 mm)).
- Match the front of the countertops. Once flush, tighten the nearest miter bolt to it.
(Illustration 3A) Check the miter where the backsplash sections join. If flush, tighten the nearest miter bolt. (Illustration 3B). - Use a 1-1/4” nail and toenail the backsplash sections together (Illustration 4).
- When the countertops are level, tighten all 4 bolts.
- Place the countertops onto the cabinets. If one section is higher than the other, place a wooden block on the elevated area and pound lightly with a mallet to level the two sections (Illustration 5). DO NOT POUND DIRECTLY OVER THE MITER BOLTS.
- Tighten all the keys to secure the assembly.
- To make your job easier, drill 1/8 “(3 mm) x 3/8” (10 mm) deep pilot holes in strategic places, underneath the countertop.
- Secure the counters. Pay attention to the length of the screws (1/2”).
- Apply a latex sealant to the junction of the back of the countertop and the wall (Figure 5).

SINK INSTALLATION & FINISHING
SINK INSTALLATION :
- Trace the outline of the sink at the desired location.
- Trace the cutting line ½’’ inside the outline.
- Drill a hole inside that cutting line large enough to insert the blade of the jigsaw.
- Cut along the cutting line, using a laminate cutting blade. Attention: make your corners slightly rounded.
- Apply a water-resistant sealer on the bottom edge of your sink, press firmly, and wipe off the excess.
- Insert the sink, squeeze and remove the excess.

INSTALLATION OF SUPPORTS FOR OVERHANGING COUNTERTOPS
One of the latest trends in the market today is to have a wide island top that serves as a dinette, or lunch counter. While it is pleasing to the eye and provides space for family members in the kitchen area, this trend does present some special installation challenges.

Whether the island top is made from solid granite, butcher block hardwood or laminate on particleboard substrate, it requires support. No top should have more than a 6-inch overhang without adequate support. It is our recommendation that any top with an overhang of more than 1 ½ inches should have adequate build-up applied.
Any top with 6 inches or more of overhang should have a full build-up applied. In the case that a top is placed on a base that results in an overhang of 12po (30cm), the overhang portion must be stabilized with brackets. These brackets should be spaced no more than 24po (60cm).
In addition to the full build-up, all countertops with an overhang of 6 inches or more must have adequate support brackets attached to the cabinet AND attached to the underside of the top with non-elastic permanent bonding construction glue. Silicone will not hold and over time the joint weakens and the top may cup or warp. Screws or glued dowels will complete the installation of the brackets.
Several types of brackets are readily available (see the suggestions illustrated below). Be sure to follow the installation recommendations of the manufacturer of the product you choose. Use the correct type and length of the screw so as not to perforate the countertop. Take care to reinforce your cabinets if necessary, so that these brackets are firmly fixed.
These types of brackets will prevent warping and strengthen your countertop. If these recommendations are not followed, your counter’s warranty could be affected. Belanger is not responsible for any cupping, warping, or other distortion of the top if these installation instructions are not followed.

Belanger Laminates
1435, Joliot Curie, Boucherville (Quebec), J4B 7M4
Tel: 450-449-3447 / Telec.: 450-449-7200
Toll free : 1-800-361-5976 /
Toll free USA : 1-800-264-3440
www.belanger-laminates.com
I. Usually an apparent end countertop or island will be finished ‘’Full’’.





















