ACV Evo S Frame and Header Kit

Product Information
The EVO S Frame and Header Kit is a system that is adapted to incorporate the use of low loss headers, plate heat exchangers, and optional sequencer control systems. It is suitable for use with EVO S 40, 60, and 70 boilers that use both natural gas and propane. The kit comes in different configurations, including single-frame, twin-frame, triple frame, and quad frame configurations. The frame and header kit design options include water headers and pumps that are designed for use with a low loss header system or plate heat exchangers only.
Contents
- Frame and Header Kit
- Manual
Important
When replacing any part on this appliance, use only spare parts that you can be assured conform to the safety and performance specification that we require. Do not use reconditioned or copy parts that have not been clearly authorized by ACV. For the very latest copy of literature for specification and maintenance practices visit our website www/acv/com/gbwhere you can download the relevant information in PDF format. All headers and pipe work should be insulated in accordance with the Non Domestic Building Services Compliance Guide. To ensure compliance with the maximum heat loss criteria, insulation thickness should be calculated according to BS EN ISO 12241 using standardized assumptions.
Product Usage Instructions
- Select the appropriate frame and header kit configuration based on the required output and number of boilers and frames.
- Purchase the EVO S 40, 60, or 70 boilers separately.
- Select the appropriate low loss header accessories (mixing header) DN50 (Prod No. XB150029).
- Install the kit in accordance with the instructions provided in the manual.
- Ensure that all headers and pipe work are insulated in accordance with the Non Domestic Building Services Compliance Guide.
- To ensure compliance with the maximum heat loss criteria, insulation thickness should be calculated according to BS EN ISO 12241 using standardized assumptions.
- When sizing multiple appliance installations, match the minimum and maximum system heat load requirements to the minimum and maximum appliance load capabilities.
IMPORTANT
THESE KITS CAN BE USED IN CONJUNCTION WITH LOW LOSS HEADERS & PLATE HEAT EXCHANGERS SUPPLIED AS PART OF THE OPTIONS RANGE
INTRODUCTION
- This technical data contains information for dimensioning and assembly of a cascade system kit for the Evo S ranges.
- These 40-70kW kits are supplied with gas and water header kits designed for use with a low loss header system.
- They are based around a 1 wide and 2 wide system which can be combined to create up to a 4 wide cascade, along with all the necessary mounting holes to enable the fitting of the header kits and frame securing bolts.
- This manual contains all the technical and dimensional data required to install these kits.
GENERAL DESCRIPTION OF FRAME AND HEADER KITS
- These systems are adapted to incorporate the use of low loss headers, plate heat exchangers and optional sequencer control systems.
- All these kits are supplied with the relevant number of necessary parts needed to connect these kits to the separately purchased appliances.
- Boiler pumps are an accessory, and must be selected for either low loss headers or plate heat exchangers.
- The flue configurations for the range of appliances using these system kits are C13, C33 & B23 (See appliance manual).
- All headers and pipe work should be insulated in accordance with the Non Domestic Building Services Compliance Guide. To ensure compliance with the maximum heat loss criteria, insulation thickness should be calculated according to BS EN ISO 12241 using standardised assumptions.

GENERAL DESCRIPTION OF SYSTEMS
- The aone wide system is defined as fitting one pipe kit with a single frame and one boiler.
- A two wide system is two boilers on two separate frames bolted together with a pipe kit which serves the two wide system. These one and two wide systems can be combined in any permutation to create up to a four wide cascade.
FRAME AND HEADER KIT DESIGN OPTIONS
- These water headers and pumps (accessory) are designed for use with a low loss header system (option), or plate heat exchangers only (option).
- Appliances are not provided with these kits and will be required to be purchased separately.
| Available Rig Configurations | Total Output Required (KW) | Number of boilers and Frames | Footprint Size WxDxH (mm) | Header Kit | |
| Range | Size | Prod No. | |||
| Single Frame Configurations | 40 – 70 | 1 | 500 x 685 x 1418 | DN50 | XB150005 |
| Twin Frame Configurations | 80 – 140 | 2 | 1000 x 685 x 1418 | DN50 | XB150006 |
| Triple Frame Configurations | 120 – 210 | 3 | 1500 x 685 x 1418 | DN50 | XB150007 |
| Quad Frame Configurations | 160 – 280 | 4 | 2000 x 685 x 1418 | DN50 | XB150008 |
| Available Appliances | |
| kW | Product No. |
| Evo S 40 | 100008264200 |
| Evo S 60 | 100008264300 |
| Evo S 70 | 100008265900 |
Note.
All boilers need to be sized in accordance to the total required heat load and the modulation capabilities of the appliances.
| Low Loss Header Accessories (Mixing Header) |
| DN50 |
| XB150029 |
MULTIPLE BOILER INSTALLATIONS
- When sizing multiple appliance installations, the minimum and maximum system heat load requirements need to be matched to the minimum and maximum appliance load capabilities.
- These water header & pump kits are design to supply the optimum water flow around the appliance water circuit only and must be used in conjunction with a suitably sized low loss header (mixing header) or plate heat exchanger.
HYDRONIC ISOLATION: LOW LOSS HEADER & PLATE HEAT EXCHANGER
- A low loss header allows flow separation within a hydronic system.
- This allows two flow circuits to operate with their own flow and pressure drop environments whilst effectively transferring heat to its adjoined water circuit.
- This enables the modern high resistant, high efficiency boilers to operate under their optimum conditions, while the main heating circuit operates to its own controlled optimum requirements.
OUTPUT CONTROL
- All pumps (optional) controls should be designed to be wired to the appliance to allow a controlled pump over run.
- If using an external pump control system the capability of a timed pump over run signal provided by the appliance must be maintained at all times.
GAS SUPPLY
- The water header kits are supplied with a 2” gas header, associated components and hoses to make the connection to the appliance
- Note: Test points are provided at each end of the 2” gas header. The test point nearest to the gas inlet is intended to be used as the appliance inlet pressure point.
ASSEMBLY
- The frames must be located in a suitable place that affords a flat and level floor area of suitable load bearing capacity. Care must be taken when locating the frames that space is available for the servicing, installation and maintenance of the appliance and all of the associated connections and equipment. (See Appliance manuals)
- When using multiple frames they must be bolted together and secure to the floor.
SAFE HANDLING
- Installation may require 2 or more operatives to move it to its installation site, remove it from its packaging base and during movement into its installation location. Manoeuvring may include the use of a sack truck and involve lifting, pushing and pulling.
Caution should be exercised during these operations. - Operatives should be knowledgeable in handling techniques when performing these tasks and the following precautions should be considered:
- Grip the boiler at the base.
- Be physically capable.
- Use personal protective equipment as appropriate, e.g. gloves, safety footwear.
- During all manoeuvres and handling actions, every attempt should be made to ensure the following unless unavoidable and/or the weight is light.
- Keep back straight.
- Avoid twisting at the waist.
- Avoid upper body/top heavy bending.
- Always grip with the palm of the hand.
- Use designated hand holds.
- Keep load as close to the body as possible.
- Always use assistance if required.
SYSTEM COMPONENTS
- 2” gas header with inlet test points
- All the associated safety controls, pipes and fittings required to connect the water and gas header to the appliances are supplied. Different pumps are available as options.
MAIN WATER HEADERS
- The main water header consists of un-insulated water flow and return pipes incorporating location and frame mounting brackets sized to cater for the range of products available for use with these kits.
- The Single unit water header is a DN50 pipe system with threaded connections. (Threaded flanges are provided with DN50 40 – 70 kW Low loss header kit).
GAS HEADER
- The gas header consists of a 2” manifold tailored to fit the two, three or four unit versions available and is located in the cradle incorporated in the water header bracket structure.
- All the pipe work and connections are provided to connect the header to the required appliance.
- Test points are provided at each end of the 2” gas header. The test point nearest to the gas inlet is intended to be used as the appliance inlet pressure point.
LOW LOSS HEADERS (MIXING HEADERS)
- All variants of these kits (optional) must be fitted to suitably sized low loss header.
- Note; Bespoke low loss headers may not be able to connect directly to these headers due to the change in pitch and position of the header pipe work used in these kits. (See frame fit low loss header)
- ACV recommend:- DN50 – XB150029.
BOILER PUMP
- Pump kits and External pump controls (sold separately) are designed to provide the optimum flow around the appliance water circuit ensuring the maximum flow rates are contained within the design constrains of the appliance.
- It is not recommended to fit additional pumps directly to the appliance circuit unless they have been designed to ensure the maximum permissible appliance flow rate is not exceeded.
BOILER CONNECTION KITS
- These boiler connections are un-insulated and contain the following:
LEGEND
- 1 ¼” x 1 ¼” x ¾” Tee
- 3/4″ Taper plug
- 1 ¼” Male Parallel/Taper Hex Nipple
- 1 ¼” x 1 ¼” x ½” Tee
- Drain cock
- Non return valve
- Pump union
- Pump inc. gaskets (optional)
Note. For boiler connection assembly, refer to Frame 4.4
FREE-STANDING FRAMES
- The low height frames are designed to provide a compact floor mounted structure capable of having any of the range of appliances fitted to them.
- Incorporating all the required mountings and assembly systems to bolt up to four frames together in a side by side format and mount the relevant water and gas heater kits.
- Provision is also provided to allow the frames to be bolted to the floor.
- Note: Floor mounting bolts are NOT provided.
INSTALLATION AREA AND DIMENSIONS
- Care must be taken to ensure adequate access for boiler / cascade system installation and servicing.
- A minimum of 450mm clearance must be provided from the front of the installed boilers to facilitate boiler servicing.
- Additional clearance must also be considered in the event of boiler replacement.
- Consideration to connecting heating flow and return pipework, gas supply and condensate drainage must be given. Routing of the condensate drain must be made to allow a minimum fall of 1 in 20 away from the installed boilers, throughout its length. Adequate room above the boilers must be provided to install and service the boiler flue system. Further information with respect to flue and condensate drain connection is provided in the installation and servicing instructions provided within the boilers packaging carton.
IMPORTANT POINTS
Before commencing installation:
If Wall mounting;
- Ensure wall is capable of supporting the weight of boilers to be mounted
- Mark drill points of header using the frame as a guide.
- Mark height on to the wall from the floor to the top of the boiler
- Ensure floor is flat and level and is of suitable load bearing capacity
If Frame mounting;
- The frames must stand on a flat and level floor of suitable load bearing capacity.
- If using a pipekit the header must be bolted to the frame before the hoses are connected to the boiler.
MOUNTING FRAME MUST BE SECURED TO THE FLOOR WITH BOLTS
- These Installations refer to perpendicular wall and floor. If walls are not perpendicular, it is recommended that a pipekit be used.
- Allowances must be made for installation where skirting boards or other features are in place that may affect the nominal installation conditions.
INSTALLATION PROCEDURE
WALL MOUNTED SIDE BY SIDE OPTION
- Ensure wall is capable of supporting the weight of boilers to be mounted. Note. boiler weights can found in the boiler Installation Instructions.
- Cut the sides off the cardboard wall mounting template/s (found in the boiler packaging) to create the 50mm side clearance required.
- Mark the height on to the wall from the floor to the top of the boiler as shown in Section 4.1.
- Tape the template/s to the wall ensuring the 50mm side clearance per boiler requirement is adhered to.

- Drill the required holes in the wall to fit the wall mounting plate plugs. (See boiler Installation Instructions for details)
- Screw the wall mounting plate(s) to the wall.


Careful consideration MUST be given to the installation tolerances. See Section 3.7. if these are not adhered to, hoses may become kinked or connections may not fit.
SIDE-BY-SIDE FRAME KIT MOUNTING PROCEDURE
- Place the frame kit sections in the required position and bolt them together at the top and bottom with the bolts, nuts and washers provided.
- Drill and fit the required floor bolt’s (not provided) through the hole provided in the front of the frame feet. (Note, this must be done before fitting water headers)
IMPORTANT: MOUNTING FRAME MUST BE SECURED TO THE FLOOR WITH BOLTS
BOILER MOUNTING
- As appropriate mount the boilers onto either the wall plates or the side by side frame kit.

BOILER ASSEMBLY
- Attach flow connection assembly to the boiler flow connection using suitable jointing compound.
- Fit condensate trap and pipework (See appliance instruction, pipe runs must have 1:20 slope away from the appliance).
- Fit one half of gas union to the boiler gas connection using Gas Safe approved jointing compound.
- Attach flow connection assembly to the boiler return connection using suitable jointing compound, ensuring that the drain port location is in a suitable position.
- Install the drain cock into the tee (if fitted to the return assembly before the drain will fall foul of the boiler casing).
- Attach pump to the pump union on the return assembly using the sealing gaskets provided.

HEADER KIT ASSEMBLY (OPTIONAL ACCESSORY) FITTING MIXING HEADER AND BLANKING FLANGES
- Fit the mixing header and blanking flanges in the chosen positions.
Note. Mixing header can be located either LHS or RHS of the headers.
HEADER ASSEMBLY
- Locate header into required position on the frame legs.
- Align bolt holes and fit bolts (loosely).
- Attach the return hose to the lower side of the pump using the sealing gasket provided.
- Attach the flow hose to the flow connection assembly using the sealing gasket provided.
- Check isolation valves are operational.
- Fit water header blanking flanges using the gaskets and bolts provided.

FITTING THE GAS HEADER
- Fit the blanking cap to the required end of the gas header.
- Place the gas header in the pre-cut cradle on the main header.
- Fit the gas hose into the gas header valve using Gas Safe approved jointing compound.
- Fit the gas hose union to the union attached to the boiler gas connection ensuring a gas tight seal.

ASSEMBLE HEADER ONTO FRAME
- Tighten the header bolts onto the frame.
- Ensure that the test points on the gas header are accessible.
Note: The test point nearest the inlet to the rigs is deemed as the appliance pressure test point for the appliances fitted). - Test all gas joints to ensure they are gas tight and safe.

FIT LOW-LOSS HEADER (NOT SUPPLIED WITH FRAME & HEADER KIT)
- Four threaded PN6 flanges are provided with the low loss header DN50 kit to enable its connection to the DN50 water header.
- Fit low loss header to the water header using the bolts and four gaskets provided.
- Wire pumps to boiler termination (see appliance instructions).
NOTE:
In multi boiler applications the pumps should remain on until the switched demand to the appliance is met, it is from this point the 4 minute pump over run time will commence.
The switch demand is normally control by associated control / sequencers.
INSTALLATION DRAWINGS FOR BOILER SYSTEMS
GENERAL
The boiler and pipekit systems are available in side by side format:
- to 4 boilers in a linear configuration, mounted on a free-standing frame.
- These boiler and cascade systems are sized to provide a flow and return differential of 20º∆T.
- INSTALLATION DRAWING WITH 1 40-70 kW BOILER (LOW LOSS HEADERS OR PLATE HEAT EXCHANGERS

INSTALLATION DRAWING WITH 2 40-70 kW BOILERS (LOW LOSS HEADERS OR PLATE HEAT EXCHANGERS)
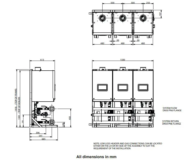
INSTALLATION DRAWING WITH 3 40-70 kW BOILERS (LOW LOSS HEADERS OR PLATE HEAT EXCHANGERS)
INSTALLATION DRAWING WITH 4 40-70 kW BOILERS (LOW LOSS HEADERS OR PLATE HEAT EXCHANGERS)
ELECTRICAL CONNECTIONS & WIRING DIAGRAM
Refer to the Wiring Connection section in the boiler Installation Instructions for wiring details.
IMPORTANT: Ensure the boiler pumps are wired to the boiler in order to ensure the boiler pump overrun facility is provided.
COMMISSIONING AND TESTING
- Electrical and gas safety checks must be carried out on completion of installation as with individual boiler commissioning.
- Pump setting – follow the instructions supplied with the pump, referring to the installation manual.

- ACV U.K. Limited
- St. David’s Business Park,
- Dalgety Bay
- Fife, Scotland
- KY11 9PF
- Tel: 0044 (0)1383 820100
- www.acv.com/gb
- ACV pursues a policy of continuing improvement in the design and performance of its products. The right is therefore reserved to vary specification without notice.




















