CATA IDF 9011 PRO BK Pro BK Medium Electric Oven

Measurements



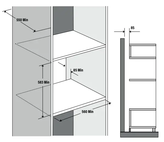
How To Fit


SAFETY
Dear Customer,
Thank you for buying our oven. Please read these instructions carefully for its optimum installation, use and maintenance.
This appliance has been designed and manufactured exclusively for use at home.
In order to ensure optimal installation, use and maintenance of the appliance, we recommend that you read these instructions carefully.
CONNECTING THE OVEN TO THE GRID
Warning: Before connecting the oven: shut off the power supply and check that the voltage and frequency supply matches what is indicated on the rating plate of the equipment.
If the appliance is equipped with a plug, connect the oven to a socket located in an accessible area that is compliant with existing standards.
If the appliance is not equipped with a plug, connect the appliance directly to the power grid, protected by an omnipolar separating device which can be ac-cessed to disconnect it, in accordance with local regulations.
USING THE OVEN PRECAUTIONS
- Warning: Ensure that the appliance is switched off at the fused spur before replacing the lamp to avoid the possibility of electric shock.
- Warning: If the door or door seals are damaged, the oven must not be operated until it has been repaired. Contact Customer Services for advice.
- During installation do not allow the supply cord to touch the hot parts of the appliance.
- Make sure that the supply cord is not caught under or in the appliance and avoid damage to the supply cord.
- Do not install the appliance outdoors in a damp place or in an area that may be prone to water leaks such as under or near a sink unit. In the event of a water, leak allow the machine to dry naturally. Do not use and contact Customer Services for advice.
- Please dispose of the packing material carefully.
- Warning: This appliance can be used by children aged from 8 years and above and persons with reduced physical, sensory or mental capabilities or lack of experience and knowledge if they have been given supervision or instruction concerning use of the appliance in a safe way and understand the hazards involved. Children shall not play with the appliance.
- Cleaning and user maintenance shall not be made by children without supervision. Keep the appliance and its supply cord out of the reach of children less than 8 years old.
- If the supply cord becomes damaged, it must be replaced by the manufacturer, its service agent or similarly qualified persons in order to avoid danger or injury.
- The appliance is not intended to be operated by means of an external timer or separated remote control system.
- The appliance is for domestic use only and only for cooking food. Do not use this appliance as a source of heat.
- The danger of burns! During use the appliance becomes hot. Care should be taken to avoid touching heating elements inside the oven.
- Do not lean on the door or place any objects on the door of the appliance. This can damage the door hinges.
- The oven must be installed in accordance with installation instructions and all dimensions must be followed.
- Never use a damaged appliance! Disconnect the appliance from the electrical outlet and contact your retailer if it is damaged.
- Danger of electric shock! Do not attempt to repair the appliance yourself. In case of malfunction, repairs are to be conducted by qualified personnel only.
- To avoid damaging the cord, do not squeeze, bend or chafe it on sharp edges. Keep it away from hot surfaces and open flames.
- Layout the cord in such a way that no unintentional pulling or tripping over it is possible. Keep the appliance and its cord out of reach of children. Do not operate the appliance with wet hands or while standing on a wet floor. Always turn the appliance off before disconnecting it from the power supply.
- Disconnect the oven from the power supply when not in use and before cleaning.
- Warning: This appliance is supplied with a three-core supply cord and must be connected directly to the mains electricity supply via a unipolar or double pole switch having a 3mm minimum contact gap on each connector.
- The fused spur should be installed in an easily reachable place so that in case of emergency the appliance can be disconnected from power immediately.
- The fixed wiring must be protected against heat surfaces.
- Do not hang any objects on the handle of the oven door.
- Caution: Do not cover the bottom of the oven with aluminum foil or other objects. There is a risk of fire and damage to the enamel in the oven!
- Do not allow aluminum foil, plastic, paper or fabric contact with heating elements. Never leave the appliance unattended during use, especially when cooking with flammable substances (e.g. hot oil, fat, etc.).
- Do not store or never use harsh chemicals, sprays, flammable or non-food in or near the oven.
- This oven is designed specifically for heating or cooking food. The use of corrosive chemicals in heating or cleaning will damage the unit and may cause injury.
- Should any food inside the oven catch fire, keep the door closed. Switch the oven off and disconnect the power supply. Always exercise caution when opening the door.
- Move to the side, and open the door slowly to vent the hot air and/or steam. Make sure your face is away from the opening and make sure there are no children or pets near the oven.
- Only use utensils that are suitable for use in this type of oven.
- The appliance must not be installed behind a decorative door in order to avoid overheating.
Warning: during electrostatic discharge (e.g. a flash of lightning) the oven may stop working. This does not involve risk of damage. Shut off the power supply to the oven and re-connect it after one minute.
Warning: Accessible parts will become hot when in use. To avoid burns and scalds children should be kept away.
LEGAL INFORMATION THE MANUFACTURER:
- Declares that this appliance complies with the essential requirements for low-voltage electrical equipment, as set out in Directive 2014/35/EU, and electromagnetic compatibility as set out in Directive 2014/30/EU.
- Shall not be held responsible for failure to follow the instructions given in this manual or non-compliance with safety standards relating to the correct use of the equipment.
- Shall not be held responsible for any damage caused by the incorrect installation, use or maintenance of the appliance.
- Reserves the right to make any changes to the equipment or this manual without giving prior notice.
- Should you need technical assistance or additional information about our products, please contact your distributor or an official, authorized technical service.
- Never place cookware nor utensils on the touch screen area. Hot objects on it can also cause irreversible damage.
ELECTRIC INSTALLATION
This product is intended for HOUSEHOLD USE only.
Warning: Failure to install the screws or fix the device in accordance with these instructions may result in electrical hazards.
Installation and connection
- Please observe the special installation instructions.
- The appliance is fitted with a plug and must only be connected to a properly installed earthed socket.
- The mains voltage must correspond to the voltage specified on the rating plate.
- The socket must be installed and connecting cable must only be replaced by a qualified electrician.If the plug is no longer to accessible following installation,an all-pole disconnecting device must be present on the installation side with a contact gap of at lease 3mm.
- Adapters,multi-way strips and extension leads must not be used. Overloading can result in a risk of fire.
- Insert in the fixed wiring a mean for disconnection from the supply mains having a contact separation in all poles that provide full disconnection under overvoltage category III conditions, in accordance with the wiring rules. The plug or omnipolar switch must be easily reached on the installed equipment.
- This appliance is not intended to be used via an external timer or a remote control system.
Warning: This is a Class I appliance and MUST be earthed.
This appliance is supplied with a 3 core mains cable colored as follows:
- Brown = L or Live
- Blue = N or Neutral
- Green/Yellow = Earth

CARE AND MAINTENANCE
Note: Do not use harsh abrasive cleaners or sharp metal scrapers to clean the oven door glass. They can scratch the surface, which may result in shattering of the glass.
- Do not use flammable sprays in close vicinity to the appliance.
- The oven should be cleaned regularly and any food deposits removed.
- A steam cleaner is not to be used.

USE
- Main Button
- Functions menu
- Temperature
- Timer
- Main menu
- Start cooking
- Preheat function
- Cooking in phases
- Timer menu
FIRST USE:
When the oven is connected to the mains, it automatically turns on and the language, date and time can be set. To confirm each setting, press the arrow on the right-hand side of the screen. Any values that are not defined by the user will be set to default.
TURNING THE SCREEN ON:
Press the main button (1). The main menu appears with the different options (Cooking, Settings, Recipes and AquaSmart).
TURNING IT OFF:
When the oven is turned on, press the main button (1) to turn it off at any point. If “Sleep Mode” is activated, the sleep screen will appear. If it is deactivated, the screen will enter “Total Shut-down” mode and turn black. If there is cooking in progress, it will turn off automatically.
PROGRAMMING COOKING:
The different function (2), temperature (3) and timer (4) menus are shown on the main screen once the oven has been turned on. To start cooking, set the function and the temperature, then press the “Play” icon (6) on the right-hand side of the screen. Once cooking has started, the real temperature appears below the selected temperature in a red circle to show the heating process. You can return to the main menu at any time by pressing the corresponding button (5).
PROGRAMMING COOKING WITH THE TIMER:
Cooking can be programmed to end automatically at a given time. You can also simply set a cooking time together with the function and temperature. To start cooking, press the “Play” icon (6) on the right of the screen. Once cooking has started, the real temperature appears below the selected temperature in a red circle to show the heating process. When the real temperature of the oven reaches the programmed one, an alarm will sound for 3 seconds to tell you that you can now put the food in. The timer countdown then begins. This is shown below the programmed time by means of a blue circle with the time remaining.
When the selected time has ended, the cooking will end and an alarm will sound. The options “+10min”, “Keep warm”, “Add to Recipes” and “End” will appear:
- “+10min”: This option enables you to keep cooking for 10 additional minutes.
- “Keep warm”: This maintains the temperature of the cooking zone at 70ºC.
- “Add to Recipes”: This option allows you to save the programming used in cooking a new recipe.
- “End”: Allows you to return to the main menu.
PROGRAMME END TIME:
You can programme a time to end the cooking. On the main menu, select the option “Cooking”. Press the arrow on the right of the icon that is below the timer (4). A second clock will appear below the time, on which you can set the time at which you wish cooking to end. You can also set the duration of the cooking. If you set a duration shorter than the time left until the end time, the oven will then remain on standby pending the start of cooking at the correct time. Once it has been programmed, the total time remaining to complete the cooking will appear in a blue circle at the bottom.
COOKING IN PHASES:
Whenever a cooking time is programmed, you can add up to a total of 3 cooking phases with different functions, temperatures and times by pressing on the “+” symbol (8) at the top of the screen. You can also programme a time for the end of the complete process. To start cooking, press the “Play” icon (6) on the right of the screen. Just below, the total duration is displayed as the sum of the times of the different phases.
COOKING AT A LOW TEMPERATURE:
Low temperatures enable you to better preserve a food’s essential flavour, its nutritional prop-erties, and achieve stunning textures. When cooking at a low temperature, try to make the cooking temperature as close as possible to the temperature reached in a food’s interior that you consider to be the ideal cooking point. By referring to low temperatures, we simply mean cooking at mild temperatures. This includes temperatures between 50 and 100ºC. You will always know the temperature at which you should cook the food thanks to the cooking tables and the recipes included with this oven.
“EL CELLER DE CAN ROCA” COOKING TABLES:
The cooking tables developed by “El Celler de Can Roca” give quick access to programmed cooking. They are defined according to the most appropriate time, temperature and function. Take the following aspects into account:
- Some foods require preliminary or final cooking in a pot or a paella pan. These are indicated with a symbol. (11)
- The starting temperature of the food to be cooked is 5°C (refrigerator temperature).
To access the tables, select the “Recipes” option from the main menu. Then, select the “Cook-ing tables” menu and choose the food section. Finally, press the “Play” icon (12) for the desired food and cooking will start automatically.
“EL CELLER DE CAN ROCA” RECIPES:
Various low-temperature recipes developed by “El Celler de Can Roca” are included with this oven. To access all the recipes available, press the “Recipes” option on the main menu. Once you have selected the recipe, press the “Play” button and cooking will start automatically.
CREATING NEW RECIPES:
To create a new recipe, press the “Recipes” option on the main menu. Then, select the “My rec-ipes” menu and press the “+” symbol that appears on the left. Complete the recipe information and press the “save” button. New recipes will then be added into the “My recipes” menu. To cook with these recipes, first press the desired recipe, then the “Cook” button to begin cooking.
AquaSmart FUNCTION:
The AquaSmart function allows you to clean the oven easily and with low energy consumption. On the main menu, select the AquaSmart option and follow the instructions that appear on the screen.
PREHEAT FUNCTION:
This function allows you to clean the oven quickly. When you press the preheat button (7) on the side menu on the screen, the oven uses all the power available to reach the programmed temperature as soon as possible. Afterward, it starts to use the function programmed for carrying out the cooking.
AUDIBLE ALARM:
To set the audible alarm, press the alarm icon (14) on the side bar while cooking is in progress. Set the desired time. To start the countdown, press the play icon. The remaining time is shown on the main screen. Once the timer has ended, an alarm sounds and the “+ 10min” option to delay the duration and the “Close” option to cancel the alarm are shown.
BLOCKING:
You can block the screen by pressing the block icon on the side menu (15) for safety or cleaning. Cooking in progress will not stop during blocking. The screen will remain blocked until you unblock it. Unblocking the screen can be done in several ways depending on the option selected on the settings menu (Press 2 seconds, pattern, or code). The screen will remain blocked even in “sleep” mode.
OVEN INSIDE LIGHT:
To control the oven light, you can switch it on and off using the icon (13) on the side menu of the screen during cooking. The light will also switch on automatically when cooking starts and it will switch off after a certain time to save energy.
SETTINGS MENU:
To access the settings menu press the “Settings” icon on the main menu. Any changes to the settings are made by returning to the main settings menu.
- Screen:
To select the screen’s brightness, use the control bar. - Sound:
You can mute the sound (except the alarm), adjust the volume, or turn off the button click sounds. - Connectivity:
This option is reserved for technical support. - Date and time:
The date and time options are displayed. The alarm options are also displayed. - Language:
Select the display language. - Safety:
This makes it possible for you to select the screen unblocking mode. Press the screen for 2 seconds or use a pattern or PIN code. - Default settings:
This option restores the initial factory settings. - Information:
Here you can find useful information about the device and how it works. - Power setting:
When sleep mode is activated, the screen shows the time after the “Activation Time”. If it is not activated, the screen turns off after the “total shutdown time”. You can adjust both the times and the format of the sleep screen. You can also opt for the oven inside light to switch on automatically when cooking starts or to only be switched on manually.
FAQS
| Problem | Cause / Solution |
| The oven does not warm up. | Check whether one of the following actions solves the problem: The oven may not be turned on. Turn on the oven (-> Turning the screen on). A fuse may have blown in your house or a circuit breaker may have tripped. Change the fuses or reset the circuit. If this happens several times, call technical support. |
| The oven still does not warm up. | It is possible that there may be problems with the in- ternal electrical components. Call technical support. |
| Cannot change the temperature set. | Ensure that the controls are working correctly (-> Use). |
| The oven light does not switch on. | It may be necessary to change it, but first of all check that it is correctly fitted and making contact correctly. Remember that bulbs are not covered by the warran- ty. CONTACT THE CUSTOMER SERVICE LINE. |
| The grill does not heat up correctly. | It may be too low. Set the temperature control to a higher temperature. |
Importőr:
MULTIKOMPLEX BUDAPEST KFT.
H-1211 Budapest Mansfeld Péter utca 27.
tel.: +(36-1) 427 0325, +(36-1) 427-0326; fax: +(36-1) 427 0327
www.multikomplex.hu




























