WOLF M SERIES Warming Drawer Installation Guide

Warming Drawers
Wolf Warming Drawers are designed to take care of prepared foods until it is time to serve them. You can adjust the temperature, keeping moist foods moist and
crisp foods crisp. Warming Drawers are ideal for proofing dough. Drawer fronts are available to match the look of Wolf Ovens and Sealed Burner Rangetops. The integrateddrawer front allows for a custom panel and handle.
Features and specifications are subject to change at any time without notice.
Throughout this guide, dimensions may vary by ± 3 mm
WARMING DRAWER FRONTS
Warming Drawers
DRAWER FRONT OPTIONS
Wolf Warming Drawer fronts allow for many design options, but the Warming Drawer itself will be the same for all applications. A panel mounting kit is required when installing a custom panel. The panel mounting kit is available through an authorized Wolf dealer.
The 51 mm thick drawer front, in 76 cm and 91 cm widths, is designed to be installed below a Sealed Burner Rangetop, so the panel aligns properly with the front of the rangetop.
Dimensions for the Warming Drawer remain the same, even though the drawer front may be wider to match a Wolf 91 cm Oven or Sealed Burner Rangetop
DIMENSIONS
DRAWER FRONT
Planning Information
The Warming Drawer must be installed with a Wolf drawer front, available through an authorized Wolf dealer. Specific installation instructions are included with the drawer front.
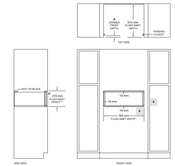
The Warming Drawer can be installed in a standard or flush inset application.
For a standard installation, the drawer collar and front panel sit proud of the cabinet face frame. A recessed installation requires the cabinetry be recessed by 5 mm so the collar is flush with the cabinet face frame but the drawer front will sit proud. A flush inset installation requires the drawer collar and front panel be recessed to be flush
with surrounding cabinetry. Refer to the illustrations on the following pages for minimum cabinet dimensions for your specific installation.
Finish the edges of the opening. They may be visible when the drawer is open.
For standard installations, the face trim will overlap stiles and rails. Refer to the chart below.
For flush inset installations, a minimum 3 mm reveal is required on all sides. To ensure consistent reveals, each corner of the opening must be exactly 90°
INSTALLATION REQUIREMENTS
Minimum Base Support 90 kg
Trim Overlap (top, bottom, sides) 16 mm
ELECTRICAL REQUIREMENTS
Installation must comply with all applicable electrical codes and be properly grounded (earthed). Locate the electrical supply flush with the back wall and within the shaded area shown in the illustrations on the following pages. For ease of installation, the electrical supply for the Warming Drawer can be placed in an adjacent cabinet within reach of the power cord.
ELECTRICAL REQUIREMENTS
Electrical Supply 220-240 V AC, 50/60 Hz
Service 850 W
Receptacle grounding-type (earthed)
Power Cord .9 m
Warming Drawer
STANDARD INSTALLATION
NOTE: Location of electrical supply within opening may require additional cabinet depth.
Warming Drawer
FLUSH INSET INSTALLATION
*Will be visible and should be finished to match cabinetry.
**Dimension provides minimum reveals.
NOTE: Location of electrical supply within opening may require additional cabinet dept
DRAWER FRONT DEPTH (A) M SERIES E SERIES
Transitional / Professional 22 mm 29 mm
Professional (51 mm thick) NA 54 mm
Contemporary 25 mm NA
Custom front panel depth is dependent on panel thickness.
Warranty
Wolf Appliance International Limited Warranty
FOR RESIDENTIAL USE
These Warranty Terms and Conditions (‘Warranty’) constitute your agreement with Sub-Zero Group Australia Pty Ltd (ACN 610 807 899) (‘Wolf’) and will apply to your service order. The benefits given by this Warranty are in addition to all consumer guarantees and other rights and remedies prescribed by the Australian Consumer Law and any other applicable laws.
Our products come with guarantees that cannot be excluded under the Australian Consumer Law. You are entitled to a replacement or refund for a major failure and compensation for any other reasonably foreseeable loss or damage. You are also entitled to have the goods repaired or replaced if the goods fail to be of acceptable quality and the failure does not amount to a major failure.
In addition to your rights and remedies under the Australian Consumer Law, Wolf provides customers with a Warranty where, if any part of a Wolf product is found upon inspection by an authorised Wolf representative or an associated licensed technician supplied by either Wolf or a relevant approved supplier (including a Wolf factory certified service) (‘Service Representative’) to be defective in materials or workmanship, Wolf will repair and replace the part as follows:
FULL TWO YEAR WARRANTY* (**Outdoor product full one year warranty)
For two years from the date of original installation, this Wolf Appliance product warranty covers all parts and labour to repair or replace, under normal residential use, any part of the product that proves to be defective in materials or workmanship. All service provided by Wolf Appliance under the above warranty must be performed by Wolf factory certified service, unless otherwise specified by Wolf Appliance, Inc. Where the Service Representative is unable to identify any fault in the product, Wolf may require the consumer to provide proof that the product is defective. For the avoidance of doubt, defective products or parts become Wolf’s property. Service will be provided during normal business hours.
LIMITED FIVE YEAR WARRANTY
For five years from the date of original installation, Wolf Appliance will repair or replace the following parts that prove to be defective in materials or workmanship: gas burners (excludes appearance), electric heating elements, blower motors (ventilation hoods), electronic control boards, magnetron tubes and induction generators. If the owner uses Wolf factory certified service, the service provider will repair or replace the above listed parts at no cost with the owner paying for all other costs, including labour. If the owner uses non-certified service, the owner must contact Sub-Zero Group Australia, (using the information below) to receive repaired or replacement parts. Wolf Appliance will not reimburse the owner for parts purchased from non-certified service or other sources.
TERMS APPLICABLE TO EACH WARRANTY
The warranty applies only to products installed for normal residential use. This warranty does not cover any parts or labour to correct any defect caused by negligence, accident or improper use, maintenance, installation, service or repair.
CLAIM PROCEDURE
In order to claim the Warranty, you must cease using the product when a fault arises, contact Sub-Zero or authourised Sub-Zero dealer where the product was purchased to report the issue and follow Sub-Zero’s directions regarding what to do next. Sub- Zero’s general contact details are as follows:
Sub-Zero Group Australia 11-19 Bank Place
Melbourne VIC 3000
Phone: 03 9600 2218 email: [email protected]
EXCLUSIONS
Except to the extent required by law, all consumer guarantees, representations, warranties, terms and conditions in relation to the products (whether implied or otherwise) are
hereby excluded to the maximum extent permitted by law.
To the fullest extent permitted by law, Wolf excludes all liability for damage or injury to any person, damage to any property and any indirect consequential or other loss or damage.
*Stainless steel (doors, panels, handles, product frames and interior surfaces) are covered by a limited 60-day parts and labour warranty for cosmetic defects.
** Full one year warranty applies to outdoor product. Product must be approved for outdoor use, designated by model and serial number.

























