GAGGENAU WS 462 Warming Drawer

Electrical connection
- The appliance must only be connected to a earthing contact socket that has been correctly installed. A socket must only be installed or the power cable replaced if this is carried out by a qualified electrician, and in accordance with the appropriate regulations.
- The appliance must only be connected using the power cable provided. Connect the power cable to the back of the appliance.
- Connecting cables with various plug types are available from after-sales service.
- No multi-plugs, multiple connectors or extension leads may be used. Overloading causes a risk of fire.
- If the plug can no longer be reached after the installation, a partition must be provided in the phases in the permanent electrical installation in accordance with the installation regulations.
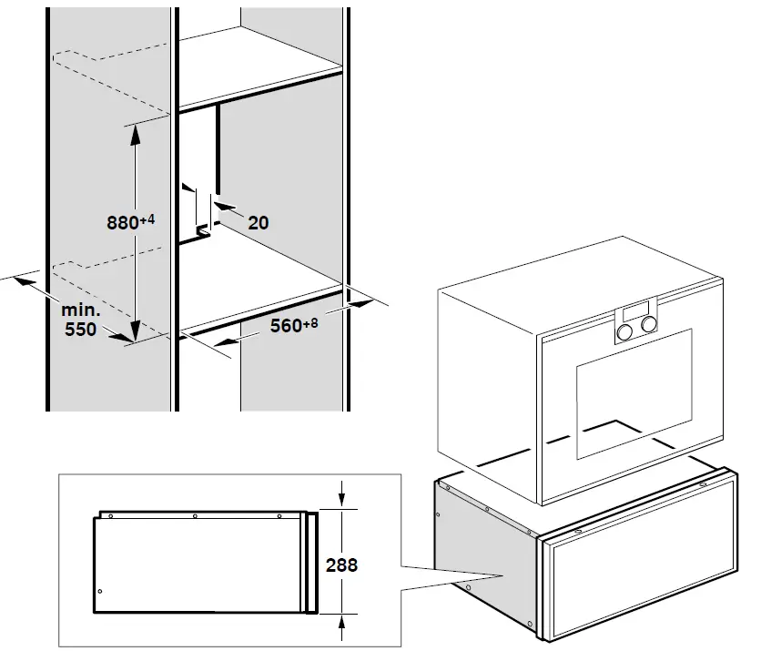
Fitted units
- The fitted cabinet must not have a back panel behind the appliances.
- There should be a gap of at least 20 mm between the wall and the cabinet base as well as the rear panel of the cabinet situated above.
- Do not install the appliance behind the door of a unit.
- Ventilation slots and intake openings must not be covered.
- Read the information in the installation instructions for the appliance installed above.
- Do not install the appliance behind a decorative panel, as this puts the appliance at risk of overheating.
Installing the appliance
Connect the appliance to the mains. Then align the appliance flush with the units and screw it in place.
Note: Ensure that the connector lead does not become trapped or bent. After installation, the connector lead must not be in contact with the back or the base of the appliance.
After installation, the connector lead must not be in contact with the back or the base of the appliance.


DIMENSION

WARNING
Damaged insulation of the mains connection cable is dangerous.
- The mains connection cable must never come into contact with heat sources or hot appliance parts.
- The mains connection cable must never come into contact with sharp points or edges.
- The mains connection cable must never be broken, pinched or changes.
- Professionally incorrect connection of devices up to 13 A/3 kW is dangerous. The information about the power of this device can be found on the rating plate
- In Denmark, the device is only approved for use in connection with a socket type E/F.

- If there is only a type K socket on the connection point, the device must be connected with a suitable adapter. Only on this must-de is the device properly grounded. This adapter (spare part no. 00623333) can be purchased from customer service.





















