Simplex 4100U Flex Amplifiers

Introduction
This publication describes the installation procedure for the 4100U and 4100ES Flex Amplifiers. This product is compatible with both 4100U and 4100ES Fire Alarm Control Panels (FACP).
IMPORTANT: Verify FACP System Programmer, Executive, and Slave Software compatibility when installing, or replacing system components. Refer to the Technical Support Information and Downloads website for compatibility information.
In this Publication
This publication discusses the following topics:
| Topic | See Page |
| Cautions, Warnings, and Regulatory Information | 2 |
| Introduction to the Flex Amplifiers | 3 |
| Amplifier Specifications | 5 |
| Setting the Baud Rate and Address | 6 |
| Installing the Amplifier onto the PDI | 8 |
| Amplifier Field Wiring | 11 |
| LED Indications | 15 |
| Troubleshooting | 16 |
Cautions, Warnings, and Regulatory Information
Cautions and Warnings
READ AND SAVE THESE INSTRUCTIONS- Follow the instructions in this installation manual. These instructions must be followed to avoid damage to this product and associated equipment. Product operation and reliability depend upon proper installation.
- DO NOT INSTALL ANY SIMPLEX® PRODUCT THAT APPEARS DAMAGED- Upon unpacking your Simplex product, inspect the contents of the carton for shipping damage. If damage is apparent, immediately file a claim with the carrier and notify an authorized Simplex product supplier.
- ELECTRICAL HAZARD – Disconnect electrical field power when making any internal adjustments or repairs. All repairs should be performed by a representative or authorized agent of your local Simplex product supplier.
- EYE SAFETY HAZARD – Under certain fiber optic application conditions, the optical output of this device may exceed eye safety limits. Do not use magnification (such as a microscope or other focusing equipment) when viewing the output of this device.
- STATIC HAZARD – Static electricity can damage components. Handle as follows:
- Ground yourself before opening or installing components.
- Prior to installation, keep components wrapped in anti-static material at all times.
- FCC RULES AND REGULATIONS – PART 15 – This equipment has been tested and found to comply with the limits for a Class A digital device pursuant to Part 15 of the FCC Rules. These limits are designed to provide reasonable protection against harmful interference when the equipment is operated in a commercial environment. This equipment generates, uses, and can radiate radio frequency energy and, if not installed and used in accordance with the instruction manual, may cause harmful interference to radio communications. Operation of this equipment in a residential area is likely to cause harmful interference in which case the user will be required to correct the interference at his own expense.
- SYSTEM REACCEPTANCE TEST AFTER SOFTWARE CHANGES – To ensure proper system operation, this product must be tested in accordance with NFPA 72® after any programming operation or change in site-specific software. Reacceptance testing is required after any change, addition or deletion of system components, or after any modification, repair or adjustment to system hardware or wiring. All components, circuits, system operations, or software functions, known to be affected by a change, must be 100% tested. In addition, to ensure that other operations are not inadvertently affected, at least 10% of initiating devices that are not directly affected by the change, up to a maximum of 50 devices, must also be tested and proper system operation verified.
Introduction to the Flex Amplifiers
Overview
The Flex amplifiers provide audio signals to system speaker circuits. The Flex Amplifier is offered in two versions, the Flex-35 and the Flex-50. Functionally, both amplifiers behave identically but the Flex-50 is capable of supplying an additional 15W of power over the 35W version. The maximum available output from the Flex-50 and Flex-35 is 50W and 35W, respectively. The load may be configured in any way so long as the maximum power output limit is not exceeded. Both amplifiers provide dual-channel capability with internal backup functionality. (All Flex Amplifiers described in this publication are listed in the next two sections.)
Flex Amplifiers Not Compatible with CSNAC Option
Note: The following Product IDs or PIDs (example: 4100-1212/1261) are not compatible with the Constant Supervision Notification Appliance Circuit (CSNAC) option.
- 4100-1212/1261 Analog Flex-50/Flex-35 Amp (25 VRMS)
- 4100-1213/1262 Analog Flex-50/Flex-35 Amp (70 VRMS)
- 4100-1226/1263 Digital Flex-50/Flex-35 Amp (25 VRMS)
- 4100-1227/1264 Digital Flex-50/Flex-35 Amp (70 VRMS)

For LED descriptions, see the “LED Indications” section at the end of this document.
Flex Amplifiers Compatible with CSNAC Option
Note: The following PIDs (example: 4100-1312/1361) are compatible with all options (including the CSNAC option) and 4100U Master Firmware Revision 11.08 or later.
- 4100-1312/1361 Analog Flex-50/Flex-35 Amp (25 VRMS)
- 4100-1313/1362 Analog Flex-50/Flex-35 Amp (70 VRMS)
- 4100-1326/1363 Digital Flex-50/Flex-35 Amp (25 VRMS)
- 4100-1327/1364 Digital Flex-50/Flex-35 Amp (70 VRMS)

For LED descriptions, see the “LED Indications” section at the end of this document.
Amplifier Specifications
Specifications
The specifications below apply to both analog and digital amplifiers
- Supply voltage: 19.7-31.1 VDC
- Output voltage: 25 VRMS or 70.7 VRMS
- Maximum output power:
- Flex-35 = 35 W
- Flex-50 = 50 W
Flex-50
- Alarm state: 5.55 A (signal) 74 mA (card)
- Supervision state: 351 mA (signal) 74 mA (card)
- Low power state (NACs in supervision, no power to power stage): 0 A (signal) 85 mA (card)
Flex-35
- Alarm state: 4.00 A (signal) 74 mA (card)
- Supervision state: 351 mA (signal) 74 mA (card)
- Low power state (NACs in supervision, no power to power stage): 0 A (signal) 85 mA (card)
The equipment operates normally with ambient temperatures outside the cabinet from 32° to 120° F (0° to 49° C), inclusive.
The equipment operates normally under non-condensing humidity conditions up to 93% relative humidity at 90° F (32° C).
Setting the Baud Rate and Address
Overview
This section describes how to configure the amplifier’s baud rate and address using DIP switch SW1. Configuration is the same for analog and digital amplifiers.
Using DIP Switch SW1
The device baud rate and address is set via DIP switch SW1, which is a bank of eight switches. From left to right (see Figure 3, below) these switches are designated as SW1-1 through SW1-8. The function of these switches is as follows:
- SW1-1. This switch sets the baud rate for the internal communications line running between the card and the CPU. Set this switch to ON.
- SW1-2 through SW1-8. These switches set the card’s address within the FACP. Refer to Table 1 for a complete list of the switch settings for all of the possible card addresses.
Notes:
- You must set these switches to the value assigned to the card by the Programmer.
- The SW1 setting applies to audio controller slaves, including audio input cards.

Table 1. Card Addresses
| Address | SW 1-2 | SW 1-3 | SW 1-4 | SW 1-5 | SW 1-6 | SW 1-7 | SW 1-8 | Address | SW 1-2 | SW 1-3 | SW 1-4 | SW 1-5 | SW 1-6 | SW 1-7 | SW 1-8 | |
| 1 | ON | ON | ON | ON | ON | ON | OFF | 61 | ON | OFF | OFF | OFF | OFF | ON | OFF | |
| 2 | ON | ON | ON | ON | ON | OFF | ON | 62 | ON | OFF | OFF | OFF | OFF | OFF | ON | |
| 3 | ON | ON | ON | ON | ON | OFF | OFF | 63 | ON | OFF | OFF | OFF | OFF | OFF | OFF | |
| 4 | ON | ON | ON | ON | OFF | ON | ON | 64 | OFF | ON | ON | ON | ON | ON | ON | |
| 5 | ON | ON | ON | ON | OFF | ON | OFF | 65 | OFF | ON | ON | ON | ON | ON | OFF | |
| 6 | ON | ON | ON | ON | OFF | OFF | ON | 66 | OFF | ON | ON | ON | ON | OFF | ON | |
| 7 | ON | ON | ON | ON | OFF | OFF | OFF | 67 | OFF | ON | ON | ON | ON | OFF | OFF | |
| 8 | ON | ON | ON | OFF | ON | ON | ON | 68 | OFF | ON | ON | ON | OFF | ON | ON | |
| 9 | ON | ON | ON | OFF | ON | ON | OFF | 69 | OFF | ON | ON | ON | OFF | ON | OFF | |
| 10 | ON | ON | ON | OFF | ON | OFF | ON | 70 | OFF | ON | ON | ON | OFF | OFF | ON | |
| 11 | ON | ON | ON | OFF | ON | OFF | OFF | 71 | OFF | ON | ON | ON | OFF | OFF | OFF | |
| 12 | ON | ON | ON | OFF | OFF | ON | ON | 72 | OFF | ON | ON | OFF | ON | ON | ON | |
| 13 | ON | ON | ON | OFF | OFF | ON | OFF | 73 | OFF | ON | ON | OFF | ON | ON | OFF | |
| 14 | ON | ON | ON | OFF | OFF | OFF | ON | 74 | OFF | ON | ON | OFF | ON | OFF | ON | |
| 15 | ON | ON | ON | OFF | OFF | OFF | OFF | 75 | OFF | ON | ON | OFF | ON | OFF | OFF | |
| 16 | ON | ON | OFF | ON | ON | ON | ON | 76 | OFF | ON | ON | OFF | OFF | ON | ON | |
| 17 | ON | ON | OFF | ON | ON | ON | OFF | 77 | OFF | ON | ON | OFF | OFF | ON | OFF | |
| 18 | ON | ON | OFF | ON | ON | OFF | ON | 78 | OFF | ON | ON | OFF | OFF | OFF | ON | |
| 19 | ON | ON | OFF | ON | ON | OFF | OFF | 79 | OFF | ON | ON | OFF | OFF | OFF | OFF | |
| 20 | ON | ON | OFF | ON | OFF | ON | ON | 80 | OFF | ON | OFF | ON | ON | ON | ON | |
| 21 | ON | ON | OFF | ON | OFF | ON | OFF | 81 | OFF | ON | OFF | ON | ON | ON | OFF | |
| 22 | ON | ON | OFF | ON | OFF | OFF | ON | 82 | OFF | ON | OFF | ON | ON | OFF | ON | |
| 23 | ON | ON | OFF | ON | OFF | OFF | OFF | 83 | OFF | ON | OFF | ON | ON | OFF | OFF | |
| 24 | ON | ON | OFF | OFF | ON | ON | ON | 84 | OFF | ON | OFF | ON | OFF | ON | ON | |
| 25 | ON | ON | OFF | OFF | ON | ON | OFF | 85 | OFF | ON | OFF | ON | OFF | ON | OFF | |
| 26 | ON | ON | OFF | OFF | ON | OFF | ON | 86 | OFF | ON | OFF | ON | OFF | OFF | ON | |
| 27 | ON | ON | OFF | OFF | ON | OFF | OFF | 87 | OFF | ON | OFF | ON | OFF | OFF | OFF | |
| 28 | ON | ON | OFF | OFF | OFF | ON | ON | 88 | OFF | ON | OFF | OFF | ON | ON | ON | |
| 29 | ON | ON | OFF | OFF | OFF | ON | OFF | 89 | OFF | ON | OFF | OFF | ON | ON | OFF | |
| 30 | ON | ON | OFF | OFF | OFF | OFF | ON | 90 | OFF | ON | OFF | OFF | ON | OFF | ON | |
| 31 | ON | ON | OFF | OFF | OFF | OFF | OFF | 91 | OFF | ON | OFF | OFF | ON | OFF | OFF | |
| 32 | ON | OFF | ON | ON | ON | ON | ON | 92 | OFF | ON | OFF | OFF | OFF | ON | ON | |
| 33 | ON | OFF | ON | ON | ON | ON | OFF | 93 | OFF | ON | OFF | OFF | OFF | ON | OFF | |
| 34 | ON | OFF | ON | ON | ON | OFF | ON | 94 | OFF | ON | OFF | OFF | OFF | OFF | ON | |
| 35 | ON | OFF | ON | ON | ON | OFF | OFF | 95 | OFF | ON | OFF | OFF | OFF | OFF | OFF | |
| 36 | ON | OFF | ON | ON | OFF | ON | ON | 96 | OFF | OFF | ON | ON | ON | ON | ON | |
| 37 | ON | OFF | ON | ON | OFF | ON | OFF | 97 | OFF | OFF | ON | ON | ON | ON | OFF | |
| 38 | ON | OFF | ON | ON | OFF | OFF | ON | 98 | OFF | OFF | ON | ON | ON | OFF | ON | |
| 39 | ON | OFF | ON | ON | OFF | OFF | OFF | 99 | OFF | OFF | ON | ON | ON | OFF | OFF | |
| 40 | ON | OFF | ON | OFF | ON | ON | ON | 100 | OFF | OFF | ON | ON | OFF | ON | ON | |
| 41 | ON | OFF | ON | OFF | ON | ON | OFF | 101 | OFF | OFF | ON | ON | OFF | ON | OFF | |
| 42 | ON | OFF | ON | OFF | ON | OFF | ON | 102 | OFF | OFF | ON | ON | OFF | OFF | ON | |
| 43 | ON | OFF | ON | OFF | ON | OFF | OFF | 103 | OFF | OFF | ON | ON | OFF | OFF | OFF | |
| 44 | ON | OFF | ON | OFF | OFF | ON | ON | 104 | OFF | OFF | ON | OFF | ON | ON | ON | |
| 45 | ON | OFF | ON | OFF | OFF | ON | OFF | 105 | OFF | OFF | ON | OFF | ON | ON | OFF | |
| 46 | ON | OFF | ON | OFF | OFF | OFF | ON | 106 | OFF | OFF | ON | OFF | ON | OFF | ON | |
| 47 | ON | OFF | ON | OFF | OFF | OFF | OFF | 107 | OFF | OFF | ON | OFF | ON | OFF | OFF | |
| 48 | ON | OFF | OFF | ON | ON | ON | ON | 108 | OFF | OFF | ON | OFF | OFF | ON | ON | |
| 49 | ON | OFF | OFF | ON | ON | ON | OFF | 109 | OFF | OFF | ON | OFF | OFF | ON | OFF | |
| 50 | ON | OFF | OFF | ON | ON | OFF | ON | 110 | OFF | OFF | ON | OFF | OFF | OFF | ON | |
| 51 | ON | OFF | OFF | ON | ON | OFF | OFF | 111 | OFF | OFF | ON | OFF | OFF | OFF | OFF | |
| 52 | ON | OFF | OFF | ON | OFF | ON | ON | 112 | OFF | OFF | OFF | ON | ON | ON | ON | |
| 53 | ON | OFF | OFF | ON | OFF | ON | OFF | 113 | OFF | OFF | OFF | ON | ON | ON | OFF | |
| 54 | ON | OFF | OFF | ON | OFF | OFF | ON | 114 | OFF | OFF | OFF | ON | ON | OFF | ON | |
| 55 | ON | OFF | OFF | ON | OFF | OFF | OFF | 115 | OFF | OFF | OFF | ON | ON | OFF | OFF | |
| 56 | ON | OFF | OFF | OFF | ON | ON | ON | 116 | OFF | OFF | OFF | ON | OFF | ON | ON | |
| 57 | ON | OFF | OFF | OFF | ON | ON | OFF | 117 | OFF | OFF | OFF | ON | OFF | ON | OFF | |
| 58 | ON | OFF | OFF | OFF | ON | OFF | ON | 118 | OFF | OFF | OFF | ON | OFF | OFF | ON | |
| 59 | ON | OFF | OFF | OFF | ON | OFF | OFF | 119 | OFF | OFF | OFF | ON | OFF | OFF | OFF | |
| 60 | ON | OFF | OFF | OFF | OFF | ON | ON |
Installing the Amplifier onto the PDI
Overview
The Flex amplifier assembly mounts on the PDI in an expansion bay. Up to two Flex Amplifiers may receive power from an XPS. If two Flex Amplifiers receive power from one XPS, then the XPS is solely dedicated to providing power for the Flex Amplifiers and cannot be used for supplying any other modules or I/O wiring off of the XPS I/O terminals. If the XPS is providing power for one Flex Amplifier, see Figure 4 for mounting placement. If the XPS is providing power for two Flex Amplifiers, see Figure 5 for mounting placement.

Mounting
Lower the amplifier into the bay by placing the two tabs on the back of the amplifier assembly into the two slots on the bottom of the bay. Then, use the connector on the backside of the Flex module to connect to the PDI as shown in Figure 6, below.

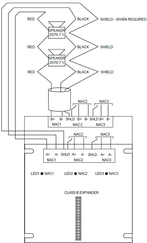
Amplifier Field Wiring
Overview
This section contains field wiring guidelines and illustrations for the amplifiers. These diagrams apply to both the Flex-35 and Flex-50. Wiring of optional NAC Expansion, Class A, and Constant Supervision NAC (CSNAC) modules is also covered in this section, as well as speaker circuit wiring distances. Since the Flex amplifiers allow self-backing operation, no wiring is required for configuring an amplifier for backup operation.
Table 2. Class A (Style Z) Speaker Circuit Wiring Distances for Flex Amplifiers
| VRMS | Power (Watts) | Distance to the Last Speaker (One Way) (Feet/Meters) | ||||
| Applied | Actual | 12 AWG (3.309 mm2) | 14 AWG (2.081 mm2) | 16 AWG (1.309 mm2) | 18 AWG (0.8231 mm2) | |
| 25 | 50 | 25 | 812 ft. (247 m) | 510 ft. (155 m) | 340 ft. (104 m) | 200 ft. (61 m) |
| 25 | 40 | 20 | 1,015 ft. (309 m) | 640 ft. (195 m) | 402 ft. (123 m) | 252 ft. (77 m) |
| 25 | 30 | 15 | 1,350 ft. (411 m) | 850 ft. (259 m) | 535 ft. (163 m) | 337 ft. (103 m) |
| 25 | 20 | 10 | 2,035 ft. (620 m) | 1,250 ft. (381 m) | 804 ft. (245 m) | 505 ft. (154 m) |
| 25 | 10 | 5 | 4,070 ft. (1,241 m) | 2,600 ft. (792 m) | 1,600 ft. (488 m) | 1,012 ft. (308 m) |
| 70 | 50 | 25 | 6,500 ft. (1,981 m) | 4,096 ft. (1,248 m) | 2,578 ft. (786 m) | 1,620 ft. (494 m) |
| 70 | 40 | 20 | 8,121 ft. (2,475 m) | 5,108 ft. (1,557 m) | 3,212 ft. (979 m) | 2,020 ft. (616 m) |
| 70 | 30 | 15 | 10,860 ft. (3,310 m) | 6,800 ft. (2,073 m) | 4,270 ft. (1,301 m) | 2,689 ft. (820 m) |
| 70 | 20 | 10 | 16,212 ft. (4,941 m) | 10,190 ft. (3,106 m) | 6,400 ft. (1,951 m) | 4,030 ft. (1,228 m) |
| 70 | 10 | 5 | 32,400 ft. (9,876 m) | 20,000 ft. (6,096 m) | 12,500 ft. (3,810 m) | 8,000 ft. (2,438 m) |
Table 3. Class B (Style Y) Speaker Circuit Wiring Distances for Flex Amplifiers
| VRMS | Power (Watts) | Distance to the Last Speaker (One Way) (Feet/Meters) | ||||
| Applied | Actual | 12 AWG (3.309 mm2) | 14 AWG (2.081 mm2) | 16 AWG (1.309 mm2) | 18 AWG (0.8231 mm2) | |
| 25 | 50 | 25 | 1,624 ft. (495 m) | 1,021 ft. (311 m) | 680 ft. (207 m) | 400 ft. (122 m) |
| 25 | 40 | 20 | 2,033 ft. (620 m) | 1,279 ft. (390 m) | 804 ft. (245 m) | 505 ft. (154 m) |
| 25 | 30 | 15 | 2,707 ft. (825 m) | 1,704 ft. (519 m) | 1,070 ft. (326 m) | 673 ft. (205 m) |
| 25 | 20 | 10 | 4,067 ft. (1,240 m) | 2,558 ft. (780 m) | 1,608 ft. (490 m) | 1,011 ft. (308 m) |
| 25 | 10 | 5 | 8,140 ft. (2,481 m) | 5,120 ft. (1,561 m) | 3,219 ft. (981 m) | 2,024 ft. (617 m) |
| 70 | 50 | 25 | 13,000 ft. (3,962 m) | 8,197 ft. (2,498 m) | 5,154 ft. (1,571 m) | 3,241 ft. (988 m) |
| 70 | 40 | 20 | 16,243 ft. (4,951 m) | 10,216 ft. (3,114 m) | 6,424 ft. (1,958 m) | 4,040 ft. (1,231 m) |
| 70 | 30 | 15 | 21,721 ft. (6,621 m) | 13,602 ft. (4,146 m) | 8,553 ft. (2,607 m) | 5,379 ft. (1,640 m) |
| 70 | 20 | 10 | 32,424 ft. (9,883 m) | 20,394 ft. (6,216 m) | 12,823 ft. (3,908 m) | 8,065 ft. (2,458 m) |
| 70 | 10 | 5 | 64,800 ft. (19,751 m) | 40,000 ft. (12,192 m) | 25,000 ft. (7,620 m) | 16,000 ft. (4,877 m) |
Class B Wiring


- Leave the 10 K, ½ W resistors (378-030; brown/black/orange) on the “B+” to “B-” terminals of unused circuits.
- All wiring is between 18 AWG (0.8231 mm2) and 12 AWG (3.309 mm2).
- Field wiring is supervised and power-limited.
- Total available Flex-50 power is 50 W (2A @ 25 VRMS, 0.707A @ 70.7 VRMS).
- Total available Flex-35 power is 35 W (1.4A @ 25VRMS, 0.5A @ 70.7 VRMS).
- NACs and power stages can be configured for any combination of circuits as long as the total output power does not exceed the maximum specified rating.
- Flex-35 Examples:
25 W to PS1 + 10 W to PS2
0 W to PS1 + 35 W to PS2* - Flex-50 Examples:
25 W to PS1 + 2 5W to PS2
40 W to PS1 + 10 W to PS2
*This is an example of a selfbacking configuration. PS1 is not loaded, but is saved for backup should PS2 fail.
- Flex-35 Examples:
- Terminal designations “+” and “-” are for the alarm state.
- Shields, when required, are normally connected to 0 V as shown. Alternate shield termination using Earth ground is provided on the amplifier chassis.
Class A Wiring


- Leave the 10 K, ½ W resistors (378-030; brown/black/orange) on the “B+” to “B-” terminals of unused circuits. Leave unused “A+” and A-” terminals unconnected.
- All wiring is between 18 AWG (0.8231 mm2) and 12 AWG (3.309 mm2).
- Field wiring is supervised and power-limited.
- Total available Flex-50 power is 50 W (2A @ 25 VRMS, 0.707A @ 70.7 VRMS).
- Total available Flex-35 power is 35 W (1.4A @ 25 VRMS, 0.5A @ 70.7 VRMS).
- NACs and power stages can be configured for any combination of circuits as long as the total output power does not exceed the maximum specified rating.
- Flex-35 Examples:
25 W to PS1 + 10 W to PS2
0 W to PS1 + 35 W to PS2* - Flex-50 Examples:
25 W to PS1 + 25 W to PS2
40 W to PS1 + 10 W to PS2
*This is an example of a selfbacking configuration. PS1 is not loaded, but is saved for backup should PS2 fail.
- Flex-35 Examples:
- Terminal designations “+” and “-” are for the alarm state.
- Shields, when required, are normally connected to 0 V as shown. Alternate shield termination using Earth ground is provided on the amplifier chassis.
Constant Supervision NAC (CSNAC) Wiring
- Leave the 10 K resistors on the “B+” and “B-” terminals of unused circuits.
- Remove the 10 K resistors from the “B+” and “B-” terminals on the card that hosts the CSNAC (amplifiers and XSIG cards).
- All wiring is between 18 AWG (0.8231 mm2) (minimum) to 12 AWG (3.309 mm2) (maximum).
- Field wiring is power-limited.
- Maximum speaker circuit current is 2 A per circuit.
- Total available alarm power is 50 W (2 A @ 25 VRMS, 0.707 A @ 70.7 VRMS) or 35 W (1.4 A @ 25 VRMS, 0.5 A @ 70.7 VRMS) depending on the connected amplifier.
- Shields, when required, are normally connected as shown. Alternate shield termination using earth ground is provided on amplifier chassis.
- Signal wiring must test free of grounds.
LED Indications
Flex Amplifiers Not Compatible with CSNAC Option
The LEDs for amplifiers not compatible with the CSNAC option are summarized in Table 4.
Table 4. LED Indications for Flex Amplifiers Not Compatible with CSNAC
| LED # | LED name | Meaning |
| LED1 | Comm Loss | Steadily on when the amplifier is not communicating with the system CPU |
| LED2 | IN_TBL | Single blink: input channel 1 failure Double blink: input channel 2 failure Steadily on: failure on input channels 1 and 2 Applies to analog or digital audio riser. |
| LED3 | OUT_TBL2 | Steadily on during Power Stage 2 Overcurrent Failure/Output Supervision Trouble |
| LED4 | OUT_TBL1 | Steadily on during Power Stage 1 Overcurrent Failure/Output Supervision Trouble |
| LED5 | NAC 3 Status | Steadily on when NAC 3 is on or in Trouble condition |
| LED6 | NAC 2 Status | Steadily on when NAC 2 is on or in Trouble condition |
| LED7 | NAC 1 Status | Steadily on when NAC 1 is on or in Trouble condition |
| LED8 | NAC3_PS2 | NAC 3 routed to Power Stage 2 |
| LED9 | NAC2_PS2 | NAC 2 routed to Power Stage 2 |
| LED10 | NAC1_PS2 | NAC 1 routed to Power Stage 2 |
Flex Amplifiers Compatible with CSNAC Option
The LEDs for amplifiers compatible with the CSNAC option are summarized in Table 5.
Table 5. LED Indications for Flex Amplifiers Compatible with CSNAC
| LED # | LED name | Meaning |
| LED1 | IN_TBL | Single blink: input channel 1 failure Double blink: input channel 2 failure Steadily on: failure on input channels 1 and 2 Applies to analog or digital audio riser. |
| LED2 | Comm Loss | Steadily on when the amplifier is not communicating with the system CPU |
| LED3 | OUT_TBL1 | Steadily on during Power Stage 1 Overcurrent Failure/Output Supervision Trouble |
| LED4 | OUT_TBL2 | Steadily on during Power Stage 2 Overcurrent Failure/Output Supervision Trouble |
| LED5 | NAC 3 Status | Steadily on when NAC 3 is on or in Trouble condition |
| LED6 | NAC 2 Status | Steadily on when NAC 2 is on or in Trouble condition |
| LED7 | NAC 1 Status | Steadily on when NAC 1 is on or in Trouble condition |
| LED8 | NAC3_PS2 | NAC 3 routed to Power Stage 2 |
| LED9 | NAC2_PS2 | NAC 2 routed to Power Stage 2 |
| LED10 | NAC1_PS2 | NAC 1 routed to Power Stage 2 |
Troubleshooting
- Overview This section describes the messages that may appear on the display when using the audio amplifiers and their option cards.
- Card Missing/Failed The amplifier card is either not installed or is not at the system address specified by the Programmer.
- Wrong Card The wrong card is using the address specified by the Programmer as the amplifier card.
- Power Stage Trouble A power stage is not functioning properly. This means a signal is coming in but no signal is being outputted. Note that the supervision tone used to supervise the power stages will not be heard over the speakers. In systems configured with Power Conservation Mode, the power stage will not be supervised and a trouble will not be generated when the power stage is shut down.
- NAC Module Configuration Trouble The NAC expansion card or Class A card connected to the amplifier does not match the Programmer configuration for that card.
- Additional Troubles Additional troubles may be annunciated for shorts or opens on any of the following, each of which is supervised:
- NACs (speaker circuits)
- Amplifier inputs
- DAR riser (communication failure)
- Using the Power Stage Fail Switches The power stage fail switches (SW2, SW3) can be used to test whether backup audio switching is working. To test the fail switches, press and hold SW2 (power stage 1) or SW3 (power stage 2) until the corresponding Trouble LED illuminates (20 seconds).
© 2003, 2009, 2011 SimplexGrinnell LP. All rights reserved
Specifications and other information shown were current as of publication and are subject to change without notice. Simplex and the Simplex logo are trademarks of Tyco International Ltd. and its affiliates and are used under license.

















