Netvue Sentry 3 Outdoor PTZ Security Camera

What’s In The Box 
Camera Structure 
Insert Micro SD Card
Sentry 3 comes with a built-in card slot which supports up to 128GB Micro SD card. Once you insert the storage card, the camera will automatically start to record and store videos in the storage card. You can view those videos on the ‘Replay’ page by clicking the ‘Replay’ button in the ‘Homepage’.
Step 1: Make sure Sentry 3 is running. Pull the silicone cover outward.
Step 2: Insert the micro SD card. Make sure to insert in the correct orientation.
Step 3: Close the silicone cover. 
Read Before Installing
- Keep the Sentry 3 and all accessories out of reach of children and pets.
- The Sentry 3 comes with a power adapter. If you prefer to use other power adapters, please make sure they are certified and allow DC12V ( 1000mA) power supply voltage.
- The product can only be used at normal temperature and humidity: Working temperature: -10°C- 50°C (14°F-122°F) Working relative humidity: 0-95%.
- Please do not expose the camera lens to direct sunlight.
- Please do not install the camera where is likely struck by lightning.
Note:
- Netvue Sentry 3 only works with 2.4GHz Wi-Fi.
- Strong lights may interfere with the ability to scan the QR code.
- Avoid placing the device behind furniture or near microwaves. Try to
keep it within range of your Wi-Fi signal.
Set Up with NetvueApp
Download the Netvue App from App Store or Google Play. Follow the in-app instruction to complete the entire set up process.
Installation
Check the following things before you start to drill holes on your wall:
- Sentry 3 has been successfully added to your Netvue App and is able to stream video.
- Have planned the cable route. Measured the length of the power cable .

Step 1:
Find a good installation spot.
- We recommend installing the Sentry 3 just 7-10 feet (2-3 meters) above the ground for a better two-way audio experience.
- There is a power outlet nearby.
- Make sure Sentry 3 can stream video smoothly at the spot.
- Make sure the camera’s sight is not blocked.
Wall installation 

Ceiling installation 

Step 2:
Before you start to drill, make sure you know the locations of wall-in pipes and electrical wires. (If you are not comfortable with drilling holes, please consult with a licensed electrician.)
Wall installation
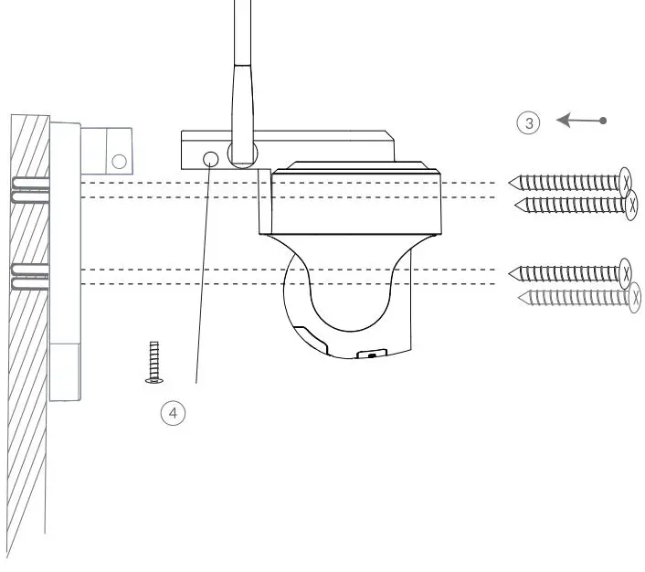
Use the provided drilling template to mark the location of the holes on the wall. Use a drill bit (15/64″, 6mm) to drill 4 holes, then install the anchors to secure the screws. First remove the product bracket, install the bracket, and finally install the product to the bracket, fix the screws on both sides.
Ceiling installation
Use the provided drilling template to mark the location of the holes on the ceiling. Use a drill bit (15/64″, 6mm) to drill 4 holes, then install the anchors to secure the screws. First remove the product bracket, install the bracket, and finally install the product to the bracket, fix the screws on both sides.
Netvue Protect Plan
Netvue Protect Plan provides optional advanced features for those with higher security needs, and each plan supports multiple devices.
Continuous Video Recording: It allows for non-stop recording of all the action, and captures everything in the background, you can rewind to catch anything you missed.
Event Video Recording: It automatically records a video clip, not just several still pictures, and push it to your phone instantly, keeping you always stay in the know anywhere,anytime.
Human Detection: It uses machine learning to accurately identify people within your Netvue video, sending you specific human alerts when a human is detected, while still sending regular motion alerts for non-human activity.


























