
Bathroom cabinet installation instructions
| Miletos 90: WB00431+WB00433 Miletos 180: WB00434+WB00433 Tunis 90: WB00424+WB00425 Tunis 120: WB00426+WB00427 | Tenebra 90: WB00437+WB00438 Tenebra 190: WB00440+WB00441 Tripoli: WB00420+WB00421 Tunis 135: WB00428+WB00429 |
Tools List

Parts List
Fixed System 1


Fixed System 2


Fixed System 3


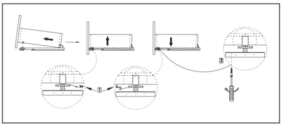
Installation Instructions
Fixed System 1






Fixed System 2





Fixed System 3






Installation & adjustment of drawer



The way to take off the drawer


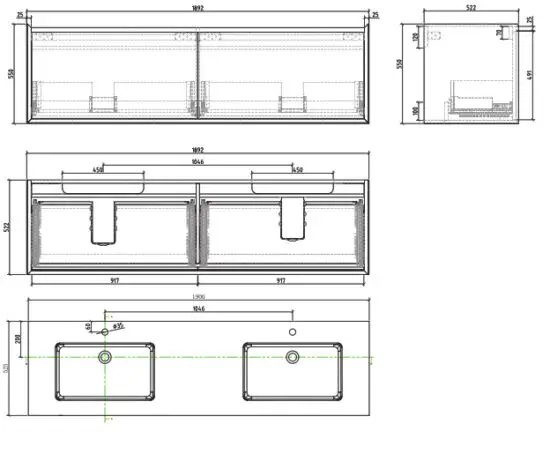
Technical drawings
Miletos 90bathroom cabinet
Miletos
white solid surface basin, installable to the counter

Miletos 180
bathroom cabinet
Tunis 90
bathroom cabinet Quartz Sand bathroom vanity top with integrated basin
Tunis 135
bathroom cabinet Quartz Sand bathroom vanity top with integrated basin
Tenebra 90
bathroom cabinet Quartz Sand bathroom vanity top with integrated basin
Tenebra 190
bathroom cabinet Quartz Sand bathroom vanity top with integrated basin
Tenebra 190
bathroom cabinet Quartz Sand bathroom vanity top with integrated basin 


















