MAGNETROL Kotron 805 Capacitive Level Transmitter

UNPACKING
Unpack the instrument carefully. Make sure all components have been removed from the foam protection. Inspect all components for damage. Report any concealed damage to the carrier within 24 hours. Check the contents of the car-ton/crates against the packing slip and report any discrepancies to Magnetrol. Check the nameplate model number to be sure it agrees with the packing slip and purchase order. Check and record the serial number for future reference when ordering parts.
These units are in conformity with the provisions of:
- The EMC directive 2014/30/EU.
- Directive 2014/34/EU for equipment or protective system intended for use in potentially explosive atmospheres. EC-type examination certificate number KEMA98ATEX4467X.
- RoHS directive 2011/65/EU (restriction of the use of certain hazardous substances in electrical and electronic equipment).
SPECIAL CONDITIONS FOR ATEX INTRINSICALLY SAFE USE
- Because the enclosure of the transmitter is made of aluminium alloy, the transmitter must be installed so, that even in the event of rare incidents, an ignition source due to impact or friction between the enclosure and iron/steel is excluded.
- Probes with an insulating layer, used in a potentially explosive atmosphere with gas, vapour or mist of gas group IIC, may only be used for the measurement of the level of a conductive fluid.
MOUNTING
KOTRON R.F probes
(For installation details see bulletin BE 50-125)
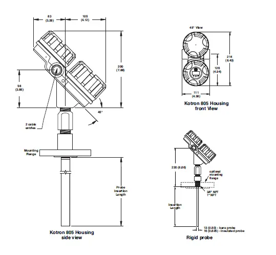
2 cable entries (one plugged): M20 x 1.5 or 3/4″ NPT
For replacing electronics only:
The electronic insert can easily be removed by loosening the 3 mounting screws and unplugging the module. The probe wire is fixed to the PCB by means of a spade plug.
WARNING: Never mount or dismantle a threaded probe by the upper mounting nut for the amplifier (a), ALWAYS use the lower probe mounting nut (b).
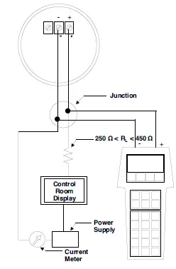
WIRING
CAUTION: power must be switched OFF before wiring the unit.
CAUTION: ALWAYS check for proper grounding, Improper grounding will cause malfunction of the unit.
CALIBRATION
NOTE: When connected to an approved barrier, the intrinsically safe electronics of the Kotron 805 allow to remove both covers with power switched on – even if the area is known to be hazardous
IMPORTANT: When the amplifier is not connected to a probe, the screen will show “NO LEVEL SIGNAL”. Ignore this message for bench configuration.
- Press
: The last character on the first line of the display changes to “!”. This sign confirms - that the values/choices of the second line can be modified via the and push buttons.
- Press
: * Scroll through the choices or increase/decrease the values on the second line of the display by and pushbuttons.
* Accept values/choices as selected by pushbutton. - Press
: Scroll through the menu.
TERMINOLOGY

NOTE: The above example shows the end of the probe as reference point. Also the bottom or top of the tank can be used as reference
point. Whichever point is used, it must always be used for all further values.
CALIBRATION USING HART®
IMPORTANT: Check whether your HART® communicator is equiped with the 805 Device Descriptors (DD’s). Older purchased devices may require an update – consult your local HART Service Centre or Magnetrol for further assistance.
HART MENU
- I/O Start up the device
- 1 Enter DEVICE SET UP
Press one of the following alphanumeric keys (if no key is sensed after 5 s, the unit will automatically jump to RUN mode and alternatively show Level/% Output and Loop signal - for entering CALIBRATION (see page 5 for additional information)
- for entering BASIC SETUP – general HART
- for ADVANCED SET UP CONFIGURATION (see page 5 for additional information)
- for entering DIAGNOSTICS (see page 5 for additional information)
- for entering REVIEW to review all settings.

MAINTENANCE
TROUBLESHOOTING SYSTEM PROBLEMS
Symptom Problem Solution
- LEVEL, % OUTPUT and LOOP values Basic configuration data is Check values and recalibrate if are all inaccurate. questionable. necessary (either or both points).
- LEVEL readings are repeatable but Configuration data does not Recalibrate if necessary. consistently high or low from actual accurately match tank height. by a fixed amount.
- LEVEL, % OUTPUT and LOOP Turbulence. Increase the Damping factor until the values fluctuate. readings stabilize.
- LOOP value jittery, usually in tenths Factory settings corrupted. Check # of Ticks. If the number is or hundredths digit. also jittery, consult the Factory.
- HART device only: handheld will only Most current Device Descriptors Contact local HART service center for read Universal Commands. (DDs) are not installed in handheld. the latest DDs.
- HART device only; reads Product Early HART software does not Contact manufacturer of your HART information (e.g., Mfgs. ID, Device #, account for Mfgs. ID #’s greater master software for upgrade. This is a Serial #, etc.) but will not read any than 63. Magnetrol’s ID is 86. shortcoming
ERROR MESSAGES
- OSC FAIL malfunctioning analog board and/or Check connection between electronics
- (HART error code = 0x40) 32 pin connector (electronic module) and probe or replace electronic module. between electronics and probe.
- CORRUPT PARAMTRS Configuration parameters may Check all configuration parameters
- (HART error code = 0x10) have been lost. and recalibrate if required. 805 FAULT Probe disconnected. Check white probe wire (Open) (see page 2) and electronic module. 805 FAULT Probe shorted. Check white probe wire (Shorted) (see page 2) and probe insulation.
- LEVEL Unit is not calibrated. Enter both Low and High calibration (Uncal) points.
- ABV RNG Measured capacitance is higher Consult factory. (Above range) than 12,000 pF.
- SFWR ERROR Software error. Consult factory.
REPLACEMENT PARTS
E X P EDI T E SHI P P LAN ( E S P )
Several parts are available for quick shipment, within max. 1 week after factory receipt of purchase order, through the Expedite Ship Plan (ESP). Parts covered by ESP service are conveniently grey coded in the selection tables.
MAINTENANCE
TROUBLESHOOTING FLOWCHART



TRANSMITTER SPECIFICATIONS
| Description | Specification |
| Power (at terminals) | General Purpose: 11 to 36 V DC ATEX Intrinsically Safe: 11 to 28.6 V DC |
| Output | 4-20 mA with HART® 3.8 to 20.5 mA useable (meets NAMUR NE 43) |
| Span | minimum 5 pF – maximum 10.000 pF |
| Zero and Range | 0 mm to 45 m (0′ to 150′) |
| Resolution | Analog: 0.01 mA Digital display: 0,1 cm (0.1″) |
| Loop Resistance | ATEX Intrinsically Safe/General Purpose: 650 Ω @ 24 V DC |
| Damping | Adjustable 1-45 s |
| Diagnostic Alarm | Adjustable 22 mA, HOLD |
| Digital Communication (HART®) | Version 5.x |
| User Interface | 3-button keypad and/or HART communicator |
| Display | 2-line x 8-character LCD |
| Approvals | ATEX II 1 G EEx ia IIC T4 (ambient temperature: -40 °C up to +80 °C) ATEX II 1 G EEx ia IIC T6 (ambient temperature: -40 °C up to +40 °C) |
| Electrical Data | Ui = 28,6 V, li = 140 mA, Pi = 1 W |
| Equivalent Data | Ci = 2,2 nF; Li = 0,037 mH |
| Menu Language | English |
| Housing Material | Aluminium A356T6 (< 0.25% copper)/ IP 66 |
| Net and Gross Weight | 2.70 kg net; 3.20 kg gross |
| Overall Dimensions | H 214 mm (8.43″) x W 111 mm (4.38″) x D 188 mm (7.40″) |
PERFORMANCE
| Description | Specification |
| Reference conditions | 20 °C (70 °F) |
| Accuracy | +/- 0.5% of span or 2.5 mm whichever is greater |
| Resolution | 0.1 pF |
| Repeatability | +/- 0.1% of span |
| Linearity | +/- 0.25% of span |
| Response time | less than 1 s (adjustable via damping) |
| Warm up time | less than 5 s |
| Ambient temperature electronics | -40 °C to +80 °C (-40 °F to +175 °F) Display not readable below -20 °C (-5 °F) |
| Storage temperature | -40 °C to +80 °C (-40 °F to +175 °F) |
| Ambient temperature effect | approximately +0.03% per °C |
| Humidity | 0-99 %, non-condensing |
| Electromagnetic compatibility | Meets CE requirements (EN 61326: 1997 + A1 + A2) and NAMUR NE 21 |

DIMENSIONS in mm (inches)

CONNECTIONS

IDENTIFICATION
A complete measuring system consists of:
- Kotron 805 transmitter head/electronics.
- KOTRON® Probe; a full range of probes for conductive and non-conductive media is available (see bulletin BE 50-125).

IMPORTANT
SERVICE POLICY
Owners of Magnetrol products may request the return of a control; or, any part of a control for complete rebuilding or replacement. They will be rebuilt or replaced promptly. Magnetrol International will repair or replace the control, at no cost to the purchaser, (or owner) other than transportation cost if:
- Returned within the warranty period; and,
- The factory inspection finds the cause of the malfunction to be defective material or workmanship.
If the trouble is the result of conditions beyond our control; or, is NOT covered by the warranty, there will be charges for labour and the parts required to rebuild or replace the equipment.
In some cases, it may be expedient to ship replacement parts; or, in extreme cases a complete new control, to replace the original equipment before it is returned. If this is desired, notify the factory of both the model and serial numbers of the control to be replaced. In such cases, credit for the materials returned, will be determined on the basis of the applicability of our warranty.
No claims for misapplication, labour, direct or consequential damage will be allowed.
RETURNED MATERIAL PROCEDURE
So that we may efficiently process any materials that are returned, it is essential that a “Return Material Authorisation” (RMA) form will be obtained from the factory. It is mandatory that this form will be attached to each material returned. This form is available through Magnetrol’s local representative or by contacting the factory. Please supply the following information:
- Purchaser Name
- Description of Material
- Serial Number and Ref Number
- Desired Action
- Reason for Return
- Process details
Any unit that was used in a process must be properly cleaned in accordance with the proper health and safety standards applicable by the owner, before it is returned to the factory.
A material Safety Data Sheet (MSDS) must be attached at the outside of the transport crate or box.
All shipments returned to the factory must be by prepaid transportation. Magnetrol will not accept collect shipments. All replacements will be shipped Ex Works.




















