Installation Instructions
Low Level External Override
Low Level External Override
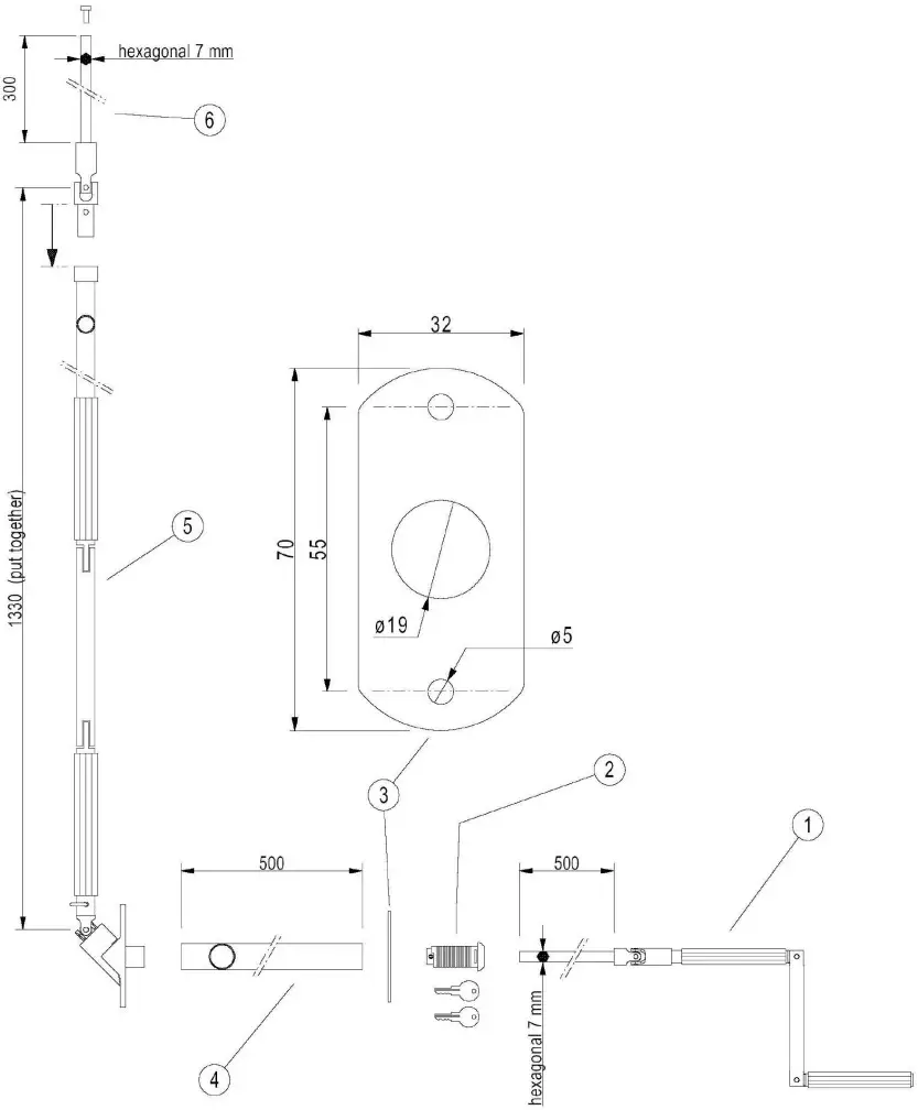
Drill a 13mm hole, for the hexagonal override bar, through the end plate flange, if required. Please note this should only be done when the motor is in place (not as illustrated) to enable you to line up the hole with override exit on the motor.
Remove the screw from the end of the hexagonal bar.
Insert the bar through the override hole then secure in place using the screw. This is to prevent the handle from being pulled out during use.
(3mm Allen key)
If required shorten the length of the 1330mm articulated crank.
- Remove the clip from the top of the handle enabling the joint to be removed
- Cut the handle to the desired length
- Drill a 4.2mm hole, 6mm below the cut edge through the side with the flat internal section.

Option 1 – installing the lock tube to the side of the guide rail
- Mark the position for the hole through the wall adjacent to the guide rail at the bottom end of the crank as shown below.
- Drill a 22mm hole through the wall ensuring the hole diameter is not greater than 22mm as the cover plate is only 32mm wide.

Option 2 – Installing the lock tube through a face fixed guide rail
- Drill a 12mm diameter hole through the guide rail and a 22mm hole through the wall.
- The centre of the hole should be 16mm from the edge of the guide rail. If there is a return wall this could restrict the operation of the override handle.

Option 3 – Installing the lock tube through a guide rail only
- When the guide rail is reveal fitted you will need to pack the universal joint plate off the guide rail by at least 50mm (packer not supplied). This is to provide sufficient depth for the lock barrel.
- Drill a 22mm diameter hole through the guide rail.
- The centre of the hole should be 16mm from the edge of the guide rail. If there is a return wall this could restrict the operation of the override handle.

Secure the universal joint bracket to the wall (fixings not supplied).
Insert the tube (cut to length) and fix the plate to the wall (fixings not supplied).
Once installed you must always check the operation of the emergency override, attach the override label supplied (see below) to indicate the correct direction to wind the handle.
- The aluminium cover plate included in the kit is supplied with arrows indicating which way to turn the low level override handle. In the rare event that the direction arrows are incorrect you will need to apply the spare cover plate over the top of the standard plate.

| Part no.(s) | Description | Sales code |
| 1 | Articulated small winding handle. Supplied with 500mm of 7mm (NF) hexagonal bar as standard. | MT1 21 M2 |
| 2, 3, & 4 | PVC duct & lockable aluminium cover | MT121M4 |
| 5 & 6 | 1330mm articulated crank. Supplied with 300mm of 7mm (NF) hexagonal bar as standard. | MT121M3 |

www.garagedoorsonline.co.uk
01926 463888

















