Instructions for Fitting, Operating and Maintenance
Aluminum entrance door
Instruction Manual
Dissemination as well as duplication of this document and the use and communication of its content are prohibited unless explicitly permitted.
Noncompliance will result in damage compensation obligations. All rights reserved in the event of patent, utility model or design model registration.
Subject to changes.
Dear customer,
We are delighted that you have chosen a high-quality product from our company.
About These Instructions
These instructions are divided into a text section and an illustrated section. The illustrated section can be found after the text section.
These instructions are original instructions as outlined in the EU-Boa 305/2011. Please read and follow these instructions.
They contain important information on the installation, operation and proper care and maintenance of the aluminum entrance door so that you can enjoy the use of this product for many years.
Please pay particular attention to all safety and warning notices.
Keep these instructions in a safe place for later reference!
Skilled fitting and thorough maintenance increase performance, availability and safety.
The texts and diagrams in this manual have been created with the greatest care possible. In order to provide a concise overview, not all detailed information on all variants and possible assemblies can be described. The texts and diagrams published in this manual are merely intended as examples.
Any guarantee for its completeness is excluded and does not justify a complaint. Should you desire more information, or if special problems occur which are not described in detail in the manual, you may request information from the manufacturing plant.
These instructions are an important document for the construction file.
1 .1 Warnings used
DANGER
Indicates a danger that leads directly to death or serious injuries.
ATTENTION
Indicates a danger that can lead to damage or destruction of the product.
1 .2 Symbols used
| Important note for avoiding damage to property | Non-permissible arrangement or activity | ||
| Permissible arrangement or activity | See text section | ||
| See illustrated section | See separate Fitting Instructions for the control or for the additional electrical control elements | ||
| Electrical voltage | Optional components, to be ordered as accessories | ||
| Single – leaf door | Door with side element | ||
| Door opening inwards | Door opening outwards | ||
| Support blocks | Spacing blocks | ||
| Position the frame to the leaf | House interior | ||
| Not permissible according to DIN 4108 | House exterior | ||
| Winter | Summer | ||
| Vapor diffusion proof | Open to vapor diffusion | ||
| Tighten the screws by hand | Tighten the screws firmly | ||
| Inspect | Maintenance-free | ||
| Placing door leaf on the floor | Remove and dispose of component or packaging | ||
| Break-in-resistant component RC3 acc. to DIN EN 1627:2011 | Break-in-resistant component RC4 acc. to DIN EN 1627:2011 | ||
| In the illustrated section, this indicates work steps that must be performed in succession | Attack side | ||
| Volt-free contact | Coupling relay | ||
| Automatic door | To be connected / fitted onsite | ||
| To be connected fitted at the factory | Condensation |
1 .3 Abbreviations used
OFF (FFL) Finished floor level
1 .4 Colour code for leads, single wires and components
The colour abbreviations for lead, wire and component identification follows the international color code in accordance with IEC 757:
| BK | black |
| BN | brown |
| GN | green |
| GY | grey |
| YE | yellow |
| WH | white |
| GN / YE | green / yellow |
Safety Instructions
DANGER
Danger to life while fitting the entrance door
During fitting, the door or door frame can fall and kill persons.
▶ Prior to and during fitting, secure the door and frame against falling over.
- Comply with the basic rules in DIN 4108 Thermal insulation and energy economy in buildings when fitting the aluminum entrance door.
- Make sure to comply with the applicable standards, directives, regulations, ordinances and the generally accepted rules of technology.
- Protect your door until construction is completed by covering it with foil and tape to avoid damages. But keep in mind that tape can leave residue or damage to the coating, especially under prolonged exposure to the sun.
- Identify suitable fastenings according to the local conditions and have them on hand.
- Anchor the aluminum entrance door at all of the provided fixing points in the wall.
- Always maintain the required edge and center line spacing of the plugs depending on wall type, as well as the fitting information and handling guidelines of the plug manufacturer!
- Contact surfaces to be sealed with silicon and sealant material must first be cleaned, such as
— Profile surfaces
— Edge compound of the pane - Only use adhesive and sealant materials that are suitable for this application and compatible with the product materials. Follow the handling guidelines of the respective manufacturer.
- Electrical work may only be carried out by qualified electricians.
- EC Directive 2006/42/EC is to be complied with for aluminum entrance doors with automatic door operators.
2 .1 Fitter qualification
In order to ensure proper installation of the aluminum entry door, only assembly technicians with commensurate training may be charged with the task.
ATTENTION
Impaired function
Missing or modified components will impair the function of the entrance door.
▶ Do not alter or remove any components.
▶ Fasten all components described in the manual.
Fitting
▶ To ensure simple and professional fitting, carefully go through all the work steps shown in the illustrated section.
▶ Before fitting the door, check whether any attached parts have to be fitted (see Figure 3).
▶ Remove the transport protection before fitting (see Figure 2 .3).
▶ Fastening and sealing materials are not included in the scope of delivery.
NOTE:
It is important that you use the fixing points prepared at the factory.
The fixing points indicated in the fitting instructions are only general and may deviate from the fixing points prepared at the factory.
3 .1 Accessories
- K3 coupling door / side element (see Figure 3 .1)
- VP25 / VP75 extension (see Figures 3 .2a / 3 .2b)
- VPE20 / VPE50 one-piece extension (see Figure 3 .3)
- K3 coupling side element / side element (see Figure 3 .4)
3 .2 Determining the door position
▶ Determine the door position depending on the on-site fastening options, type of wall and the required edge and center line spacing for the plug.
▶ If possible, position the door so that it is within the insulation layer of the wall. With monolithic or single-shell brickwork, position the door as close as possible towards the building interior side. Observe the isothermal lines (see Figure 1).
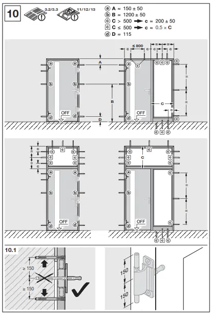
3 .3 Fitting types
- Anchor fitting (see Figures 10 – 12)
- Plug-and-screw fitting (see Figures 10 – 12)
- Frame screw fitting (see Figures 10 – 12)
NOTE:
Each fixing point must be back-blocked resistant to pressure.
- Unhinge the door leaf (see Figures 2 .5 / 16a).
ATTENTION
Impaired function
Non-compliance with the handling guidelines will impair the function of the entrance door.
▶ With fixing and sealant material, follow the handling guidelines of the respective manufacturer.
3 .4 Connection to building structure
Proper fastening and sealing of the connection joint to the building structure is a fundamental prerequisite for permanent usability of the door. It depends on the respective exterior wall system and fitting situation. Comply with the requirements of the current EnEV, the specifications of the RAL quality monitoring association for windows and doors e.V. and the manufacturer‘s processing guidelines.
| The following generally applies: | |
| Room side | Air and vapor diffusion-tight seal |
| Average range | Thermal insulation unsusceptible to moisture |
| Exterior side | Vapour diffusion-open wind and rain barrier |
(see Figure 11 .1 / 18).
3 .5 Adjusting the fitting
- Horizontal and vertical door leaf adjustment, contact pressure adjustment (see Figures 16a – 16c).
ATTENTION
Limiting the door opening angle (see Figure 15)
The door opening angle must be limited to 105˚ on site.
▶ Note that for concealed hinges, the door opening angle must be limited to 105 , as otherwise damage to the hinge or door frame can be expected.
3 .6 Glazing
- Insertion and replacement of the glass panes or infills (see Figure 14).
- Blocking suggestions (see Figure 14)
- Secure blocking against falling (e.g. with Pattex adhesive).
3 .7 Electrical connections
DANGER
Mains voltage!
Contact with the mains voltage presents the danger of a deadly electric shock. For that reason, observe the following warnings under all circumstances:
▶ Electrical connections may only be performed by a qualified electrician!
▶ The on – site electrical installation must conform to the applicable protective regulations!
▶ Qualified electricians must ensure compliance with the national directives for the operation of electrical devices!
Depending on the length of the power supply cable, it must have at least the following cross-section:
| 10 m | 0,50 mm² |
| 40 m | 0,75 mm² |
| 50 m | 1,00 mm² |
| 75 m | 1,50 mm² |
| 125 m | 2,50 mm² |
3 .8 Fitting break-in-resistant door sets
The fitting instructions in this section give additional tips on fitting break-in-resistant door sets with resistance classes RC3 to RC4 acc. to DIN EN 1627: 2011 (see Figures 19 / 20).
Only by a professional fitting in accordance with these instructions will the door sets be equipped with break-in-resistant features.
3 .8 .1 Permissible walls
The required break-in-resistance can only be obtained if the adjacent walls meet the requirements according to Tab. 1 – Tab. 3.
3 .8 .2 Permissible wall connections
The wall connections defined in Image 10 .2 a – 10 .2 g are permissible. Expert fitting must be verified with a fitting certificate.
3 .8 .3 Safety relevant components
The required break – in – resistance can only be obtained if the used infills meet the following requirements.
Minimum requirement for the side element / transom light infills:
| Resistance class | RC3 | RC4 |
| Glazing resistance class according to EN 356 | P5 A | P7 B |
| Placement of the safety pane | Attack side | Opposite side |
| Hermann panel with or without glass | Aluminum panel | |
Tab. 1: Classification of the resistance classes of break-in-resistant components for solid walls
| Resistance class of the component acc. to DIN EN 1627 | Surrounding walls | |||||
| In brickwork according to DIN 1053-1 | Reinforced concrete walls acc. to DIN 1045 | |||||
| Wall thickness (unplastered) | Compression strength class of the bricks (DFK) | Apparent den- sit class of the bricks (RDK) | Mortar group | Nominal thick- ness | Strength class | |
| RC3 | ≥ 12 | – | min. MG II/DM | min. 120 mm | min. B 15 | |
| RC4 | ≥ 240 mm | min. 140 mm | ||||
Tab. 2: Classification of the resistance classes of break-in-resistant components for gas concrete walls
| Gas concrete wall | |||
| Resistance class | Compression strength class of the bricks | Nominal thickness | Version |
| RC3 | ≥ 4 | ≥ 240 mm | Bonded |
Tab. 3: Classification of the resistance classes of break-in-resistant components for timber panel walls
| Resistance class | Suitable wall construction | |
| RC3 | Tongue + groove timber cladding 19 ×120 mm, batten 40 × 60 mm, SB.W 60 mm, timber post 60 / 140, MF 140 mm, PE plastic film, OSB 15.0 mm, GKB 12.5 mm | |
| Plaster with fabric, SB W 40 mm, DWD 15.0 mm, timber post 60 / 140, MF 140 mm, kraft paper, BFU 15.0 mm, GKB 12.5 mm | ||
| Plaster with fabric, approx. 4 mm, PS 30 mm, FP 13 mm V100E1, timber post 60 / 140, MF 140 mm, PE plastic film 0.2 mm, FP 13 mm V20E1, batten 40 × 60 mm / insulation MF 40 mm, BFU 15.0 mm, GKB 9.5 mm | ||
| RC4 | Plaster with fabric, approx. 4 mm, SB W 60 mm, DWD 15.0 mm, timber post 60 / 160, MF 160 mm, sodium kraft paper, OSB 22 mm, BFU 15.0 mm, GKB 12.5 mm | |
| Plaster with fabric, approx. 4 mm, SB W 60 mm, DWD 15.0 mm, timber post 60 / 160, MF 160 mm, sodium kraft paper, FP 13 mm V20, steel sheet 0.75 mm, FP 13 mm V20, GKB 9.5 mm | ||
Prefabricated and timber partition walls with respective resistance class suitability certification from the manufacturer.
The exchange of safety-relevant components (e.g. fittings, locks and infills) can lead to a loss of door set resistance.
Minimum requirements for the fittings :
| Resistance class | RC3 | RC4 |
| EN 1303 (see Figure 20) Locking cylinder (position 7) Locking cylinder (position 8) | 4 1 | 6 2 |
| EN 1906 Protective fitting (position 7) | Integrated into the construction | |
| EN 12209 Locks (position 7) | 4 1) | 7 1) |
- The suitability of the locks must additionally be verified through tests according to DIN EN 1627 or as part of an expert’s opinion.
Be sure to observe the following fitting instructions:
- The visible gap of 5 ± 1 mm between frame and leaf must be observed (see Figure 16) so that the lock bolts fully extend into the lock plate openings.
- Connected side elements are to be secured all-round and according to the specifications for infill attachment of the respective RC classification (see Figures 19a / 19b).
3 .8 .4 Additional instructions for fitting
▶ Install the frames vertically and properly aligned (see Figure 11).
▶ In the areas described below, back-fill the spaces between frame and walls with a rot-free material to withstand pressure:
— Hinges
— Infill
— Locking
— Fixing points
— On the upper and lower corners
By taking suitable precautions (e.g. silicone), make sure that the pressure-resistant back-packing is not able to shift (see Figure 10 .2).
3 .8 .5 Instructions for the user
- Break-in-resistant components only provide burglar resistance in a closed, locked, and secured state and when the key has been removed!
- Anti-panic locks are not permissible in combination with break-in-resistant doors!
- Knob cylinders are not generally permitted in break-in resistant doors (RC3 to RC4).
3 .8 .6 Guarantee
To ensure the performance criterion “break-in resistance in accordance with DIN EN 1627” with classification RC3, RC4, the fitting company must confirm expert fitting in accordance with these instructions by means of the document “Fitting certificate for
break-in-resistant doors” provided with the order confirmation and return this document filled out to the manufacturer.
Description of S7 Smart / Comfort / Code / Scan
Volt-free control of the locks (see Figure 7b)
If the locks are to be controlled via intercom/buttons to which voltage is applied at the output, this cable must be switched to volt-free by fitting a coupling relay. Coupling relay for standard cases (12 V AC) in accessories.
ATTENTION
The factory code must be changed for the initial start-up of the finger-scan or code switch .
▶ See the included manufacturer operating instructions.
4 .1 LED display
Blue (BU)
| Condition | Function |
| Illuminated briefly | A valid radio code was discovered for channel |
| Illuminated long once | A valid radio code is discovered that has been stored on both channels |
| Condition | Function |
| Illuminated briefly | A valid radio code was discovered for channel |
| Illuminated long once | A valid radio code is discovered that has been stored on both channels |
| Flashes slowly | Receiver is in the learn mode for channel 1 |
| Flashes quickly after slow flashing | A valid radio code was discovered during the learning |
| Flashes slowly for 5 seconds Flashes quickly for 2 seconds | Device reset is being implemented or completed |
| Off | Operation mode |
Programming button P (P button)
4 .2 Teaching in a radio code
To activate / switch a channel:
▶ Press the P button once to activate channel 1.
To abort the learn mode:
▶ Press the P button 3 times, or wait for the timeout.
Timeout
If no valid radio code is recognized within 25 seconds, the receiver automatically returns to the operation mode.
4 .3 Teaching in a radio code
(see Figure 7f)
- Press the P button to activate the desired channel.
— The blue LED will flash slowly for channel 1. - Put the hand transmitter, whose radio code is to be inherited, into the Inheriting / Transmitting mode.
If a valid radio code is recognized, the LED flashes quickly in blue then goes out.
The receiver is in the operation mode .
4 .4 Operation
In the operation mode, the receiver signals the recognition of a valid radio code by illuminating the blue LED.
NOTE:
If the radio code for the taught-in hand transmitter was copied from another hand transmitter, the hand transmitter button must be pressed a second time during initial start-up.
A valid radio code channel 1 is discovered = The LED is illuminated briefly once
4 .5 Reset
All radio codes are deleted by the following steps:
- Press and hold the P button.
— The LED slowly flashes in blue for 5 seconds.
— The LED flashes rapidly in blue for 2 seconds. - Release the P button.
All radio codes have been deleted .
NOTE:
If the P button is released prematurely, the device reset will be aborted and the radio codes are not deleted.
Inspection and Maintenance
5 .1 Checking the seating and sealing
Before finishing the fitting process, check that the aluminum entrance door has been fitted correctly.
▶ Inspect the following points:
— Seating of the fastening screws to the building structure
— Sealing of the aluminum entrance door to the building structure
Cleaning and Care
6 .1 Surface
You have purchased a high – grade aluminum product. Protect it by performing cleaning and upkeep regularly. This is the only way to prevent undesired corrosion caused by environmental conditions and contamination related to use.
Wash surfaces with a mixture of alcohol and water before bonding.
ATTENTION
Unsuitable care products
The door surface and adjacent components can be damaged by aggressive, corrosive or abrasive materials such as acids or steel brushes.
▶ Only use conventional care products and microfiber cloths to maintain the aluminum entrance door.
▶ Use water to rinse any dirt off high-gloss surfaces.
▶ Never use polish on matt surfaces.
▶ Always take note of the manufacturer information for the care products.
NOTE:
Manufacturer‘s recommendation: pro WIN “Seidenglanz” detergent in conjunction with the prow IN “Hochglanzzauber” microfiber cloth. www.prowin.net
6 .2 Movable fitting parts
▶ Oil or lubricate moveable fitting parts once per year. Only use acid-free oil or Vaseline.
6 .3 Door hinges
ATTENTION
Lubricating the door hinges
Lubricate concealed door hinges after 50,000 locks at the latest.
▶ Surface-mounted door hinges are maintenance-free.
▶ Never lubricate the these door hinges.
6 .4 Cylinder
To maintain the closing cylinder, only special cylinder care spray is approved. Do not use products that contain graphite under any circumstances.
Dismantling and Disposal
Dismantling of the aluminum entrance door is conducted in the reverse order of the assembly.
To dispose of it properly after dismantling, the aluminum door must be disassembled into its individual components and disposed of according to local official regulations.
Spare Parts
We advise explicitly that only genuine spare parts are tested and approved.
The following cylinders may be used in conjunction with our locks H5 / H9 / S5 / S7:
- Knob cylinders
- Cylinders with/without compensator function
- Cylinders with/without emergency and hazard function
If using other locks, such as gear locks with anti-panic function, proper function in conjunction with the desired cylinder must be checked and ensured in advance.
![]() | ![]() |
![]() | ![]() |
![]() | ![]() |
![]() | ![]() |
![]() | ![]() |
![]() | ![]() |
![]() | ![]() |
![]() | ![]() |
![]() | ![]() |
![]() | ![]() |
![]() | ![]() |
![]() | ![]() |
![]() | ![]() |
![]() | ![]() |
![]() | ![]() |
![]() | ![]() |
![]() | ![]() |
![]()















































