

AD-125 Hood Dishwasher Green and Clean
Instruction Manual
![]()

INSTALLATION, USE AND MAINTENANCE INSTRUCTIONS
![]()
CODE: 12218466
REV.: 2018/08
AD-125 Hood Dishwasher Green and Clean
![]() | ![]() | |||
| WARNING | HAZARDOUS VOLTAGE | PLEASE READ INSTRUCTIONS | PROTECTIVE EARTH | EQUIPOTENTIAL BONDING |

| A | Water inlet & filter |
| B | Drain hose |
| C | Power Supply Cable |
| D | Terminal Box |
| E | Rinse aid inlet |
| F | Detergent inlet |
| G | Equipotential bonding terminal |

| S | Stopcock |
| H | Water inlet Hose |
| A | Water inlet & filter |
| EV | Electrovalve |
| BP | Electropump |
| F | Filter |
| CD | Drain collector |
| B | Drain hose |

| Earth | |
| N: | Neutral |
| Ll, L2, L3: | Phase |
| na / ORG : | Orange |
| ye / GRN : | Green |
| TC : | Boiler Thermostat |
| CC : | Boiler Contactor |
50Hz // 60Hz // 50/60Hz
Check the frequency of your machine
| CONNECTION: | Electrical connection |
| Fuse protec.: | Fuse protection |
| Total kW: | Rated Power |
| Total Amp.: | Rated Current |
| Wire Section: | Wire section |
| RC: | Boiler heating element |
| RT: | Tank heating element |
| MB: | Wash Pump |
| MOD. | CO-110 (B, DD, AU) | ||||||||
| CONNECTION | Fuse protec. | Total kW | Total Amp. | Wire Section | RC (kW) | RT (kW) | MB (kW) | ||
| 230V, 1N~ | 2 | ALT | 20 A | 3,6 kW | 15,7 A | 3G 2,5 mm2 | 3 | 2,25 | 0,6 |
| 3 | 25 A | 4,6 kW | 20 A | 3G 4 mm2 | 4 | 3 | 0,6 | ||
| 4 | 32 A | 6,6 kW | 28,7 A | 3G 6 mm2 | 6 | 4,5 | 0,6 | ||
| 230V, 1N~ | 2 | SIM | 32 A | 5,9 kW | 25,4 A | 3G 4 mm2 | 3 | 2,25 | 0,6 |
| 3 | 40 A | 7,6 kW | 33 A | 3G 6 mm2 | 4 | 3 | 0,6 | ||
| 4 | 50 A | 11,1 kW | 48,3 A | 3G 10 mm2 | 6 | 4,5 | 0,6 | ||
| 400V, 3N~ | 5 | ALT | 16 A | 6,6 kW | 11,3 A | 5G 1,5 mm2 | 6 | 4,5 | 0,6 |
| 5 | SIM | 20 A | 11,1 kW | 17,8 A | 5G 2,5 mm2 | 6 | 4,5 | 0,6 | |
| 230V, 3~ | 6 | ALT | 20 A | 6,6 kW | 17,7 A | 4G 2,5 mm2 | 6 | 4,5 | 0,6 |
| 6 | SIM | 32 A | 11,1 kW | 29 A | 4G 6 mm2 | 6 | 4,5 | 0,6 | |
FACTORY DEFAULT ELECTRICAL CONNECTION
400V, 3N~, 5 SIM , 11,1 kW, 17,8 A, 5G 2,5 mm2
| MOD. | CO-142 (B, DD, HRS) COP-144 (B, DD, HRS) | ||||||||
| CONNECTION | Fuse protec. | Total kW | Total Amp. | Wire Section | RC (kW) | RT (kW) | MB (kW) | ||
| 230V, 1N~ | 2 | ALT | 25 A | 5,1 kW | 22,2 A | 3G 4 mm2 | 4,5 | 2,3 | 0,6 |
| 3 | 32 A | 6,6 kW | 28,7 A | 3G 6 mm2 | 6 | 3 | 0,6 | ||
| 4 | 50 A | 9,6 kW | 41,8 A | 3G 10 mm2 | 9 | 4,5 | 0,6 | ||
| 230V, 1N~ | 2 | SIM | 40 A | 7,4 kW | 32 A | 3G 6 mm2 | 4,5 | 2,3 | 0,6 |
| 3 | 50 A | 9,6 kW | 41,8 A | 3G 10 mm2 | 6 | 3 | 0,6 | ||
| 400V, 3N~ | 5 | ALT | 20 A | 9,6 kW | 15,7 A | 5G 2,5 mm2 | 9 | 4,5 | 0,6 |
| 5 | SIM | 25 A | 14,1 kW | 22,2 A | 5G 4 mm2 | 9 | 4,5 | 0,6 | |
| 230V, 3~ | 6 | ALT | 32 A | 9,6 kW | 25,2 A | 4G 4 mm2 | 9 | 4,5 | 0,6 |
| 6 | SIM | 40 A | 14,1 kW | 36,5 A | 4G 10 mm2 | 9 | 4,5 | 0,6 | |
FACTORY DEFAULT ELECTRICAL CONNECTION
400V, 3N~,5 SIM , 14,1 kW, 22,2 A, 5G 4 mm2
| MOD. | AD-125 (HRS, SOFT) | ||||||||
| CONNECTION | Fuse protec. | Total kW | Total Amp. | Wire Section | RC (kW) | RT (kW) | MB (kW) | ||
| 230V, 1N~ | 2 | SIM | 32 A | 6,2 kW | 26,7 A | 3G 4 mm2 | 4,5 | 1,1 | 0,6 |
| 3 | 40 A | 8 kW | 34,8 A | 3G 6 mm2 | 6 | 1,4 | 0,6 | ||
| 400V, 3N~ | 5 | SIM | 20 A | 11,7 kW | 18,7 A | 5G 2,5 mm2 | 9 | 2,1 | 0,6 |
| 230V, 3~ | 6 | SIM | 40 A | 11,7 kW | 30,5 A | 4G 6 mm2 | 9 | 2,1 | 0,6 |
FACTORY DEFAULT ELECTRICAL CONNECTION
400V, 3N~,5 SIM , 11,7 kW, 18,7 A, 5G 2,5 mm2
| MOD. | AD-125 ECO | |||||||
| CONNECTION | Fuse protec. | Total kW | Total Amp. | Wire Section | RC (kW) | RT (kW) | MB (kW) | |
| 230V, 1N~ | 4 | 16 A | 2,7 kW | 11,8 A | 3G 1,5 mm2 | – | 2,1 | 0,6 |
| 400V, 3N~ | 5 | 16 A | 2,7 kW | 5,7 A | 5G 1,5 mm2 | – | 2,1 | 0,6 |
| 230V, 3~ | 6 | 16 A | 2,7 kW | 7,9 A | 4G 1,5 mm2 | – | 2,1 | 0,6 |
FACTORY DEFAULT ELECTRICAL CONNECTION
400V, 3N~,5 SIM , 2,7 kW, 5,7 A, 5G 2,5 mm2
| Cycle: | Wash cycles |
| Rinse: | Water consumption ( I/cycle ) |
| Tank: | Tank capacity |
| Boiler: | Boiler capacity |
| kg: | Net weight |
| NS: | Noise level |
| MOD. | ![]() | ![]() | Cycle (s) | Rinse | Tank | Boiler | kg (*) | NS |
| CO-110 | 500mm x 500mm | 40 | 90/120/180/600 | 2,5 L / cycle | 33 L | 9 L | 91 kg | < 70 dB |
| CO-142 | 65 | 55/75/120/600 | ||||||
| COP-144 | 2,4 L / cycle | 93 kg | ||||||
| AD-125 | 55/75/120/480/Glass | 28 L | 110 kg | |||||
| AD-125 ECO | < 65 dB |
Control panel symbols Fig. 7, 8, 9
| SELECT | Cycle selector switch |
| STANDBY | Standby |
| C1 – C2 – C3 | Wash Cycle 1–2–3 |
| EXT.WASH / P3 (3s) | Extended wash |
| REG. | Regeneration |
| DRAIN / P1 (3s) | Drain |
| ON/OFF | ON / OFF Button |
| ON LIGHT | Machine on pilot light |
| READY LIGHT | Machine ready pilot light |
| CYCLE LIGHT | Cycle pilot light |
| RINSE LIGHT | EFFI- RINSE SYSTEM pilot light |
| WASH TEMP | Wash Temperature display |
| RINSE TEMP | Rinse Temperature display |
| P1 – P2 – P3 | 1–2–3 Wash Cycle button |
| L1 – L2 – L3 | 1–2–3 Wash Cycle pilot light |
| SALT LIGHT | Salt low pilot light |
| START | Cycle Start / Stop button |
| SC | Self-Cleaning button |
| MENU | Cycle/Program selector switch |
| DISPLAY | Display |
Fig. 7 MOD “A” CO-110, CO-142
CO-110 (B, DD) 

QUICK START-UP GUIDES



GENERAL INFORMATION AND WARNINGS
BEFORE INSTALLING AND STARTING THE APPLIANCE, PLEASE READ THE INSTRUCTIONS CONTAINED IN THIS MANUAL CAREFULLY.
The manual should be kept safely to hand for future reference. If the machine is sold or transferred, please pass the manual to the new user.
THIS APPLIANCE IS INTENDED EXCLUSIVELY FOR PROFESSIONAL USE AND MAY ONLY BE USED BY QUALIFIED PERSONNEL. IT MUST BE INSTALLED AND REPAIRED EXCLUSIVELY BY AN AUTHORISED AND QUALIFIED TECHNICAL SUPPORT SERVICE.
THE MANUFACTURER MAY NOT BE HELD LIABLE FOR ANY PROPERTY DAMAGE OR PERSONAL INJURY RESULTING FROM THE INCORRECT INSTALLATION, USE, MAINTENANCE OR REPAIR, OR CAUSED BY FAILURE TO COMPLY WITH THE STANDARDS AND INSTRUCTIONS PROVIDED.
- The placement, installation, repairs and/or modifications must always be carried out by an authorised technician in accordance with the manufacturer’s instructions and the applicable regulations.
- Any installations, adjustments or repairs carried out by unauthorised personnel, incorrect maintenance or use, the use of spare parts other than those supplied by the manufacturer and any other type of alteration to the appliance may cause damage or injury and result in loss of cover under the warranty.
Ensure that the earth connection operates correctly and efficiently.- If the appliance breaks down, please call the Technical Service Centre. Do NOT try to repair it or allow unauthorised or unqualified personnel to do so.
- Do not change the position of or handle the machine components, as this may affect the operating safety.
- The dishwasher must be correctly levelled and the electrical cables, water and drainage hoses must not be trapped or contain kinks.
- The appliance has been designed to operate at ambient temperatures ranging from 5 ºC to 40 ⁰C, and must not be used at temperatures below 5 ºC.
- This dishwasher has been designed to wash plates, glasses and other similar dishes containing traces of food. Any other use will be considered inadequate. Objects other than those described above, or objects contaminated with petrol, paint, steel or iron shavings, fragile objects or those which are not dishwasher-resistant must NOT be washed in the dishwasher.
- During cleaning or maintenance operations, the dishwasher should be disconnected from the electricity supply at the mains and the water inlet tap closed.
- Abrasive or corrosive products, acids, solvents, or CHLORINE/HYPOCHLORITE-based detergents must never be used.
- Never use the appliance or any of its components as a ladder or means of support, and do not deposit objects on top of the machine. Do not overload the hood reverse as it is only designed to withstand the weight of the basket with the dishes to be washed.
- Do not open the hood of the machine while the machine is operating. Do not immerse hands in the washing solution. Switch off the appliance and drain the tub before accessing the inside of the machine.
- Do not install the appliance in places exposed to jets of water.
IMPORTANT: WAIT AT LEAST 10 MINUTES AFTER SWITCHING OFF THE MACHINE BEFORE CLEANING THE INSIDE OF THE APPLIANCE. WARNING: DO NOT INSERT HANDS AND/OR TOUCH THE INTERNAL PARTS OF THE TANK WHILE THE MACHINE IS OPERATING AND WAIT 10 MINUTES AFTER THE WASH TANK HAS DRAINED.
PRODUCT DETAILS
The machine which you have just purchased is specially designed for cleaning tableware, glassware and other items of kitchenware, used in the hotel and catering sector. As it is an industrial product, it is characterised for having a high dish washing capacity.
All the appliances have a specifications plate which identifies the appliance and indicates its technical characteristics; it is located on one side of the machine. Don`t remove the specifications plate from the unit.
SPECIFICATIONS PLATE
- NAME OF APPLIANCE
- APPLIANCE CODE
- SERIAL NUMBER + DATE OF MANUFACTURE
- ELECTRICAL SPECIFICATIONS
- WATER SPECIFICATIONS

These details should be quoted when the technical service is called.
INSTALLATION INSTRUCTIONS
The placement, installation, repairs and/or modifications must always be carried out by an authorised technician in accordance with the manufacturer’s instructions and the applicable regulations.
Any installations, adjustments or repairs carried out by unauthorised personnel, incorrect maintenance or use, the use of spare parts other than those supplied by the manufacturer and any other type of alteration to the appliance may cause damage or injury and result in loss of cover under the warranty.
THE MANUFACTURER MAY NOT BE HELD LIABLE FOR ANY PROPERTY DAMAGE OR PERSONAL INJURY RESULTING FROM THE INCORRECT INSTALLATION, USE, MAINTENANCE OR REPAIR, OR CAUSED BY FAILURE TO COMPLY WITH THE STANDARDS AND INSTRUCTIONS PROVIDED.
4.1 Transport and Unpacking
The machine should be carried to the place of installation using a fork-lift truck or similar to avoid damage to the structure. First take the machine to the place of installation, then remove packaging and protective film.
Packaging must not be left in the reach of children, it is a potential hazard.
Check the machine for damage during transportation. If any damage is observed, immediately notify the supplier and the transport company. In the event of doubt, do not use the machine.
The packaging for this product is made from recyclable materials (wooden pallet, cardboard, polypropylene band, expanded polyethylene…). Correct disposal of these materials will contribute to the conservation of the environment. Dispose of these materials in accordance with current legislation.
4.2 Positioning and levelling
The place where the appliance is to be installed should be analysed prior to installation to check that it is suitable.
The installation location must be able to withstand the weight of the machine.
The height of the legs can be adjusted by turning them to ensure that the appliance is correctly installed. It is essential that the machine is correctly levelled.
Electrical cables, water and drainage hoses must not be trapped or contain kinks.
4.3 Electrical connection
An AUTHORISED TECHNICIAN should always carry out the appliance’s electrical connection.
The legal standards in force regarding connection to the mains must be taken into account.
- The specifications plate indicates the maximum power in kilowatts (kW) and amperes (A) for the correct sizing of the installation components (line, power supply cable…). If the configuration is changed, the values must be revised.
- Check that the mains voltage corresponds to that indicated on the nameplate.
- Flexible cable with oil-resistant coating, type H05RN-F or H07RN-F must be used.
- The cross-section of the power cable must be suitable for the rated current of the machine.
- It is obligatory to earth the appliance. Ensure that the earth connection operates correctly and efficiently. The manufacturer will not be held liable for damage originated by failure to observe this requirement.
- Near the appliance and easily accessible to the user, between the power supply and the appliance, a suitable omnipolar cut-off Circuit Breaker with a minimum contact separation of 3 mm (0,12 in) must be installed. This switch should be used to disconnect the appliance during installation, repair, cleaning and maintenance work. It is recommended that it has lockout-tagout capabilities. The manufacturer will not be held liable for damage originated by failure to observe this requirement.
- A suitable safety switch / Residual current device must be installed near the appliance between the power supply and the appliance. The manufacturer will not be held liable for damage originated by failure to observe this requirement.
- The terminal marked with the symbol EQUIPOTENTIAL BONDING on the rear of the machine must be used for the equipotential connection between different
appliances
. - If any faults are observed during the installation, the supplier should be notified immediately.
The voltage configuration of the machine is stipulated on the nameplate (FACTORY ELECTRICAL CONNECTION Fig. 6). All the machines are equipped with a terminal box for configuring different voltage and power/amperage options (230 V 1N~, 230 V 3~ or 400 V 3N~) (Fig. 6).
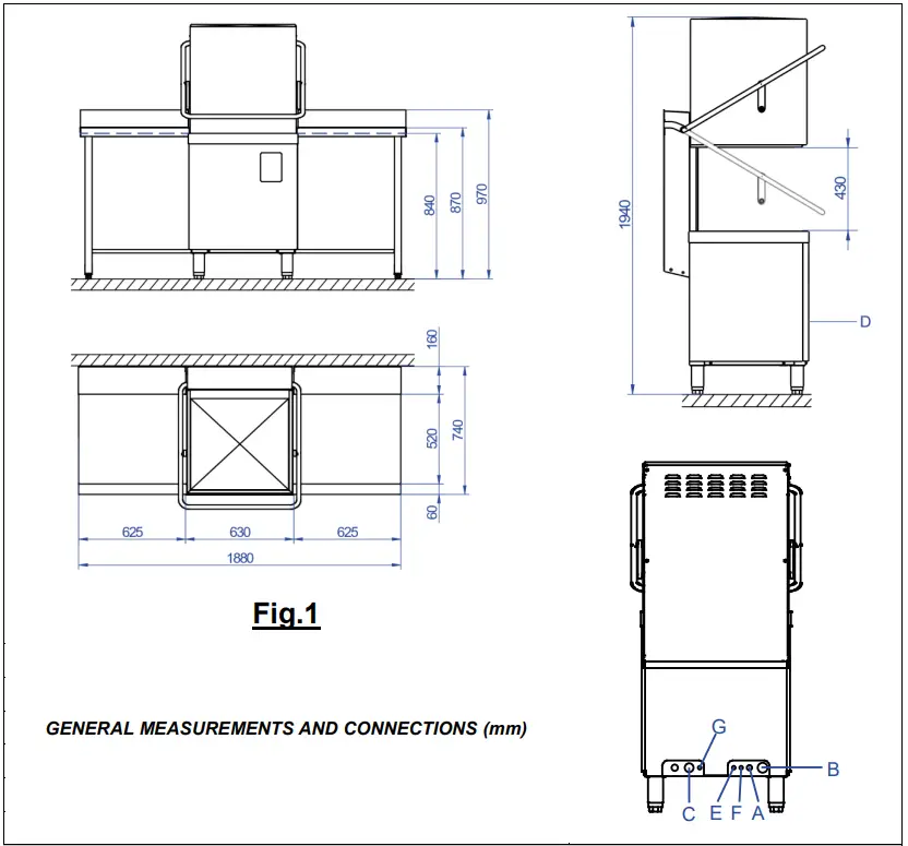
To access the connection terminal, remove the front cover of the machine (D, Fig. 1). This allows the power cable to be connected and the machine configuration to be changed if required (Fig. 6).
If the configuration is modified, this should be indicated on the side of the nameplate using the labels supplied.
The power cable must be secured using the packing glands (C, Fig. 1).
ONLY AUTHORISED AND QUALIFIED PERSONNEL may change the electrical configuration. Users may not tamper with the machinery.
MOD “C” has a menu which can be configured by the technical service to modify the Alternate and Simultaneous heating values of the tank and boiler resistors so that they operate simultaneously or alternately depending on the CONNECTION Fig. 6. This value must be checked when the machine is installed. Chapter 4.7 ADJUSTING PARAMETERS (MOD “C”).
4.4 Hydraulic connection
Before connecting the machine to the mains water supply, the water must be tested and should comply with the following requirements:
| pH: | 6.5 – 7.5 |
| Impurities: | Ø < 0.08 mm |
| Chlorides: | max. 150 mg/l |
| Cl: | 0.2 – 0.5 mg/l |
| Conductivity: | 400 – 1,000 µS/cm |
| Total hardness of the water: | 5 – 10 ⁰fH (French degrees) |
| 3.5 – 7 ⁰fH (English degrees) | |
| 2.8 – 5.6 ºdH (German degrees) | |
| 50 – 100 mg CaCO3/l |
If the water quality does not meet the specified requirements, contact a professional able to advise on the water treatment systems necessary to make the water suitable and to provide a solution.
If the water hardness is higher than that indicated, a descaler should be installed to prevent the build-up of lime on the machine and to permit optimum cleaning and drying. It is also possible to install a SOFT model with built-in descaler (in this case if the water hardness is higher than 45 ºfH / 31.5 ºeH / 25.2 ºdH, it will still be necessary to install an external descaler).
In addition to water quality, the pressure of the mains water supply must be considered. This is important to ensure the machine operates correctly. The dynamic pressure of the water inlet must be within the values indicated in the following table.
| DYNAMIC PRESSURE OF WATER INLET | |||||
| MOD “A” | Min. | 200 kPa | 2 bar | 2 kg/cm2 | 29 psi |
| Max. | 400 kPa | 4 bar | 4.1 kg/cm2 | 58 psi | |
| MOD “B”, “C” | Min. | 100 kPa | 1 bar | 1 kg/cm2 | 14.5 psi |
| Max. | 400 kPa | 4 bar | 4.1 kg/cm2 | 58 psi | |
If the water pressure is higher than the recommended pressure, a pressure regulator must be mounted.
If the water pressure is lower than the recommended pressure, a pressure pump must be mounted (Fig. 3). Please contact your supplier or the manufacturer to request the PRESSURE PUMP KIT.
The water inlet temperature is also important. Hot water should be used to optimise the machine operation, as the use of cold water will increase the times required to reach the operating temperatures and productivity will be reduced. If using hot water, the water temperature must not exceed 60 ºC / 140 ºF.
| WATER INLET TEMPERATURE | Min. | Max. |
| Cold Water | 15 ºC / 59 ºF | 40 ºC / 104 ºF |
| Hot Water | 40 ºC / 104 ºF | 60 ºC / 140 ºF |
For the correct hydraulic installation of the machine, you must:
- Connect the appliance to a water supply which complies with the requirements specified above ( 2. Direct connection / Fig. 3. Pressure pump connection). All the machines have a ¾” screw- on water hose connection. Old or used hoses must NOT be used.
- Install a shut-off valve on the water supply close to the machine in an accessible position S ( 2/ Fig. 3).
- Check that the mains pressure is within the range indicated above.
- Check that there are no leaks
UK Only
IRN R160: A compliant double check valve or some other no less effective device providing backflow prevention protection to at least fluid category three shall be fitted at the point of connection(s) between the water supply and the fitting or appliance.
4.5 Connection of ECO models
In the ECO models (with hot water generator), the AG (Water inlet from booster) corrugated hose must be connected between the rinse pump of the conveyor belt dishwasher and the water outlet of the hot water generator.
To link the two machines electrically, there is a connector which must be linked using the wiring and protective hose WBE (Water booster power supply).
The ECO models do not have a boiler or main water supply connection, therefore this does not apply. The instructions for the installation, start-up and use of the generator can be found in the generator instruction manual.
4.6 Drainage connection
The machine drainage hose must be connected to the drain so that water draining from the machine flows freely under gravity; therefore, the drain must be lower than the drainage hose (Fig. 4).
If the drain is higher, it will be necessary to use an appliance fitted with a drainage pump. The maximum permitted height of the drain is 800 mm (Fig. 5) above the machine drainage level. The pump may be equested at the time of purchase or installed subsequently.
The drainage pump must only be installed by personnel authorised by the manufacturer, and the manufacturer does not accept liability in the event of incorrect installation.
The machine drainage hose must be connected to a sump with a drain trap to prevent the return of bad odours.
Check that the drainage system operates correctly and is not blocked.
4.7 Dispensers
All machines come equipped with an internal rinse dispenser.
The detergent dispenser is optional in some models and is supplied as standard in others.
All the dispenser tubes must be full before starting to adjust the dispensers. To access the dispensers and adjust them, first remove the front cover of the appliance (figure on right). Adjustments must be made at machine operating temperature.
The following installation and adjustment must be carried out by authorised and qualified personnel. Contact a qualified chemical product supplier to determine the most suitable product and dose in order to optimise the wash.
The guarantee does not cover damage caused by the incorrect installation or use of dispensers and chemical products.
The correct selection and dosing of detergent and rinse aid is essential for obtaining an optimum wash.
Only use liquid detergent especially designed for use with industrial dishwashers and which is nonfoam forming at high temperatures. Detergents designed for domestic use
should not be used under any circumstances. The detergent and rinse aid containers must be placed close to the appliance. The results of the wash should be assessed after two fills and at least three wash cycles in order to stabilise the doses. There should not be any foam in the tub after running the cycles.
Scratched dishes and the formation of foam in the wash solution are usually an indication of excess rinse aid. Dishes with too many water drops or which are slow to dry are usually a sign of insufficient rinse aid.
4.7.1 Hydraulic rinse aid dispenser (MOD “A”) 
Installation: The water rinse aid dispenser is pre-installed in the appliance. First, the end of the blue tube with filter located at the back of your machine and marked «Abrillantador / Rinse Aid» must be inserted inside the rinse container.
The tubes are see-through to allow you to check that the chemicals are correctly dispensed.
To access the dispensers and adjust them, remove the lower front cover of the appliance.
Operation: To operate, this dispenser uses the rinse pressure of the dishwasher, and therefore does not need an electrical connection. In each rinse cycle, it dispenses between 0 and 4.5 cm3 of rinse aid according to the adjustment made.
Loading: The dispenser has a button on the front for the initial loading of the dispenser, on the adjustment screw itself. Press the adjustment screw several times until the system is fully loaded.
Adjusting the dose: To ensure that the wash is optimised from the start, the dispenser should be adjusted when the machine is installed. The setting should be adjusted according to the type of rinse aid and the water hardness. Turn the adjustment screw until the required dose is obtained (turn clockwise to reduce and anticlockwise to increase the dose).
A quantity of rinse aid is injected into each rinse cycle. This quantity can be adjusted between 0 and 4.5 cm3 , equivalent to the movement of rinse aid in the intake tube of between 0 and 40 cm in length.
For each turn of the screw, the dose changes by approximately 4.4 cm of the length of the intake tube (0.5 cm 3 /turn).
4.7.2 Electric rinse aid dispenser (MOD “B”, MOD “C”)
Installation: The electric rinse aid dispenser is pre-installed in the appliance. First, the end of the blue tube with filter located at the back of your machine and marked «Abrillantador / Rinse Aid» must be inserted inside the rinse container.
The tubes are see-through to allow you to check that the chemicals are correctly dispensed.
To access the dispensers and adjust them, remove the lower front cover of the appliance.
Operation: This dispenser absorbs and dispenses the rinse aid when the rinse pump is switched on. That is, when the machine is filling and during the rinse cycle.
Loading: When the appliance is switched on, the loading process takes place automatically while the machine is filling.
Adjusting the dose: To ensure that the wash is optimised from the start, the dispenser should be adjusted when the machine is installed. The setting should be adjusted according to the type of rinse aid and the water hardness. Turn the adjustment screw until the required dose is obtained (turn clockwise to increase and anticlockwise to reduce the dose).
| Position | 1 | 1,5 | 2 | 2,5 | 3 | 3,5 | 4 | 4,5 | 5 |
| Dose (l/h) | 0,14 | 0,21 | 0,28 | 0,35 | 0,42 | 0,49 | 0,56 | 0,63 | 0,7 |
| Dose during rinse cycle (ml, cc) | 0,4 | 0,6 | 0,8 | 1 | 1,2 | 1,4 | 1,6 | 1,8 | 2 |
In ECO models with hot water gas generator, the rinse aid dispenser connection should be on the hot water generator itself.
Detergent dispenser (MOD “C”, Optional MOD “A” and MOD “B”).
ONLY use liquid detergents which are not foam-forming at high temperatures and which are of commercial quality. Please contact a qualified chemical product supplier. Installation: If the detergent dispenser is not pre-installed in the appliance, an installation kit can be ordered from your supplier or manufacturer.
The tub has an opening for the installation of a detergent intake bushing in the appliance. This is marked with the label “DETERGENT CONNECTION” and is located on the front of the wash tank, above the maximum water level. The existing plug should be removed and the bushing inserted in the hole. The detergent dispenser is installed in the lower front of the appliance and is connected electrically using the existing connection and marking it to this effect.
After installing the detergent dispenser or if this has already been pre-installed at the factory, the end of the clear tube with filter at the rear of the machine marked «Detergente / Detergent» should be inserted in the detergent container.
The tubes are see-through to allow you to check that the chemicals are correctly dispensed.
To access the dispensers and adjust them, remove the lower front cover of the appliance.
Operation: This dispenser absorbs and dispenses detergent when the rinse pump is switched on. That is, when the machine is filling and during the rinse cycle.
Loading: When the appliance is switched on, the loading process takes place automatically while the machine is filling.
Adjusting the dose: To ensure that the wash is optimised from the start, the dispenser should be adjusted when the machine is installed. The setting should be adjusted according to the type of rinse aid and the water hardness. Turn the adjustment screw until the required dose is obtained (turn clockwise to increase and anticlockwise to reduce the dose).
| Position | 2 | 2,5 | 3 | 3,5 | 4 | 4,5 | 5 |
| Dose (l/h) | 0,5 | 1,15 | 1,5 | 2 | 2,3 | 2,6 | 3 |
| Dose during rinse cycle (ml, cc) | 1,5 | 3,5 | 4,5 | 6 | 7 | 8 | 9 |
Alternatively, an external detergent dispenser may be used. This is connected electrically (see machine circuit diagram) using a H05RN-F or H07RN-F type cable.
4.8 MOD “C”: Adjustment of parameters
The configuration and parameters may ONLY be adjusted by QUALIFIED AND AUTHORISED PERSONNEL,
The “C” model has a system configuration menu for the use of the technical support service When the machine is installed, the following parameters should be configured if necessary:
| CONFIG. SISTEMA | SYSTEM CONFIG. | CONFIG. SISTEME | SYSTEM KONFIGUR | CONFIG. SISTEMA |
| TIPO CALENT | HEATING TYPE | MODE CHAUFFAGE | HEIZUNG TYPEN | TIPO RISCALDAM. |
| SIMULTANEO /ALTERNO | SIMULTANEOUS /ALTERNATIVE | SIMULTANE / ALTERNATIF | ZUSAMMEN / ALTERNATIV | SIMULTANEI / ALTERNATO |
| ESCALA TEMPERAT | TEMPERAT. SCALE | ECHELLE DE TEMP. | TEMPERATURSKALA | SCALA DELLE TEMP |
| ºC / ºF | ºC / ºF | ºC / ºF | ºC / ºF | ºC / ºF |
SOFT appliance → The default setting of the SOFT models is highlighted, but this value must be configured depending on the water hardness measurement.
| DUREZA AGUA | WATER HARDNESS | DURETE DE L’EAU | WASSERHARTE | DUREZZA ACQUA |
| 0-9 ºDF (NO-SOFT) / 9-18 ºDF / 18-27 ºDF / 27-36 ºDF / 36-45 ºDF / >45 ºDF | ||||
It is also possible to modify the following parameters at the request of the user:
| CONFIG.SISTEMA | SYSTEMCONFIG. | CONFIG.SISTEME | SYSTEM KONFIGUR | CONFIG.SISTEMA |
| RANGO TEMPERAT. | TEMPERAT. RANGE | PLAGE DE TEMP. | TEMPERAT.BEREICH | CAMPO DI TEMP. |
| LAVADO | WASH | LAVAGE | WASCHEN | LAVAGGIO |
| P1:60 ºC / P2:60 ºC / P3:60 ºC / PG:60 ºC à [55-71 ºC] P1:140 ºF / P2: 140 ºF / P3: 140 ºF / PG: 140 ºF à [131-159 ºF] | ||||
| ACLARADO | RINSE | RINCAGE | SPULEN | RISCIACQUO |
| P1:82 ºC / P2:82 ºC / P3:82 ºC / PG:65 ºC à [65-85 ºC] P1:180 ºF / P2:180 ºF / P3:180 ºF / PG:149 ºF à [149-185 ºF] | ||||
| CICLOS DESAGUE | DRAINING CYCLES | CYCLES VIDANGER | ABBLASEN NR | CICLO DI SCARICO |
| 100 (50-400) | 100 (50-400) | 100 (50-400) | 100 (50-400) | 100 (50-400) |
INSTRUCTIONS FOR USE
PLEASE READ THE INSTRUCTIONS GIVEN IN THIS MANUAL CAREFULLY.
The manual should be kept safely to hand for future reference.
SEE SECTION 2 INFORMATION AND GENERAL WARNINGS.
THIS APPLIANCE IS EXCLUSIVELY FOR PROFESSIONAL USE, AND SHOULD ONLY BE USED BY QUALIFIED PERSONNEL.
THE MANUFACTURER MAY NOT BE HELD LIABLE FOR ANY PROPERTY DAMAGE OR PERSONAL INJURY RESULTING FROM THE INCORRECT USE OR MAINTENANCE, OR CAUSED BY FAILURE TO COMPLY WITH THE STANDARDS AND INSTRUCTIONS PROVIDED.
5.1 Initial start-up
The electrical protection system must be tested before starting the appliance.
The machine must have been installed and/or inspected by qualified personnel. Who will start up the machine for the first time and provide the corresponding operating instructions.
Check that the wash and rinsing arms, the filters and the trays are correctly fitted and in place.
5.1.1 MOD “C”: USER MENU. Configuration of language, date and time.
The machine has a display in which the language, date and time can be configured.
To go to the User Menu, press MENU with the machine switched off (Fig. 9) for 5 seconds.
This takes you to the User Menu with the following options:
| CONFIG. SISTEMA | SYSTEM CONFIG. | CONFIG. SISTEME | SYSTEM KONFIGUR | CONFIG. SISTEMA |
| IDIOMA (LANG) | LANGUAGE (LANG) | LANGUE (LANG) | SPRACHE (LANG) | LINGUA (LANG) |
| ESPAÑOL | SPANISH | ESPAGNOL | SPANISCH | SPAGNOLO |
| INGLES | ENGLISH | ANGLAIS | ENGLISCH | INGLESE |
| FRANCES | FRENCH | FRANCAIS | FRANZOSISCH | FRANCESE |
| ALEMAN | GERMAN | ALLEMAND | DEUTSCH | TEDESCO |
| ITALIANO | ITALIAN | ITALIEN | ITALIENISCH | ITALIANO |
| ATRAS | BACK | DERRIERE | ZURUCK | RITORNO |
| FECHA/HORA | DATE/TIME | DATE/HEURE | DATUM/ZEIT | DATA/ORA |
| DESAGUAR | DRAIN | VIDANGER | ABLASSEN | SCARICO |
| NO / SI | NO / YES | NON / OUI | NEIN /JA | NO / SI |
| TERMOSTOP | THERMOSTOP | THERMOSTOP | THERMOSTOPP | THERMOSTOP |
| NO / SI / ATRAS | NO / YES / BACK | NON / OUI / DERRIERE | NEIN /JA / ZURUCK | NO / SI / RITORNO |
| SALIR | EXIT | SORTIR | VERLASSEN | USCITA |
To browse the User Menu, press MENU (Fig. 9) to change the option and START (Fig. 9) to select an option and enter the different levels.
The default setting of the appliance is English. Therefore go to LANGUAGE (LANG) to change the language. To go to the User Menu in the LANGUAGE (LANG) option, press START (Fig. 9). Select the required language by pressing MENU (Fig. 9) as required, and press START (Fig. 9) to confirm.
To configure the date and the time, go to DATE/TIME. With the format DAY/MONTH/YEAR HOUR/MINUTE (D1D2/M1M2/A1A2 H1H2/m1m2) use the MENU and START buttons (Fig. 9) to change the digits one by one (the active digit flashes). It is possible to confirm the setting without reaching the last value, by pressing the START button (Fig. 9) for 3 seconds.
5.2 Thermo-stop Function (MOD “B”, MOD “C”)
When the thermo-stop is activated, the wash cycle is extended, if necessary, until the boiler reaches a rinse temperature which will guarantee correct hygienisation in accordance with health regulations.
If the water input temperature is lower than 40 ºC / 104 ⁰F, the times required to reach the operating temperatures will increase and productivity levels will decrease. The thermo-stop function may extend the wash cycle times.
In models fitted with this function, the wash cycle may be extended by up to a maximum of 8 minutes, at which point the rinse cycle will start regardless of the rinse temperature.
Models “B” and “C” also have the EFFI-RINSE SYSTEM, which ensures a correct hygienisation temperature at all times and a constant rinse pressure.
In MOD “C” machines, this function can be activated or deactivated using the User Menu. (Chapter 5.1.1)
| TERMOSTOP | THERMOSTOP | THERMOSTOP | THERMOSTOPP | THERMOSTOP |
| NO / SI / ATRAS | NO / YES / BACK | NON / OUI / DERRIERE | NEIN /JA / ZURUCK | NO / SI / RITORNO |
To activate or deactivate this function in the other models, contact the technical service.
5.3 SOFT models with built-in descaler (MOD “C”)
In the SOFT version machines, the dishwasher is fitted with an intake water descaler system.
If the water hardness is more than 45 ºfH / 31.5 ºeH / 25.2 ºdH, an external descaler must be installed.
The built-in descaler eliminates the water hardness resulting from excess calcium and magnesium, which are the causes of scale on the appliance.
Before starting the appliance, fill the corresponding reservoir with regeneration salt for descalers (coarse salt, max. grain size 5 – 7 mm, do not use tablets) and potable water (do not use common salt or any other type of liquid).
To fill the regeneration salt reservoir, proceed as follows:
– Open the hood of the appliance.
– Remove the basket from the machine.
– Unscrew the salt reservoir cap located in the upper part of the tub.
– Using a funnel, pour regeneration salt into the reservoir. The first time, fill with 1 kg of regeneration salt and top up the remaining space with potable water. On subsequent occasions, only add 0.5kg of regeneration salt; the reservoir will have the required amount of water.
– Clean the seal and the edges of the reservoir carefully before replacing the cap in order to prevent oxidisation.
– Replace the cap and tighten securely.
After analysing the hardness of the water, the technician should change the water hardness setting in accordance with the measurements in the configuration menu.
| DUREZA AGUA | WATER HARDNESS | DURETE DE L’EAU | WASSERHARTE | DUREZZA ACQUA |
| 0-9 ºDF (NO-SOFT) / 9-18 ºDF / 18-27 ºDF / 27-36 ºDF / 36-45 ºDF / >45 ºDF | ||||
| WATER HARDNESS | ||||
| ºfH French degree | ºeHEnglish degree | ºdHGerman degree | Classification | Cycles for short regeneration |
| 0-9 | 0-6.3 | 0-5 | Very soft | — |
| 9-18 | 6.3-12.6 | 5-10 | Soft | 35 |
| 18-27 | 12.6-19 | 10-15.1 | Medium hard | 25 |
| 27-36 | 19-25.3 | 15.1-20.2 | Hard | 18 |
| 36-45 | 25.3-31.5 | 20.2-25.2 | Very hard | 10 |
| >45 | >31.5 | >25.2 | Extremely hard | 8 |
The machine notifies the user with an intermittent warning on the DISPLAY (Fig. 9) (A5-NEEDS SALT) that the salt reservoir needs topping up. This warning usually takes several cycles to disappear after the reservoir has been topped up.
The regeneration process is automatically carried out in accordance with the hardness of the water, but this is not detected by the user as it takes place in the background. Sometimes however, the wash cycle may be extended by a few minutes.
Sometimes when the machine is switched on, the message “REGENERATION” is displayed, indicating that the regeneration process will take place in a few minutes before the appliance is filled.
Occasionally the machine runs a more exhaustive regeneration cycle 15 minutes after it is switched off.
The message “REGENERATION” is displayed for 15 minutes.
5.4 ECO models (MOD “C”)
The ECO models do not have a boiler or main water supply connection. The function of the gas water booster is to replace the dishwasher boiler.
The instructions for the installation, start-up and use of the water booster can be found in the water booster instruction manual.
The electrical connection is shared with the dishwasher. Therefore, when the dishwasher is switched on, the hot water water booster automatically comes on.
At first, and if necessary, water will start to enter the water booster. When the water reaches the maximum level, the heater burner will start operating until the water reaches a temperature of 85 °C. On reaching 85 °C, a signal is sent to the dishwasher so that the water from the water booster can be used from this moment.
5.5 Hygiene regulations
- The machines are fitted with temperature displays indicating the temperature of the boiler and the tank (WASH TEMP, RINSE TEMP, Fig. 7 & 8, DISPLAY, Fig. 9), or an indicator light (READY LIGHT, Fig. 7) when the right temperature is reached. It is necessary to wait until the tank and boiler temperatures are reached before starting the wash cycle.
- Before placing dishes in the dishwasher, carefully remove food remains to avoid blocking the filters, jets and tubes.
- Drain the wash tank and rinse the filters at least twice a day or every 40-50 wash cycles.
- Make sure that the quantities of detergent and rinse aid dispensed are correct (as recommended by supplier). At the start of the work day, check that the quantity of product in the reservoirs is enough for the daily requirement.
- Remove the basket from the appliance and handle the dishes/cutlery with gloves or clean hands to prevent contamination. Be careful as the dishes will be hot.
- Do not dry the plates with kitchen towels or cloths that are not sterile.
- The dishwasher should be kept perfectly clean and maintained.
- Operators must strictly observe all hygiene requirements when handling clean dishes and cutlery.
5.6 Rinse aid and detergent
Contact a chemical product supplier to determine the most suitable product and dose in order to optimise the wash.
The guarantee does not cover damage caused by the incorrect use of dispensers and chemical products.
When handling chemical substances, the product safety instructions and recommended doses must be observed. Use protective clothing, gloves and safety glasses when handling chemical products.
Do not mix different detergents.
Correct selection and dosing of detergent and rinse aid is essential for obtaining an optimum wash. The quantities/doses recommended by the detergent/rinse aid supplier must be observed.
Check and maintain the levels of detergent and rinse aid in the containers;
always check the levels at the start of every workday.
Make sure that the weight and filter are correctly fitted on the ends of the rinse aid and detergent intake tubes and that they are correctly immersed in the correct containers.
Clean the filters regularly to prevent blockages.
Each tube has a label on the end indicating «Abrillantador / Rinse Aid» or «Detergente / Detergent» to identify them; the blue tube is for rinse aid and the clear tube for detergent.
Place the containers close to the appliance.
IMPORTANT: Do not mix different detergents or rinse aids as they could crystallise and damage the dispensers. Whenever the type of detergent or rinse aid is changed, it is ABSOLUTELY ESSENTIAL to clean and bleed the dispenser and its hoses, by placing the detergent/rinse aid pipe in water for several cycles.
If the rinse aid or detergent is changed, the settings should be adjusted accordingly by qualified personnel.
RINSE AID
The machine is fitted with a rinse aid dispenser as standard. This automatically dispenses the rinse aid in the machine boiler.
Use liquid rinse aid especially designed for use with industrial dishwashers and which is non-foam forming at high temperatures.
Rinse aid is necessary to correctly disperse and drain the water over the dishes in order to avoid stains and to speed up the drying process.
Scratched dishes and the formation of foam in the wash solution are usually an indication of excess rinse aid. Dishes with too many water drops or which are slow to dry are usually a sign of insufficient rinse aid.
DETERGENT
The machine may come fitted as standard with a detergent dispenser. If this is not the case, it can be installed subsequently. Please ask your dealer or the manufacturer.
Use liquid detergent especially designed for use with industrial dishwashers and which is non-foam forming at high temperatures. Detergents designed for domestic use should not be used under any circumstances.
Detergent is necessary to correctly clean the dirt and food remains from the dishes. If the appliance is not fitted with a detergent dispenser, we recommend you install one. Otherwise it will be necessary to dispense the detergent manually by pouring it into the centre of the tub, taking care to correctly dissolve the detergent (not recommended as this does not guarantee optimum conditions for washing and cleaning).
5.7 Preparation and switching on the machine
Before switching on the machine:
✓ Check that the wash/rinsing arms are correctly positionedand fastened and rotate correctly.
✓ The corresponding filters must be clean and in place.
✓ The overflow should be mounted in place. Press until it isfirmly inserted. (See figure).
✓ Check and maintain the levels of detergent and rinse aid in the containers to ensure they last throughout theworking day. Make sure that the weight and filter are correctly fitted on the tubes and that the tubes are correctly immersed in the correct containers.
✓ Open the water mains tap and check that there is water.
Switch on the mains power switch.
Close the hood of the machine.
To switch on the machine, just set the cycle selector switch to SELECT (Fig. 7) in any position of the Wash cycle (C1, C2, C3) (Fig. 7), and the ON LIGHT will come on (Fig. 7).
If the machine does not have a cycle selector switch, just press ON/OFF (Fig. 8 & 9) for 2 seconds, and the ON LIGHT will come on (Fig. 8 & 9).
In model “C”, in addition to the ON LIGHT (Fig. 9).the DISPLAY is also activated (Fig. 9) indicating that the machine is filling and the START button (Fig. 9) lights up in red.
WARNING: DO NOT INSERT HANDS AND/OR TOUCH THE INTERNAL PARTS OF THE TANK WHILE THE MACHINE IS OPERATING AND WAIT 10 MINUTES AFTER THE WASH TANK HAS DRAINED.
5.8 Filling and heating
The hood must be fully closed for the machine to start filling.
When the machine is switched on, the boiler and the wash tank are filled with water which is heated to the correct wash and rinse temperatures.
The “B” & “C” models are fitted with a thermostatic filling system, so that the filling process is a cyclical repetition of the following sequence: fill boiler, preheat and partially fill wash tank. This system allows the machine to be filled more quickly as it uses the boiler’s increased power to heat the water.
The filling and heating process lasts several minutes. The exact time depends on the temperature of the incoming water and the power of the machine; the machine is ready to start washing the dishes when the READY LIGHT comes on (Fig. 7) or the thermometers indicate temperatures between 55 ºC – 65 ºC / 131 ºF – 149 ºF in the wash tank WASH TEMP (Fig. 7 & 8) and between 80 ºC – 85 ºC / 176 ºF – 185 ºF in the rinse aid boiler RINSE TEMP (Fig. 7 & 8).
In the “C” model, the START button (Fig. 9) changes from red to green when the filling process has finished and the correct wash and rinse temperatures have been reached.
During the first heating of the day, the boiler may reach higher temperatures than normal due to the heating inertia as the boiler water is cold. This is normal.
5.9 Preparation of the dishes
To correctly prepare the dishes to be washed, proceed as follows:
- Remove the largest pieces of waste food from the dishes before placing them in the baskets.
- Pre-wash the dishes with jets of water to remove waste such as olive stones, toothpicks, grease, etc.
- Wash glassware first.
- Insert the plates at an angle with the inner side of the plate facing upwards in the rack basket.
- Place wineglasses, cups and glasses upside down in the basket.
- Plan cutlery in the cutlery baskets, handles down, (different types of cutlery can be mixed), and place the cutlery baskets in the base basket.
- Do not overload baskets.
- Dishes should be washed as soon as possible after use to prevent the dirt from drying on them.

5.10 Wash cycle
The hood must be fully closed in order to run the wash cycle.
The machine cycle includes a wash, drainage and a final rinse.
The tank thermostat maintains the wash water temperature and a motor pump sends this water with detergent to the washing arms. The jets of water reach the dishes from different directions in order to guarantee a uniform wash.
Between the wash cycle and the rinse cycle there is a pause of a few seconds to allow the detergent to drain off the dishes into the wash tub. If the appliance has a drainage pump, part of the water is drained from the tub and replaced by clean rinsing water.
Lastly, the dishes are rinsed with mains water heated to between 80 ºC – 85 ºC / 176 ºF – 185⁰F to remove the detergent from the dishes and at the same time regenerate the water in the wash tank, making it less dirty.
Models “A” & “B”
To start the wash process in models with Cycle selector switch (Fig. 7), and turn it until it is at the cycle you wish to use Wash cycle C1, C2, C3, EXT.WASH (Fig. 7), insert basket with dishes and close the hood. The CYCLE LIGHT comes on (Fig. 7) while the cycle is running. If the machine does not have a Cycle selection switch just press the button corresponding to the cycle you wish to run Wash cycle button P1, P2, P3 (Fig. 7 & 8), insert basket with dishes and close the hood. The Wash Cycle Pilot light, L2, L3 (Fig. 7 & 8) corresponding to the cycle selected flashes while the cycle is running. To use the EXT.WASH cycle, press P3 (Fig. 7 & 8) for more than 3s with the hood closed; to stop the continuous cycle, press P3 again (Fig. 7 & 8) for more than 3s with the hood closed. The cycle selected will remain selected until the selection is changed or the appliance is switched off.
“C” models
The “C” model always start with the P1 selected by default. To change the wash cycle (P1, P2, P3) press MENU (Fig. 9) and the cycle selected is displayed with its length in the DISPLAY (Fig. 9). Once the wash cycle has been selected, insert the basket with the dishes and close the hood. The START button (Fig. 9) changes from green to blue at the start of the wash cycle and flashes during the rinse cycle.
The wash and rinse temperatures are briefly shown in the DISPLAY (Fig. 9) at the start of the cycles. In the lower band of the display, a decreasing bar indicates the percentage of the cycle remaining (if the cycle is extended by the thermo-stop or a regeneration, the bar stops until the rinse has been completed).
When the wash cycle ends, the START button (Fig. 9) changes to red and the DISPLAY (Fig. 9) indicates that the cycle has ended. When the hood is opened, the message disappears and the START button (Fig. 9) changes to green.
The cycle selected will remain selected until the selection is changed or the appliance is switched off.
The hood should not be opened while the machine is running, but if it is opened, the cycle will pause, and resume when the hood is closed again.
RED: Machine getting ready (filling and/or heating).
GREEN: Machine ready.
BLUE: Cycle running.
In the models with EFFI-RINSE SYSTEM (Mod “B” & “C”) the RINSE LIGHT (Fig. 8 & 9) lights up when a rinse is run at temperatures which guarantee the correct hygienisation in accordance with health regulations and at a constant rinse pressure.
When the wash cycle ends, open the hood and remove the basket, allowing the dishes to dry by evaporation for a minute.
- Remove the basket from the appliance and handle the dishes/cutlery with gloves or clean hands to prevent contamination. Be careful as the dishes will be hot.
- Do not dry the dishes with kitchen towels or cloths that are not sterile.
- Operators must strictly observe all hygiene requirements when handling clean dishes and cutlery.
To stop the wash cycle before it has finished:
- Models with START button: press START.
- Models with cycle selector switch, SELECT: Turn the SELECT switch to another position.
- Models with ON/OFF button: Press the ON/OFF button and switch off the machine.
Models with ON/OFF button: Press the ON/OFF button and switch off the machine. The cycle EXT.WASH P3 stops when P3 is held down for more than 3s with the hood closed.
Selecting the wash cycle:
| C1 – Short | C2 –Medium | C3 – Long | EXT.WASH | ||
| CO-110 | 90s | 120s | 180s | 10min | |
| P1 – Short | P2 –Medium | P3 – Long | EXT.WASH | PG – Glass | |
| CO-142 | 55s | 75s | 120s | 10min | – |
| COP-144 | 55s | 75s | 120s | 10min | – |
| AD-125 | 55s | 75s | 120s | 8min | 90s |
| Tank temp. | 55 – 65 ºC / 131 – 149 ⁰F | ||||
| Boiler temp. | 80 – 85 ºC / 176 – 185 ⁰F | – | 65 ºC / 149 ºF | ||
The cycle should be selected according to the dirt on the dishes:
Short cycle (for dishes which are not very dirty)
Medium/standard cycle (for fairly dirty dishes)
Long cycle (for very dirty dishes or dishes with dried-on dirt)
PG (Glass Programme): Glass wash cycle with rinse temperature of 65 ºC / 149 ºF.
In the “C” model, the technical service may modify the following parameters in any of the cycles at the request of the user and under their responsibility:
Wash temperatures → [55-71 ºC] / [131-159 ºF]
Rinse temperatures → [65-85 ºC] / [149-185 ºF]
Cycle times → Wash: P1: 39s→[35s-60s] / P2: 59s→ [55s-80s] / P3: 104s→ [100s-500s] / PG: 74s→ [70s-95s]
Rinse: 11s [10s-14s]
5.10.1 MOD “C”: Energy saving function:
The “C” model has a energy saving function which operates as follows:
Stand-by mode: When the machine is on stand-by, the boiler maintenance temperature is 5 ºC lower than the setting temperature.
Saving mode: If the machine does not run a programme in an interval of 30 minutes, the dishwasher switches to “Saving mode”. In this mode, the boiler maintenance temperature is 10 ºC lower and the tank temperature 5 ºC lower than the setting temperatures.
5.11 Drainage and switching off the machine
At the end of the working day or when it is necessary to change the wash water because it is too dirty, the wash tank should be drained.
IMPORTANT: WAIT AT LEAST 10 MINUTES AFTER SWITCHING OFF THE MACHINE BEFORE CLEANING THE INSIDE OF THE APPLIANCE.
For correct drainage with the drainage pump, the height of the drain must not be more than 800 mm above the level of the machine drainage.
The dishwashers have two types of drainage; gravity drainage or using a drainage pump.
Drainage by gravity
If the drain is lower than the appliance drainage pipe, just remove the relief valve to allow the water to flow freely under gravity.
The machine should be switched off first.
Drainage using the drainage pump
The pump may be ordered prior to the purchase of the machine or installed subsequently. “C” models are fitted with a drainage pump as standard.
If the appliance has a drainage pump and the drain is higher than the machine drainage pipe, the drainage method is as follows:
Models “A” & “B”
- Remove the overflow valve.
- Models with Cycle selector switch, (Fig. 7), turn the switch to DRAIN (Fig. 7), and then open and close the hood.
- If the machine does not have a Cycle selector switch, just press and hold P1 (Fig. 7 & 8) for 3 seconds with the hood open, and the drainage cycle will start immediately. The L1 Pilot Light comes on (Fig. 7 & 8) while the cycle is running.
- On completion of the drainage, replace the relief valve and switch off the machine.
Switching off the machine
- Models with Cycle selector switch, (Fig. 7), turn the switch to 0 (Fig. 7).
- If the machine does not have a Cycle selector switch, just press and hold ON/OFF (Fig. 7 & 8) for 2 seconds.
5.11.1 MOD “C”: Automatic drainage, Manual drainage and Self-cleaning cycle
“C” models are fitted with a drainage pump as standard and there are three ways of draining the tub:
Automatic drainage: 5 minutes after switching off the machine, the wash tub is automatically drained, unless a Manual Drainage or Self-cleaning cycle is run first.
Manual drainage: To drain the machine immediately without waiting 5 minutes, when the machine is switched off go to the User Menu. (Chapter 5.1.1) and select YES in the DRAINAGE option.
Keep the hood closed.
| DESAGUAR | DRAIN | VIDANGER | ABLASSEN | SCARICO |
| NO / SI | NO / YES | NON / OUI | NEIN /JA | NO / SI |
Self-cleaning cycle: It is also possible to use the self-cleaning option, which in addition to draining the tub, runs an internal cleaning cycle. Without removing the filters and with the hood closed, press SC (Fig. 9), and SELF-CLEANING is displayed. Next, press START (Fig. 9) to begin the cycle. After several minutes, the cycle ends and a message is displayed together with a buzzer alarm and the machine automatically switches off.
The self-cleaning cycle does not replace the need for a more exhaustive manual clean as necessary.
Switching off the machine
Hold down the ON/OFF button (Fig. 9) for 2 seconds.
5 minutes after switching off the machine, the wash tub is automatically drained, unless a Manual Drainage or Self-cleaning cycle is run first.
If the machine is a SOFT model, it is possible that 15 minutes after switching it off, the appliance will run a regeneration lasting 15 minutes, during which the message “REGENERATION” is displayed.
At the end of the day, the machine must be cleaned. Follow the instructions given in this manual with respect to cleaning.
INSTRUCTIONS FOR CLEANING AND MAINTENANCE
It is essential to carry out all the necessary and relevant cleaning operations in order to increase the service life of the machine and to ensure its correct operation. To ensure the efficient washing of the dishes, the dishwasher must be perfectly clean and disinfected.
Contact a cleaning product distributor for detailed information about the methods and products available for the regular disinfection of the machine. Only use products suitable for use with industrial dishwashers.
The guarantee does not cover damage caused by the incorrect use of chemical products.
When handling chemical substances, the product safety instructions and recommended doses must be observed. Use protective clothing, gloves and safety glasses when handling chemical products.
The appliance is made of high quality stainless steel. However, under certain conditions, corrosion may appear.
To keep the stainless steel surfaces permanently free of corrosion, only use suitable cleaning products.
6.1 Routine maintenance
- Check daily that the wash/rinsing arms are correctly positioned and fastened and rotate correctly.
- Check that the filters and the relief valve are clean and correctly fitted.
- At the start of each working day, check and maintain the levels of detergent and rinse aid in the containers to ensure they last throughout the working day. Check that the tubes and filter are correctly fitted and submerged. Clean the detergent/rinse aid tube filters regularly to prevent blockages. If the machine has a SOFT appliance, check the levels of salt.
- Different types of detergent or rinse aid must not be mixed.
- The wash water in the tank should be changed every 40-50 washes or twice a day.
- The machine should be cleaned at the end of each working day.
- WARNING: Do not use jets of water, pressure or steam cleaners to clean the machine or its environment.
- Do not use abrasive or corrosive, materials, solvents, chlorine or chlorine-based products or hypochlorites to clean the machine. Only use products suitable for cleaning industrial dishwashers in the correct doses.
After switching off and draining the machine, wait approximately 10 minutes until the inside of the appliance cools. Caution, the heating element of the tank may still be hot. Everyday:
- Close the water mains tap.
- Disconnect the power switch.
- Remove the filters and clean with a brush under a strong jet of water.
- Remove the wash and rinsing arms by undoing the screws and carefully clean the arms and the nozzles. Rinse with water.
- Replace all the parts correctly.
- Thoroughly clean the tank; food waste attached to the tank or the heating element should be removed with a brush.
- At the end of the day, the hood of the machine should be left open.
6.2 Extraordinary maintenance
Call the technical service twice a year to have the machine serviced:
- Cleaning of water filter.
- Cleaning of lime on the resistors, pipes and surfaces of the machine. The use of phosphoricbased products isrecommended.
- Inspection of the condition of the seals.
- Inspection of the condition of the parts.
- Checking the correct operation of the dispensers.
- Tightening of the electrical connections on the terminals, once a year.
If the power cable is damaged, it must be replaced by the manufacturer, after-sales service or authorised and qualified technical personnel in order to prevent risks.
6.3 Prolonged periods of inactivity
If the machine is going to be inactive or out of service for a long period of time (holidays, temporary closure…), the following should be observed:
- Drain the machine completely, including the boiler.
- Clean the machine thoroughly.
- Leave the hood of the machine open.
- Close the water mains inlet tap.
- Switch off the mains power supply.
- The appliance must not be in left in environments with temperatures less than 5 ºC.
FAULTS, ALARMS AND BREAKDOWNS
A list of possible causes and solutions in the event of anomalies or operating errors is given below. In the event of doubt, or if you are unable to resolve the problem, please contact the technical service.
WARNING
HAZARDOUS VOLTAGE
THIS APPLIANCE MAY ONLY BE REPAIRED BY AN AUTHORISED AND QUALIFIED TECHNICAL SUPPORT SERVICE.
THE MANUFACTURER MAY NOT BE HELD LIABLE FOR ANY PROPERTY DAMAGE OR PERSONAL INJURY RESULTING FROM THE INCORRECT INSTALLATION, USE, MAINTENANCE OR REPAIR, OR CAUSED BY FAILURE TO COMPLY WITH THE STANDARDS AND INSTRUCTIONS PROVIDED.
| FAULT | POSSIBLE CAUSE | ACTION |
| Machine does not come on. | The appliance does not receive mains power. | Check whether the magneto-thermal circuit breaker or the differential switch has tripped. |
| Blown fuses. | Call the technical service to have it replaced and the cause analysed. | |
|
Water does not enter the machine. | Interruption to the supply of water or the intake water valve is closed. | Check whether there is water in the main system and open the shut-off valve. |
| Rinse nozzles blocked. | Clean the nozzles. If there is a build-up of lime on the arm, contact the technical service to have the appliance cleaned. | |
| Solenoid valve filter blocked. | Call the technical service to have it cleaned. | |
| Faulty solenoid valve. | Call the technical service to replace it. | |
| Rinse pump faulty | Call the technical service to replace it. | |
| Pressure switch broken. | Call the technical service to replace it. | |
| Incorrect wash. | There is no detergent. | Fill the rinse aid container. |
| Insufficient detergent. | Call the technical service to reset the dispenser. | |
| Wash distributors obstructed. | Clean distributors thoroughly. | |
| Dirty filters. | Clean the filters thoroughly. | |
| Presence of foam. | Inadequate detergent. Change detergent. | |
| Too much rinse aid. Call the technical service to reset the dispenser. | ||
| Temperature in tank less than 50 ºC / 122 ºF. | Faulty thermostat or incorrect setting. Contact the technical service. | |
| Cycle length too short. | Select a longer cycle in accordance with the dirt on the dishes. | |
| Water too dirty. | Drain the wash tub and fill with clean water. |
| Dishes and kitchenware are not dry. | There is no rinse aid | Fill the rinse aid container. |
| Insufficient rinse aid. | Call the technical service to reset the dispenser. | |
| Dishes left inside dishwasher for too long. | Remove the dishes at the end of the wash cycle and leave to dry by evaporation for a minute. | |
| Rinse temperature lower than 80 ºC / 176 ⁰F. | Allow the boiler to reach the rinse temperature before starting the cycle. If the problem persists, call the technical service. | |
| Dishes stained or scratched. | Too much rinse aid. | Call the technical service to reset the dispenser. |
| High water hardness. | Check the water hardness, it should be less than 10 ºfH. | |
| SOFT models: Not enough salt in salt deposit or incorrect regeneration. | Top up salt container. If necessary, contact the technical service for the adjustment of the water hardness setting. | |
| Traces of salt in tub. | When filling the salt deposit, take care not to spill salt in the tub and clean thoroughly. | |
| Machine stops during operation. | Check whether the magneto-thermal circuit breaker or the differential switch has tripped. | Reset safety device and if it trips again, call technical service. |
| Machine stops and fills with water when it is washing. | Overflow incorrectly mounted. | Mount overflow correctly. |
| Pressure switch pipe blocked. | Empty the tub and clean thoroughly. | |
| Pressure switch faulty. | Call the technical service to replace it. | |
| Machine does not start with the wash cycle. | Hood not closed properly. | Close the hood properly. If the hood opens on its own, contact the technical service to have the tensioners tightened. |
| Hood closed sensor faulty. | Call the technical service to have it repaired. | |
| Machine does not drain completely. | Machine not levelled correctly. | Level the machine In the event of doubt, please contact your technical service. |
| Pressure switch faulty. | Call the technical service to replace it. |
If the fault cannot be found, call the technical support service.
The manufacturer reserves the right to modify the technical characteristics of the machine without prior warning.
7.1 MOD. “A” & “B” Fault diagnosis
The errors are indicated by an LED error code via the ON LIGHT (Fig. 7 & 8), which flashes a set number of times depending on the error, pauses and then repeats the cycle. For example in Error 3: 3 continuous flashes and a longer intermediate pause.
| ERROR / FLASHES | DESCRIPTION | DESCRIPTION |
| 1 | HOOD OPEN. | A cycle is trying to run with the hood open or the hood is opened mid-cycle. |
| 2 | TANK FILL ERROR. | The tank has not reached the correct water level within 10 minutes. |
| 3 | TANK DRAINAGE ERROR. | The drainage pump has not drained the tank in the time established. |
| 4 | BOILER HEATING ERROR | The boiler has not reached the correct temperature in the time established. |
| 5 | TANK HEATING ERROR | The tank has not reached the correct temperature in the time established. |
| 6 | BOILER FILLING ERROR | The boiler has not reached the correct water level in the time established. |
7.2 MOD. “C”: Fault diagnosis y warnings on display
The errors are shown on the DISPLAY (Fig. 9) with a flashing error warning and a buzzer alarm. The buzzer alarm has a cycle of 30 s active and 150 s off until it is switched off after 15 minutes. The warning message continues to be displayed until the error is resolved or the machine is switched off.
| ERROR DISPLAY | DESCRIPTION | CONSEQUENCE |
| E1-TC-BOILER TEMP. | Faulty boiler temperature probe. | Machine disabled. |
| E2-TT-TANK TEMP. | Faulty tank temperature probe. | Machine disabled. |
| E3-TEMP. TANK | Tank overheating TT > 90 ºC | Machine disabled. |
| E4-BOILER TEMP. | Boiler overheating TC > 105 ºC | Machine disabled. |
| E5-BOILER DOES NOT HEAT | Boiler heating faulty. TC does not increase 3 ºC in 5 minutes. | Alarm. |
| E6-TANK DOES NOT HEAT | Tank heating failure. 60 min without reaching temperature. | Alarm. |
| E7-NO WATER | The boiler does not fill. After 10 minutes, the boiler does not fill. | Machine disabled. |
| E8-TANK DOES NOT FILL | The tank does not fill. After 30 minutes, the tank does not fill. | Machine disabled. |
| E9-DOES NOT DRAIN | Does not drain. After 1 minute with the drainage pump running, the level of the tank has not dropped 5 mm. | Machine disabled. |
| E10-INCORRECT RINSE | Rinse error. The boiler level does not decrease during the rinse cycle. | Alarm. |
| E11- TANK MAX. LEVEL | Max. tank level error. The tank contains too much water. | The drainage pump runs until the water level is lowered. |
| E12- TANK MIN. LEVEL TANK | Min. tank level error The tank is running dry while in standby mode. | Machine disabled. |
RECYCLING THE PRODUCT
The European standard 2012/19/EU Directive on Waste Electrical and Electronic Equipment indicates that this appliance must not be disposed of as a domestic appliance. It must be correctly disposed of in order to optimise the recycling of materials and to protect the environment, as indicated by the WEEE symbol on the machine.
For further information on the correct disposal of the machine, please contact the nearest public waste disposal service or the distributor/supplier of the appliance.
Fagor Industrial S. Coop.
Bº Sancholopetegui, 22
Aptdo. 17
20560 OÑATI (ESPAÑA)
Tel.: +34 943 71 80 30
Fax: +34 943 71 81 81
[email protected]
www.fagorindustrial.com























