Ketcham LUM-6036 Luminous Series 60 Inch x 36 Inch LED Mirror Installation Guide
IMPORTANT SAFETY INSTRUCTIONS
When using an electrical product, basic precautions should always be folllowed, including the following
WARNING
To reduce the risk of burns, fire, electric shock, injury or death, use this product only for its intended use as described in these instructions. Do not use attachments not recommended by the manufacturer. Never drop or insert any object into any opening. Do not use outdoors.
WARNING
Installation should be done by a licensed professional. Failure to follow proper installation will void warranty.
WARNING
Risk of electric shock. Connect this product to a properly grounded circuit only. See grounding instructions below.
Grounding Instructions:
This product must be connected to a grounded metal, permanent wiring system, or an equipment-grounding conductor must be run with the circuit conductors and connected to the equipment-grounding terminal or lead on the product.
WARNING
An electrical option mirror must be wired to a 20 Amp GFI (Ground Fault Interrupter) protected circuit when used in bathrooms and all other locations required by the National Electric Code.
PLEASE SAVE THESE INSTRUCTIONS FOR FUTURE REFERENCE

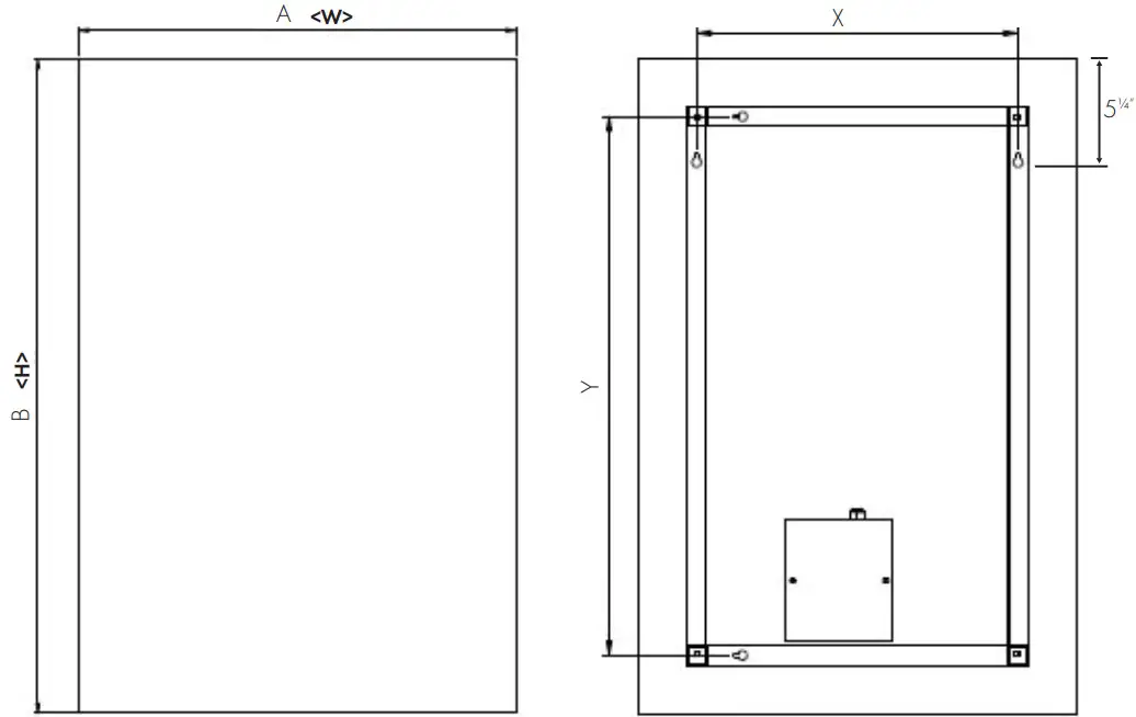
SIZE GUIDE:
| 20”x 30” | 24”x 36” | 30”x 36” | 48”x 36” | 60”x 36” | |
| A | 20” | 24” | 30” | 48” | 60” |
| B | 30” | 36” | 36” | 36” | 36” |
| X | 13 1/2” | 17 1/2” | 23 1/2” | 41 1/2” | 53 1/2 |
| Y | 23 3/4 | 29 3/4” | 29 3/4” | 29 3/4” | 29 3/4” |
INSTALLATION





FINAL ASSEMBLY
DOES YOUR MIRROR HAVE VISIBLE TOUCH SENSORS ON THE FACE OF THE MIRROR?
Adjusting Kelvin Temperature:
To change the Kelvin temperature, simply double tap the
sensor. Kelvin temperature options are: 3000K, 4500K, and 6000K.
Adjusting the Brightness:
To adjust the brightness, hold down the
sensor and it will begin to fade down. To increase the brightness, tap and hold the sensor again.
Operating the Defogger:
To turn on the defogger, tap the
sensor. When you hear a click, the defogger is now turned on. The defogger will take approximately 5 minutes to heat up. To turn off the defogger, tap the touch sensor again, and you will hear defogger unit click off.
- NOTE: IF YOUR MIRROR DOES NOT HAVE VISIBLE TOUCH SENSORS ON THE FACE OF THE MIRROR, IT MUST BE HARDWIRED TO A LIGHT SWITCH.
- these models do not have color changing, dimming, or defogging capabilities.
Use and Maintenance:
CLEANING A STANDARD MIRROR SURFACE:
- Mirror and mirror body are constructed of mirrored glass and aluminum. Use a damp cloth to clean your mirror. Do not use any abrasive material as it may damage the surface and finish of the mirror.
- A mild detergent may be used to clean the surfaces of the mirror.
- When cleaning, spray the cloth, not the mirror or surrounding surfaces.
















