GRUNDIG GDK 5775 BXB Cooker Hood

Please read this user manual first!
Dear Customer,
Thank you for purchasing this Grundig product. We hope that you get the best results from your product which has been manufactured with high quality and state-of-the-art technology. Therefore, please read this entire user manual and all other accompanying documents carefully before using the product and keep it as a reference for future use. If you handover the product to someone else, give the user manual as well. Follow all warnings and information in the user manual. Remember that this user manual is also applicable for several other models. Differences between models will be identified in the manual.
Explanation of symbols
Throughout this user manual the following symbols are used:
- Important information or useful hints about usage.
- warning of hazardous situations with regard to life and property.
- Warning of electric shock.
- Warning of risk of fire .
- warning of hot surfaces.
Important instructions and warnings for safety and environment
This section contains safety instructions that will help protect from risk of personal injury or property damage. Failure to follow these instructions shall void any warranty.
General safety
- This appliance can be used by children aged from 8 years and above and persons with reduced physical, sensory or mental capabilities or lack of experience and knowledge if they have been given supervision or instruction concerning use of the appliance in a safe way and understand the hazards involved. Children shall not play with the appliance. Cleaning and user maintenance shall not be made by children without supervision.
- Risk of Toxicating! While the appliance is operating, air in the entire house is sucked. If adequate ventilation is not provided, waste and toxic gasses which are released as a result of burning will be drawn back into the house through chimney draught. Do not operate the appliance together with sources that may emit toxic gasses and create air draught (wood, gas, oil, and coal stoves, water heaters, kettles, etc.).
- Always have the authorized persons check the adequacy of ventilation and chimney draught in your building.
- The appliance is not intended for use by persons (including children) with reduced physical, sensory or mental capabilities, or lack of experience and knowledge, unless they have been given supervised or instruction concerning use of the appliance by a responsible person for their safely. Young children should be supervised to ensure that they do not play with the appliance.Cleaning and user maintenance procedures should not be performed by the children unless they are under supervision.
- Always have the installation and repair procedures performed by Authorised Service Agent. Manufacturer shall not be held responsible for damages arising from procedures carried out by unauthorised persons.
- Do not operate the appliance if it is defective or has any visible damage.
- Make sure that the appliance is switched off after every use.
- If the product is handed over to someone else for personal use or second-hand use purposes, the user manual, product labels and other relevant documents and parts should be also given.
- The appliance must be installed by a qualified person in accordance with the regulations in force. Otherwise, the warranty shall become void.
- If it has a failure, the product should not be operated without being repaired by the Authorised Service Agent. There is the risk of electric shock!
- Never connect the hood before installation is completed.
- Never touch the plug with wet hands! Do not unplug by pulling from the cable; always hold by the plug to unplug.
- Product must be disconnected from the mains during installation, maintenance, cleaning and repair procedures.
- If the supply cord is damaged, it must be replaced by the manufacturer or its service agent or a similarly qualified person in order to avoid a hazard.
- If your product has been produced with plug, do not cut the plug to connect to electrical supply during installation. Otherwise, the warranty becomes void and the safety risks may happen for users.
- Never connect power cable near to the hobs. If melted down, cable may lead to fire.
- Any work on electrical equipment and systems may only be carried out by authorised and qualified persons.
- In case of any damage, switch off the product and disconnect it from the mains. To do this, turn off the fuse at home.
- Make sure that fuse current is compatible with the product.
- Never wash down the product with water! There is the risk of electric shock!
Product safety
- The height between the lower surface of the hood and upper surface of the hob should not be less than 650 mm.
- Never touch the hood’s lamp after they operated for a long time. Hot lamps may burn your hands.
- Never operate the product without oil filter. Never remove filters when the product is in use.
- Avoid big flames beneath the product. Otherwise, particles on oil filter may flame up and cause fire.
- Turn on the hobs after placing pans or pots on. Otherwise, rising temperature may deform certain parts of your product.
- Turn off the hobs before taking away pans or pots.
- Avoid inflammable materials under the hood.
- Do not expose the product to open flames beneath it. It can cause oils accumulated in the filter to catch fire. Do not operate the product without filter.
- Never leave the cooker unattended when frying foods, the oil may flame up and boiled oil may cause fire. Thus, be careful about cloths and curtains.
- If the hood is not periodically and properly cleaned, this may cause burning risk on your hood.
- For refreshing the kitchen’s air from cooking smells and steams, please turn on your hood for 15 minutes more after cooking or frying has ended.
- There shall be adequate ventilation of the room when the range hood is used at the same time as appliances burning gas or other fuels.
(Not applicable to appliances that only discharge the air back into the room) - In the environment where the hood is being used, the exhaust of fuel oil or gas devices such as room heater must be absolutely insulated or device must be hermetical type.
- If there is a fuel oil or gas device in the environment, the room must be ventilated sufficiently.
- When a non-electrically operated device is concurrently used in the environment together with the hood, the negative pressure in the room must be maximum 0.4 mbar to avoid the hood’s returning other device’s exhaust into the room.
- Never connect the hood to the chimneys used for heaters, waste gas or with rising flames. Observe authorities’ regulations on the draining of output air.
- When connecting to the chimney, use 120-mm diameter pipes. Pipe connection must be as short as possible with fewer bends.
- Do not hang easily flammable and combustible materials on hood handles.
- Our company shall never be responsible for the problems arising from the use against the warnings above.
- There is a risk of fire if cleaning is not carried out in accordance with the instructions.
- Do not flambe under the range hood.
- Caution: Accessible parts may become hot when used with a cooking appliance.
- You are recommended to clean your filter once a month in normal use.
Intended use
This product is designed for domestic use. Commercial use is not admissible.
The manufacturer shall not be liable for any damage caused by improper use or handling.
Children safety
- Keep children away from the product when it is operating and do not allow them to play with the product.
- Packaging materials are dangerous to children. Keep the packaging materials in a place where children cannot reach and sort and discard them in accordance with the waste disposal directives.
- Electrical products are dangerous to children. Keep children away from the product when it is operating and do not allow them to play with the product.
Disposing of the old product Compliance with the WEEE Directive and Disposing of the Waste Product:
This product complies with EU WEEE Directive (2012/19/EU). This product bears a classification symbol for waste electrical and electronic (WEEE). This product has been manufactured with high quality parts and materials which can be reused and are suitable for recycling. Do not dispose of the waste product with normal domestic and other wastes at the end of its service life. Take it to the collection center for the recycling of electrical and electronic equipment. Please consult your local authorities to learn about these collection centers.
Compliance with RoHS Directive:
The product you have purchased complies with EU RoHS Directive (2011/65/EU). It does not contain harmful and prohibited materials specified in the Directive.
Package information
- Packaging materials of the product are manufactured from recyclable materials in accordance with our National Environment Regulations. Do not dispose of the packaging materials together with the domestic or other wastes. Take them to the packaging material collection points designated by the local authorities.
GENERAL INFORMATION
Overview
- Hood body
- Control panel
- Aluminum filter lock
- Aluminum filter
- Lamp
Scope of delivery 

Accessories supplied can vary depending on the appliance model. Not every accessory described in the user manual may exist on your appliance.
Technical specifications
Technical specifications may be changed without prior notice to improve the quality of the product. Figures in this manual are schematic and may not exactly match the product. Values stated on the markings of V the product or in other printed documents supplied with the product are obtained under laboratory conditions as per relevant standards. Depending on the operational and environmental conditions of the product, these values may vary.
INSTALLATION
Refer to the nearest Authorised Service Agent for installation of the product. Make sure that the electrical installations are in place before calling the Authorised Service Agent to have the product ready for operation. If not, call a qualified electrician and fitter to have the required arrangements made.
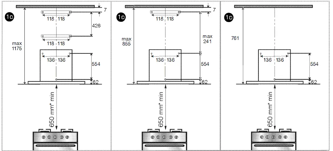
There should be a minimum clearance of 650 mm between the top surface of the hob and the bottom surface of the hood. The air to be extracted via the hood should not be connected to a chimney that is used by other appliances that use gas or other fuels. (It does not apply to devices that only blow the air back into the room)
The regulations on air exhaust should be followed.
Electrical connection
Manufactured with a 2-track power cable, this device must be connected to the mains by an electrical switch with at least 3mm clearance between bipolar contact leads. Have the electrical connections been done by a qualified electrician?
- Install your appliance so that you can reach the power connection (plug, outlet) easily after installation.
Installing the hood
Measurements are in mm. The following provides necessary information to prepare the location for hood installation. The hood must be installed above the central axis of the cooking appliance. There should be a minimum clearance of 650 mm between the top surface of the hob and the bottom surface of the hood. Please apply the following steps for the hood’s installation.
- Centering the cooking appliance, draw an axis line that has the same height as that of the figure above. Then, with reference to this axis line, drill holes according to the dimensions given above to the fasteners supplied with the product.
- lnsert the plastic plugs which are given with the packaging into these holes. Check if chimney connectors correspond to those holes or not.
- As shown in the figure above, fix the wall fittings to their corresponding holes using the two fixing screws provided with the accessories.
- For electronic models, fix the electronic mainboard into its housing with 4 screws as shown in the figure below.

- Fix the hood to the wall by centering it through the A-holes. Remove the aluminum filters of the hood. On the inside, fix the back plate of the hood through the B hole using a screw as shown in the figure below. Make sure that the hood is parallel to the counter when fix in.

- As shown in the figure below, place the cover (C) -that prevents reversed air flow- to the chimney outlet.

- For chimney connection usage: In chimney connection installation, the absorbed air will pass through the aluminum filters and will be expelled to the outside through the connection pipe. When this connection position is used, chimney connection adapter D is placed on part C as shown in the figure above.

- Connect one end of the chimney connection pipe E to the chimney connection adapter and place the other end to the chimney. You can obtain the chimney connection pipe E from the authorized service or from the market

- Internal circulation (Use with carbon filter} In the position of internal circulation, the air absorbed from the environment will go through aluminum filters and carbon filters, where the smell is eliminated, and pass through air directing component, it is finally sent back to the environment through the ventilation grills on the side of the chimney-piece.

Assemble the air directing component, which is provided as two separate parts, as shown in the figure.
Fix the air directing component’s extension parts onto the sides as shown in the figure. As shown in the figure above, fix the air directing component onto the cover (C) that prevents reversed airflow.
Remove the front cover plate on the hood body to attach the carbon filters. Place lug slots of carbon filters (L) to the lugs on motor carrier (F) as shown in the above figure and turn counterclockwise to fix in place. Apply the same procedure for the motor carrier on the other side. Fix the front cover plate into its place again using the screws. - installation of chimney To install the upper chimney, place its upper corners onto the upper wall connector and use the screws to fix the chimney to the wall connector as shown in the figure below.

To install lower chimney, stretch the chimney by pulling slightly from both sides and secure it onto upper chimney’s slots as shown in the figure above.
Fix it to the hood through the two holes on the lower corners of the lower chimney.
You may use the hood in two ways:
- Chimney-connected use The steam is expelled via chimney pipe which is secured to the connection ring on the hood. Diameter of chimney pipe should be equal to connection ring. To allow the air easily going out of the room in horizontal arrangements, the pipe should be slightly tilted upwards
(approximately 10°). - Use with no chimney connection Air is filtered through carbon filter and returned to the room. Carbon filter is used when there is no chimney in the house or when it is impossible to install a chimney pipe.
Future transportation
- Keep the product’s original carton and transport the product in it. Follow the instructions on the carton. If you do not have the original carton, pack the product in bubble wrap or thick cardboard and tape it securely.
Do not place any objects onto the V product and move it in upright position.
Operation the hood
Hood is equipped with a motor with various speed settings. For a better performance, we advise you to use low speeds in normal conditions, and high speeds when smell and vapors are intensified.
- n/off button / Speed1
- Speed2
- Speed3 / Booster
- Function key
- Lamp key
- Display
Auto off mode
- Touch the function key when the appliance is operated at a certain speed. Auto off mode will be activated and G symbol is displayed.
- Appliance shall be turned off automatically after operating for 20 minutes at the set level.
- Touch the function key to disable the auto-off mode.
- The auto-off mode cannot be cancelled by touching the lamp and speed level keys.
Activating intense ventilation mode (Booster)
Touch the speed3 key for more than two seconds. Intense ventilation mode will be activated and P and 8- symbol shall be displayed, and the appliance will be active for maximum 10 minutes. After 10 minutes, it will continue to operate in Speed 3 position.
During intense ventilation, if any of the speed keys is touched then the operation will continue in that speed level.
Turning off the hood
- Touch the off-key for 2 seconds while your hood is operating at a certain speed.
Operating the lamp
- Touch the lamp key to turn on the lamp.
Filter full warning
After every 100 hours of operation, the F symbol and the set level flash in turn 18/EN
- On/off button
- Increase speed button
- Decrease speed button
- Air filter mode button
- Auto-off button
- Booster button
- Filter full warning off button
- Quiet mode button
- Quiet mode cancel button
- Lamp button
- Lamp lighting level increases button
- Lamp lighting level decrease button
Operating the hood with the controller
- To turn on the hood, touch the on/off key on the controller.
- Press the Speed increase and/or Speed decrease buttons to change the speed level.
Turning off the hood with the controller
- Press on the on/off key on the controller when the hood is operating in a certain speed.
Turning the auto-off mode on with the controller
- Press the button on the controller while the appliance is operated at a certain speed. Auto-off mode will be activated and a symbol is displayed.
- Appliance shall be turned off automatically after operating for 20 minutes at the set level.
Replacing the battery of the controller 
- Remove the cover from the point indicated with arrow and open the battery compartment.
- Place the CR2016 type battery.
- Close the cover of battery compartment.
Batteries may be dead if your appliance does not react completely to the commands given by the controller. Discharged batteries shall never be kept in battery compartment.
Note on the environment
This symbol, available on the battery or on the product package, indicates that the battery delivered with this product shall not be considered as universal waste. This symbol may be used with a chemical symbol on some batteries. HG chemical symbol is added if the amount of mercury in the batteries is higher than 0.0005%; and Pb chemical symbol is added if the amount of lead in the batteries is higher than 0.004%. Including the ones without heavy metals, batteries shall not be disposed with household waste. Please dispose of used batteries in an environmentally in your local area.
Maintenance and care
General information
The service life of the product will extend and frequent problems will decrease if the product is cleaned at regular intervals. Disconnect the product from mains supply before starting maintenance and cleaning works. There is the risk of electric shock!
- Clean the product thoroughly after each use. In this way it will be possible to remove cooking residues more easily, thus avoiding these from burning the next time the appliance is used.
- No special cleaning agents are required for cleaning the product. Use warm water with washing liquid, a soft cloth or sponge to clean the product and wipe it with a dry cloth.
- Do not use cleaning agents that contain acid or chloride to clean the stainless or inox surfaces and the handle. Use a soft cloth with a liquid detergent (not abrasive) to wipe those parts clean, paying attention to sweep in one direction.
The surface might get damaged V by some detergents or cleaning materials. Do not use aggressive detergents, cleaning powders/creams or any sharp objects during cleaning.
Aluminum filter
This filter captures oil particles in the air. You are recommended to clean your filter once a month in normal use. Please firstly remove aluminum filters for this process. Wash the filters in liquid detergent water and install them after drying. Aluminum filters might change colour in time due to washing. This is normal and you don’t need to replace the filter.
Removing aluminum filters
- Push aluminum filter lock forward.
- Slightly lower the filter and pull forth. Otherwise, you may bend the filter.
- After washing, reverse the steps above to re-install the aluminum filter.
Carbon filter (Use without chimney)
The carbon filter should never be washed. It should be replaced once every 4 months in normal use. You may obtain carbon filters from the Authorised Service.
Replacing the lamp
Before replacing the lamp, make sure that the product is disconnected from mains in order to avoid the risk of an electrical shock. If hot, let the lamp cool down. Hot surfaces may cause burns! Use only with self-shielded tungsten halogen lamps or selfshielded metal halide lamps.
- Remove the lamp pressing it towards its seat in a clockwise direction (1) and then remove turning it in a counterclockwise direction 2.

- insert the new lamp turning it in a clockwise direction.
- “click” will be heard when the lamp is secured in its place.
Troubleshooting
The product does not operate.
- The mains fuse is defective or has tripped. >>> Check fuses in the fuse box. If necessary, replace or reset them.
- The product is not plugged into the socket.>>> Check the plug connection.
- The speed button might not be set.>>> Press the required speed button.
- Power is cut. >>> Check if there is power. Check the fuses in the fuse box. If necessary, replace or reset the fuses.
The hood light does not work.
- The Hood lamp is defective.>>> Replace the hood lamp.
- Power is cut. >>> Check if there is power. Check the fuses in the fuse box. If necessary, replace or reset the fuses.
Consult the Authorised Service Agent or the dealer where you have purchased the product if you cannot remedy the trouble although you have implemented the instructions in this section. Never attempt to repair a defective product yourself.






























