ARISTON Lydos ECO ABS PW 100V 
GENERAL WARNINGS
- This manual is included in water heater delivery set. It should be kept alongside the appliance even if the latter is transferred to another user and/or moved to another location.
- Read this manual carefully. It provides important safety precautions for installation, use and maintenance of the water heater.
- The appliance is installed at the expense of the user.
- The use of the appliance for purposes other than those specified is strictly forbidden. The manufacturer is not to be held responsible for any damage due to failure to comply with the instructions set in the manual.
- All installation and maintenance works must be carried out by a qualified technician in conformity with the current rules and regulations, as well as the directions provided by the manufacturer.
- Incorrect installation can cause personal injury and property damage. The manufacturer is not to be held responsible for damage due to incorrect installation.
- manufacturer is not to be held responsible for damage due to incorrect installation. children’s reach. The packing material is hazardous for health.
- The appliance is not intended for use by persons (including children) with reduced physical, sensory, or mental capabilities, or lack of ex- patience and knowledge, unless they have been given supervision or instruction concerning use of the appliance by a person responsible for their safety.
- It is strictly forbidden to touch the appliance barefoot or with wet hands and/or feet.
- Repair works should be carried out by a qualified technician using original spare parts produced by manufacturer. Failure to comply with this requirement invalidates all warranties on the part of the manufacturer.
- The temperature of the hot water is adjusted by a thermostat that acts as a protection against overheating.
- Water supply must be done in accordance with paragraph «Hydraulic Connection».
- Electric wiring must be done in accordance with paragraph «Electrical Connection».
- It is strictly forbidden to modify or replace the safety valve with the other one which does not meet the current rules and regulations, if it is not included in the delivery set.
- No inflammable items should be kept near the appliance.
- The water heater is a technically sophisticated electrical appliance for household purposes.
- Whenever electrical water heater installation involves re-equipment (rearrangement) of residential and non-residential premises in residential buildings, installation should be performed only after relevant permissions have been obtained in a proper manner.
- The water heater must be transported in a vertical or a horizontal position (depending on a model) by any covered kind of transport. The water heater must be fixed securely in order to avoid any possible damage, drift or drop inside the vehicle.
- drift or drop inside the vehicle. cargo handling operations.
- If it is necessary to grab the box by clips during transportation, it is recommended to grab the sides of the packaging where following symbol is printed
- In the warehouse, which stores the product, air temperature must be from +5°C to + 40°C and relative humidity must be less than 80% at +25°C. If the temperature is lower, there must be no condensation.
- The product must be stored in containers in storage areas, protected from exposure to precipitation, in the absence of acids, alkalis and other impurities vapors.
KEY TO SYMBOLS
| Symbol | Meaning |
| Failure to comply with this requirement can result in severe injuries and even death | |
| Failure to comply with this requirement can result in damage to property, plants, or animals | |
| General requirements and safety precautions for use |
GENERAL SAFETY NORMS
| Ref. | Warning | Risk | Symbol |
| 1 | Do not open the water heater body | Electric shock. Burns due to the contact with overheated components. Injuries due to the contact with sharp edges or protrusions | |
| 2 | Do not start or stop the water heater by plugging it into or out of the wall outlet. Use the power switch for this purpose | Electric shock in case of cable, plug, or socket damage | |
| 3 | Do not use the water heater with a damaged power supply cable | Electric shock from live unsheathed wires under voltage | |
| 4 | Do not leave anything on top of the appliance | Injury from an object falling off the appliance due to its vibrations | |
| Damage to the appliance or any objects underneath it due to the object falling off following vibrations | |||
| 5 | Do not climb onto the appliance | Injury from the falling appliance | |
| Damage to the appliance or any objects underneath it due to the appliance falling off from its place of installation | |||
| 6 | Before cleaning, isolate the appliance from the mains by unplugging it or turning the switch off | Electric shock | |
| 7 | Install the appliance on a solid wall that is not subjected to any vibrations | Excessive noise | |
| 8 | Make electrical connections using cables with conductors of suitable section | Incorrect conductor section results in cables overheating. It may cause fire. | |
| 9 | Make sure all control and protection functions operate correctly before start the appliance | Shutdown or damage of the appliance due to out-of-service or unregulated control system operation |
ADDITIONAL SAFETY RULES
| 10 | Before water heater handling, drain hot water | Burns | |
| 11 | Descale the components in accordance with the instructions provided in the applicable document. Air the room. Work is performed in protective clothing, avoiding mixing different products. The water heater and surrounding objects shall be protected against ingress of cleansers | Injury due to contact of the skin or eyes with acidic substances, inhalation or swallowing of harmful chemical agents. | |
| Damage to the appliance or surrounding objects due to corrosion caused by acidic substances | |||
| 12 | Do not use any insecticides, solvents or aggressive detergents to clean the appliance | Damage to the plastic and painted parts |
Congratulations on your purchase of an electric water heater manufactured by Ariston Thermos Group. The appliance is designed in compliance with the European quality standards and conforms to declared technical characteristics. The water heater is easy to use; it demonstrates great consumer properties and durability in operation. We hope that you will be satisfied with its work.
Please, read this manual carefully to ensure proper installation and operation of the water heater.
GENERAL INFORMATION
Delivery set and purpose
- Water heater
- Safety valve 1.1.3. Bracket
- Installation and operation manual
- Warranty certificate
- Original packing
The appliance is designed for installation inside the buildings, in the household and utility premises. It is intended for water heating to a temperature below boiling point, with the option of the hot hot water’s supply (not intended for drinking) at several spots (bathroom, kitchen, and toilet) and further m ode. water heating time depends on the volume of the water he
Main elements
- Inner tank
- Thermal insulation of polyurethane foam providing minimal heat dispersion
- Heating element
- Temperature controller which allows you to set the desired temperature of the water heating
- Thermostat controlling the temperature of water in the tank
- Safety valve which is installed at the inlet of the water heater and serves to prevent the return of water to the water line and protect the tank from excessive pressure
- Magnesium anode rod providing additional protection of the inner tank from corrosion
TECHNICAL CHARACTERISTICS
| Product range | 50 | 80 | 100 | |
| Weight (kg) | Enamel | 16 | 20,5 | 24 |
This appliance is conforming with the international stand standards:
- Electrical safety standards IEC 60335-1 and IEC 60335-2-21.
- EMC Electro-Magnetic Compatibility: EN 55014-1, EN 55014-2, EN 61000-3-2, EN 61000-3-3.
The products are compliant according to:
- TP TC 004/2011 «Technical regulations of the Customs Union on safety of low voltage equipment».
- TP TC 020/2011 «Technical regulations of the Customs Union on electro-magnetic compatibility».
INSTALLATION
Attention! The installation and set-up of the water heater must be carried out by a qualified technician in conformity with the applicable rules and hygiene and sanitary standards in force and with any provisions set forth in this manual.
Hot-water boiler bonding against the wall
- Water heater mounting is made on the main wall using brackets and fastening hooks. Fastening hooks (not included in the supply) with a diameter of at least 12 mm are recommended. Depending on the model, you will need 2 or 4 of the fastening hooks.
- Prepared fastening must support a weight that is three times higher than the weight of the water heater filled with water.
- The appliance should be installed as close as possible to the point of water intake to limit heat (A in Fig. 1).
- Allow for a clearance of at least 50 cm under the appliance and a clearance of 10 cm from the ceiling for maintenance.
- Fastening of hooks to the wall must prevent inadvertent movement of the bracket of the water heater over them. After installation, be sure to check security of the fastening.
- To prevent the property of the customer and (or) third party from damage caused by failures of hot water supply system, it is recommended to mount the water heater in the premises provided with waterproof floor and sewer drain. Never put objects sensitive to water under the water heater.
- During mounting water heater in the unprotected areas, you must install underneath the protective tray with drainage into the sewer.
Hydraulic connection
Attention! Installation of safety valve Included In the delivery set Is necessary. Do not install any stop valve between the safety valve and cold water inlet of the water heater and do not block the drain hole of the safety valve. Demountable connectors should be used for the water heater connection to the water supply system.
Standard connection
- Safety valve (A in Fig. 2) supplied must be installed on the cold water inlet of the water heater (marked with the blue ring).
- Connect the inlet of the safety valve to the cold water line with a tube or flexible hose.
- Connect a tube or flexible hose to the hot water outlet of the water heater (marked with the red ring) for hot water removal to the draw-off point.
- For easy maintenance, it is recommended to install a T-piece with shut-off (B in Fig. 2) between the cold water inlet and safety valve of the water heater. It will help to drain water from the water heater without safety valve removal.
- To facilitate the access of air into the tank when draining water, it is recommended to install an additional T-piece with shut-off valve at the hot water output.
- When water pressure exceeds 5 bar, place before the safety valve a reducer to reduce the pressure.
- The device cannot work with water where hardness is less than 12°F. If water is with hardness above 25°F, it is necessary to use softener to reduce the formation of scale and the probability of failure of the heating element. The water hardness should not fall below 15°F.
Connection to open tank filled with water
- Water is supplied to the water heater from the tank by gravity. Safety valve is not necessary in this type of connection.
Electrical connection
Attention! Electrical wiring should be done by a qualified technician, ensuring it complies with safety rules. The manufacturer is not to be held responsible for any damage caused by the incorrect earthing of system or for fault defaults of electricity supply.
- If the product is already equipped with a cable and plug, simply connect it to a power supply source.
- If the water heater is supplied without a power supply cable, use a cable featuring the same characteristics (type H05VV-F 3×1,5 mm2, Ø 8,5 mm) for connection. Remove the cover. The power supply cable should be threaded through the relevant hole on the cover of the appliance and fixed to the thermostat terminals. Then every wire should be fixed in place
by the corresponding screw. - The water heater must be earthed. Grounding scheme should ensure the absence of electric potential on the body of the water heater. The earth cable (of yellow-green color) should be fixed to the terminal marked by the symbol . Fix the power supply cable using the cable clamps. Make sure that the power supply voltage conforms to the water heater technical characteristics indicated on the data plate.
STARTING AND OPERATION
Commissioning
- Shut off the hot water supply of the central water supply system. Before connect the appliance to power source, fill the tank up with mains water. To do this, turn on hot water mixer tap and then tap of cold water supplied to the water heater. 3.1.2. Once the water heater is full, the water will flow from the mixer tap. Check the flange for leakages. Center it and tighten the nuts if necessary.
- Turn the hot water tap on the mixer off.
- Connect the appliance to power source.
- Temperature control and activating the functions
Press the ON/OFF button (A in Fig. 3) to switch on the appliance. Set the desire temperature by using «+» and «-» buttons. Setting level is between 40°С and 80°С. Each press of the «+» and «-» button increases or decreases the set temperature by 10°С.
During the heating phase, the LEDs (1-5 in Fig. 3) corresponding to the temperature
reached by the water so far remain lit in a fixed manner; all subsequent LEDs (up to the set temperature) flash progressively. If the temperature drops, for example after hot water has been used, the heating is reactivated automatically and the LEDs between the last fixed light and the light corresponding to the set temperature will resume flashing progressively. In the event of a power failure or if the product is switched off using the ON/OFF button (A in Fig. 3), the most recently set temperature remains memorized During the heating phase, a slight noise may be produced as a result of the water heating process.
Standard mode
In the standard mode, the water is heated at the minimum power (60% of the maximum power).
FAST mode
In the «FAST» mode, the water is heated at an average power (80% of the maximum power). To enable or disable this mode, press the «FAST» button (B in Figure 3).
BOOST mode
In the «BOOST» mode, the water is heated at the maximum power (100% of the maximum power). To enable or disable this mode, press the «BOOST» button (C in Fig. 3). «ECO
EVO» function
The ECO EVO function is a self-learning software that saves the hot water consumption schedule and in due course optimizes the water heating according to your habits.
The operation of the ECO EVO software consists of an initial training period that lasts one week, during which the device heats the alter up to a user-specified temperature.
Starting from the second week, the software regulates the heating of the water in accordance with the real needs that were deter determined by the device during the first week. The maximum efficiency of the ECO EVO function is achieved after four weeks of training. Press «+» and «-» buttons simultaneously to activate the ECO EVO function. If the water temperature is changed manually when the ECO EVO function is on, the ECO indicator will turn off, the recording of consumption habits will stop and the appliance will start
operating in the selected mode, and the ECO EVO function will be inactive. Press «+» and «-» buttons simultaneously to reactivate the ECO EVO function, and the appliance will continue to record the consumption of hot water. Press and hold «+» and «-» buttons simultaneously for 5 seconds to delete the heating data from the memory. After the restart, ECO button will start flashing and the process of training will start again. In order to ensure correct operation of the ECO EVO function, the product should not be disconnected from the mains electricity
«Thermal disinfection cycle» function (anti-legionella)
The anti-legionella function is activated by default. It consists of a heating/maintenance cycle of the water at 60°C for 1 hour so as to carry out thermal disinfection action against the relevant bacteria. The cycle starts at the first ignition of the product and after each re-ignition which follows a lack of mains power. If the product always work at a temperature below 55°C, the cycle is repeated after 30 days. When the product is off , the anti-legionella function is not active. If the appliance is switched off during the anti-legionella cycle, the product turns off and the function is not completed. At the end of each cycle, the operating temperature returns to the value set previously by the user. The activation of the «anti-legionella cycle» is displayed as a normal temperature setting at 60°C. To permanently disable the anti-legionella function simultaneously press and hold down the «FAST» and «BOOST» buttons for 5 sec.; confirming deactivation the LED 40°C will flash rapidly for 5 sec. To reactivate the anti-legionella function, repeat the operation described above; to confirm the reactivation of the LED 60°C will flash rapidly for 5 sec.
Anti-freeze function
The anti-freeze function is the appliances automatic protection to avoid damages caused by very low temperatures below 5°C, in the event in which the product is turned off during winter. It is recommended that the product remains plugged in to the mains power, even if it is inactive for a long time. Once the temperature rises to a safer level such as to avoid damage from ice and frost, the water heating is switched off again.
Reset/Diagnostics
When one of the malfunctions described above occurs, the appliance will enter its «fault status» and all LEDs on the control panel will flash simultaneously.
Diagnostics: to enable the diagnostic function, press and hold the ON/OFF (A in Fig. 3) and FAST (B in Fig. 3) buttons for 5 seconds. The type of fault is indicated by five LEDs (1-5 in fig 3) according to the following scheme: LED 60°C – NTC 1/NTC 2 temperature sensors broken (open or short-circuited
- LED 70°C – Heating Element fault;
- LED 80°C – Water overheating detected by an individual sensor;
- LEDs 50°C and 80°C – Data flash error;
- LEDs 60°C and 80°C – NFC Communication error;
- LEDs 70°C and 80°C – General overheating (P.C.B. malfunction);
- LEDs 50°C, 60°C and 70°C – NFC Error (PCB Fault);
- LEDs 60°C, 70°C and 80°C – Operation without water.
Exit the diagnostic function by pressing the ON/OFF button (A in Fig. 3) or wait for 25 seconds.
Reset: to reset the appliance, switch the product off and on again using the ON/OFF button (A in Fig. 3). If the cause of the malfunction disappears immediately following the reset process, the appliance will resume normal operation.
If this is not the case, the error code will continue to appear on the display; contact the Technical Assistance Centre.
MAINTENANCE AND REPAIR WORKS
Attention! Do not try to repair the appliance by yourself. All maintenance and repair works should be carried
out by a qualified technician in conformity with the safety norms and with any provisions set forth in this manual.
Water Drain
If there is a possibility that the ambient temperature drops below 0°C in the room where the appliance is installed, drain water from the water heater.
- Disconnect the appliance from the electrical supply;
- Make sure that the water in the appliance is of safe temperature;
- Turn off the tap of cold water supply to the water heater;
- Turn on the hot water tap on mixer for pressure relief inside the tank;
- Turn on the T-connector stop valve installed at hot water outlet (marked with red ring) for air access into the If it is absent, remove the connections at the water heater outlet;
- Connect drain hose directed into the sewer to the T-connector stop valve installed at the cold water inlet of the water heater (marked with the blue ring) and open If there is no T-connector, connect the hose to water heater inlet;
- After draining, make sure there is no water inside the water
Freezing of water inside the water heater leads to irreversible changes and defects. It invalidates all warranty liability on the part of the manufacturer.
Replacing internal parts
- Prior to work, disconnect the appliance from the power supply and drain the water from the water heater. Remove the appliance cover.
- To replace the display board (T in fig. 3), disconnect the display cable (Y in Fig 3).
- To replace heating element and magnesium anode (models with an autoclave flange) unscrew the nut (D in Fig. 4), remove the flange holder (S in Fig. 4) and open the flange (F in Fig. 4) by pressing it inside. Remove the flange by turning it on its axis.
- To replace heating element and magnesium anode (models with a flange on the 5 bolts) unscrew 5 nuts (C in Fig. 4) and remove the flange (F in Fig. 4).
- During reassembly, make sure that all components are put back in their original positions.
- We recommend replacing the flange gasket every time when reassembling.
- Prior to any repair or maintenance procedure, disconnect the unit from power source. Use original spare parts of the manufacturer only.
Periodical maintenance
Magnesium anode
- The magnesium anode rod is an integral part of the protection system of water tank and heating element against corrosion against corrosion.
- It’s necessary to check the condition of the magnesium anode rod ANNUALLY. In case of severe wear, the magnesium anode rod must be replaced.
- The warranty for water tank and heating element with the worn with the worn magnesium anode rod (residual volume is less than 30%) is not valid.
- The magnesium anode rod should be replaced at least once in 24 months (except for the water heater with the internal tank made of stainless steel).

The magnesium anode rod is a consumable item that cannot be replaced under warranty
Safety valve
The safety valve (pressure safety device) must be inspected regularly to check that it is not blocked or damaged. Replace the valve or remove limescale deposits if necessary. If the safety valve is equipped with a lever, regular valve correct operation check procedure can be performed with its help. The drainage pipe of the safety valve may generate water droplets. It is not a defect; it is due to relief work function of the valve pressure relief that occurs when water is heated in enclosed space of the inner tank
RCD (Residual Current Device)
If the appliance comes with a residual current device (RCD) located on the power cord, and then after the tank of the water heater is filled with water and the system is checked for leaks, put in the electrical plug of the water heater and do the following:
- Press «RESET» knob on the RCD body, LED will be lit indicating electricity
- Then press «TEST» knob, power will be off, as well as
- Press «RESET» knob If the power LED lit up, it means that the appliance is safe to use.
- If you press the «RESET» knob, but LED does not light up, contact the Technical Assistance Centre for advice by a qualified technician.
Heating element
Tubular heating element is intended for water heating in the inner tank, by converting electric energy into thermal energy.
Scale formation on its surface may lead to a deterioration in heat transfer, overheating and failure of the heating element. Regularly inspect and, if necessary, remove the limescale from its surface with a descaling solution.
The warranty on the heating element is not valid if one or several following conditions:
- The water hardness exceeds 25°F;
- The thickness of the scale layer on the surface of the heating element is more than 5 mm;
- The residual volume of the magnesium anode is less than 30% of the
Note:
- Manufacturer disclaims any liability for any damage due to incorrect plug in and failure to comply with the requirements set forth in this
- Plumbing lines and stop valves must comply with the water supply
- Water heater is a sophisticated technical household
- Hot water with temperature over 50°C may immediately cause severe burns or even Children, medically fragile and elderly people are more exposed to the risk of burns.
- Water may drip from the water heater, so do not leave valuable items and equipment under the
- If there Is a possibility that the temperature drops below 0°C in the room where the appliance is installed, drain the water from the water
- Water heater installation and plug in are performed at customer’s own
- Heat insulation marks on the outer casing of the item are a technological feature of the production process and are noi considered as a
- Any repair or maintenance procedures must be performed only after the heater Is disconnected from the power
- Any malfunctions must be repaired by professional repair service
- If a malfunction appeared, disconnect the water heater from the power source, shut off cold water supply and contact service center about
- Before making call to the service center, make sure that the problem is not related to water or power
For warranty servicing, please contact the nearest authorized service center.
Do not:
- Modify the water heater
- Install the vertical models horizontally, and horizontal models
- Use the water heater for purposes other than that
- Tilt, move and turn water heater during
- Cover or plug the drain hole of the safety
- Connect the water heater to power source when there is no water in
- Remove the plastic cover when the appliance Is connected to power
- Switch the water heater on if the earthing is faulty or not
- Use central heating, cold or hot water line as earthing
- UseT-connectors or extenders and adapters to connect the appliance to power
- Switch the water heater on in case of heating element or thermostat
- Use water heater without pressure regulator with pressure of water line over 5
- Connect the water heater to pipes and fittings not rated for operation at temperature of 80°C at maximum pressure
- Connect the water heater to water line without a safety valve or with a safety valve with lower technical characteristics than the valve in the delivery
- Connect the safety valve tothe hot water outlet of the water
- Install the appliance in non-ventilated rooms with high humidity
- Operate the water heater at ambient temperatures below
- Expose the appliance to direct
Data and specifications are subject to modification. The manufacturer preserves the right to make any necessary changes without prior notice or replacement
This product conforms to Directive WEEE 2012/19/EU.
The crossed-out recycled bin symbol indicates that in accordance with the regulations of the applicable law this product should be disposed of separately from normal household waste.
The user is responsible for pro per disposal of equipment thereby promoting environmental protection and ensuring the reusing and recycling of materials used in product manufacturing.
Data plate
- Brand
- Serial number or product code
- Model
- Tank material
Fe+ Enamel – enamel steel
Inox or Stainless Steel – stainless steel - Maximum pressure
- Volume
- Rated power
- Voltage
- Current frequency
- Country of origin
- Protection rating
Serial number
Recommendation on the storage water heater installation


Water heater device


- Outer housing
- Bracket
- Inner tank
- Hot water outlet
- Magnesium anode
- Cold water inlet
- Thermal insulation
- Thermostat shell
- Heating element
- Flange
- Thermostat
- RCD (optional)
- Power supply cable (optional)
- Control panel
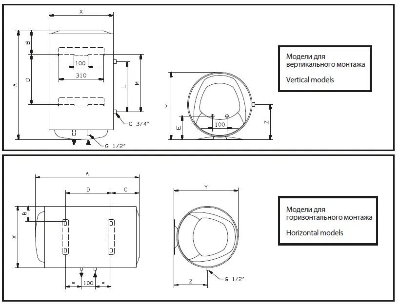
Installation scheme
Dimension
| Ø | MODEL | A | B | C | D | E | L | M | X | Y | Z |
| 450 | 50V | 528 | 163 | – | – | 165 | – | – | 450 | 470 | – |
| 80V | 733 | 163 | – | – | 165 | – | – | 450 | 470 | – | |
| 100V | 885 | 166 | – | – | 165 | – | – | 450 | 470 | – |






















![Midea Smart Ac [cw058iu-awifi] User Manual Midea Smart Ac [cw058iu-awifi] User Manual](https://static-data1.manualsee.com/1/img/294/17740/2020/12/Midea-Smart-AC-CW058IU-AWIFI.png)
