Yingkou Tiancheng Fire Protection Equipment JB-TB-TC5126W Wireless Intelligent Fire Alarm Control Panel

System Introduction
- JB-TB-TC5126W Wireless Intelligent Fire Alarm Control Panel hereinafter referred to as control panel is a new generation of wireless fire alarm control panel introduced by Yingkou Tiancheng Fire Protection Equipment Co Ltd which can be used together with other related products of our company.
- The control panel is small in size, convenient to install and simple to operate, and is widely used in fire protection engineering.
- The fire alarm control system can be widely used in small-scale fire protection projects such as high-grade office buildings, residential quarters, department stores, gymnasiums, libraries, supermarkets, hotels, etc.
- Note This equipment has been tested and found to comply with the limits for a Class B digital device, pursuant to part 15 of the FCC rules.
- These limits are designed to provide reasonable protection against harmful interference in a residential installation.
- This equipment generates, uses and can radiate radio frequency energy and if not installed and used in accordance with the instructions may cause harmful interference to radio communications.
- However there is no guarantee that interference will not occur in a particular installation.
- If this equipment does cause harmful interference to radio or television reception which can be determined by turning the equipment off and on the user is encouraged to try to correct the interference by one or more of the following measures
- Reorient or relocate the receiving antenna.
- Increase the separation between the equipment and receiver.
- Connect the equipment into an outlet on a circuit different from that to which the receiver is connected.
- Consult the dealer or an experienced radio/TV technician for help.
- Important You are cautioned that changes or modifications not expressly approved by the party responsible for compliance could void the user’s authority to operate the equipment.
- This device complies with part 15 of the FCC Rules. Operation is subject to the following two conditions
- This device may not cause harmful interference, and this device must accept any interference received, including interference that may cause undesired operation.
- Any Changes or modifications not expressly approved by the party responsible for compliance could void the user’s authority to operate the equipment.
System Specifications
- With the new generation of high-speed processors, compared with the traditional technology, the data processing speed is faster and the data storage capacity is larger.
- The control panel is beautiful in appearance, easy to operate, easy to learn and use.
- LCD is adopted, with display resolution of 480×272, and information display is intuitive.
- System operation history recording function: fire alarm history, linkage history, fault history and other history each have a capacity of 1000.
- It CAN support CAN bus and network with other fire alarm control panels of our company.
- Wireless 470MHZ communication mode is adopted to connect with the detectors matched with the system.
- Executive standard: GB4717-2005 fire alarm control panel GA 1151-2014 general requirements for wireless communication function of fire alarm system GB16806-2006 fire linkage control system
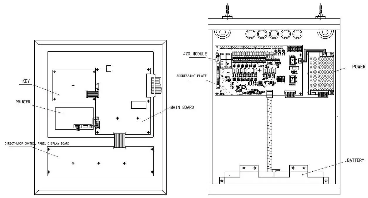
Introduction of control panel components
In order to make you more familiar with the control panel, the following briefly introduces the main components of the control panel
- Main control module
The main control board is responsible for analyzing and processing the information data transmitted by other components in the system, and according to the data analysis results, commanding other components in the system to execute corresponding commands, such as control speaker voice alarm, etc. - Display module
The display component provides the main output interface of alarm information, as well as the daily maintenance and query interface. - Key module
Matrix buttons are used in the control panel, which is very convenient for users to set up and maintain the system. - Power module
The power supply module supplies power for the whole system equipment, and provides power fault signals such as main power fault, standby power fault and standby power under voltage, and has good anti-interference ability. - Wireless 470 module
The 470MHzFSK coded bidirectional communication can communicate with 32 wireless devices. - Loop control panel
This control panel can be connected with 18 intelligent loop control panels, which has less wiring and high reliability. Each start/stop key on the manual fire control startup panel can be associated with any bus equipment connected to the system by definition, and complete the start/stop control of the bus linkage equipment, thus thoroughly solving the inherent problems of engineering wiring, equipment configuration and installation and debugging of the alarm linkage integrated system. - Direct control panel
This control panel can be equipped with 6-way three-wire direct control panel, and has the functions of detecting open circuit and short circuit of output line, which can guarantee the reliability of the control module itself and its connection with important equipment to the maximum extent.
Main Technical Specifications
Power Supply
- Main power supply: AC 220V (3.5A) voltage range+10% ~-15%
- Backup power supply: lead-acid battery 12V/3.3Ah 2 batteries.
Operating environment
- Temperature: -10℃ ~+55℃.
- Humidity: ≤95%, non-condensing.
Equipment capacity
- Number of loops: two wireless loops.
- Number of components in each loop: 32 points.
- Number of network segments: 29.
Wire system requirements
CAN bus RVS twisted pair with cross-sectional area ≥ 1.0mm.
Radio frequency parameters
- Transmit power: < 20dBm
- Communication distance: ≤50m
- Frequency band: 470MHz
Implementation standards
- Executive standard: GB4717-2005 fire alarm control panel
- GA 1151-2014 general requirements for wireless communication function of fire alarm system.
Structure, Installation, Commissioning
Instructions of Structure and Configuration
Overview of Typical Configuration and Internal Structure of Control Panel
- The JB-TB-TC5126W wireless fire alarm control panel is installed in wall-mounted structure, and its typical configuration includes: main control panel, loop control panel, multi loop control panel, power supply, etc. This system integrates alarm and linkage.
- Through wireless and multi-loop control, it can not only complete the functions of alarm and start/stop control of general fire protection equipment, but also realize the control of important fire-protection equipment.
- The appearance schematic diagram of JB-TB-TC5126W control panel

The above picture shows
- control panel part
- loop control panel part (18 points)
- direct control panel (6 loops)
Description of control panel
The structural schematic diagram of fire alarm control panel fire linkage control panel it consists of three parts: display operation area, loop control area and multi loop control area, among which the multi-loop control area is shown in the corresponding instructions.
Display operation area

The panel of display operation area is mainly composed of LCD screen, indicator, keys and printer. The indicator is described as follows
- Fire alarm indicator red
When this light is on, it means that the control panel detects that the external detector is in a fire alarm state. For details, see the LCD display. After the fire alarm is eliminated, press the “Reset” key, and the light goes out. - Fault indicator yellow
Which indicates that the control panel detects that the external equipment (detector, module or fire display panel) is faulty, or the control panel itself is faulty. See the LCD for specific information. After troubleshooting, press the “Reset” key, and the light goes out. - Start indicator red
When this indicator is on, it means that the control panel sends a start-up command to the external equipment. See the LCD for specific information. Press the “Reset” key, and the light goes out. - Supervision indicator red
Which indicates the supervision signal sent by the control panel to the external supervision equipment. See the LCD for specific information. Press the “Reset” key, and the light goes out. - Feedback indicator red
Which indicates that the control panel receives the action feedback signal of external equipment. See the LCD for specific information. When there is no feedback information, this light goes out. - Main power operating indicator green
Which lights when the control panel is powered by AC220V power supply. - Standby power operating light green
When the control panel is powered by standby power, this light will light up. - Disable indicator yellow
When an external device (detector, module, etc.) fails, it can be disabled. After repair or replacement, the device can be restored by using the function of removing disable. This indicator comes on when disable equipment exists - Sounder start indicator: red
When the sounder output contact has 24V output, this indicator will light up. When there is no 24V output at the sounder output contact, this indicator goes out. - Sounder fault indicator yellow
When the sounder output contact is brEnteren or short-circuited, this indicator lights up. After the fault is recovered, this indicator goes out. - Sounder disable indicator yellow
Which lights when the sounder output contact is disabled. - Transmission fault light yellow
Which lights when the connecting line with transmission equipment is open, short-circuited or abnormal in communication. After communication returns to normal, this light goes out. - Transmission status indicator red
When information such as fire alarm and fault occurs, the control panel sends information to the transmission equipment, and the light flashes. When the control panel receives the reply information from the transmission equipment, the light is always on. - Transmission disable indicator: yellow
Which lights when transmission is disabled. - Manual permission green
When manual permission is started, this light is on. - Automatic permission green
When automatic permission is started, this light is on. Self-test indicator: yellow, which lights when the system is in self-test state. - Mute indicator green
When the control panel sounds an alarm, press the “mute” key to turn on the mute indicator, and the speaker stops sounding an alarm. When a new alarm occurs, the mute indicator goes out and the alarm sounds again. - System fault yellow
When the system program can’t work normally, this indicators third part “System Application” for the function of each operation key.
Loop Control Panel
The schematic diagram of loop control area
The loop control panel has 18 manual fire starting points, and each starting point has a key, two indicators and a label. Among them the key is the start/stop control key. If the control key of a certain unit is pressed, the control command will be sent out. When the startup state of the equipment is received, the command light of the unit will light up red. If the controlled equipment starts and sends out a feedback signal, the answer indicator will light up red. The user can write the device name corresponding to each key on the device label, and then fix it on the manual disk together with the diaphragm.
Direct Control Panel
- Schematic diagram of special line control area.
- The dedicated line control panel has six manual starting points, and each starting point has a key, three indicators and a label.
- Among them, the key is the start/stop control key.
- If the control key of a unit is pressed, the start indicator of the unit will light up (red) and a control command will be issued.
- If the controlled equipment responds, the feedback indicator will light up (red). When the external wiring breaks or shorts, the fault indicator will light up (yellow).
- The user can write the device name corresponding to each key on the device label, and then fix it on the manual disk together with the diaphragm.
Description of Internal Structure and Connection
Description of the Control Panel Structure
The control box is the core part of the control panel, which is mainly composed of three parts main board, circuit main board and circuit substation board.

Description of External Terminals of the Control Panel
- In which: L, n, PE: AC 220V terminal and AC grounding terminal.
- HJ+, HJ-: fire alarm output terminals (there are two output modes, which can be selected by jumper.
- Active control output, output DC24V in case of alarm, and stop outputting DC24V after reset.
- SG+, SG-: sounder control output terminals active control points, which output DC24V when starting, and stop outputting DC24V after manual stop or reset.
- A1 and B1: connect RS485 terminals of graphic display device in fire control room. A1 is terminal A of 485, and B2 is terminal B of 485 optional.
- A2, B2: RS485 terminals, with A1 as terminal A of 485 and B1 as terminal B of 485 reserved.
- Qn, Gn, Hn: output terminals of three-wire special line, n: route number of three-wire special line.
- CH, CL: control panel networking CAN bus with polarity.
- COM QD: the output terminal of the starting relay.
- When there is starting information, the relay starts.
- COM GZ: output terminal of fault relay, which is started when there is fault information.
Installation and Commissioning
Unpacking Check
Before installation, the on-site equipment should be checked first.
Engineering configuration check
- Check whether the contents of the packing list of control equipment are consistent with the project configuration.
- After opening the packing box, check the goods in the box one by one according to the contents of the packing list.
- The main check contents include: installation instructions, control panel keys, etc. and then check the appearance of the control panel if it is correct.
- Please contact the after sales department of Tiancheng Company if any nonconformity is found during various checks.
- Check the internal configuration and connection status of the control panel
- Check whether the connections among the components in the control panel are normal. If it is found that the connecting line falls off, does not conform to the instruction manual or has unclear identification, please contact the after-sales department of Tiancheng Company.
Installation Conditions and Methods of control panel
- Dimensions (length × width × height): 360 mm×130 mm×480mm
- Temperature: -10℃ ~+55℃.
- Relative humidity: ≤95%, non-condensing
- Installation mode: wall-mounted installation is adopted.
Power on test
- After the control panel enters the site, it should be powered on for startup check.
- Check the contents include:
- Whether the LCD screen and indicator of the control panel are displayed normally.
- Carry out self-test operation, and observe whether the indicator light of the control panel and each section of the digital tube can be lit, and whether the speaker can emit three kinds of continuous alarm sounds.
- After entering normal monitoring, observe whether there is power fault, whether all keyboard keys are normal, and check whether the printer with printer is normal.
- In case of any abnormality, please inform the after-sales department of Tiancheng Company
External Device Check
Device check
Check whether the installation of loop Device meets the design requirements, eliminate existing faults and make preparations for system connection.
Wiring and Settings
After the check of the control panel and external device, if all the tests meet the requirements, please refer to the relevant instructions in Chapter 2 to properly connect the external device with the control panel and set the multi-loop control panel and loop manual startup panel.
Commissioning
- System wiring, check circuit and insulation resistance.
- Install the detector base.
- Register the detectors and modules and install them on the base.
- On-site programming-linkage logic programming and Chinese character annotation input.
- Carry out detector alarm test and check whether the annotation content is consistent with the on-site situation
- Automatic linkage test. If the automatic linkage is abnormal, first manually check whether the module is normal, if the line and module are normal, check whether the logical relationship is correct and whether there is any problem with the external linkage equipment
- Train operators in correct operation and use methods, and immediately put them into normal operation after acceptance.
System Application
Power-on, Power-off and Self-test
When the commissioning work is completed, the user can start the equipment in the following order
- Turn on the power of related equipment.
- Turn on the main and standby switches that control the power supply.
- After completing the above operations, the system is powered on for initialization.
- After the initialization is completed, the system enters the normal monitoring state.
- There is a “self-check” key on the control panel keyboard. After pressing this key, the system will perform sound and light check.
- Turn off the switches in the reverse order of the power-on process, and pay attention to turn off the standby switch, otherwise, the battery may be damaged.

Operation Level
- There are three operation levels of the control panel, which are Level I, Level II and Level III. When the control panel is turned on, it defaults to Level I. At this time, the Mute Query and Set Query menus can be operated, and the status bar below the LCD screen shows
- Operation Level Level I
- Level 2 can operate user setting, self-test, reset, start, stop, disable, enable, linkage mode, sounder start and stop.
- level 3 can operate system setting, network setting, linkage setting.
- Press the Operation Level key, press the numeric keys to select the operation level.
- and the LCD screen displays a screen asking for password input. At this time, enter the correct user password and press the “Confirm” key to enter the corresponding operation level and obtain the corresponding authority, and automatically exit to the first level without operation for 30S.
Device Registration and Registration Check
Device registration
Press the Menu key to enter the main menu, then press the number 5 to enter System Settings → 4. Wireless Registration, and press the Confirm key to start the system registration. After the registration is completed, the system will automatically reset.
Registration check
Press the Test key, and the screen displays the total number of registered control panels, total number of faults and total number of disable in the current system.
Check the Loop Configuration
Press the Menu key to enter the main menu, and then press the number 1 to enter .This interface displays the types and quantities of various devices registered in the system. press the down key to enter the loop.

Real time information display and history record information display
Information Display
When any information such as fire alarm, linkage, supervision, fault and others exists in the system, the system will display this information; If there is more than one information in the system, the system will display it according to the priority of fire alarm > linkage > supervision > fault > isolation.

Shows the display page of fire alarm and linkage information.
Mute
In case of fire alarm or fault the speaker of the control panel will send out corresponding alarm sound to prompt. Press the mute key, the mute indicator lights up, and the speaker stops giving an alarm. If a new alarm occurs, the silencing indicator goes out and the alarm sounds again.
Fire alarm and fault handling
General handling methods of fire alarm In case of fire alarm, first check the place where the fire alarm occurs and confirm whether there is a fire. If it is a false alarm, find out the reason and handle it as appropriate; If it is confirmed that a fire brEntere out, the fire fighting work should be organized immediately.
General handling methods of faults
Faults can generally be divided into two categories, one is the main control system fault, such as main and standby power fault, bus fault, etc.MThe other is on-site equipment fault, such as detector fault, module fault, etc. In case of fault, press the mute key to stop the fault alarm sound. If the main power fails, standby power supply shall be adopted. Pay attention to that the power supply time should not exceed eight hours. If it exceeds eight hours, the power switch including standby switch of the control panel shall be cut off to prevent the battery from being damaged. If the system fails, it should be overhauled in time, and detailed records should be made if it needs to be shut down.
If it is an on-site equipment fault, it should be repaired in time. If the fault cannot be eliminated in time due to special reasons, the equipment should be temporarily isolated from the system by using the equipment isolation function provided by the system, and then the equipment can be restored by using the function of canceling isolation after the fault is eliminated.
Disable and enable of equipment
When an external device detector, module fails, it can be isolated. After repair or replacement, the release function can be used to restore the device.
Manual start and stop operation of bus controlled equipment
Conditions for manually starting external equipment
Remind users that these external devices are dedicated to fire protection, and wrong operation may lead to undue losses on the one hand; On the other hand, it may weaken the inherent fire fighting ability, so operators should use it carefully!
Start up operation of external equipment shall meet the following conditions
- Operators must be qualified personnel trained in the operation of this control panel.
- Understand the environment and controlled area of the equipment to be started.
- Understand the functions of the started equipment, and accept the results after starting the equipment.
- There are two ways to start and stop the bus controlled equipment manually
- Using the control panel keyboard and using the bus control panel.
- It is a general method to use the start and stop keys of the control panel keyboard to operate and it is necessary to input the circuit and address of the started equipment on site
- Using the bus control panel to operate is a quick and special method.
- The manual keys on the bus control panel have been programmed and defined with the equipment to be controlled during installation and debugging.
- Either way, only when the control panel is in the state of manual permission can the manual start command be issued.
Start/stop operation of the controlled equipment by using the control panel keyboard
Press the “Start” or “Stop” key in the main keyboard area of the control panel if the control panel is in the key locking state, enter the user password to unlock it), and the screen display. Enter the circuit and address of the equipment to be started or stopped. Press the ConfirmMkey, and the control panel issues a command to start or stop the equipment.


Manual start/stop operation of controlled equipment by bus control panel
To start a controlled bus device, first find the unit corresponding to the device to be started according to the prompt information in the transparent window of the bus control panel, press the manual key of this unit, the command light will light up the start command will be issued and the device has been started. If this key is pressed again, the indicator will be ordered to go out, the equipment will stop and return to the stopped state.
Automatic linkage control of bus controlled equipment
Conditions for realizing automatic linkage Only when the control panel is in the state of automatic permission can the automatic linkage start command be issued. When someone is on duty, the bus equipment should be started manually as much as possible.
Implementation of Automatic Linkage Logic
When the logical relationship in the linkage formula is satisfied, the control panel will automatically issue a start command to start the corresponding equipment. See 5.4 editing method of automatic linkage formula for specific programming method.
Reset function
- After the fire alarm or fault is handled, clear the control panel by pressing the Reset key and entering the user password.
- Reset can achieve the following functions.
- Clear all current fire alarm, fault and action displays.
- Reset the status indicator lights on all bus controlled equipment and manual fire startup disk.
- Clear the command that is in the process of requesting and delaying the start of the request.
- Clear the mute state.
System administrator’s guide
Modify time
Press the Menu key to enter 4. User Settings → 1. Date and Time”, and the screen shown in Figure 5-1 will appear. After editing and modifying, the new system time is obtained by saving the modified contents after confirmation.

In the “printing off” state, the system does not print any information.
In the “printing on” state, the printer prints new information in the system immediately.
Equipment Definition
Enter “System Settings” → “1. Loop Component Settings.
Contents and steps of on-site equipment definition
- The external on-site devices of the control panel include fire detectors, linkage modules, etc. All these external devices need to be coded. The codes of these devices include the original address and the on-site code.
- Channel” is filled with “01” by default for equipment without channel.
- The “user secondary number” consists of eight digits from 0 to 9, which is a group of numbers defined artificially to express the specific on-site environment where the equipment is located.
- Users can easily know the location of the coded equipment and other information related to the location through this code. General provisions for user coding are as follows
- The first and second digits correspond to the building number where the equipment is located, and the value range is 0-99.
- The so-called building number refers to a relatively independent building.
- For example, a garden community consists of several office buildings, and each building can be regarded as a building.
- The third digit corresponds to the area code of the building where the equipment is located, and the value range is 0-9.
- If a building has three units, each unit is a district.
- The fourth and fifth digits are floor numbers.
- To facilitate the definition of equipment in the underground part of the building it is stipulated that the underground floor is 99 the underground floor is 98, and so on.
- The sixth, seventh and eighth bits correspond to the room number where the bus system equipment is located or other codes that can identify features.
- The equipment type in the Equipment Type equipment type table does not need to be filled in.
- Annotation information means the location of the equipment or other relevant Chinese character prompt information.
- This item can be composed of 10 Chinese characters or 20 characters at most, or the combination of Chinese characters and characters can not exceed 20 characters in length.
Definition Example of General Equipment of Loop Control Panel
Enter “System Settings” → “2. Loop Control Panel Settings”.

Enter the address number of the bus disk and the address of the corresponding linkage module. Then press the corresponding “Confirm” key to set the corresponding linkage relationship on the bus panel. After setting, press the “Cancel” key to exit the setting. When the linkage module is connected to the local machine, fill in 000, and when the linkage module is connected to other machines, fill in the number of the control panel where the module is located.
Definition example of direct control panel
Enter System Settings → 3. Direct control panel Settings.
Enter the key number of the direct control panel and the corresponding setting information.- Then press the corresponding Enter key to set the dedicated line panel. After setting, press the Cancel key to exit the setting.
- The “key number” corresponds to the key number of the dedicated line starting operation on the dedicated line display panel.
- The secondary code consists of eight digits from 0 to 9 which is a group of numbers defined artificially to express the specific on site environment where the equipment is located.
- Users can easily know the location of the coded equipment and other information related to the location through this code.
- The user code is specified as follows
- Mode can be set to Continuous and Inching, which are represented by 0 and 1 respectively.
- Inspection line” can be set as inspection line and inspection line which are represented by 0 and 1 respectively.
- Annotation information” means the location of the equipment or other relevant Chinese character prompt information.
- This item can be composed of 10 Chinese characters or 20 characters at most, or the combination of Chinese characters and characters can not exceed 20 characters in length.
5.4.4 Wireless access to the Internet
Before wireless registration, please enter Network Settings → 2. Wireless Settings and set the wireless parameters first. If there are multiple wireless hosts, it is recommended to set the wireless network segments at intervals of 5 network segments. - If this method is used, the network segments are not enough and can be recycled. Ensure that the network segments between adjacent control panels are separated by more than 5 network segments, and the greater the interval, the smaller the mutual interference.
- Then enter the registration, and press the “Up and Down” button to select the sensitivity for sensing equipment.
Editing method of automatic linkage formula
On site equipment mainly refers to the equipment connected to the control panel, each of which occupies one coding point. The system provides up to two wireless circuits, and each circuit has 32 coding points. These devices include fire detectors (such as temperature detectors with differential temperature and photoelectric smoke detectors),
Format of linkage formula
The linkage formula is a logical expression used to define the linkage relationship between alarm equipment and controlled equipment in the system. When the detection equipment in the system alarms or the state of the control module changes, the control panel can automatically start or stop the controlled equipment according to these logical expressions. The linkage formula of this system is divided into two parts by equal sign, followed by condition, which is composed of user code, equipment type and relational operator The front is the equipment to be linked, which is composed of user code and equipment type.
There are six fixed formats as follows
- Y(01010001 011)=(01010101 004+01020*** 004)_2
- Y(01010001 011)=(01010*** 004)_2+(01010*** 004)_2
- Y(01010001 011)=(01010*** 004)_1X(01010*** 004)_9
- Y(01010001 011)=X(01010*** 004+01020*** 004)_2
- Y(01010001 011)=X(01010*** 004)_1+(01010*** 004)_9
- Y(01010001 011)=X(01010*** 004)_1X(01010*** 004)_9
Example: y (01010001 011) = (01010 * * * 004+01010 * * * 004) _ 2
It means: in the manual report where the first five digits of the secondary code are 01010, when any two alarms occur, No.01010001 audible and visual alarm will start immediately.
Note
- Symbol = means to start the equipment when conditions are met, symbol “= x” means to stop the equipment when conditions are met,
- The equipment before and after “=” in linkage formula is required to be composed of secondary codes and equipment types, and the types cannot be defaulted.
- The secondary codes and equipment types are separated by spaces. The secondary codes and types of linkage equipment are before “=”, and the secondary codes and types of alarm equipment are after “=”.
- The after brackets in each group of alarm equipment indicates the number of alarms that the alarm equipment meets the conditions in brackets.
- There are two relational symbols: “AND” and “OR”, in which “+”stands for “OR” and “X” stands for “AND”.
- Example: y (01010001011) = (01010 * * * 002) _ 1+(01010 * * * 004) _ 1
- It means that when any one of the smEntere sensors with the first five digits of the secondary code 01010 gives an alarm, or any one of the manual reports with the first five digits of the secondary code 01010 gives an alarm, the audible and visual alarm No.01010001 starts immediately.
- Example: y (01010001011) = (01010 * * * 002) _ 1x (01010 * * * 004) _ 1
- It means that when any one of the smEntere sensors with the first five digits of the secondary code 01010 gives an alarm, and any one of the manual reports with the first five digits of the secondary code 01010 gives an alarm at the same time, the audible and visual alarm No.01010001 starts immediately.
- Wildcards are allowed to be represented by “*” in the linkage formula to replace any number between 0 and 9. Wildcards can only be used in the secondary code part of the condition part (alarm class) at present, and cannot be used in types. For example, 0*001315 means 01001315+02001315+03001315+04001315+05001315+06001315+07001315+08001 315+09001315+0001315.
- In a linkage formula, there can only be one equal sign representing causality.
Editing of linkage formula Enter
Annotation linkage → 2 linkage programming
- The edit menu of linkage formula appears on the screen

- Wildcards are allowed to be represented by “*” in the linkage formula to replace any number between 0 and 9. Wildcards can only be used in the secondary code part of the condition part (alarm class) at present, and cannot be used in types. For example, 0*001315 means 01001315+02001315+03001315+04001315+05001315+06001315+07001315+08001 315+09001315+0001315.
- In a linkage formula, there can only be one equal sign representing causality.
- Browse: Press ▲ and ▼ keys to display the linkage programming contents one by one.
- User secondary code and equipment type should be separated by a space.
Linkage mode setting
Press the “linkage mode” key to bring up the linkage mode menu press the direction key to select the corresponding mode press the Enter key to confirm the next item, and display Setting complete the system works in the 
Manual mode refers to the operation of starting and stopping the linkage equipment through the main control keyboard or bus control panel, and the manual allowed status is displayed in the status bar at the bottom of the screen. Automatic mode refers to the linkage operation automatically performed by the system after the linkage conditions are met.
Direct Control Panel
Overview of Direct system
The dedicated line system is one of the components selected by the control panel, which is specially designed for reliable control of important equipment in the fire control system, such as fire pump, smoke ventilator and blower.
Specifications of Direct system
A JB-TB-TC5126W fire alarm control panel \ fire linkage control panel can be provided with at most one dedicated line control panel, which has six groups of linkage output control points, and can control six controlled devices, which can be selected according to the needs. For the equipment requiring double actions of starting and stopping, it can control at most three channels. The output end of multi-wire system has the functions of short circuit and open circuit detection, and has corresponding sound indication and light indication.
Technical Specifications of Direct System
- Operating voltage: DC20V~DC28V
- Output capacity: Up to 6 outputs, without occupying loop coding address points.
- Output wire system: 3-wire system.
- Operating loop system: two loops and two DC24V power lines
- Operating environment:
- Temperature:-10℃ ~+55℃
- Relative humidity ≤95%, non-condensing
Structural Features of Direct system
Description of panel
- Fault indicator: yellow. When the external control line of this road is short-circuited or open-circuited, the light will come on.
- Start indicator: red, which lights up after the control command is issued.
- Feedback indicator: red When the controlled equipment is in response to the command the feedback indicator lights up.
Description of direct control panel
The structural diagram of the output part 
- Q, G: Start output terminal, and output DC24V when starting.
- Output current is less than 200mA, load is signal relay, and coil resistance is 0.5-2K.
- H, g: answer signal input terminal of external equipment which is the answer signal when passive closing, and the terminal resistance is 4.7K
- Wiring requirements of 6.4.2.4: BV copper conductor should be used for wiring of multi wire external control points, with cross-sectional area ≥ 1.0mm2.
Fault and Abnormal information processing and Regular Check
General fault handling
| No. | Fault | Reason | Solution |
| 1 | No display or abnormal display after starting up | A. The power supply is abnormal B. Poor connection with the display panel cable | A. Check the 24V power supply B. Check the connecting cable |
| 2 | “main power failure” after starting up | A. No AC power B. The AC fuse is burnt out | A. Check and connect the AC wire B. Replace AC fuse (see label for parameters) |
| 3 | after starting up, “standby failure” is displayed. | A. The insurance is broken B. Poor line connection | A. Change the safety tube (see label for parameters) B. Open the power box and check |
| C. Loss or damage of battery | the relevant connectors C. after starting up for more than 8 hours under AC power supply, replace the battery if the fault cannot be eliminated. | ||
| 4 | can not register the external display panel | communication line connection error or bad | Check the power line and communication line of the fire display panel |
| 5 | do not print | A. Not set to print on B. Bad connection of printer cable C. The printer is broken. | A. Reset the settings B. Check and connect well C. Change the printer |
| 6 | no respond after pressing the manual button | A. Manual prohibition status B. Bad cable connection of manual fire startup disk | A. Reset startup mode B. Check and connect well |
| 7 | equipment failures | A. Equipment disconnection B. The equipment is damaged | A. Check the connection B. Replacement of equipment |
| 8 | clock fault, storage fault, loop fault, etc. | A. Environmental interference B. Aging of corresponding parts | A. Check whether the grounding is in good condition B. Inform our technical service department |
Regular check and replacement
Equipment should be checked regularly: printing paper belongs to consumables and should be replaced when it is insufficient.
Precautions
- This control panel is a precision electronic product, which needs to be managed by a special person.
- It is strictly forbidden for others to touch it at will.
- Users should keep a good record on duty. In case of alarm, they should first press the “mute” button on the control panel, and promptly confirm the fire and deal with it as appropriate.
- Record the execution after processing, and then press the “Reset” key to cancel. If it is confirmed as a false alarm, the alarm detector or module can be turned off after recording, and the after-sales department of our company can be notified for repair.
- Our company is responsible for the warranty of the control panel. If any problems are found, please contact the after-sales department of our company in time.
- Users are not allowed to disassemble or repair it by themselves, otherwise the consequences will be at their own risk.
Appendix I Technical Indicators
Control panel capacity
- Up to 2 wireless circuits with 32 address points per circuit. Up to 1 multi-wire control panel, 6 groups in total.
- Up to 1 bus control panel 18 groups in total.
Wiring system
| Wiring system | Circuit | Distance | Quantity and use |
| RS485bus | two-core disable wire | < 500m | 1 CRT |
| Multi-loop control line (three-loop system) | ≥1.0mm2 | < 1.5km | 6 points per control panel |
- Temperature:-10℃ ~+55℃
- Relative humidity ≤95%, non-condensing
- Power supply
- Main power: AC 220V (3.5A) voltage variation range+10% ~-15%
- Backup power: DC 24V(3.3A), backup battery 2 sealed lead acid batteries of 12V/3.3AH
Yingkou Tiancheng Fire Protection Equipment Co., Ltd.
Address: NO. 11-2 Kechechang Xili, Xishi District, Yingkou Pilot Free Trade Zone (Liaoning) China
Fax: 0417-4835568
Postcode: 115004
Service Hotline: 400-6930-119
Email: [email protected]
Website: www.tcfiretech.com

Enter the key number of the direct control panel and the corresponding setting information.



















