NOTIFIER BB-55 Series Cabinet Instruction Manual
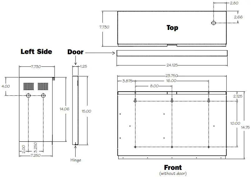
Dimensions
The BB-55 Series cabinets consist of a cabinet with a lockable door that is hinged on the bottom to swing down for access to the batteries.
They are designed to be mounted a minimum of six inches below the CAB-3 Series Cabinets. When both cabinets are surface mounted, the knockout in the bottom-right corner of the CAB-3 cabinet will line up directly above the knockout in the top-right corner of the BB-55 Series cabinet.
The BB-55 Series cabinet should be mounted in a clean, dry, vibration-free area, using the six holes provided.
All dimensions on the adjacent drawings are shown in inches.
Note: The BB Series cabinets have 0.875″ knockouts which accept standard ¾” conduit.

















