MAGNETROL T62 Side Mounting Liquid Level Controls

UNPACKING

These units are in conformity with the provisions of:
- Directive 2014/34/EU for equipment or protective system intended for use in potentially explosive atmospheres.
EC-type examination certificate number ISSeP09ATEX024X (Ex d units) or KIWA18ATEX0022X (Ex i units).
CAUTION: The float stem protruding from the head assembly is extremely fragile. DO NOT handle or place in a position such that any amount of force is placed on the stem. Proper operation of the control requires that the stem is not damaged or bent.
SPECIAL CONDITIONS FOR ATEX INTRINSICALLY SAFE USE
When the product is installed in an area requiring EPL Ga and the enclosure is made of aluminium, all precautions shall be taken in order to avoid all impacts or frictions which can result in the ignition of the potentially explosive atmosphere.
INTRODUCTION
Side mounting controls mount horizontally to any tank or vessel through a treaded or flanged pipe connection. Standard models are normally equipped with a single switch mechanism for high or low level alarm or control applications. Tandem models with two switch mechanisms are available for two level stage applications, providing the operating functions of two separate instruments such as high and low level alarm.
PRINCIPLE OF OPERATION
Side mounting units employ permanent magnetic force as the only link between the float and the switching element.
As the pivoted float follows, liquid level changes, it moves a magnetic sleeve ¿ into or out the field of a switch actuating magnet ¡ causing switch operation. A non-magnetic barrier tube ¬ effectively isolates the switch mechanism from the controlled liquid.

MOUNTING
CAUTION: Operation of all buoyancy type level devices should be done in such a way as to minimize the action of dynamic forces on the float or displacer sensing element. Good practice for reducing the likelihood of damage to the control is to equalize pressure across the device very slowly.
Before assembling control to tank or vessel, check threaded or flanged mounting nozzle for the following:
- Nozzle length and inside diameter must be sized correctly to allow for switch actuation at design levels within the maximum differential available (see table on page 5).
- Nozzle should be checked for horizontal alignment. Finished mounting must allow control switch housing to be within 3° degrees of vertical for proper operation. A three degree slant is noticeable by eye, but installation should be checked with a spirit level.
Before installation, assemble float and stem to sensing unit. See figure 2.

- Remove screw from end of fulcrum bar and replace with float stem.
- Make sure end of float stem sets completely in groove of fulcrum pin as shown in figure 2.
- Tighten lock nut with wrench. If float stem is properly located, fulcrum pin can not be pushed out.
WIRING
CAUTION: All units are shipped from the factory with the enclosing tube tightened and the switch housing set screw locked to the enclosing tube. Failure to loosen the set screw prior to repositioning the supply and output connections may cause the enclosing tube to loosen, resulting in possible leakage of the process liquid or vapor.
NOTE: If control is equipped with pneumatic switch mechanism, disregard these instruction and refer to instruction bulletin
BE 42-685 and BE 42-686 on mechanism furnished for air (or gas) connections.
The units are shipped with the cable entry of the switch housing placed 90° opposite the tank connections to simplify installation
in most cases. If the location of the cable entry on the level switch is appropriate to the installation, proceed to Step 4 to
begin wiring the unit. If another configuration is desired, the switch housing can be easily rotated by first following Steps 1, 2,
and 3.
- Loosen set screw(s) at base of switch housing. Refer to Figure 3.
- Switch housing may be rotated 360° to allow correct positioning of cable entry.
- Tighten set screw(s) at base of switch housing.
- Unscrew and remove switch housing cover. The threads have been lubricated to facilitate removal.
CAUTION: DO NOT attempt to unscrew cover of ATEX explosion proof housings before loosening locking screw in cover (Figure 3 – ATEX cast aluminium) or base (Figure 4 – ATEX cast iron) of housing. ALWAYS retighten locking screw after replacing cover.
NOTE: For supply connections use wire with a minimum rating of 75 °C, as required by process conditions. Use a minimum of 14 AWG wire for power and ground field wires. On high temperature applications (above 120 °C [250 °F] at mounting flange or bushing), high temperature wire should be used between control and first junction box located in a cooler area. - The switch terminals are located next to the cable entry to facilitate wiring. Bring supply wires through cable entry. Route extra wire around enclosing tube under the baffle plate, and connect them to the proper terminals. Refer to the wiring diagram.
- Dress wiring to ensure no interference or contact with the switch actuation arm, or replacement of switch housing cover.
NOTE: Observe all applicable electrical codes and proper wiring procedures.
Prevent moisture seepage into the enclosure by installing approved cable glands.
CAUTION: For units with explosion proof housing, do not power the unit until the cable gland is sealed and the enclosure cover is screwed down securely. - Replace housing cover and retighten locking screw in case of ATEX explosion proof housing.
- Test switch action by varying liquid level in the tank or vessel.
NOTE: If switch mechanism fails to function properly, check vertical alignment of control housing and consult installation bulletin on switch mechanisms furnished. - Check cover to base fit to be certain gasketed joint is tight. A positive seal is necessary to prevent infiltration of moisture laden air or corrosive gasses into switch housing.
For wiring diagrams, refer to the specific bulletin listed in the chart below:
| Switch Series Letter | Description | Bulletin No. |
| B, C, D, F, R, U, W, X, 8, 9 | Dry Contact Switch | BE 42-683 |
| HS | Hermetically Sealed Snap Switch | BE 42-694 |
| V | Inductive Proximity Switch | BE 42-798 |
| J | Bleed Type Pneumatic Switch | BE 42-685 |
| K | Non-Bleed Type Pneumatic Switch | BE 42-686 |
SWITCH DIFFERENTIAL ADJUSTMENT
The level differential setting of the side mounting controls can be field adjusted within limits specified in the table at right by repositioning the jam nuts on the magnetic sleeve stem.
NOTE: The control need not be removed from tank or vessel to make differential adjustment.
CAUTION: Before attempting any work on the control, be certain to pull disconnect switch or otherwise assure that electrical circuit(s) through control is deactivated. Close operating medium supply valve on controls equipped with pneumatic switch mechanisms.
- Disconnect wiring from supply side of switch mechanism and electrical conduit or operating medium line connections to switch housing.
- Perform system shut-down as required to relieve pressure from tank or vessel and drain off liquid “head” above control mounting position. Allow unit to cool.
- Remove switch housing assembly by loosening hex nut located immediately below housing base.
With switch housing removed, jam nuts and magnetic sleeve are now accessible, as in figure 5. Raising the lower jam nuts or lowering the upper jam nuts will reduce the differential. Jam nut adjustments in opposite directions will, of course, increase the differential. As the first step in any adjustement procedure, the position of the lower jamnuts (dimension A) should be established. - Loosen and remove upper jam nuts, guide washer and bmagnetic sleeve. Dimension “A”, as measured from top nof stem to top of lower jam nuts, may now be increased or decreased as desired.
Tandem model units have two switch mechanisms actuated by two independent magnetic sleeves. For adjustment purposes, each sleeve and jam nut set is considered as an individual unit in conjunction with the switch mechanism it operates.
NOTE: Be certain to tighten jam nuts securely after adjustment. - Replace magnetic sleeve on stem and position upper jam nuts to desired “B” dimension by measuring from top of sleeve to bottom of upper jam nuts. Lock upper jam nuts to guide washer.
- Reassemble control in reverse of steps 1 through 3, previously described.
- Test switch actuation by varying liquid level in tank or vessel.
CAUTION: After increasing differential adjustment, be certain to check carefully for proper operation of switch mechanism. Magnet must “snap” cleanly with additional float movement available after magnet snaps.

Millimeters
| Differentials Obtainable ¡ √ | Approx. Jam Nut Setting ¬ | ||||||
| Model ¿ | Float Stem Length | ||||||
| 203 | 305 | 457 | 660 | A | B | ||
| T62 (Threaded) | Min. | 32 | 51 | 73 | 102 | 21 | 0.8 |
| Max. | 148 | 206 | 294 | 409 | 33 | 27 | |
| T62 (Flanged) | Min. | 32 | 41 | 67 | 95 | 16 | 0.8 |
| Max. | 89 | 130 | 191 | 273 | 28 | 18 | |
Inches
| Differentials Obtainable ¡ √ | Approx. Jam Nut Setting ¬ | ||||||
| Model ¿ | Float Stem Length | ||||||
| 8.00 | 12.00 | 18.00 | 26.00 | A | B | ||
| T62 (Threaded) | Min. | 1.25 | 2.00 | 2.88 | 4.00 | 0.81 | 0.03 |
| Max. | 5.81 | 8.12 | 11.56 | 16.12 | 1.31 | 1.06 | |
| T62 (Flanged) | Min. | 1.25 | 1.62 | 2.62 | 3.75 | 0.62 | 0.03 |
| Max. | 3.50 | 5.12 | 7.50 | 10.75 | 1.12 | 0.69 | |
Notes:
- All models are factory set at minimum differential unless otherwise specified.
- To maintain maximum differential, nozzle length “L” (figure 6) must not exceed: 64 mm (2.50″) model T62 threaded; or 89 mm(3.50″) model T62 flanged.
- Dimensions given are approximate and will vary slightly with each unit.
- Consult factory for differentials of models not shown
SWITCH DIFFERENTIAL ADJUSTMENT
LEVEL DIFFERENTIAL VS. MOUNTING NOZZLE LENGTH
The tables below may be used to determine the maximum level travel (differential) available between “Switch on” and “Switch off” actuations with mounting nozzles of different lengths. The differentials given occur with the minimum tank opening diameter listed for each model and are applicable to standard controls.
Level differential in mm (inches)
| Models | dim. “D” | Differential | dim. “L“¿ | Float stem length versus level differential | |||
| 203 mm (8″) | 305 mm (12″) | 457 mm (18″) | 660 mm (26″) | ||||
|
T62 threaded |
77,9 mm (3.07″) 3″ – Sch 40 | min | Not applicable | 32 (1.26) | 51 (2.01) | 73 (2.87) | 102 (4.02) |
|
max | 50 mm (2″) | 148 (5.83) | 206 (8.11) | 294 (11.58) | 409 (16.10) | ||
| 100 mm (4″) | 111 (4.37) | 155 (6.10) | 221 (8.70) | 310 (12.20) | |||
| 150 mm (6″) | 38 (1.50) | 119 (4.69) | 170 (6.69) | 236 (9.29) | |||
| 200 mm (8″) | – | 97 (3.82) | 138 (5.43) | 192 (7.56) | |||
| 250 mm (10″) | – | 81 (3.19) | 116 (4.57) | 162 (6.38) | |||
| 305 mm (12″) | – | – | 100 (3.94) | 138 (5.43) | |||
|
T62 flanged |
73,7 mm (2.90″) 3″ – Sch 80 | min | Not applicable | 32 (1.26) | 41 (1.61) | 67 (2.64) | 95 (3.74) |
|
max | 50 mm (2″) | 89 (3.50) | 130 (5.12) | 191 (7.52) | 273 (10.75) | ||
| 100 mm (4″) | 83 (3.27) | 121 (4.76) | 178 (7.01) | 254 (10.00) | |||
| 150 mm (6″) | – | 95 (3.74) | 137 (5.39) | 197 (7.76) | |||
| 200 mm (8″) | – | 76 (2.99) | 114 (4.49) | 159 (6.26) | |||
| 250 mm (10″) | – | 64 (2.52) | 95 (3.74) | 137 (5.39) | |||
| 305 mm (12″) | – | – | 83 (3.27) | 117 (4.61) | |||
| T64 flanged | 102,3 mm (4.03″) 4″ – Sch 40 | fixed | max 178 mm (7″) | 32 (1.26) | Not applicable | Not applicable | Not applicable |
| T67 threaded | 77,9 mm (3.07″) 3″ – Sch 40 | min | max 57 mm (2.25″) | 25 (1.00) | 38 (1.50) | 54 (2.12) | 76 (3.00) |
| max | 64 (2.50) | 95 (3.75) | 140 (5.50) | 197 (7.75) | |||
| T67 flanged | 73,7 mm (2.90″) 3″ – Sch 80 | min | max 89 mm (3.50″) | 25 (1.00) | 38 (1.50) | 54 (2.12) | 76 (3.00) |
| max | 48 (1.88) | 68 (2.69) | 99 (3.88) | 140 (5.50) | |||
All units are factory set at minimum differential unless otherwise specified.
Consult factory for differentials not shown.

Notes:
Nozzle length is dimension L from end of standard control body to opening in tank having minimum diameter listed for each model.
PREVENTIVE MAINTENANCE
Periodic inspections are a necessary means to keep your level control in good working order. This control is a safety device to protect the valuable equipment it serves. A systematic program of “preventive maintenance” must be implemented when the ncontrol is placed into service. If the following sections on “What to do” and “What to avoid” are observed, your control will provide reliable protection of your equipment for many years.
What to do
- Keep control clean
Be sure the switch housing cover is always in place on the control. This cover is designed to keep dust and dirt from interfering with switch mechanism operation. In addition, it protects against damaging moisture and acts as a safety feature by keeping bare wires and terminals from being exposed. Should the housing cover become damaged or misplaced, order a replacement immediately. - Inspect switch mechanisms, terminals and connections regularly
Dry contact switches should be inspected for excessive wear on actuating lever or misalignment of adjusting screw at point of contact between screw and lever. Such wear can cause false switch actuating levels. Adjus switch mechanism to compensate (if possible) or replace switch.
Do NOT operate your control with defective or maladjusted switch mechanisms (refer to bulletin on switch mechanism furnished for service instructions).
. Magnetrol controls may sometimes be exposed to excessive heat or moisture. Under such conditions, insulation on electrical wires may become brittle, eventually breaking or peeling away. The resulting “bare” wires can cause short circuits.
NOTE: Check wiring carefully and replace at the first sign of brittle insulation.
Vibration may sometimes cause terminal screws to loosen. Check all terminal connections to be certain that screws are tight.
On units with pneumatic switches, air (or gas) lines subjected to vibration, may eventually crack or become loose at connections causing leakage. Check lines and connections carefully and repair or replace, if necessary.
NOTE: Spare switches should be kept on hand at all .times. - Inspect entire unit periodically and Isolate control from vessel. Raise and lower liquid level to check for switch contact and reset.
What to avoid
- NEVER leave switch housing cover of the control longer than necessary to make routine inspections.
- NEVER use lubricants on pivots of switch mechanisms.
A sufficient amount of lubricant has been applied at the factory to insure a lifetime of service. Further oiling is unnecessary and will only tend to attract dust and dirt which can interfere with mechanism operation. - NEVER attempt to make adjustments or replace switches without reading instructions carefully. Certain adjustments provided for in Magnetrol controls should not be attempted in the field. When in doubt, consult the factory or your local Magnetrol representative.
- NEVER place a jumper wire across terminals to “cut-out” the control. If a “jumper” is necessary for test purposes, be certain it is removed before placing control into service
TROUBLESHOOTING
Usually the first indication of improper operation is failure of the controlled equipment to function–pump will not start (or stop), signal lamps fail to light, etc. When these symptoms occur, whether at time of installation or during routing service thereafter, check the following potential external causes first.
- Fuses may be blown.
- Reset button(s) may need resetting.
- Power switch may be open.
- Controlled equipment may be faulty.
- Stem may be bent causing hang-up.
- Wiring (or medium lines) leading to control may be defective.
If a thorough inspection of these possible conditions fails to locate the trouble, proceed next to a check of the control’s switch mechanism.
Check switch mechanism
Check complete unit
- Pull disconnect switch or otherwise assure that electrical circuit(s) through the control is deactivated.
- Remove switch housing cover.
- Disconnect power wiring from switch assembly.
- Swing magnet assembly in and out by hand, checking carefully for any sign of binding. Assembly should require minimal force, to move it through its full swing.
- If binding exists, magnet may be rubbing enclosing tube.
If magnet is rubbing, loosen magnet clamp screw and shift magnet position. Retighten magnet clamp screw. - If switch magnet assembly swings freely and mechanism still fails to actuate, check installation of control to be certain it is within the specified three (3°) degrees of vertical (use spirit level on side of enclosing tube in two places, 90° apart).
- Examine the switch closely as previously described in Preventive Maintenance section. Check continuity of switch with ohmmeter. If switch does not function properly, replace it immediately.
- If switch mechanism is operating satisfactorily, a test of the complete control’s performance is the next likely step.
Check sensing unit
- Check to be certain liquid is entering float chamber. A valve may be closed or piping plugged.
- Proceed to check level sensing action by removing switch housing assembly, as described in Steps 4 through 7 of the Switch Differential Adjustment section.
CAUTION:
Unit must be normalized to atmospheric pressure beforere moving switch housing assembly. - Inspect attraction sleeve(s) and inside of enclosing tube for excessive corrosion or solids buildup which could restrict movement, preventing sleeve(s) from reaching field of magnet(s).
- If the differential has been changed in the field, check tightness and position of the jam nuts.
NOTE: Differential adjustment causes a change in the amount of level travel between switch-on and switch-off actuations. Refer to the Switch Differential Adjustment section. - Vary liquid level in vessel. Check float to be certain it is buoyant in the liquid (vessel must have adequate liquid level). If float is determined to be filled with liquid or collapsed, float must be replaced. Do not attempt to repair a float.
Check complete unit
CAUTION: With electrical power “on” care should be taken to avoid contact with switch leads and connections at terminal block.
Reassemble unit. Reconnect power supply and carefully actuate switch mechanism manually (using a non-conductive tool) to determine whether controlled equipment will operate.
If all components in the control are in operating condi-tion, the trouble must be (and should be) located external to the control. Repeat inspection of external conditions previously described.
NOTE: If difficulties are encountered which cannot be identified, consult the factory or your local representative for assistance. A complete description of the trouble should be provided along with information concerning your piping and mounting arrangement, plus a description of your operating sequence. Sketches or photographs showing the installation are also beneficial.
When communicating about your control, be certain always to specify the complete Model and Serial numbers.
AGENCY APPROVALS

SPECIFICATIONS
Float pressure/temperature ratings
| Model | Float size mm (inches) | Max pressure bar (psi) | |||
| @ 40 °C (100 °F) | @ 400 °C (750 °F) | @ 480 °C (900 °F) | @ 540 °C (1000 °F) | ||
| T62/T67 | ø 64 (2.50) | 24,1 (350) | 19,4 (282) | 18,7 (271) | 18,5 (268) |
| ø 64 x102 (2.50 x 4.00) | 6,9 (100) | 5,6 (81) | 5,4 (78) | 5,3 (77) | |
| ø 76 (3.00) | 17,2 (250) | 13,9 (201) | 13,4 (194) | 13,2 (191) | |
| ø 89 (3.50) | 27,6 (400) | 22,2 (322) | 21,4 (310) | 21,1 (306) | |
| ø 76 x 127 (3.00 x 5.00) | 34,5 (500) | 26,0 (377) | 24,3 (353) | 23,1 (335) | |
| T64 | ø 89 (3.50) | 82,7 (1200) | 64,5 (936) | 60,4 (876) | 54,7 (794) |
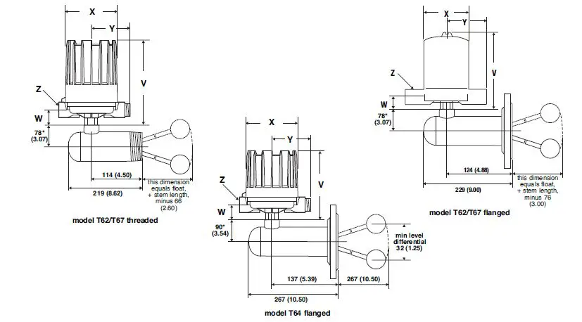
Dimensional data in mm (inches)

Dimensions for all housings, except for cast iron housing, add for these 76 mm (3″)
| Housing type | Models | V | W | ø X | Y | Z | ||||
| mm | inches | mm | inches | mm | inches | mm | inches | |||
| Weatherproof- FM (NEMA 7/9) – ATEX (Cast Alu) | T62/T64 with HS-switch and T67 | 257 | 10.12 | 42 | 1.66 | 151 | 5.93 | 109 | 4.29 | M20 x 1,5 (*) or 1″ NPT (2 entries – 1 plugged) (*) not for FM (NEMA 7/9) |
| T62/T64 excl. HS-switch | 202 | 7.94 | ||||||||
| ATEX (Cast Iron) | All | 249 | 9.80 | 45 | 1.77 | 143 | 5.63 | 110 | 4.33 | M20 x 1,5 or 3/4″ NPT (single entry – 2 entries at request) |
| Pneumatics Switch Module J | T62/T64 | 165 | 6.50 | 39 | 1.54 | 118 | 4.65 | 110 | 4.33 | 1/4″ NPT |
| Pneumatics Switch Module K | 130 | 5.12 | ||||||||
Allow 200 mm (7.87″) overhead clearance / All housings are 360 ° rotatable
REPLACEMENT PARTS


REPLACEMENT PARTS
Switch and housing reference
| Switch type | Bulletin |
| B, C, D, F, R, U, W, X, 8, 9 | BE 42-683 |
| HS | BE 42-694 |
| V | BE 42-798 |
| J | BE 42-685 |
| K | BE 42-686 |
| Housing | |
| BE 42-683 |
| (1) Enclosing tube kit (contains items 1 & 2) | |||
| Housing type | Replacement part | ||
| Model (digits 1, 2 & 3) | |||
| T62 | T64 | T67 | |
| Cast aluminium housing for electric switch | 089-5933-021 | 089-5933-027 | 089-5933-022 |
| Cast iron housing for electric switch | 089-5933-023 | 089-5933-029 | 089-5933-023 |
| Pneumatic switch housing | 089-5933-021 | 089-5933-027 | not applicable |
| Description | Replacement part | ||
| Model (digits 1, 2 & 3) | |||
| T62 | T64 | T67 | |
| (2) Enclosing tube gasket | 012-1301-002 | 012-1204-001 | 012-1301-002 |
| (3) Hex nut | 010-2107-001 | 010-2107-003 | 010-2107-001 |
| (5) Hex nut | 010-2107-001 | 010-2107-003 | 010-2107-001 |
| (4) Float stem | |||
| Digit 7 | Replacement part | ||
| Model (digits 1, 2 & 3) | |||
| T62 | T64 | T67 | |
| A, E, J, S | 004-5004-009 | not applicable | 004-5004-009 |
| N | 004-5170-080 | ||
| B, F, K, P, T | 004-5004-006 | not applicable | 004-5004-006 |
| C, G, L, Q, V | 004-5004-007 | 004-5004-007 | |
| D, H, M, R, W | 004-5004-008 | 004-5004-008 | |
| (6) Float | |||
| Digit 7 | Replacement part | ||
| Model (digits 1, 2 & 3) | |||
| T62 | T64 | T67 | |
| A, B, C, D | Z07-1102-001 | not applicable | Z07-1102-001 |
| E, F, G, H | Z07-1202-001 | Z07-1202-001 | |
| J, K, L, M | Z07-1102-004 | Z07-1102-004 | |
| N | Z07-1102-006 | Z07-1101-012 | Z07-1102-006 |
| P, Q, R | not applicable | ||
| S, T, V, W | Z07-1202-003 | Z07-1202-003 | |
SELECTION DATA T62/T64 SINGLE SWITCH
A complete measuring system consists of:
Order code for T62 models:
MODEL NUMBER CODE AND MATERIALS OF CONSTRUCTION

Order code for T64 models:
MODEL NUMBER CODE AND MATERIALS OF CONSTRUCTION

SELECT ELECTRIC SWITCH MECHANISM & HOUSING

SELECT PNEUMATIC SWITCH MECHANISM & HOUSING
| Switch Description | Max supply pressure bar (psi) | Max liquid temperature ¿ °C (°F) | Bleed orifice Ø mm (inches) | NEMA 3R (IP 53) | |
| T62-A & T64-A Models | T62-B, T62-D & T64-B Models | ||||
| Series J (open air) | 6,9 (100) | 200 (400) | 1,60 (0.063) | JDG | JDE |
| 4,1 (60) | 2,39 (0.094) | JEG | JEE | ||
| 4,1 (60) | 370 (700) | 1,40 (0.055) | JFG | JFE | |
| Series K (closed circuit) | 6,9 (100) | 200 (400) | – | – | KOE |
| 2,8 (40) | – | KOG | – | ||
- Process temperature based on max. 40 °C (100 °F) ambient temperature and for non steam applications.
- On steam applications, temperature down-rated to +200 °C (+400 °F) process at +40 °C (+100 °F) ambient.
- Upon prolonged exposure to temperatures above 425 °C (800 °F), the carbide phase of steel may be converted to graphite. Permissible but not recommended for prolonged use above 425 °C (800 °F). (Applies to models T62-A & T62-B, T64-A & T64-B.)
SELECTION DATA T67 DUAL SWITCH
A complete measuring system consists of:
Order code for T67 models:
MODEL NUMBER CODE AND MATERIALS OF CONSTRUCTION
SELECT ELECTRIC SWITCH MECHANISM & HOUSING

- Process temperature based on max. 40 °C (100 °F) ambient temperature and for non steam applications.
- Upon prolonged exposure to temperatures above 425 °C (800 °F), the carbide phase of steel may be converted to graphite. Permissible but not recommended for prolonged use above 425 °C (800 °F). (Applies to models T67-A & T67-B.)
IMPORTANT
SERVICE POLICY
Owners of Magnetrol products may request the return of a control; or, any part of a control for complete rebuilding or replacement. They will be rebuilt or replaced promptly. Magnetrol International will repair or replace the control, at no cost to the purchaser, (or owner) other than transportation cost if:
a. Returned within the warranty period; and,
b. The factory inspection finds the cause of the malfunction to be defective material or workmanship.
If the trouble is the result of conditions beyond our control; or, is NOT covered by the warranty, there will be charges for labour and the parts required to rebuild or replace the equipment.
In some cases, it may be expedient to ship replacement parts; or, in extreme cases a complete new control, to replace the original equipment before it is returned. If this is desired, notify the factory of both the model and serial numbers of the control to be replaced. In such cases, credit for the materials returned, will be determined on the basis of the applicability of our warranty.
No claims for misapplication, labour, direct or consequential damage will be allowed.
RETURNED MATERIAL PROCEDURE
So that we may efficiently process any materials that are returned, it is essential that a “Return Material Authorisation” (RMA) form will be obtained from the factory. It is mandatory that this form will be attached to each material returned. This form is available through Magnetrol’s local representative or by contacting the factory. Please supply the following information:
- Purchaser Name
- Description of Material
- Serial Number and Ref Number
- Desired Action
- Reason for Return
- Process details
Any unit that was used in a process must be properly cleaned in accordance with the proper health and safety standards applicable by the owner, before it is returned to the factory.
A material Safety Data Sheet (MSDS) must be attached at the outside of the transport crate or box.
All shipments returned to the factory must be by prepaid transportation. Magnetrol will not accept collect shipments.
All replacements will be shipped Ex Works.
European Headquarters & Manufacturing Facility
Heikensstraat 6
9240 Zele, Belgium
Tel: +32-(0)52-45.11.11
e-mail: [email protected]
www.magnetrol.com
BULLETIN: BE 44-602.14
EFFECTIVE: JULY 2021
UNDER RESERVE OF MODIFICATIONS SUPERSEDES: October 2019





















