Build Limitless® Full Cage Rack 
Build Limitless® Full Cage Rack
Models Covered in These Instructions

Build Limitless®Full Cage
All Parts & Tools Needed
| Configuration | Full Cage 95 | Full Cage 81 | |
| Item # | Description | QTY | QTY |
| 1 | Upright, 95” or 81” | 4 | 4 |
| 2 | Crossmember, 42” | 5 | 5 |
| 3 | Angle Foot | 2 | 2 |
| 4 | 42” Pull-Up Bar | 1 | 1 |
| 5 | Spreader Floor Plate | 1 | 1 |
| 6 | 5/8” x 4 1/2” Hex Bolt | 6 | 6 |
| 7 | 5/8” x 4 1/4” Hex Bolt | 20 | 20 |
| 8 | 5/8” Flat Washer | 28 | 28 |
| 9 | 5/8” Nylock Nut | 26 | 26 |
| Tools Needed 1. 15/16” Open-End Wrench 2. 15/16” Socket 3. Socket Wrench 4. Step Stool 5. Second Person | Additional Items Needed (not included): 1. Floor mounting hardware |
Assembly Notes:
- 4 1/2” bolts are used on the pull-up bar and angle foot only. 4 1/4” bolts are used everywhere else.
- Flat washers are only needed where a bolt head is directly contacting an upright, an angled foot, or a spreader plate.
WARNING: SERIOUS INJURY OR DEATH COULD OCCUR IF PRECAUTIONS ARE NOT TAKEN.
All questions, feedback, and return information should be sent to: [email protected] or call us at 1-701-566-0452
LIMITED LIFETIME WARRANTY: This product is warranted by PRx Performance LLC, to the original user-owner only, against defective materials or workmanship for the lifetime of the product. During the warranty period or “lifetime” of the product, at the discretion of PRx management, if the product is found to be defective, it will be repaired or replaced without charge.
This warranty does not cover defects in the product caused by ordinary wear and tear, abuse, misuse, overloading, accident (including shipping damage), improper maintenance, or alteration. THIS WARRANTY IS EXPRESSLY IN LIEU OF ALL OTHER WARRANTIES, INCLUDING ANY IMPLIED WARRANTY OF MERCHANTABILITY OR ANY IMPLIED WARRANTY OF FITNESS FOR A PARTICULAR PURPOSE OF THIS PRODUCT. PRx PERFORMANCE INC. SHALL NOT BE LIABLE FOR ANY CONSEQUENTIAL OR INCIDENTAL DAMAGES. Email [email protected] or call 701-566-0452. See full warranty at www.prxperformance.com
Full Cage Exploded Assembly View

Full Cage Assembly Instructions
- Start with the back portion of the rack, making sure the logo is on the back side of the upright (Figure 1).
- When attaching the cross members, be sure to orient them correctly (see Min. and Max. in Figure 1).
- Assemble the frame and secure all hardware but do not fully tighten.
NOTE: Do not overtighten any of the bolts as this could result in deformed uprights and make it difficult to assemble additional components.
Full Cage Assembly Instructions
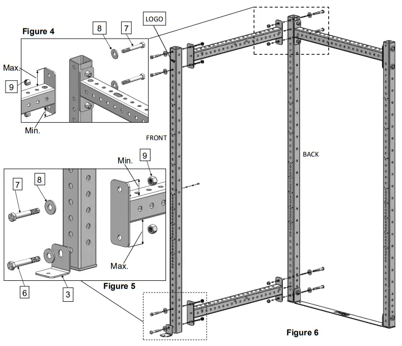
- Assemble the cross members that connect the back and front of the rack. When attaching the cross members, be sure to orient them correctly (see Min. and Max. in Figures 4 & 5). The cross members need to be assembled this way for future accessories to fit properly.
- A second person may be needed to hold the frame up while you attach the cross members.
- Once both cross members are in place and hardware is secure, attach the front upright so the logo on the front is visible.
- Attach angle foot (Figure 5).
- Secure all the hardware but do not fully tighten. Repeat steps 1-4 on the other side of the rack.

(701) 566-0452
Full Cage Assembly Instructions
- Once the cross members and uprights are assembled, attach the pull-up bar between the top of the two front uprights (Figure 7).
- Now that all components are assembled, make sure the spreader plate is flush to the floor before anchoring rack to the floor.
- Once the rack is anchored to the floor, fully tighten all hardware.
Note: Do not overtighten any of the bolts as this could result in deformed uprights.


















