
INSTALLATION MANUAL
Electric Warm Air Heater

Model SUH-E

Declaration of Conformity
Gas Fired Products (UK) Ltd.
Chapel Lane
Claydon
Ipswich
Suffolk, IP6 0JL
United Kingdom
Declares that air heater types:
SUH-E10, SUH-E15, SUH-E20, SUH-E25, SUH-E30 & SUH-E40
Are in accordance with the essential requirements of the relevant EU directives, being:
2014/35/EU (LVD) relating to the electric safety of appliances
2014/30/EU (EMC) relating to electromagnetic compatibility of appliances
2006/42/EG (MD) relating to the safety of machinery
Goods should be installed and used in accordance with our instructions and with the applicable local and international rules. Installation should be done by an authorized, qualified and competent installer.
Ipswich, December 1st 2022

Introduction
This manual is intended for the gas, electrical and mechanical installer.
This document gives instructions on how to use and maintain the air heater. It is most important to follow the instructions in this document for safe operation of this air
heater.
It is important to read this document before starting the installation process. Store this document close to the air heater for quick reference.
1.1 Symbols used in this manual
DANGER! Indicates a dangerous situation that would lead to death or severe injury.
WARNING! Indicates a potentially dangerous situation that could lead to death, severe injury or serious product damage.
CAUTION! Indicates a potentially dangerous situation that could lead to injury or product damage.
NOTICE Indicates important information that is not directly related to safety.
1.2 Warranty
NOTICE Using, installing or maintaining this air heater in any other way than described in this manual may cause damage that voids the warranty.
NOTICE Failing to follow the safety instructions in this manual can lead to damage to the air heater or the installation and void the warranty.
Safety Instructions
Always follow the safety instructions in this chapter when installing, using or performing maintenance on this air heater:
2.1 Installation
CAUTION! This air heater must be installed and maintained by an authorized, qualified and competent installer, using calibrated equipment.
NOTICE This air heater must be installed and maintained in accordance with this manual, national and local building regulations and local health and safety regulations.
2.1.1 Protection against dust
CAUTION! Do not use the air heater in a very dusty environment. Dust may accumulate and cause a defect of the heater. This is also the case for the room thermostat.
CAUTION! Cover the air heater while spreading sawdust on the floor. This prevents large amounts of dust from accumulating on the heater.
CAUTION! The air heater can be used in a dusty environment (e.g. a poultry shed) if they are cleaned and maintained more frequently.
2.1.2 Temperature
CAUTION! Do not install the heater in places where the temperature can rise above 35°C. Higher temperatures cause the internal components to degrade much faster.
2.2 Use
CAUTION! Make sure the area around the air heater is dry when performing maintenance on the air heater.
CAUTION! Always close the doors and inspection hatches of the air heater, except when adjusting and checking the appliance.
2.3 Maintenance & Cleaning
Frequent maintenance and cleaning of the air heater is necessary to ensure safe and proper operation. Failure to do so could lead to damage to the heater or its surroundings and void the warranty.
2.3.1 Protection from water (IP class)
WARNING! Never use water when cleaning electrical parts.
This air heater is not waterproof and has an IP00B classification.
WARNING! Do not expose the air heater to rain, spray or dripping water.
2.4 Children and vulnerable users
WARNING! This air heater can be used by children aged 8 years and above and by persons with reduced physical, sensory or mental capabilities or lack of experience and
knowledge, if they are supervised or instructed concerning use of the appliance in a safe way and understand the hazards involved.
WARNING! Children shall not play with the air heater.
WARNING! Children shall not clean and maintain this air heater without supervision.
Technical Specifications
3.1 Performance
| Model | SUH-E10 | SUH- E15 | SUH- E20 | SUH- E25 | SUH- E30 | SUH- E40 | ||||||||
| Heat Output | Maximum kW | |||||||||||||
| 9.9 | 15.0 | 19.8 | 24.9 | 29.7 | 39.6 | |||||||||
| Minimum kW | 3. | 8. | 10. | 10. | 10. | 20. | ||||||||
| Nominal power | kW | 10. | 15. | 20.0 | 25. | 30. | 40. | |||||||
| Current per phase (maximum) | 3Phase | A | 16. | 23. | 31.0 | 37. | 44. | 59.0 | ||||||
| 1Phase | A | 44.0 | – | |||||||||||
| Current per phase (minimum) | A | 15.5 (L1) | 12. | 16. | 16. | 16. | 30. | |||||||
| Air volume (maximum) | mlh | 3,100 | 3,100 | 3,100 | 3,000 | 3,000 | 4,400 | |||||||
| Horizontal throw (maximum) | m | 23 | 23 | 23 | 22 | 22 | 28 | |||||||
| Electrical supply | V | 400V 3PH N & E – 50Hz | ||||||||||||
| V | 230V 1PH N & E – 50Hz | – | ||||||||||||
| Sound level @ 5m | dB(A) | 55-58 | 55-58 | 55-58 | 55-58 | 55-58 | 57-60 | |||||||
| Weight | kg | 25 | 26 | 26 | 28 | 30 | 34 | |||||||
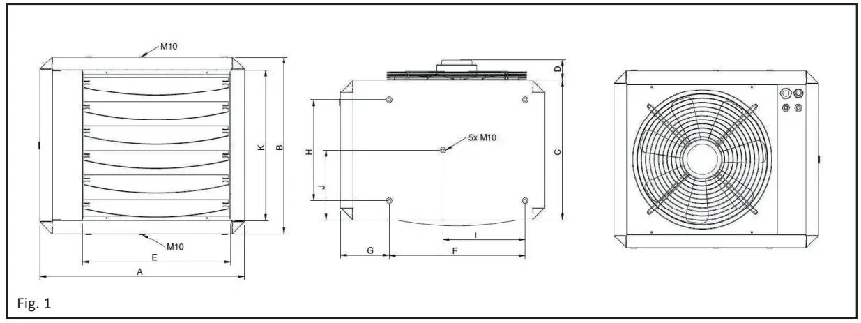
3.2 Dimensions

| Model | A | B | C | D | E | F | G | H | I | J | K |
| SUH-E10 to 30 | 570 | 490 | 390 | 125 | 420 | 380 | 140 | 280 | 230 | 195 | 420 |
| SUH-E40 | 650 | 490 | 530 | 125 | 490 | 490 | 100 | 380 | 325 | 245 | 420 |
The meaning of the symbol on the material, its accessory or packaging indicates that this product shall not be treated as regular waste. Please, dispose of this equipment at your applicable collection point for the recycling of electrical and electronic equipments waste. In the European Union and Other European countries which there are separate collection systems for used electrical and electronic product. By ensuring the correct disposal of this product, you will help prevent potentially hazardous to the environment and to human health, which could otherwise be caused by unsuitable waste handling of this product. The recycling of materials will help conserve natural resources. Please do not therefore dispose of your old electrical and electronic equipment with your regular waste.
Installation
4.1 Preparation
Before installation, please use the data badge to check:
- If the heater is in accordance with the order
- If the heater is suitable for the local present provisions (electrical supply etc.)
Before leaving the factory, the air heater has been tested for safety and has been set to the operating settings. It has been configured for the voltage that is stated on the data badge. Should there be any doubt about the settings that apply to your situation, please contact your supplier.
4.1.1 Standards
NOTICE The installation must comply with all applicable local and national standards.
NOTICE The air heater must be installed in accordance with the relevant requirements of the Electrical installation regulations and or other local regulations that may apply.
4.2 Positioning the air heater
Keep the following requirements in mind when choosing a location to install your air heater:
WARNING! Never install an air heater close to flammable materials.
- Keep sufficient distance between the heater and any obstructions. This is both for safety reasons and to allow access for service and maintenance (figure 2).
- Make sure the air flow to and from the heater is free from obstacles at least 5 metres in front of the heater. Also make sure the air intake is free from obstacles.
- Make sure enough space remains to open the door of the air heater.
- Make sure the wall can support the air heater.

4.2.1 Suspension
Depending on the model of your air heater, two types of wall support can be used:
| Model | Wall Support | Part Number |
| SUH-E10 to 40 | Wall Brackets | GA8610 |
| SUH-E10 to 40 | Angled wall brackets | GA8630 |



| Model | A | B | C | D |
| SUH-E10 to 30 | 795 | 380 | 280 | 745 |
| SUH-E40 | 845 | 490 | 380 | 795 |
The air heater is equipped with threaded sockets to suspend the unit.

4.3 Electrical connection
The electrical installation must comply with local and national requirements as well as IEE regulations.
4.3.1 Power supply
The air heater requires an earthed power supply of 400V/AC (Three phase).
A supply of 230 V/AC + Neutral (1 Phase) is optional for SUH-E10 ONLY.
The control circuit is a two wire low voltage bus communication.

4.3.2 Fuse
One fuse is present on the air heater’s control board (see the electrical wiring diagram).
- When replacing this fuse, always use one of the same type (5AT).
4.4 Room thermostat
The heater can only be controlled with one of the following room thermostats:
- MTS: a modulating digital thermostat.
- MTC: a modulating digital clock thermostat with optimiser.
- Interface module; a specially designed interface module for BMS systems. Contact your supplier for more information.
- ON/OFF thermostat: a simple on/off thermostat.
4.4.1 Installation requirements
Following these requirements when placing the thermostat to ensure the heater functions correctly:
- Ensure that air can circulate around the thermostat.
- Ensure the sun does not shine directly upon the thermostat.
- Do not place the thermostat on a cold wall.
- Place the thermostat on an inner wall free from draught.
- Never place the thermostat within the throw of the heater.
- Never mount the thermostat near the aerials of internal communication networks. These emit radiation that can disturb the thermostat. Keep several meters distance.
In all cases, the communication between the heater and the thermostat is based on a two wire, low-voltage connection. (see the electrical wiring diagram).
Follow these instructions to prevent malfunction of the installation and damage to the thermostat or air heater:
Use a cable with the following specifications:
– Signal cable.
– Shielded and twisted.
– Minimum dimensions: 1 x 2 x Ø0,8 mm2.
– Maximum length: 200 m.
CAUTION! Keep the thermostat cable separated from the mains cables.
CAUTION! Connect the cable’s earth shield only to the earth terminal inside the air heater. Do not connect the other end of the cable’s earth shield.
NOTICE A cable with a thickness of less than 0.8 mm will result in a poor signal.
NOTICE A cable that is not shielded and twisted may result in a disturbed communication in an EMC unfriendly environment.
4.4.2 Modulating room thermostat installation
To connect the air heater to an MTS or MTC thermostat, do the following:
- Connect the two control wires to terminals 4 & 5 (see figure 8 or the electrical wiring diagram).
- Set the S1 and J14 switches on the control unit as follows (figure 9 and 10):
a. Set S1 to 1.
b. Set J14 to 1.
NOTICE The air heater must be switched off when setting the switches. Otherwise the settings will have no effect.
4.4.3 Installation of multiple heaters on one control unit
An MTC or MTS room thermostat, or interface module can control up to 8 air heaters. To connect the air heaters, do the following (figure 11):
NOTICE This functionality does not apply to an ON/OFF thermostat.
- Connect the two wires of the thermostat to terminals 4 & 5 of the first air heater.
- Connect the first air heater to the second air heater.
- Repeat for each subsequent air heater.

Each air heater needs an unique number to be recog-nised by the room thermostat. This number can be set with the J14 switch on the control unit of each air heater:
- Set the S1 & J14 switches on the control unit as follows (figure 12):
a. Set the S1 switch of the first air heater to 1.
b. Set the S1 switch of the other air heaters to 0.
c. Set the J14 switch of the first air heater to 1.
d. Set the J14 switch of the second air heater to 2, etc.
NOTICE If the J14 switch of more than one air heater is set to the same number, the system will not work.
NOTICE The air heater must be switched off when setting the switches. Otherwise the settings will have no effect.
4.4.4 ON/OFF thermostat installation
To connect the air heater
- Connect the two thermostat wires to terminal 6 & 7 (see figure 14 or the electrical wiring diagram). This is a 24 V connection for the thermostat signal.

NOTICE Never combine these connections with the terminals 6 and 7 of other air heaters.
NOTICE Always use separate relays for each air heater.
NOTICE Do not connect an external power source to these terminals. These terminals need a dry contact.
Operating the air heater
5.1 Minimum operating time
The heater will always run for a minimum of 30 seconds, even if the heat demand stops. This is to avoid large amount of starts and stops.
After this, the fan will run for 2 – 3 minutes to cool down, depending on the temperature.
When the cooling time has passed, a new heat request will be granted.
5.2 Delta-T-regulation
The air heater can function as a de-stratification fan. This is called delta-T regulation and it is done via the room thermostat, with a temperate measurement sensor that is located on the air heater.
The system fan is activated when the temperaturedifference between the sensor on the heater (the delta-T NTC sensor) and the sensor in the thermostat is bigger than 8°C (standard factory setting). This procedure ensures an even distribution of temperature throughout the building, thus acting as a fully automatic de-stratification fan.
5.2.1 Switch off delta-T-regulation
Delta-T regulation can be switched off when it is not desired (e.g. when it causes discomfort). This can be done in the Settings menu on the room thermostat. See the user manual of the special Room thermostat for more information.
NOTICE Delta-T regulation is automatically switched off when the delta-T sensor (sensor terminal J6) is disconnected.
5.3 Summer ventilation
The fan can be set to run in the summer. Follow the instructions in the user manual of the special Room thermostat.
5.4 Overheating protection
The air heater’s heat exchanger and flue system are both protected from excessive temperatures.
5.4.1 Heat exchanger
An NTC sensor is located near (or on) the heat exchanger.
This sensor monitors the heat exchanger temperature.
If the heat exchanger becomes too hot, this sensor will cause the heating process to stop. Depending on the temperature, the air heater performs the following actions:
- Step 1: Power reduction (when possible).
- Step 2: Burner stop, followed by an automatic restart when cooled down (thermostat display).
- Step 3: Burner stop, followed by a Lock Out. A manual reset is required. (thermostat display).
NOTICE A manual reset can be done on the electronic circuit board or remotely with the special room thermostat.
Commissioning the air heater
6.1 Adjusting the settings
Prior to packaging, the safety and functioning of each air heater is checked in detail. It is also set to the right combustion efficiency.
In general, the heater does not need to be adjusted after installation. It is only necessary to perform a functional check and to obtain a flue gas analysis and record it for later reference.
6.2 Commissioning the air heater
Once the unit is installed according to this manual, the unit can be commissioned. To do so, follow these instructions:
- Switch on the electric supply with the maintenance switch.
You are now able to observe the first start-up and become familiar with the functioning of the heater.
- Instruct the end user about safe use of the air heater:
– The location of the maintenance switch - Instruct the end user about the operation of the heater:
– Lock-out indication
– Reset - Instruct end user about the necessary maintenance.
- Leave this manual with the end user.
6.2.1 First use – thermostat
To commission the air heater via the room thermostat, do the following:
Put the thermostat in the highest position. The start
- sequence is always the same.
- The air heater will operate for the minimal heating time.
Troubleshooting
If the air heater malfunctions, first check if the problem is caused by external circumstances (e.g. no supply power).
If the problem is not caused by external circumstances, use the tables and instructions in this chapter to fix the air heater.
NOTICE Please remember the built in waiting times of the air heater; the signals of the LED’s and the code on the display. Do not react too soon.
7.1 Volatile lock outs
The table below describes the volatile lock outs that can occur. These can only be reset by hand.
NOTICE The reset button is located underneath the LED of the control board. This LED will light up green during normal function or in stand-by mode, red in case of an
error.
| Display | Error Type | Description | Case # |
| L-0 | Internal error | Internal error | 13 |
| L-2 & 3 | Internal error | Internal error | 13 |
| L-4 | E-error | E-error for more than 24 hours | 12 |
| L-8 to 12 | Internal error | Internal error | 13 |
| L-15 | Overheating | Heat exchange sensor is overheated | 3 |
| L-17 to 19 | Internal error | Internal erros | 13 |
| L-25 | Sensor error | Heat exchange sensor failure | 4 |
| L-27 to 31 | Internal error | Internal error | 13 |
| L-32 | Sensor error | Heat exchange sensor failure | 4 |
| L-33 to 38 | Internal error | Internal error | 13 |
| L-43 | Overheating | Heat exchange sensor is overheated too often | 3 |
7.2 Temporary errors
The table below describes the temporary errors that can occur. These will disappear automatically after the cause has been resolved.
| Display | Error Type | Description | Case # |
| E-00 to 04 | Internal error | Internal error | 13 |
| 0.00E+00 | Overheating | Heat exchange sensor is overheated | 3 |
| E-06 to 13 | Internal error | Internal error | 13 |
| E-15 to 20 | Internal error | Internal error | 13 |
| E-21 & 22 | Heat exchange sensor error | Heat exchange sensor not detected | 4 |
| E-27 & 28 | Heat exchange sensor error | Heat exchange sensor short-circuit | 4 |
| 0.00E+00 | Reset button error | Too many reset actions in a short timespan | 9 |
| 0.00E+00 | Overheating | Heat exchange sensor is overheated | 3 |
| E-38 & 39 | Heat exchange sensor error | Heat exchange sensor not detected | 4 |
| E-47 & 48 | Heat exchange sensor error | Heat exchange sensor short-circuit | 4 |
| E-49 to 64 | Internal error | Internal error | 13 |
| 0.00E+00 | Voltage too low | Supply voltage is too low for over 1 minute | |
| 0.00E+00 | Voltage too high | Supply voltage is too high for over 1 minute |
7.3 Warnings
The table below describes the temporary warnings that can occur. The heater may still be working, or stops until the cause has been resolved.
| Display | Error Type | Description | Case # |
| A-07 | Overheating | Heat exchange sensor is almost overheated | 3 |
7.4 Instructions
After identifying the problem, use the Case number to find the possible cause in this paragraph.
Case 3: Heat exchange sensor or flue sensor is overheated.
- Check if the connectors J12 and J6 are plugged in correctly and if the connection J12[1-4] (optional overheating protection) is closed.
- Check if the system fan supplies enough air.
Case 4: Heat exchange sensor or flue sensor not detected, or short circuit.
- The heat exchange sensor consists of two internal sensors. The readings of these sensors may differ too much:
– Measure the resistance of each sensor. The resistance should be 20KΩ at 25 °C and 25KΩ at 20 °C.
– If the measured values differ too much, replace the sensor.
Case 9: Too many reset actions in a short timespan.
- This error will disappear after some time or if the main power is disconnected for a while.
Case 12: E-error for more than 24 hours.
- Switch the air heater off and on and check the error code.
Case 13: Internal error.
- Isolate the electrical supply and reenergise. If this does not help:
– Replace the burner control unit.
Case 16: Safety relay error.
- Isolate the electrical supply.
- Check if one of the relays got stuck when it was switched. If so:
– Replace the relays. - Reenergise the appliance.
- Check if any of the relays switches on at once (too soon). If so:
– Replace the burner control unit.
Maintenance
CAUTION! The air heater must be inspected and cleaned once a year by a qualified installer with sufficient knowledge about the device.
CAUTION! Sufficient maintenance is critical in circumstances such as high humidity, dust, high switching on/off frequency, etc.
8.1 Preparation
Before performing maintenance on an air heater that is already installed, do the following:
- Set the thermostat to the lowest setting.
- Turn off the power supply to the air heater using the maintenance switch.
CAUTION! Do not use water when cleaning the air heater.
CAUTION! The heater must be electrically isolated during servicing.
8.2 Basic maintenance
To perform basic maintenance on the air heater, do the following:
CAUTION! When cleaning parts of the air heater, use a dry cloth, brush, compressed air or a vacuum cleaner. Never use a steel brush.
- Inspect the heating elements.
- Clean the fan guard on the outside of the heater. Clean the fan blades if required.
- Open the access panel.
- Clean the inside of the air heater. Focus on the following parts:
– Body
– Fan blades and motor
– Heating elements
– Temperature sensor - Check if the wiring, nuts and bolts are properly secured and tightened.
Some checks can only be performed when the heater is running. Do the following:
- Reconnect the air heater to the power supply.
- Switch on the air heater.
- Check if the heater operates without problems. See Section 7 if any errors occur.
Exploded view and spare parts
The parts of the air heater are shown in an exploded view in figure 15. The table below describes each part and shows the correct article number for a replacement part.

| No | Description | SUH-E10 | SUH-E15 | SUH-E20 | SUH-E25 | SUH-E30 | SUH-E40 |
| 1 | Supply air fan | GX4212 | GX4201 | 1X4214 | |||
| 2 | Relay | 1E5201 | 1E5202 | ||||
| 3 | Relay | 1E201 | 1E5202 | ||||
| 4 | Heating control unit | GE5903 | |||||
| 5 | Heating element 2.5kW | – | 1E2510 | 11E2510 | |||
| 6 | Heating element 3.3kW | 1E2512 | 1E2512 | ||||
| 7 | Heat exchange sensor | GE3900 | |||||
| 8 | Delta-T sensor | GY3931 | |||||
Electrical Wiring Diagram
A complete electrical wiring diagram is shown in figure 15. The connections that are most important to the installation process are shown in figure 16.

| No | Connection Type |
| A1 | Alarm output 230v (optional) |
| C2 | Modbus (optional) |
| C3 | 0 to 10V (option) |
| C4 | Modulating thermostat |
| C5 | On/Off Thermostat |
| E1 | Power line EMI filter |
| K1 | Realy – low |
| K2 | Relay – high |
| K6 | Reset relay (optional) |
| M2 | Modulating supply air fan (triac) |
| P1 | Power supply (230v) |
| T1 | Heat exchange sensor |
| T4 | Temperature sensor (Delta-T) |


Tel: +44(0)1473 830 551
Fax: +44(0)1473 832055
www.spaceray.co.uk
[email protected]
https://spaceray.co.uk
Gas Fired Products (UK) Ltd
Chapel Lane
Claydon
Ipswich
Suffolk, IP6 0JL

Industrial & Commercial Heating
Equipment Association![]()



















