SPACE-RAY 600 Electric Radiant Heat Panel

Important Instruction
CAUTION! When using Spaceray electric heaters, basic precautions should always be followed to reduce the risk of fire, electric shock, and injury to persons, including the following:
Read all instructions before using this heater.
- Before using this appliance:
- Check that the voltage indicated on the type plate corresponds to the mains supply voltage.
- Ensure that the heater has been securely fastened in its final mounting position.
- Do not locate the heater immediately below a socket outlet.
- This appliance can be used by children aged from 8 years and aboveand persons with reduced physical, sensory or mental capabilities or lack
of experience and knowledge if they have been given supervision or instruction concerning use of the appliance in a safe way and understand the hazards involved. Children shall not play with the appliance. Cleaning and user maintenance shall not be made by children without supervision. - Children of less than 3 years should be kept away unless continually supervised.
- Children aged from 3 years and less than 8 years shall only switch on/off the appliance provided that it has been placed or installed in its intended normal operating position and they have been given supervision or instruction concerning use of the appliance in a safe way and understand the hazards involved. Children aged from 3 years and less than 8 years shall not plug in, regulate and clean the appliance or perform user maintenance.
- CAUTION Some parts of the product can become very hot and cause burns. Particular attention has been given where children and vulnerable people are present.
- Disconnect pole switch from the hard wired circuit during installation, cleaning and always ensure that the heater is cool.
- Do not use an extension cord with this product be-cause the extension cord may overheat and cause a risk of fire.
- Keep the mains supply cord away from the body of the heater which will get hot during use.
- Arrange the mains supply cord so it cannot be tripped over or damaged.
- Do not cover or obstruct the heater while it is in use.
- Do not place material or garmets on the heater, or obstruct the air circulation around the heater, for instance by curtains or pushing furniture against the heater when wall mounted, as this could cause overheating and a fire risk. The heater must be visible to heat the space
- Do not install less than the minimum mounting distance from the floor.
- WARNING: This heater should only be installed indoors with a thermostat device to control the room temperature and operated by users capable of using the device. Do not use this heater in small rooms when they are occupied by persons not capable of leaving the room on their own, unless constant supervision is provided.
- Note that due care and consideration must be taken when using this heater in series with a thermal control, a program controller, a timer or any other device that switches on the heat automatically, since a fire risk exists when the heater is accidentally covered or displaced.
- This heater is for indoor use only – do not install outdoors or near to a swimming pool. Never locate the heater where it may fall into a bathtub or other water container.
- IMPORTANT: If the heater is installed in a room containing a bath or shower, it must be positioned so the heater or controller device cannot be touched by a person using a bath or shower.
- This heater is not suitable for hazardous locations.
- WARNING: The supply cord cannot be replaced. If the cord is damaged the appliance should be scrapped.
- CAUTION: All installations must be in accordance with the latest electrical safety regulations. If in any doubt, please consult a suitably qualified electrician.
- NOTE: When hard wiring, a double pole switch with a 3.0mm contact disconnection should be fitted.
- WARNING: This appliance must be earthed and connected to a supply that is earthed!
Introduction
The Panel range of heaters contain no serviceable parts and are designed for indoor use only.
Please read the following instructions carefully before use. The safety of this heater is guaranteed only by its correct usage in accordance with these instructions, therefore it is recommended that they are retained for future reference.
Specification
| Model | 600 | 900 | 1200 | |
| Electrical supply | kW | 230V N & E 1Ph 50Hz | ||
| Power | W | 325 | 520 | 700 |
| Current | A | 1.4 | 2.3 | 3.0 |
| Protection | IP24 | |||
| Weight | kg | 3.1 | 4.9 | 5.3 |
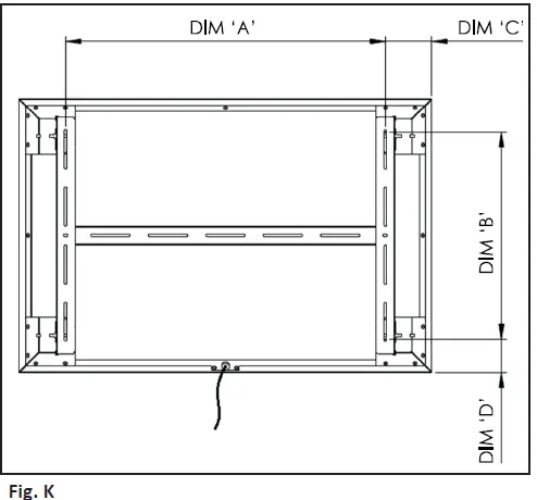
Dimensions

| Models | A | B | C | D | E | F |
| 600 | 595 | 595 | 82 | 432 | 82 | 432 |
| 900 | 595 | 895 | 82 | 732 | 82 | 432 |
| 1200 | 595 | 1195 | 82 | 1032 | 82 | 432 |
Installation
All Panel models are fitted with a mains supply cable, therefore it is unnecessary to open the heater body to carry out installation of this product. The wires in the mains cord are coloured in accordance with the following:-
- Blue – Neutral
- Brown – Live
- Green/Yellow – Earth
CAUTION: All installations must be in accordance with the latest electrical safety regulations. If in any doubt, please consult a suitably qualified electrician.
NOTE: When hard wiring, a large double pole switch with a 3.0mm contact disconnection should be fitted.
NOTE: When installing the heater indoors it should be connected to a suitable thermostat device.
NOTE: It using a RCD where applicable is recommended
Wall mounting
The heater must be positioned with respect to the minimum clearances shown in Fig. A and all cautions, notes & warnings on pages 3 and 4 adhered to.
- Identify where you wish to position the heater and whether it will be in a portrait or landscape orientation then place the paper template on the wall for the hole positions or see diagram over page.
- Select the dimensions for the heater model you are installing and using a pen, press through the hole centres on the template to mark the wall.
Note, there is a 15mm drop from engagement holes on the brackets to the top hanging edges so allow for this.
- Drill the mounting holes, insert wall anchors and fit the screws (not provided) and leave protruding approx. 5mm for the heater to hang on. Note. the slots on the back of the heater are 6mm wide so select screws which have a head larger than 6mm to ensure the heater remains captive and doesn’t fall off the wall.
- Locate the slots on the back of the panel heater and hang in on all four screws with the cable exiting the heater downwards.

Ceiling mounting
CAUTION Always isolate the heater from the mains supply when mounting or adjusting the heater position.
- The heat panels are suitable for ceiling mounting with the optional ceiling mounting brackets available from Space-Ray.
Note. it can also be hung from chains or suspension wires (source separately). - The heater must be positioned with respect to the minimum clearances shown in Fig. D.

- Identify where you wish to position the heater and place the paper template on the wall for the hole positions of the ceiling mounting brackets or refer to the dimensions over the page.
- Select the dimensions for the heater model you are installing and using a pen/pencil, press through the hole centres on the template to mark the wall.
- Drill the mounting holes, insert suitable wall anchors and screws (not provided). Note. plasterboard screws are not adequate! Refer to the specification table on page 4 for weights of the heaters.
- Assembly the left and right ceiling mounting brackets (hook profiles to be outside of heater) to the joining brace as shown Fig. E & F using the nuts and washers provided.


- Fit the ceiling mounting bracket assembly to the ceiling in the mounting holes (Fig. G) and it is recommended additional fixings are put in the slotted sections into ceiling joists.

- Take the heat panel and offer it up to the hooks placing them through the body bracket slots and sliding along until it stops then gently lower to ensure all four corners are captive.

- Ensure the mains supply cord does not rest on the heater.

| Models | A | B | C | D |
| 600 | 595 | 595 | 82 | 432 |
| 900 | 595 | 895 | 82 | 732 |
| 1200 | 595 | 1195 | 82 | 1032 |

Fitted within a suspended/false ceiling
CAUTION Always isolate the heater from the mains supply when mounting or adjusting the heater position.
- The heat panels are suitable for mounting in false/ suspended ceilings as the dimensions are the same as standard ceiling tiles.
- The heater must be positioned with respect to the minimum clearances shown in.
- Ensure that the ceiling grid frame is suitablly sized to accommodate the heater.
- Check the ceiling grid frame to ensure there is no damage and that it is flat.
- Ensure that the return edge (on which the heater will sit) sufficiently covers all sides of the heater panel when it lays within the frame see Fig. L.

- Check that the ceiling frame has sufficent supports to accomodate the weight of the panel heater, especially if more than one heater is to be installed.
- Ensure the heater is seated fully in the frame without any gaps to maintain the fire rating of the ceiling.
- Ensure the mains supply cord does not rest on the heater.
Operation
The heater should only be operated through an electronic thermostat/control device that meets the Ecodesign directive requirements. Please contact Space- Ray for further details.
Fig. M illustrates how a heating panel should be wired. A double pole switch/isolator must always be fitted along with a time and temperature control. Where multiple heat panels are being used, each additional Panel is wired as shown in Fig. N. Care must be taken to ensure that the total load of all heaters connected do not exceed the capability of the time and temperature controller as well as the double pole switch/isolator.
Safety
The heater is fitted with a thermal cut-off switch which will cut off the heater output if it exceeds its output limit and switch it back on when it’s cooled to a sufficient level.
Maintenance
The Panel range of heaters contain no serviceable parts.
Cleaning
Before cleaning the heater disconnect/switch off from the mains power supply and ensure the appliance is cool. The heater should be wiped with a soft damp cloth and dried. Do not use abrasive cleaning products or polishes as these can damage the finish of the heater.
Recycling information
The use of this symbol indicates that this product may not be treated as household waste. By ensuring this product is disposed of correctly, you will help prevent potential negative consequences for the environment and human health, which could otherwise be caused by inappropriate waste handling of this product.
For more detailed information about recycling of this product, please contact your local council or your household waste disposal service.
Tel: +44(0)1473 830 551
Fax: +44(0)1473 832055
www.spaceray.co.uk
[email protected]

Gas Fired Products (UK) Ltd
Chapel Lane
Claydon
Ipswich
Suffolk, IP6 0JL



























