Nordpeis PN-SAL03-00R Heat Retaining Stove

IMPORTANT SAFETY PRECAUTIONS!
- Please follow the installation manual when connecting your stove / fireplace to the chimney /flue pipe. If connected differently from instruction please, consider the heat radiation from the flue pipe to the surrounding materials.
- Before use, please carefully read the user manual and follow the instructions.
- Integrated or defined convection openings may never be reduced or partially obstructed. This may lead to overheating, which again can cause house fire or serious damage to the product.
- Use only designated fire starters. Never use gasoline, diesel or other liquids to start the fire. This may cause explosions!
- Never use other fuel than natural dry chopped wood. Briquettes, peat, coke, coal and waste
from construction materials develops far higher temperatures and emissions than natural wood. Since your product has been designed for use with natural wood only, other fuels may damage the product, chimney and surrounding constructions. - In case of damage to glass or door gasket, all use of the product must be discontinued until the damage has been repaired.
- Products connected to a vented steel chimney must never be operated with open or ajar door other than reloading of wood or shortly during kindling process.
Failure to follow these precautions will leave your warranty void and expose people and property to danger.
Advise: Even if not required in your area, it is always wise to have a qualified stove / fireplace fitter do the installation, or at least the final inspection before use.
General information about heat accumulating fireplaces
Heat accumulating fireplaces differ from other fireplaces in that they are intended to provide a moderate heat for prolonged periods with a limited time of burning. Conventional fireplaces give off strong heat during the burning period but with a very limited cool-down period.
The heat accumulating fireplaces from Nordpeis have a long duct system where the heat developed in the combustion chamber passes through the duct system before it exits through the chimney. The heat from the gases is absorbed by the material surrounding the smoke ducts, and by the time the smoke exits through the chimney. The efficiency of a well-constructed
heat accumulating fireplace is thus far better than the efficiency of a conventional fireplace.
A heat accumulating fireplace can keep an even temperature throughout the day with only one heating cycle.
Double- action damper
The stove is fitted with a double action damper, and controls two functions: bypass and chimney damper. When the damper rod is pulled all the way out, the flue gasses will bypass the canal system and exit through the chimney. This function is used when lighting the fire. When the stove and the chimney has reached operating temperature after 10 – 30 minutes the damper rod should be pushed half way in until a “click” is heard. In this position the bypass damper is closed and the flue gasses are forced through the stove’s canal system which is absorbing the heat of the flue gasses before it is released to the chimney.
The bypass damper should also be opened before opening the door for refueling wood, and then closed again.
WARNING: Using the stove over prolonged periods with open bypass damper may expose the chimney to higher temperatures that it is design for.
By pushing the damper rod all the way in, both bypass- and the chimney damper will be closed. This closes off the canal system from the chimney, preventing the heat accumulated in the stove to be lost through the chimney. This function should never be used before the fire is out and only a bit of embers are left in the stove. WARNING: Closing the chimney damper too early can result in flue gasses entering the room and cause carbon monoxide poisoning.
Air Vent
When burning in a heat accumulating fireplaces the air vent is traditionally kept open to a maximum. This ensures optimal combustion and minimizes carbon deposits in the smoke duct system. In addition it makes it easier to keep the glass clean during intensive burning. However, should one wish for a longer burn period and slower flames, the air vent is adjusted
and reduced. Salzburg is equipped with secondary combustion technology, which can normally only be found on modern fireplaces. This ensures clean combustion and high efficiency, even at lower loads.
Cleaning the Smoke Duct System
When the fireplace is used every day throughout the heating season, we recommend that the smoke duct system is swept once yearly. This is to maintain the draught and efficiency. Soot isolate the ducts and thus lower the efficiency. One can also notice that the draught is reduced and that the flames are difficult
to control with the air vent function. Remember that the fireplace must always be cold before it is swept / inspected.
In order to clean the ducts, remove the Thermotte baffle plate and the two Thermotte side / back plates. Remove the two revision covers in the Power stone and then insert the cleaning brush both up- and downwards. The soot will collect in the bottom and can be removed with an ash-cleaner by removing the ash grate and the ash-boxes. The flue pipe can be swept by removing the revision covers on top of the stove.
The inspection shall be performed by the Professional servicemen.
Ash and Ash-pan
The ash-pan consists of an inner part which is used for the regular emptying of ashes. The duct system can be reached when the outer part of the ash-pan also is removed.
The ashes must be emptied periodically. Please note that the ash may contain hot embers even several days after the fire has ceased. Use a container of
non-combustible material to remove the ashes.
Weight
The home owner must ensure that the floor can withstand the load of the total weight of the product.
Firewall
Freestanding fireplaces can be installed without a firewall. Observe all safety distances to combustible materials.
Connection to Chimney
Follow specifications from the chimney manufacturer for connection to the chimney. Dry stack the fireplace for accurate height and positioning of the flue/chimney connection.
The product is not compatible with top connected concrete chimney.
Maximum weight of steel chimney (top connection) is 300kg.
By top connection to steel chimney, we refer to the respective manufacturer’s installation instructions. Requirements for Floor Plate by Combustible Floor Follow the requirements for floor plate (stone, steel, etc.) that apply in the country that the product is installed in.
Glue
The outer elements should be glued with the acrylic which is included. Make sure that all the surfaces that are to be glued are free of dust. The surfaces can be cleaned for better adhesion. Ensure that the surfaces are dry before spreading on the acrylic. Once the fireplace is assembled, fill the joints with acrylic and even it out with a sponge or finger and some soapy water, in order to have a clear indentation between the elements (FIG Z).
Minor Dents
Transportation and handling can cause minor dents to the product. This can be repaired with the powder glue which is included. For a perfect result you can fill and grind with a suitable filler on top of the powder glue. Fill smaller cracks and uneven surfaces with a float or a brush. If the dent is deep, it is recommended to fill in several stages to avoid sinking. Even out with e.g. a damp sponge or a float.
Painting
The surface of the chimney surround is developed to be painted without priming work. Use latex or acrylic based paint (emulsion paint), or cement-based textured paint. In the unlikely case that there are some irregularities in the surface, these can be filled with the acrylic which is included, or a light and appropriate filling material. Any surface that has been filled needs to be smoothened with fine sand paper.
Polishing
If a more traditional and polished surface is wished for, it is recommended to dampen the surround and then cover it with tile adhesive (powder glue) and a fiberglass mesh, prior to possibly adding mortar or mineral polish.
Tiles
This fireplace can also be partially or completely covered with tiles / natural stone of your choice. As for the section above on “Polishing”, we recommend that the chimney surround is dampened before it is covered with tile adhesive (powder glue) and a fiberglass mesh. This is to ensure good adhesion and prevent the formation of cracks at the joints of the surround.
Please note that the adhesive and mortar must set before burning in the fireplace. Follow the instructions from the mortar/adhesive producers.
Regardless of surface treatment it is advantageous to mask the entire door frame to avoid having to clean it later.
Please note that the air gap between the surround and the door frame must not be filled with glue, mortar or similar.
Thermotte™
The insulation plates (Thermotte) are classified as “wear and tear” parts which will require to be exchanged after some years. The wear time will depend on the individual use of your product.
Nordpeis offers a one-year warranty on these parts. After this, replacements can be purchased.
Please note: Wood logs that are too long can cause additional strain and crack the plates, due to the tension created between the side plates.
Cracks in the i PowerStone
Due to thermal effects there may be small cracks / fissures in the Power Stone. This is natural and does not affect the product’s function or safety.
Warranty
Warning!
Use replacement parts recommended only by the Manufacturer.
Warning!
Any unauthorized modification of the appliance without written permission of the Manufacturer are prohibited.
For detailed description of the warranty conditions see the enclosed warranty card or visit our website www.nordpeis.com
Recycling of the refractory glass
Refractory glass cannot be recycled. Old glass, breakage or otherwise unusable refractory glass, must be discarded as residual waste. Refractory glass has a higher melting temperature, and can therefore not be recycled together with glass. In case it would be mixed with ordinary glass, it would damage the raw material and could, in worst case end the recycling of glass. It is an important contribution to the environment to ensure that refractory glass does not end up with the recycling of ordinary glass.
Packaging Recycle
The packaging accompanying the product should be recycled according to national regulations.
Door and Glass
Should there be any soot on the glass it may be necessary to clean it. Use dedicated glass cleaner, as other detergents may damage the glass/gaskets. (NB! Be careful, even dedicated glass cleaner can damage the varnish on the door frame and gaskets). A good advice for cleaning the glass is to use a damp cloth or kitchen roll paper and apply some ash from the burn chamber. Rub around the ash on the glass and finish off with a piece of clean and damp kitchen roll paper. NB! Only clean when the glass is cold.
Periodically, it may be necessary to change the gaskets on the door to ensure that the burn chamber is air tight and working optimally. These gaskets can be bought as a set, usually including ceramic glue.
Combustion pace
A heat storing product should not be burned in too aggressively as this may damage the product. In order to get the most out of a heat storing product, it is therefore important to optimize the combustion pace and the size of the loads. Read the combustion rates and load sizes that apply to your product.
Advice on Lighting a Fire
The best way to light a fire is with the use of lightening briquettes and dry kindling wood. Newspapers cause a lot of ashes and the ink is damaging for the environment. Advertising flyers, magazines, milk cartons and similar are not suitable for lighting a fire. Good air supply is important at ignition. When the flue is hot the draught increases and door can be closed.
Warning: In order to avoid injuries, please be aware that the surface may become hot during operation. be hot and that extra care need to be taken to avoid skin burn.
Warning: NEVER use a lighting fuel such as petrol, paraffin, methylated spirits or similar for lighting a fire. This could cause injury to you as well as damaging the product.
Use clean and dry wood with a maximum moisture content of 20% and minimum 15%. Humid wood requires a lot of air for the combustion, as extra energy/heat is required for drying the humid wood and heat effect is therefore minimal. In addition this creates soot in the chimney with the risk of creosote and chimney fire.
In case of a chimney fire, close the door and air supplies on the stove / insert and call the Fire Brigade. After a chimney fire the chimney must in all cases be inspected by an authorized chimney sweeper before you use the appliance again.
Storing of Wood
In order to ensure that the wood is dry, the tree should be cut in winter and then stored during the summer, under roof and in a location with adequate ventilation. The wood pile must never be covered by a tarpaulin which is lying against the ground as the tarpaulin will then act as a sealed lid that will prevent the wood from drying. Always keep a small amount of wood indoors for a few days before use so that moisture in the surface of the wood can evaporate.
Burning
Not enough air to the combustion may cause the glass to soot. Hence, supply the fire with air just after the wood is added, so that the flames and gases in the combustion chamber are properly burnt off. Open the air vent and have the door slightly ajar in order for the flames to establish properly on the wood.
Note that the air supply for the combustion also can be too large and cause an uncontrollable fire that very quickly heat up the whole hearth to an extremely high temperature (when burning with a closed or nearly closed door). For this reason you should never fill the combustion chamber completely with wood.
Warning!
The Firebox shall to be always closed except during ignition, refueling and ash removal.
Lighting a fire
- Kindling wood
- Finely chopped (diameter of 3-5cm)
- Length: 25-35cm
- Ca. amount pr lighting : 3 kg
Place the air vent control in ignition mode – maximum to the right. Set the damper in by-pass mode pulling the lever out.
Insert small, dry pieces of wood, ignite and ensure the flames have taken proper hold of the wood. When the flames are stable and the chimney is warm, pull the air control out of the ignition mode turning left, when click sound is felt and heard, the ignition air is closed.
After 15-20 minutes from starting fire set the damper in normal work mode. Smoke starts circulating in the ducts and heat from it will be passed and stored in the Power Stone core.
When there is a glowing layer of ash, new wood logs can be inserted. Pull the hot ember to the from of combustion chamber when inserting new logs so that the wood is ignited from the front. Place first layer of wood logs perpendicular to the front. The fire should burn with bright and lively flames.
Reload size
- Chopped wood (diameter of 6-9cm)
- Length: 25-35cm
- Normal load size. 3,75 kg /h
When the fire end, close smoke damper in order to store more warmth inside appliance.
Choice of Fuel
All types of wood, such as birch, beech, oak, elm, ash and fruit trees, can be used as fuel in the stove. Wood species have different degrees of hardness – the higher the hardness of the wood, the higher the energy value. Beech, oak and birch harvest the highest degree of hardness.
Attention! We do not recommend the use of fuel briquettes / compact wood in our combustion chambers, as these products may develop significantly higher temperature than the combustion chamber can withstand. Burning briquettes / compact wood is at your own risk and can cause invalidity of the warranty.
Warning:
NEVER use impregnated wood, painted wood, plywood, chipboard, rubbish, milk cartons, printed material or similar. If any of these items are used as fuel the warranty is invalid.
Common to these materials is that they during combustion can form hydrochloric acid and heavy metals that are harmful to the environment, you and the stove. Hydrochloric acid can also corrode the steel in the chimney or masonry in a masonry chimney. Also, avoid burning bark, sawdust or other extremely fine wood, apart from when lighting a fire. This form of fuel can easily cause a flashover that can lead to temperatures that are too high.
Warning: Make sure the stove is not overheated – it can cause irreparable damage to the product. Such damage is not covered by the warranty.
Source: “Håndbok, effektiv og miljøvennlig vedfyring” by Edvard Karlsvik SINTEF Energy Research AS and Heikki Oravainen, VTT.
Technical information
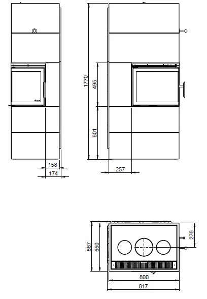
| Minimum distances to combustible materials | Back 50mm Side 50mm Ceiling 550mm |
| CO-content of flue gas @ 13%O2 | <1500 mg/m³ |
| Flue gas temperature | 140 °C |
| Thermal output | 54,6 kWh |
| Thermal storage capacity | 100% after 4,8 hrs 50% after 11,8 hrs 25% after 20,1 hrs |
| Energy efficiency | > 65 % |
| Nominal heat output during discharge period (100%-25%) | 3,6 kW |
| Chimney draft | 12 Pa |
| Length of wood logs | 350 mm |
| Weight | 1120 kg |
| Load size (kg) | 3,0 kg |
| Max nr. loads | 5 |
| Loading interval | 1 / hour |
| Nr. burning cycles per 24 hours | 1 |
Before Installing a new fireplace
Several European countries have local regulations for installation of fireplaces, which change regularly. It is the responsibility of the client that these regulations are complied with in the country/region where the fireplace is installed.
Nordpeis AS is not
responsible for incorrect installation.
Important to check
(please note that this list is not exhaustive):
- Distance from firebox to combustible/flammable materials
- Insulation materials/requirements between fireplace surround and back wall
- Size of floor plates in front of fireplace if required
- Flue connection between firebox and chimney
- Insulation requirements if flue passes through a flammable wall
Chimney Draft
Compared to older models, the clean burning fireplaces of today put significantly higher demands on the chimney. Even the best fireplace will not work properly if the chimney does not have the right dimensions or is not in good working order. The draught is mainly controlled by gas temperature, outside temperature, air supply as well as the height and inner diameter of the chimney. The diameter of the chimney should never be less than that of the flue/chimney collar. At nominal effect there should be a negative pressure of 12 to 25 Pascal.
The draft increases when:
- The chimney becomes warmer than the outside air
- The active length of the chimney over the hearth increases
- Good air supply to the combustion
It can be difficult to obtain the right draught conditions in case the chimney is too large relative to the fireplace, as the chimney does not heat up well enough. In such cases you may want to contact professional for evaluation of possible measures. Draught that is too strong can be controlled with a damper. If necessary, contact a chimney sweeper. The product is type tested and should be connected to a chimney that is dimensioned for the smoke gas temperature indicated in the CE declaration. When necessary, contact a professional in advance
Attention! It is recommended to use a qualified professional when installing a new fireplace.
Shared flue gas system
Appliance can be connected to shared flue gas pipe system.
Warning! In case of the appliance connected to shared flue gas pipe system – the Self Closing Door system must be operational.
Air supply (=mm AIR)
A set for fresh air supply is available as an accessory. This will ensure that the air supply to the combustion chamber is less affected by ventilation systems, kitchen fans and other factors which can create a down-draught in the room. In all new constructions, we strongly recommend the product is designed and prepared
for direct supply of outside air. In older houses also, the use of fresh air supply set is also recommended. Insufficient air supply can cause poor draught and thereby low combustion efficiency and the problems this entails: soot stains on the glass, inefficient utilization of the wood and a soot deposits in the chimney.
Warning! Keep the air intakes, supplying combustion air, free from blockage.
Warning! Extractor fans when operating in the same room or space as the appliance may cause problem.
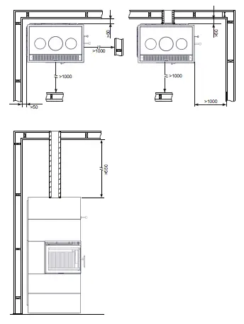
Distance illustration (FIG 1)
*The illustration indicates the approximate centre height of the recess for the flue. Consider possible inclination of the flue prior to making perforating the chimney. Distortions in floors and walls may also influence the height, dry stack therefore the fireplace for accurate height and positioning of the flue/chimney connection. If a fresh air supply set (accessory) is connected through the floor, mark where the hole should be.
Attention! Since the inner core is composed of many layers the connection height may vary by up to a few centimeters from installation to installation.
Safety distances (FIG 2)
Ensure that the safety distances are complied with.
IMPORTANT! Drying Process
The fireplace contains a lot of moisture when it is new and no fire has been made before. This moisture must be dried out before the fireplace can withstand the combustion rate given below.
To extract the moisture, follow this procedure:
- Ensure that the air vent control just below the door is completely open
- Ensure that the damper is in ignition mode.
- Make a small fire with 0.5-1 kg of kindling wood
- Set the damper in operating mode, once the flames have taken proper hold of the wood, this will ensure that the hot smoke circulates the ducts.
Attention! Let the air vent and damper remain open until the fire is burnt out.
This procedure is repeated twice more, with a 24 hrs gap between each time.
NB! Failure to follow the guidelines for drying can cause the elements to crack.
The air vent control is turned to the right to increase the air supply to Salzburg. The vent is working in two modes.
- A. When you turn the vent maximally to the right it is in ignition mode.
- B. If you turn the vent to the left ignition air is diminish. When you felt a click then ignition air is closed and there is maximum secondary air provided. Further turning to the left decrease amount of secondary air.

Combustion pace
An accumulating fireplace is designed to absorb thermal energy during a relatively short period of relatively intense heat. When the period of intensive combustion is completed, the product will deliver the accumulated heat over a longer period of time.
Attention! Combustion beyond the recommended pace (see table with Technical Information) will result in a higher surface temperatures, which
can lead to discoloration of the paint. It can also result in higher than intended temperatures against combustible walls.
Follow the values in the table to find the correct load size and what loading interval is right for your product.
When the last load has passed into the ember phase with few embers left, the air vent and flue damper are closed to prevent heat escaping through the chimney.
Remember to open the flue damper before making a fire in the fireplace.
The bypass damper should only be open during when necessary for short periods (10-15 minutes) at the time a fire is lit, and at new loads, in order to prevent smoke or ash escaping into the room. Persistent combustion with an open bypass damper can result in exceeding the maximum allowed chimney temperature.
Due to the length of the smoke gas ducts, the fireplace is heated up somewhat unevenly. After lighting a fire, the front above the door and one of the sides will heat up first. The heat will then be evened out after a few hours of burning and when all the ducts have been warmed up.
Assembly
Attention! It is very important that installation instructions are read carefully and followed closely in order to ensure optimal functioning of the product.
Some advice in case of combustion problems
| Error | Explanation | Solution |
| No draught | The chimney is blocked | Contact a chimney sweeper / dealer for more information or clean the flue, smoke baffle and burn chamber. |
| The flue is sooty or there is accumulated soot on the smoke baffle | ||
| The smoke baffle is wrongly positioned | Verify the assembly of the smoke baffle – see assembly instructions. | |
| The stove release smoke when lighting the fire and during combustion | Downdraught in the room caused by no draught, that the house is too “air tight”. | Light the fire with an open window. If this helps, more/bigger vents must be installed in the room. |
| Downdraught in the room – caused by extractor and/or central ventilation system that pulls too much air out of the room. | Turn off/regulate extractor and/or other ventilation. If this helps, more vents must be installed. | |
| The flues from two fireplaces/stoves are connected to the same chimney at the same height. | One flue must be repositioned. The height difference of the two flue pipes must be of at least 30 cm. | |
| The flue is in a declining position from the smoke dome to the chimney. | The flue must be moved so that there is an inclination of at least 10º from smoke dome to chimney. Possibly install a smoke suction device*. | |
| The flue is too far into the chimney. | The flue must be reconnected so that it does not enter into the chimney but ends 5 mm before the chimney inner wall. Possibly install a smoke suction device*. | |
| Soot hatch in the basement or attic that is open and thus creating a false draught. | Soot hatches must always be closed. Hatches that are not tight or are defected must be changed. | |
| Damper/top draught vents or doors on fireplaces that are not in use are open and create a false draught. | Close damper, doors and top draught vents on fireplaces that arenot in use. | |
| An open hole in the chimney after that a fireplace has been removed, thus creating a false draught. | Holes must be completely sealed off with masonry. | |
| Defect masonry in the chimney, e.g. it is not airtight around the flue pipe entry and/or broken partition inside the chimney creating a false draught. | Seal and plaster all cracks and sites that are not tight. | |
| The cross-section in the chimney is too large which results in no or very low draught. | The chimney must be refitted, possibly install a smoke suction device*. | |
| The cross-section in the chimney is too small and the chimney cannot carry out all the smoke. | Change to a smaller fireplace or build new chimney with a larger cross section. Possibly install a smoke suction device*. | |
| The chimney is too low and hence a poor draught. | Increase the height of the chimney and/or install a chimney cap/ smoke suction device*. | |
| The stove releases smoke inside when it is windy outside. | The chimney is too low in relationship to the surrounding terrain, buildings, trees etc. | Increase the height of the chimney and/or install a chimney cap/ smoke suction device*. |
| Turbulence around the chimney due to the roof being too flat. | Increase the height of the chimney and/or install a chimney cap/ smoke suction device*. | |
| The stove does not heat sufficiently. | The combustion receives too much oxygen due to a leakage under the lower border of the stove or too strong chimney draught. Difficult to regulate the combustion and the wood burn up too quickly. | Any possible leakage must be sealed off. A draught regulator or possibly a damper can reduce the chimney draught. NB! A leakage of only 5 cm2 is enough for 30% of the heated air to disappear. |
| Too much draught | The smoke buffer is wrongly positioned. | Verify the positioning of the smoke buffer – see assembly instructions. |
| In case of using oven-dried wood, this requires less air supply than when using normal wood. | Turn down the air supply. | |
| The gaskets around the door are worn and totally flat. | Replace the gaskets, contact your dealer. | |
| The chimney is too large. | Contact chimneysweeper or other professional for more details. | |
| The glass is sooty | The wood is too wet. | Only use dry wood with a humidity of maximum 20%. |
| The air vent control is closed too tightly. | Open the air vent control to add air to the combustion. When new wood logs are inserted all vent controls should be completely opened or the door slightly opened until the flames have a good take on the wood. | |
| White glass | Bad combustion (the temperature is too low) | Follow the guidelines in this user guide for correct combustion. |
| Using wrong material for combustion (such as: painted or impregnated wood, plastic laminate, plywood etc) | Ensure to use only dry and clean wood. | |
| Smoke is released when the door is opened | A levelling out of pressure occurs in the burn chamber. | Open the air vent control for about 1 min before opening the door avoid opening the door too quickly. |
| The door is opened when there is a fire in the burn chamber. | Open the door carefully and/or only when there is hot ember. | |
| White smoke | The combustion temperature is too low. | Increase the air supply. |
| The wood is humid and contains water damp. | Ensure to use only dry and clean wood. | |
| Black or grey/ black smoke | Insufficient combustion. | Increase the air supply. |
Salzburg C Convection
Salzburg C Convection – chimney / air
In case that the fireplace is placed freestanding without the heat shield in the back, the minimum distance behind to combustible material is 800mm.Fig 2
- Firewall
- Combustible material

The base plate (1) is placed on the floor. It is important that the entire intended contact surface (A) is in actual contact with the floor. This can be ensured by spreading a layer of tile adhesive or thin mortar on the floor before the base plate is placed against the floor. This is to ensure that the heavy fireplace is not left sitting on any irregularities and to ensure an even weight distribution of the fireplace. It is also important to ensure that this plate is level in both directions before proceeding with the installation.
Attention! The use of shims to level the base plate is not recommended as the differences in tension on the base plate can cause it to crack under the weight of the product.
Attention! The bottom plate is prepared for fresh air supply connection through the floor. In case the connection through the floor is not used then seal the hole in the bottom plate with the supplied lid 1a. The same lid is used to seal the hole in the rear of the surround (FIG 8a) if the fresh air supply is connected through the floor.
IMPORTANT! The inner core of Powerstone™ must be centered from the first element. 



Remove protrusion from surface of concrete element in order to assemble each heat shield hook. After assembling, hook surface should be even with top edge of concrete part. 
NOTE! It is important to center the inner core relative to the surround. Ensure that the core is centered after each shift of PowerStone™. Confirm that the inner core is assembled vertically, and that the layers are not offset relative to each other. There should be a 6-10 mm air gap between the inner core and the surround. 

Place the elements as illustrated. The vertical joint should be sealed with gasket as illustrated.. 




Place acryl in groove for the gasket as shown on the picture.
Glue the gasket that seals the door frame to the inner core in the slot with acrylic glue provided. Prepare the gasket as long that after gluing to the groove the both loose ends of gasket will overlap on the top of the frame. Place both ends of the gasket on the inner core, in such manner, which enable you assemble the frame in the next step.
We recommend removing the door during assembly in order not to damage it. (A) Use pilfers to take out end of the spring attached being the screw on the bottom side of the door. (B) Remove the transportation lock and lift the door up (1) and out of the lower edge (2). Be careful when the door is pulled out from the bottom (3) as to not damaging the frame.
Place the frame on its place. When placing the door frame, make sure the gasket stays in its in-tended position. Place the loose ends of the gasket on the door frame top. Before placing new element apply acryl between gaskets. 

Use fastening rod to draw together assembled power stone layers. Use screwdriver to fasten the screw. Check position by level measuring tool. Ensure the element is level. This can be adjusted by tightening or loosening the fastening rod. 



Pull the channel up. Place Power stone element as shown on drawing. Once the part is in place push down the channel and fasten the screws properly. Attention! Front surface of the channel and power stone bar should be even with other inner core parts. 


DAMPER ROD TO BE FIXED LATER 
- A. Lever pulled out to maximum – Ignition mode.
- B. Lever in the middle – Normal mode – the inner core is accumulating heat.
Attention! When moving lever to this position a slight resistance can be felt. - C. Lever pushed in to maximum – Heat retaining mode. Close the damper when the last flames have died.

Depending on the product being connected through the rear (A) or side (B) connection, use a suited tool an make a cut in the Power stone element. Make sure the cut is wide enough (C).
Glue the small Power stone fittings to the element using stove cement or similar. The gap between the smoke pipe and the fittings needs to be sealed with a gasket. 



Measure position for the damper rod and drill a Ø16 mm hole. See also remarks on FIG 33.
Attention! The gaskets between the core elements will sink a little after assembly. It is important to extend the hole 10 mm downwards when drilling in order to avoid that the damper wedge.
When product is intended to be connected to the chimney horizontally – either side or back, measure and cut out one hole for chimney connector.
Remember that the Power stone core sets/sinks vertical during usage. Keep a distance between the smoke pipe and the concrete of +/- 10mm. 
Place the smoke pipe. Before placing the next Power stone, make sure the connection between the Power stone and the smoke pipe is sealed. The flue pipe should be flush with the inside of the Powerstone. 




Clean surface of a hole before you place the lids. When product is intended to be connected to the chimney horizontally – side or back place Power stone plugs as shown on FIG 36 B.


Place a Ø8 mm gasket inside combustion chamber as shown on the drawing. Distribute it evenly on combustion bottom surface and place a bottom part of the Thermotte lining left and right. 

Place two side / back Thermotte plates as illustrated and push them both tightly into the corner. 
The logstopper consists of a Thermotte part and a steel shield (A). Make the steel shield fit the shape of the Thermotte by bending it as shown (B) 

Assemble side and back lower radiation shield.
Attention! When rear air connection is going to be utilize cut out the hole in the back shield.
Attention! When product is going to be connected to the chimney horizontally, either from side or back wall, cut the hole in the shield.
Assemble door hinge (1).Assemble door spring as shown on the drawing (2). Attention! To meet legal requirements in certain European countries, all doors are self-closing. If this is not a requirement in your area, this feature can be disabled by skipping this step (2). 




| Nordpeis AS Gjellebekkstubben 11 3420 Lierskogen, Norway SalzCConv-CPR-2015/09/30 | |
| Salzburg C Convection EN 15250:2007 Year of Approval / Zulassungsjahr 2015Heating of living accomodation / Raumheizer für feste Brennstoffe für WohnbautenFire safety: Feuersicherheit: Reaction to fire: Brandverhalten: A1 Distance to combustible: Abstand zu brennbaren Materialien: Flue gas temperature: Abgastemperatur: 140 C Emission of combustion: Emissionswerte: CO <1500 mg/m3 NOx < 200 mg/m3 Thermal storage capacity: Wärmespeicherkapazität: 100% after / nach 4,8h Energy efficiency: Wirkungsgrad: > 65 % Thermal Output: Gesamtwärmeleistung: 54,6 kWh Nominal heat output Nennwärmeleistung während 3,6 kW during discharge period: des Entladungszeitraums: Surface temperature: Oberflächentemperatur: Pass / Bestanden Mechanical resistance: Mechanischer Widerstand: Pass / Bestanden Cleanability: Reinigungsfähigkeit: Pass / Bestanden Maximum recommended Das empfohlene 300 kg chimney weight: Schornsteingewicht: | |
| Intermitent burning / Zeitbrandfeuerstätte Read and follow the manual / Lesen und befolgen Sie die Bedienungsanleitung Double allocation is acceptable / Mehrfachbelegung des Schornsteins ist möglich | |
| Complies with / Entspricht folgenden Standards: Test report / Prüfbericht Nr. LRV of Switzerland; BlmSchV 1 & 2 RRF-50 15 3896 BStV Munich, Regensburg BStVO Aachen, Dusseldorf SN: | |
Technical parameters for solid fuel local space heaters
| Model identifier(s): Salzburg C | ||||||||
| Indirect heating functionality: no | ||||||||
| Direct heat output: 3,6 (kW) | ||||||||
| Fuel | Preferred fuel (only one): | Other suitable fuel(s): | ||||||
| Wood logs with moisture content ≤ 25 % | yes | no | ||||||
| Compressed wood with moisture content < 12 % | no | no | ||||||
| Other woody biomass | no | no | ||||||
| Non-woody biomass | no | no | ||||||
| Anthracite and dry steam coal | no | no | ||||||
| Hard coke | no | no | ||||||
| Low temperature coke | no | no | ||||||
| Bituminous coal | no | no | ||||||
| Lignite briquettes | no | no | ||||||
| Peat briquettes | no | no | ||||||
| Blended fossil fuel briquettes | no | no | ||||||
| Other fossil fuel | no | no | ||||||
| Blended biomass and fossil fuel briquettes | no | no | ||||||
| Other blend of biomass and solid fuel | no | no | ||||||
| Characteristics when operating with the preferred fuel | ||||||||
| Seasonal space heating energy efficiency η s < 65 % | ||||||||
| Energy Efficiency Index (EEI): 112,8 | ||||||||
| Item | Symbol | Value | Unit | Item | Symbol | Value | Unit | |
| Heat output | Useful efficiency (NCV as received) | |||||||
| Nominal heat output | Pnom | 3,6 | kW | Useful efficiency at nominal heat output | ηth,nom | < 65 % | % | |
| Auxiliary electricity consumption | Type of heat output/room temperature control (select one) | |||||||
| At nominal heat output | elmax | kW | single stage heat output, no room temperature control | no | ||||
| At minimum heat output | elmin | kW | two or more manual stages, no room temperature control | yes | ||||
| In standby mode | elSB | kW | with mechanic thermostat room temperature control | no | ||||
| with electronic room temperature control | no | |||||||
| with electronic room temperature control plus day timer | no | |||||||
| with electronic room temperature control plus week timer | no | |||||||
| Other control options (multiple selections possible) | ||||||||
| room temperature control, with presence detection | no | |||||||
| room temperature control, with open window detection | no | |||||||
| with distance control option | no | |||||||
| Permanent pilot flame power requirement | ||||||||
| Pilot flame power requirement (if applicable) | Ppilot | kW | ||||||
| Contact details | Name and address of the supplier: Nordpeis AS, Gjellebekkstubben 11, N-3420 LIERSKOGEN, Norway | |||||||
Declaration of Ecodesign Conformity
This is to declare that Nordpeis Salzburg C Convection complies to the Ecodesign requirements described in the Commission Regulation, Directive 2015/1185 of the European Parliament and of Council 2009/125/WE for local solid fuel space heaters.
| Emission from combustion: | ||
| Carbon monoxide at 13% O2 | CO: | < 1500 mg / m3 |
| Oxygen nitride NOx at 13% O2 | NOx : | < 200 mg / m3 |
| Organic Gaseous Carbon at 13% O2 | OGC : | < 120 mg / m3 |
| Particulate Matter at 13 O2 | PM : | < 40 mg / m3 |
| Energy efficiency | > 65 % | |
The undersigned is responsible for the manufacture and conformity with declared performance.
Nordpeis AS, Gjellebekkstubben 9-11, N-3420 LIERSKOGEN, Norway





















