Nordpeis S-31A Exclusive Wood Burning Stove

Figures
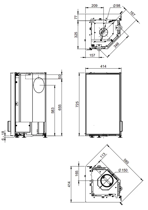
FIG 1=mm
FIG 2
![]() | =Firewall |
![]() | =Combustible material |
![]() | =Surround |

FIG 3
FIG 4
FIG 4 a
FIG 5
FIG 5 a
FIG 5 b
Individual surround – optional
FIG 6
FIG 7
FIG 8
FIG 9


FIG 10
FIG 11

FIG 11 a

FIG 11 b

FIG 11 c

FIG 11 d

FIG 12

FIG 13
PLASSERING AV SERIENUMMER / POSITION OF THE SERIAL NUMBER PLACERING AV SERIENUMMER / SARJANUMERON SIJAINTI POSITION DU NUMÉRO DE SÉRIE / POSITION DER SERIENNUMMER
IMPORTANT SAFETY PRECAUTIONS!
- Please follow the installation manual when connecting your stove / fireplace to the chimney / flue pipe. If connected differently from instruction please, consider the heat radiation from the flue pipe to the surrounding materials.
- Before use, please carefully read the user manual and follow the instructions.
- Integrated or defined convection openings may never be reduced or partially obstructed. This may lead to overheating, which again can cause house fire or serious damage to the product.
- Use only designated fire starters. Never use gasoline, diesel or other liquids to start the fire. This may cause explosions!
- Never use other fuel than natural dry chopped wood. Briquettes, peat, coke, coal and waste from construction materials develops far higher temperatures and emissions than natural wood. Since your product has been designed for use with natural wood only, other fuels may damage the product, chimney and surrounding constructions.
- In case of damage to glass or door gasket, all use of the product must be discontinued until the damage has been repaired.
- Products connected to a vented steel chimney must never be operated with open or ajar door other than reloading of wood or shortly during kindling process.
Failure to follow these precautions will leave your warranty void and expose people and property to danger.
Advise: Even if not required in your area, it is always wise to have a qualified stove / fireplace fitter do the installation, or at least the final inspection before use.
Prior to assembling the insert
All our products are tested according to the latest European requirements and also to the Norwegian standard NS 3058 and NS 3059, which include particle tests. However, several European countries have local regulations for installation of fireplaces, which change regularly. It is the responsibility of the client that these regulations are complied with in the country/region where the fireplace is installed. Nordpeis AS is not responsible for incorrect installation.
Important to check (please note that this list is not exhaustive)
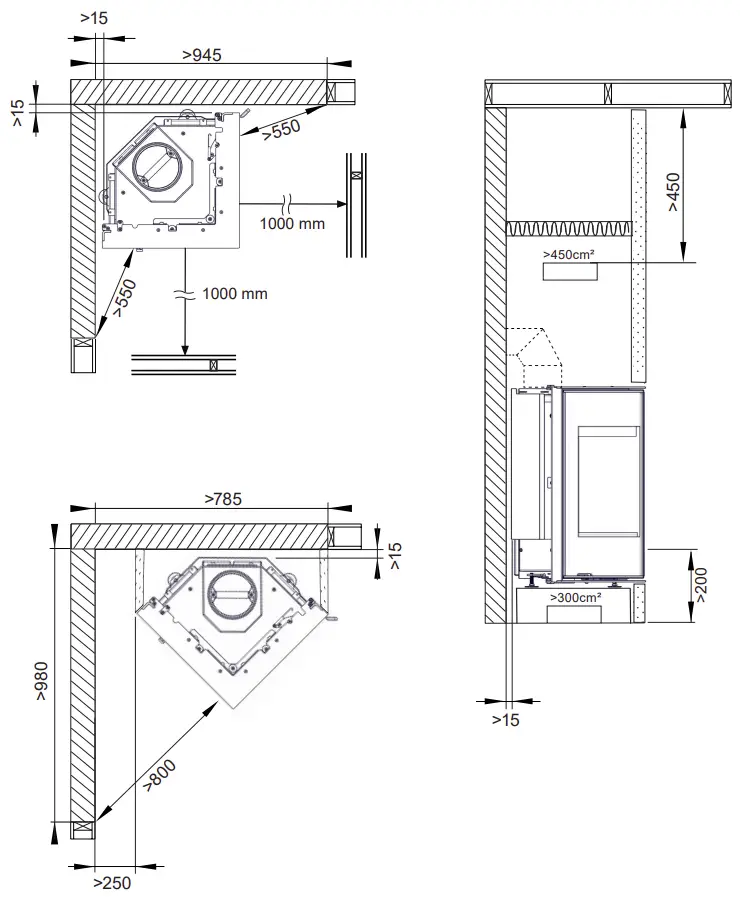
- distance from firebox to combustible/flammable materials
- insulation materials/requirements between fireplace surround and back wall
- size of floor plates in front of fireplace if required · flue connection between firebox and chimney · insulation requirements if flue passes through a
flammable wall, - an access for cleaning the appliance, the flue gas
connector, the chimney flue must be provided
Chimney draft
Compared with older models, the clean burning inserts of today put significantly higher demands on the chimney. Even the best insert will not work properly if the chimney does not have the right dimensions or is not in good working order. The draught is mainly controlled by gas temperature, outside temperature, air supply as well as the height and inner diameter of the chimney. The diameter of the chimney should never be less than that of the flue/chimney collar. For draft requirements at nominal heat output, see technical table
The draught increases when
- The chimney becomes warmer than the outside air
- The active length of the chimney over the hearth increases
- There is good air supply to the combustion
It can be difficult to obtain the right draught conditions in case the chimney is too large relative to the insert, as the chimney does not heat up well enough. In such cases you may want to contact professional for evaluation of possible measures. Draught that is too strong can be controlled with a damper. If necessary, contact a chimney sweeper.
Attention! Adverse flue draught or adverse weather conditions, e. g. mist, wind etc., may interfere the necessary flue draught. This should be checked before lightening the fireplace. If there is no necessary flue draught in the chimney, the use of the fireplace should be avoided.
Appliance can be connected to shared flue gas pipe system. In case of simultaneous operation with other heating appliances, there must be sufficient combustion air provided.
| Warning! In case of the appliance connected to shared flue gas pipe system – the Self Closing Door system must be operational. |
Air supply (FIG AIR_mm)
A set for fresh air supply is available as accessory. This will ensure that the air supply to the combustion chamber is less affected by ventilation systems, kitchen fans and other factors which can create a down-draught in the room. In all new construction, we strongly recommend that it is designed and prepared for direct supply of outside air. In older houses, the use of fresh air supply set is also recommended. Insufficient air supply can cause down-draught and thereby low combustion efficiency and the problems that this entails soot stains on the glass, inefficient use of the wood and a soot deposits in the chimney.
| Warrning! Extractor fans when operating in the same room or space as the appliance may cause problem. |
| Warning! Keep the air intakes, supplying combustion air, free from blockage. If the requirements for ventilation are NOT complied with, the product can overheat. This can cause a fire. |
For your own safety, comply with the assembly instructions. All safety distances are minimum distances. Installation of the insert must comply with the current rules and regulations of the country where the product is installed. Nordpeis AS is not responsible for wrongly assembled inserts.
Subject to errors and changes.
For the latest updated version go to www.nordpeis.com.
Technical information
The inserts from Nordpeis have secondary combustion and are clean burning. The combustion takes place in two phases first the wood burns and then the gases from the fumes are lit by the hot air. This ensures that these new inserts have minimal emissions of soot particles and unburnt gases (such as CO) and are thus better for the environment. Clean burning inserts require a small amount of wood in order to obtain a good heat output. Use exclusively clean and dry wood. We recommend seasoned hardwood with a maximum moisture content of 20%.
| Insert | S-31A Exclusive |
| Material | Steel |
| Surface treatment door/doorframe | Heat resistant varnish |
| Weight of insert | 85 kg |
| Draught system | Air vent control |
| Combustion system | Secondary combustion (clean burning) |
| Combustion air consumption (m³/h) | 10-30 |
| Operating range, clean burn kW | 3-8 kW |
| Flue outlet | Top and rear |
| Flue collar (Ø mm) | Outer 150 |
| *alternate versions exists due to nationa requirements | |
| Flue gas temperature at flue con- nector (°C) | 320 |
| Flue gas mas flow (g/s) | 5,2 |
| Draft at flue connector recommended (Pa) | >12 |
| Data according to EN 13229 | |
| Area if convection air vent under insert (cm2) | 300 |
| Area of convection air vent over insert (cm2) | 450 |
| Minimum distance conv. air outlet to ceiling (mm) | 450 |
| Nominal heat output (kW) | 6 |
| Efficiency (%) | > 65 % |
| CO @ 13% O2 | <1500 mg/m³ |
| Flue gas temperature | 277 °C |
| Fuel recommended: | Wood logs |
| Fuel length recommended (cm) | 25 |
| Maximum fuel length (cm) | 30 |
| Fuel charge (kg) | 1,4 |
| Refueling interval (min.) | 50 |
| Opening of the air vent control | 33% |
| Operation | Intermittent* |
Distance to combustible material
Firewall.
Ensure that the safety distances are respected (FIG 2).
When connecting a steel chimney to the top outlet use the security distances required from the manufacturer.
Floorplate
Please follow the rules and regulations regarding floorplates in your country
| Important! When placing the insert on a combustible floor, a steel plate of at least 0.7mm must cover the entire floor surface inside the surround. Any flooring made of combustible material, such as linoleum, carpets etc. must be removed from underneath the steel plate. |
| The insert expands when in use, and for this reason the insert must NEVER rest on the surround, but have a gap of about 3 mm. The insert must neither rest on the bench plate or against the sides. It is recommended to dry stack the surround in order to adjust the insert prior to perforating the chimney for the flue connection. |
Assembly
Check the packing list to ensure that all loose parts are included.
The door is opened by pulling the handle out FIG 4.
Assembly and adjusting the legs FIG 5
The insert is delivered with adjustable legs. These can be mounted on the insert using the added washers and bolts FIG 5.
Carefully lay the insert on its back. Ensure that the transportation padding is put inside the insert before turning it over, so that the insulating plates in the burn chamber do not fall down and break.
Fasten the screws on to the insert with a 14 mm spanner/wrench.
Adjust the legs (FIG 5) to the desired height before returning the insert to an upright position (do not tilt the insert). The height varies according to the surround.
FIG 6
The amount of air to the combustion is regulated with the air vent control.
FIG 7
The insert is delivered prepared for top connection. If the insert is to be connected at the back, the flue outlet collar must be placed according to FIG 8
FIG 8
Remove the cutout at the back of the radiation shield (A). Remove the flue outlet cover and smoke outlet collar (B). Mount the flue outlet collar on the back outlet and fit the flue outlet cover over the top outlet (C). The insert can now be connected at the back.
FIG 9 Removal of the self closing door mechanism
A. Open the door and tighten the set screw using a 2,5 mm Allen Key.
B. Carefully push the door upwards Loosen the set screw with the Allen key.
C. The door can now be lowered back into place.
Attention! In some countries removing the self closing mechanism is not allowed. Make sure you follow the local rules and regulations regarding self closing doors.
Connection of the flue
Please be aware when connecting the 150 mm flue to the smoke dome that the flue is placed outside the flue outlet collar. *Alternative versions exists due to National requirements.
For the flue connection to the chimney, follow the recommendations from the chimney manufacturer.
Operational control
When the insert is in an upright position, and prior to mounting the surround, control that all functions are easy to manoeuvre and appear satisfactory.
Air vent control (Up in the centre FIG 6) | |
| Right | Closed |
| Left | Completly open |
Painting the Surround
It is recommended to use the insert a few times in order to let the varnish harden before any masking and painting. Only use water based breathing paint and a designated masking tape. Carefully remove the tape in order not to damage the varnish.
Lighting the fire for the first time
When the insert is assembled and all instructions have been observed, a fire can be lit. Be careful with touching the insert the first few times it is used as it may damage the varnish. This is only true when the insert is new and the varnish has not yet heat cured.
Avoid strong hits when inserting logs into the burn chamber, in order not to damage the Thermotte plates. Be aware that humidity in the insulation plates can cause slow combustion at initial firing, which will be resolved as the humidity evaporates. Possibly leave the door slightly open the first 2-3 times that the insert is used.
It is advisable to air well when lighting a fire for the first time as the varnish on the insert will release some smoke or smell. This smoke and smell will disappear and are not hazardous. When lighting the fire for the first time we also recommend opening/shutting the door regularly the first two hours to aviod the door gasket sticking to the varnish
Lighting a fire
Kindling wood
Finely chopped (diameter of 3-5cm)
Length: 25-30cm
Ca. amount pr lighting : 2,1 kg (beech)
Open the vent control (FIG 6). Insert small dry pieces of wood, ignite and ensure that the flames have a good grip of the wood. Close the door when the flames are stable and the chimney is warm. If it is not closed the insert and chimney may overheat. The air supply is then regulated with the vent control.
When there is a glowing layer of coal, new wood logs can be inserted. Remember to pull the hot ember forward in the insert when inserting new logs so that the wood is ignited from the front. The vent control should be opened each time new logs are inserted so that the flames get a good grip. The fire should burn with bright and lively flames.
Reload size
Chopped wood – 2 logs (diametre of 6-9cm)
Length: 25-30cm
Normal load size. 1,64 kg /h
(Max load size: 3 kg/h)
Attenttion! Using the insert with low combustion effect increases the pollution as well as the risk of a fire in the chimney. Never allow the insert or flue to become glowing red. Turn off the vent control should this happen. Regulation of the vent control takes some experience, but after a little while you will find a natural rhythm for the fire.
| IMPORTANT! Always remember to open the air vent control (preferably also the door) before new wood logs are inserted into a hot burn chamber. Let the flames get a good grip on the wood before the air control setting is reduced. When the draught in the chimney is low and the vent is closed, the gas from the firewood can be ignited with a bang. This can cause damages to the product as well as the immediate environment. |
Maintenance
Cleaning and inspection
The insert should be inspected thoroughly and cleaned at least once per season (possibly in combination with the sweeping of the chimney and chimney pipes). See also FIG 11 – FIG 11a – access to the chimney. Ensure that all joints are tight and that the gaskets are rightly positioned. Exchange any gaskets that are worn or deformed. Remember that the insert must always be cold when inspected. The inspection shall be performed by the Professional servicemen.
ATTENTION! In order to secure access to service the air inlet regulator, make sure to place a suitable service hatch or vent.

Ashes
The ashes should be removed with regular intervals. Be aware that the ashes can contain hot ember even several days after the fire is finished. Use a container of non-combustible material to remove the ashes. It is recommended to leave a layer of ashes in the bottom as this further insulates the burn chamber. Take care with the Thermotte plates when the ashes are removed, particularly when using an ash shovel, so as not to damage them.
Thermotte™ plates
The insulation plates (Thermotte – FIG 3) are classified as “wear and tear” parts which will require to be exchanged after some years. The wear time will depend on the individual use of your product. Nordpeis offers a one-year warranty on these parts. After this, replacements can be purchased.
In case it is necessary to take out the insulation plates, this is done in followieng order.
A. Right side plate
B. Smoke baffle plate FIG 11 – 11a
C. Back plate
D. Left side plate E. Front bottom plate + Bottom plate
Please note: Wood logs that are too long can cause additional strain and crack the plates, due to the tension created between the side plates.
Door and glass
Should there be any soot on the glass it may be necessary to clean it. Use dedicated glass cleaner. (Attention! Be careful, detergents can damage the varnish and the gaskets). If different detergents are used they may damage the glass. A good advice for cleaning the glass is to use a damp cloth or kitchen roll paper and apply some ash from the burn chamber. Rub around the soot on the glass and finish off with a piece of clean and damp kitchen roll paper.
Attention! Only clean when the glass is cold.
Check regularly that the transition between the glass and the door is completely tight. Periodically, it may be necessary to change the gaskets on the door to ensure that the burn chamber is air tight and working optimally. These gaskets can be bought as a set including ceramic glue.
CERAMIC GLASS CANNOT BE RECYCLED
Ceramic glass should be disposed of as residual waste, together with pottery and porcelain
Recycling of the ceramic glass
Ceramic glass cannot be recycled. Old glass, breakage or otherwise unusable ceramic glass must be discarded as residual waste. Ceramic glass has a higher melting temperature, and can therefore not be recycled together with glass. If mixed with ordinary glass, it would damage the raw material and could, in worst case end the recycling of glass. It is an important contribution to the environment to ensure that ceramic glass does not end up with the recycling of ordinary glass.
Packaging recycle
The packaging accompanying the product should be recycled according to national regulations.
Warranty
| Warning! Use replacement parts recommended only by the Manufacturer. |
| Warning! Any unauthorized modification of the appliance without written permission of the Manufacturer are prohibited. |
For detailed description of the warranty conditions see the enclosed warranty card or visit our website www.nordpeis.com The CE mark is placed on the side of the insert.
Advice on lighting a fire
The best way to light a fire is with the use of lightening briquettes and dry kindling wood. Newspapers cause a lot of ash and the ink is damaging for the environment. Advertising flyers, magazines, milk cartons and similar are not suitable for lighting a fire. Good air supply is important at ignition. When the flue is hot the draught increases and door can be closed.
| Warning: NEVER use a lighting fuel such as petrol, kerosene, alcohol or similar for lighting a fire. This could cause injury to you as well as damaging the product. |
| Warning: In order to avoid injuries, please be aware that the surfaface may become hot during operation.be hot and that extra care need to be taken to avoid skin burn. |
Use clean and dry wood with a maximum moisture content of 20%. Humid wood requires a lot of air for the combustion, as extra energy/heat is required for drying the humid wood and the heat effect is therefore minimal. This in addition creates soot in the chimney with the risk of creosote and chimney fire.
| In case of a chimney fire, close the door and air supplies on the stove / insert and call the Fire Brigade. After a chimney fire the chimney must in all cases be inspected by an authorized chimney sweeper before you use the appliance again. |
Storing of wood
In order to ensure that the wood is dry, the tree should be cut in winter and stored during the summer, covered and in a location with adequate ventilation. The wood pile must never be covered by a tarpaulin lying on the ground as the tarpaulin will then act as a sealed lid that will prevent the wood from drying. Always keep a small amount of wood indoors for a few days before use so that moisture in the surface of the wood can evaporate.
Usage
Not enough air to the combustion may cause the glass to soot. Hence, supply the fire with air just after the wood is added, so that the flames and gases in the combustion chamber are properly burnt. Open the air vent and have the door slightly ajar in order for the flames to establish properly on the wood.
Note that the air supply for the combustion also can be too large and cause an uncontrollable fire that very quickly heats up the whole combustion chamber to an extremely high temperature (when using with a closed or nearly closed door). For this reason you should never fill the combustion chamber completely with wood.
| Warning! The Firebox shall to be always closed except during ignition, refueling and ash removal. |
Choice of fuel
All types of wood, such as birch, beech, oak, elm, ash and fruit trees, can be used as fuel in the insert. Wood species have different degrees of density – the more dense the wood is, the higher the energy value. Beech, oak and birch has the highest density.
Attention! We do not recommend using fuel briquettes/ compact wood in our products. Use of such fuel may cause the product to overheat and exceed the temperatures determined safe. Burning briquettes/ compact wood is done so at your own risk and only small amounts (max 1/3 of normal load) should be used for each load.
| Warning: NEVER use impregnated wood, painted wood, plywood, chipboard, rubbish, milk cartons, printed material or similar. If any of these items are used as fuel the warranty is invalid. Common to these materials is that during combustion they can form hydrochloric acid and heavy metals that are harmful to the environment, yourself and the insert. Hydrochloric acid can also corrode the steel in the chimney or masonry in a masonry chimney. Also, avoid burning with bark, sawdust or other extremely fine wood, apart from when lighting a fire. This form of fuel can easily cause a flashover that can lead to temperatures that are too high. |
| Warning: Make sure the insert is not overheated – it can cause irreparable damage to the product. Such damage is not covered by the warranty. |
Source “Håndbok, effektiv og miljøvennlig vedfyring” by Edvard Karlsvik SINTEF Energy Research AS and Heikki Oravainen, VTT.
| Error | Explanation | Solution |
|
No draught | The chimney is blocked. | Contact a chimney sweeper / dealer for more information or clean the flue, smoke baffle and burn chamber. |
| The flue is sooty or there is accumulated soot on the smoke baffle. | ||
| The smoke baffle is wrongly positioned. | Verify the assembly of the smoke baffle – see assembly instructions. | |
|
The insert release smoke when lighting the fire and during combustion | Downdraught in the room caused by no draught, that the house is too “air tight”. | Light the fire with an open window. If this helps, more/bigger vents must be installed in the room. |
| Downdraught in the room – caused by extractor and/or central ventilation system that pulls too much air out of the room. | Turn off/regulate extractor and/or other ventilation. If this helps, more vents must be installed. | |
| The flues from two fireplaces/stoves are connected to the same chimney at the same height. | One flue must be repositioned. The height difference of the two flue pipes must be of at least 30 cm. | |
| The flue is in a declining position from the smoke dome to the chimney. | The flue must be moved so that there is an inclination of at least 10º from smoke dome to chimney. Possibly install a smoke suction device*. | |
| The flue is too far into the chimney. | The flue must be reconnected so that it does not enter into the chimney but ends 5 mm before the chimney inner wall. Possibly install a smoke suction device*. | |
| Soot hatch in the basement or attic that is open and thus creating a false draught. | Soot hatches must always be closed. Hatches that are not tight or are defected must be changed. | |
| Damper/top draught vents or doors on fireplaces that are not in use are open and create a false draught. | Close damper, doors and top draught vents on fireplaces that are not in use. | |
| An open hole in the chimney after that a fireplace has been removed, thus creating a false draught. | Holes must be completely sealed off with masonry. | |
| Defect masonry in the chimney, e.g. it is not airtight around the flue pipe entry and/or broken partition inside the chimney creating a false draught. | Seal and plaster all cracks and sites that are not tight. | |
| The cross-section in the chimney is too large which results in no or very low draught. | The chimney must be refitted, possibly install a smoke suction device*. | |
| The cross-section in the chimney is too small and the chimney cannot carry out all the smoke. | Change to a smaller fireplace or build new chimney with a larger cross section. Possibly install a smoke suction device*. | |
| The chimney is too low and hence a poor draught. | Increase the height of the chimney and/or install a chimney cap/ smoke suction device*. | |
| The fireplace releases smoke inside when it is windy outside. | The chimney is too low in relationship to the surrounding terrain, buildings, trees etc. | Increase the height of the chimney and/or install a chimney cap/ smoke suction device*. |
| Turbulence around the chimney due to the roof being too flat. | Increase the height of the chimney and/or install a chimney cap/ smoke suction device*. | |
| The fireplace does not heat sufficiently. | The fireplace combustion receives too much oxygen due to a leakage under the lower border of the insert or too strong chimney draught. Difficult to regulate the combustion and the wood burn up too quickly. | Any possible leakage must be sealed off. A draught regulator or possibly a damper can reduce the chimney draught. NB! A leakage of only 5 cm2 is enough for 30% of the heated air to disappear. |
|
Too much draught | The smoke buffer is wrongly positioned. | Verify the positioning of the smoke buffer – see assembly instructions. |
| In case of using oven-dried wood, this requires less air supply than when using normal wood. | Turn down the air supply. | |
| The gaskets around the door are worn and totally flat. | Replace the gaskets, contact your dealer. | |
| The chimney is too large. | Contact chimneysweeper or other professional for more details. | |
|
The glass is sooty | The wood is too wet. | Only use dry wood with a humidity of maximum 20%. |
| The air vent control is closed too tightly. | Open the air vent control to add air to the combustion. When new wood logs are inserted all vent controls should be completely opened or the door slightly opened until the flames have a good take on the wood. | |
|
White glass | Bad combustion (the temperature is too low). | Follow the guidelines in this user guide for correct combustion. |
| Using wrong material for combustion (such as: painted or impregnated wood, plastic laminate, plywood etc). | Ensure to use only dry and clean wood. | |
| Smoke is released when the door is opened | A levelling out of pressure occurs in the burn chamber. | Open the air vent control for about 1 min before opening the door – avoid opening the door too quickly. |
| The door is opened when there is a fire in the burn chamber. | Open the door carefully and/or only when there is hot ember. | |
| White smoke | The combustion temperature is too low. | Increase the air supply. |
| The wood is humid and contains water damp. | Ensure to use only dry and clean wood. | |
| Black or grey/ black smoke | Insufficient combustion. | Increase the air supply. |
Declaration of Ecodesign Conformity
This is to declare that Nordpeis S-31A Exclusive complies to the Ecodesign requirements described in the Commission Regulation, Directive 2015/1185 of the European Parliament and of Council 2009/125/WE for local solid fuel space heaters.
Emission from combustion: | |
| Carbon monoxide at 13% O2 | CO: < 1500 mg / m3 |
| Oxygen nitride NOx at 13% O2 | NOx : < 200 mg / m3 |
| Organic Gaseous Carbon at 13% O2 | OGC : < 120 mg / m3 |
| Particulate Matter at 13 O2 | PM : < 40 mg / m3 |
| Energy efficiency | > 65 % |
The undersigned is responsible for the manufacture and conformity with declared performance.

Stian Varre, CEO Nordpeis AS
Technical parameters for solid fuel local space heaters
| Model identifier(s): S-31A Exclusive | ||||||||
| Indirect heating functionality: no | ||||||||
| Direct heat output: 6 (kW) | ||||||||
| Fuel | Preferred fuel (only one): | Other suitable fuel(s): | ||||||
| Wood logs with moisture content ≤ 25 % | yes | no | ||||||
| Compressed wood with moisture content < 12 % | no | no | ||||||
| Other woody biomass | no | no | ||||||
| Non-woody biomass | no | no | ||||||
| Anthracite and dry steam coal | no | no | ||||||
| Hard coke | no | no | ||||||
| Low temperature coke | no | no | ||||||
| Bituminous coal | no | no | ||||||
| Lignite briquettes | no | no | ||||||
| Peat briquettes | no | no | ||||||
| Blended fossil fuel briquettes | no | no | ||||||
| Other fossil fuel | no | no | ||||||
| Blended biomass and fossil fuel briquettes | no | no | ||||||
| Other blend of biomass and solid fuel | no | no | ||||||
| Characteristics when operating with the preferred fuel | ||||||||
| Seasonal space heating energy efficiency η s > 65 % | ||||||||
| Energy Efficiency Index (EEI): 107 | ||||||||
| Item | Symbol | Value | Unit | Item | Symbol | Value | Unit | |
| Heat output | Useful efficiency (NCV as received) | |||||||
| Nominal heat output | Pnom | 6 | kW | Useful efficiency at nominal heat output | ηth,nom | > 65 % | % | |
| Auxiliary electricity consumption | Type of heat output/room temperature control (select one) | |||||||
| At nominal heat output | elmax | kW | single stage heat output, no room temperature control | no | ||||
| At minimum heat output | elmin | kW | two or more manual stages, no room temperature control | yes | ||||
| In standby mode | elSB | kW | with mechanic thermostat room temperature control | no | ||||
| with electronic room temperature control | no | |||||||
| with electronic room temperature control plus day timer | no | |||||||
| with electronic room temperature control plus week timer | no | |||||||
| Other control options (multiple selections possible) | ||||||||
| room temperature control, with presence detection | no | |||||||
| room temperature control, with open window detection | no | |||||||
| with distance control option | no | |||||||
| Permanent pilot flame power requirement | ||||||||
| Pilot flame power requirement (if applicable) | Ppilot | kW | ||||||
| Contact details | Name and address of the supplier: | |||||||


Nordpeis AS, Gjellebekkstubben 11, N-3420 LIERSKOGEN, Norway
www.nordpeis.no

References
Allt du behöver till öppen spis och kaminer | Nordpeis
operation.be
The largest fireplace supplier in Norway | Nordpeis
Kaminanlage und Kaminofen | Wärmende Innovation | Nordpeis
Nordpeis Finland | Nordpeis
Cheminées et poêles | Un design chaleureux | Nordpeis
Størst på peis - finn din favoritt | Nordpeis




















