Nordpeis PN-SAL05-100 Salzburg S Corner Out Smallest Heat Retaining Fire

General information about heat accumulating fireplaces
Heat-accumulating fireplaces differ from other fireplaces in that they are intended to provide moderate heat for prolonged periods with a limited time of burning. Conventional fireplaces give off strong heat during the burning period but with a very limited cool-down period. The heat-accumulating fireplaces from Nordpeis have a long duct system where the heat developed in the combustion chamber passes through the duct system before it exits through the chimney. The heat from the gases is absorbed by the material surrounding the smoke ducts, and by the time the smoke exits through the chimney. The efficiency of a well-constructed heat-accumulating fireplace is thus far better than the efficiency of a conventional fireplace. A heat-accumulating fireplace can keep an even temperature throughout the day with only one heating cycle.
Double-action damper:
The stove is fitted with a double-action damper and controls two functions: bypass and chimney damper. When the damper rod is pulled all the way out (right-hand operation), the flue gasses will bypass the canal system and exit through the chimney. This function is used when lighting a fire. When the stove and the chimney has reached operating temperature after 10 – 30 minutes the damper rod should be pushed halfway in until a “click” is heard. In this position, the by-pass damper is closed and the flue gasses are forced through the stove’s canal system which is absorbing the heat of the flue gasses before it is released to the chimney. The bypass damper should also be opened before opening the door for re-fuelling wood, and then closed again.
WARNING: Using the stove over prolonged periods with open bypass damper may expose the chimney to higher temperatures that it is design for By pushing the damper rod all the way in (right-hand operation), both bypass- and the chimney damper will be closed. This closes off the canal system from the chim-ney, preventing the heat accumulated in the stove to be lost through the chimney. This function should never be used before the fire is out and only a bit of embers are left in the stove.
WARNING: Closing the chimney damper too early can result in flue gasses entering the room and cause carbon monoxide poisoning.
Air Vent
When burning in heat-accumulating fireplaces the air vent is traditionally kept open to a maximum. This ensures optimal combustion and minimises carbon deposits in the smoke duct system. In addition, it makes it easier to keep the glass clean during intensive
burning. However, should one wish for a longer burn period and slower flames, the air vent is adjusted and reduced. Salzburg is equipped with secondary combustion technology, which can normally only be found on modern fireplaces. This ensures clean combustion and high efficiency, even at lower loads.
Cleaning the Smoke Duct System
When the fireplace is used every day throughout the heating season, we recommend that the smoke duct system is swept once yearly. This is to maintain the draught and efficiency. Soot isolate the ducts and thus lower the efficiency. One can also notice that the draught is reduced and that the flames are difficult to control with the air vent function. Remember that the fireplace must always be cold before it is swept/inspected. In order to clean the ducts, remove the Thermotte baffle plate and the two Thermotte side panels. Insert cleaning brush both up-and downwards. Soot will collect in the bottom and can be removed with an ash-cleaner by opening the Thermotte lid in the floor of the combustion chamber. The flue pipe can be accessed through the door and the center canal for the basic version. If you have a hot-plate, remove the hotplate for direct access the flue pipe.
Ash
Optional. The ashes must be emptied periodically. Please note that the ash may contain hot embers even several days after the fire has ceased. Use a container of non-combustible material to remove the ashes.
Weight
The homeowner must ensure that the floor can withstand the load of the total weight of the product.
Firewall
Freestanding fireplaces can be installed without a firewall. Observe all safety distances to combustible materials.
Connection to Chimney
Follow specifications from the chimney manufacturer for connection to the chimney. Dry stack the fireplace for accurate height and positioning of the flue/chimney connection. The product is not compatible with top connected concrete chimney. The maximum weight of the steel chimney (top connection) is 300kg. By top connection to steel chimney, we refer to the respective manufacturer’s installation instructions. Requirements for Floor Plate by Combustible Floor Follow the requirements for floor plates (stone, steel, etc.) that apply in the country that the product is installed in.
Glue
The outer elements should be glued with the acrylic which is included. Make sure that all the surfaces that are to be glued are free of dust. The surfaces can be cleaned for better adhesion. Ensure that the surfaces are dry before spreading on the acrylic. Once the fireplace is assembled, fill the joints with acrylic and even it out with a sponge or finger and some soapy water, in order to have a clear indentation between the elements (FIG Z).
Minor Dents
Transportation and handling can cause minor dents to the product. This can be repaired with the powder glue which is included. For a perfect result you can fill and grind with a suitable filler on top of the powder glue. Fill smaller cracks and uneven surfaces with a float or a brush. If the dent is deep, it is recommended to fill in several stages to avoid sinking. Even out with e.g. a damp sponge or a float.
Painting
The surface of the chimney surround is developed to be painted without priming work. Use latex or acrylic based paint (emulsion paint), or cement-based textured paint. In the unlikely case that there are some irregularities in the surface, these can be filled with the acrylic which is included, or a light and appropriate filling material. Any surface that has been filled needs to be smoothened with fine sand paper.
Tiles
The stove may also be partially or completely covered with tiles or natural stone of your choice. Prior to fixing the tiles or natural stones we recommend that the stove is dampened and covered with tile glue and fiber mesh. Please note that the adhesive and mortar must set before burning in the fireplace. Follow the instructions from the mortar/adhesive producers. Regardless of surface treatment it is advantageous to mask the entire door frame to avoid having to clean it later. Please note that the air gap between the surround and the door frame must not be filled with glue, mortar or similar. Thermotte™ The insulation plates (Thermotte) are classified as “wear and tear” parts which will require to be exchanged after some years. The wear time will depend on the individual use of your product. Nordpeis offers a one-year warranty on these parts. After this, replacements can be purchased.
Please note: Wood logs that are too long can cause additional strain and crack the plates, due to the tension created between the side plates.
Cracks in the i PowerStone
Due to thermal effects there may be small cracks / fissures in the PowerStone. This is natural and does not affect the product’s function or safety.
Warranty
Warning!
Use replacement parts recommended only by the Manufacturer.
Warning!
Any unauthorized modification of the appliance without written permission of the Manufacturer are prohibited.
For detailed description of the warranty conditions see the enclosed warranty card or visit our website
www.nordpeis.com
Recycling of the refractory glass
Refractory glass cannot be recycled. Old glass, breakage or otherwise unusable refractory glass, must be discarded as residual waste. Refractory glass has a higher melting temperature, and can therefore not be recycled together with glass. In case it would be mixed with ordinary glass, it would damage the raw material and could, in worst case end the recycling of glass. It is an important contribution to the environment to ensure that refractory glass does not end up with the recycling of ordinary glass.
CERAMIC GLASS CANNOT BE RECYCLED
Ceramic glass should be disposed of as resid-ual waste, together with pottery and porcelain
Packaging Recycle
The packaging accompanying the product should be recycled according to national regulations.
Door and Glass
Should there be any soot on the glass it may be necessary to clean it. Use dedicated glass cleaner, as other detergents may damage the glass/gaskets. (NB! Be careful, even dedicated glass cleaner can damage the varnish on the door frame and gaskets). A good advice for cleaning the glass is to use a damp cloth or kitchen roll paper and apply some ash from the burn chamber. Rub around the ash on the glass and finish off with a piece of clean and damp kitchen roll paper. NB! Only clean when the glass is cold.
Periodically, it may be necessary to change the gaskets on the door to ensure that the burn chamber is air tight and working optimally. These gaskets can be bought as a set, usually including ceramic glue.
Combustion pace
A heat storing product should not be burned in too aggressively as this may damage the product. In order to get the most out of a heat storing product, it is therefore important to optimise the combution pace and the size of the loads. Read the combustion rates and load sizes that apply to your product.
Advice on Lighting a Fire
The best way to light a fire is with the use of lightening briquettes and dry kindling wood. Newspapers cause a lot of ashes and the ink is damaging for the environment. Advertising flyers, magazines, milk cartons and similar are not suitable for lighting a fire. Good air supply is important at ignition. When the flue is hot the draught increases and door can be closed.
Warning: In order to avoid injuries, please be aware that the surfaface may become hot during operation and that extra care need to be taken to avoid skin burn.
Warning: NEVER use a lighting fuel such as petrol, kerosene, alcohol or similar for lighting a fire. This could cause injury to you as well as damaging the product.
Use clean and dry wood with a maximum moisture content of 20% and minimum 15%. Humid wood requires a lot of air for the combustion, as extra energy/heat is required for drying the humid wood and heat effect is therefore minimal. In addition this creates soot in the chimney with the risk of creosote and chimney fire. In case of a chimney fire, close the door and air supplies on the stove / insert and call the Fire Brigade. After a chimney fire the chimney must in all cases be inspected by an authorized chimney sweeper before you use the appliance again.
Storing of Wood
In order to ensure that the wood is dry, the tree should be cut in winter and then stored during the summer, under roof and in a location with adequate ventilation. The wood pile must never be covered by a tarpaulin which is lying on the ground as the tarpaulin will then act as a sealed lid that will prevent the wood from drying. Always keep a small amount of wood indoors for a few days before use so that moisture in the surface of the wood can evaporate.
Burning
Not enough air to the combustion may cause the glass to soot. Hence, supply the fire with air just after the wood is added, so that the flames and gases in the combustion chamber are properly burnt off. Open the air vent and have the door slightly ajar in order for the flames to establish properly on the wood. Note that the air supply for the combustion also can be too large and cause an uncontrollable fire that very quickly heat up the whole hearth to an extremely high temperature (when burning with a closed or nearly closed door). For this reason you should never fill the combustion chamber completely with wood.
Warning! The Firebox shall to be always closed except during ignition, refueling and ash removal.
Lighting a fire
- Kindling wood
- Finely chopped (diameter of 3-5cm)
- Length: 15-25cm
- Ca. amount pr lighting : 1,35 kg
Place the air vent control in ignition mode – maximum to the right. Set the damper in by-pass mode pulling the lever out (right hand operation) – See FIG 18. For the lever left hand placement see FIG 18a. Insert small, dry pieces of wood, ignite and ensure the flames have taken proper hold of the wood. When the flames are stable and the chimney is warm, pull the air control out of the ignition mode turning left, when click sound is felt and heard, the ignition air is closed. After 15-20 minutes from starting fire set the damper in normal work mode – See FIG 18. Smoke starts circu-lating in the ducts and heat from it will be passed and stored in the Power Stone core. When there is a glowing layer of ash, new wood logs can be inserted. Pull the hot ember to the front of combustion chamber when inserting new logs so that the wood is ignited from the front. Place first layer of wood logs perpendicular to the front. The fire should burn with bright and lively flames.
Reload size
- Chopped wood (diametre of 6-9cm)
- Length: 23-25cm
- Normal load size. 1,76 kg /h
When the fire end set the damper in warm retaining mode, lever pushed in to the limit (for right hand operation) see FIG 18, in order to store more warmth inside appliance.
Choice of Fuel
All types of wood, such as birch, beech, oak, elm, ash and fruit trees, can be used as fuel in the stove. Wood species have different degrees of hardness – the higher the hardness of the wood, the higher the energy value. Beech, oak and birch havest the highest degree of hardness.
Attention! We do not recommend the use of fuel briquettes / compact wood in our combustion chambers, as these products may develop significantly higher temperature than the combustion chamber can withstand. Burning briquettes / compact wood is at your own risk and can cause invalidity of the warranty.
Warning
NEVER use impregnated wood, painted wood, plywood, chipboard, rubbish, milk cartons, printed material or similar. If any of these items are used as fuel the warranty is invalid. Common to these materials is that they during combustion can form hydrochloric acid and heavy metals that are harmful to the environment, you and the insert. Hydrochloric acid can also corrode the steel in the chimney or masonry in a masonry chimney. Also, avoid burning with bark, sawdust or other extremely fine wood, apart from when lighting a fire. This form of fuel can easily cause a flashover that can lead to temperatures that are too high.
Warning! Make sure the stove is not overheated
- it can cause irreparable damage to the product. Such damage is not covered by the warranty.
Source: “Håndbok, effektiv og miljøvennlig vedfyring” by Edvard Karlsvik SINTEF Energy Research AS and Heikki Oravainen, For your own safety, comply with the assembly instructions. All safety distances are minimum distances. Installation of the fireplace must comply with the current rules and regulations of the country where the product is installed. Nordpeis AS is not responsible for wrongly assembled fireplaces. Subject to errors and changes. For the latest updated version go to www.nordpeis.com
Technical information
| Minimum distances to combustible materials | Back 30mm Side 250mm Ceiling 500mm |
| CO-content of flue gas @ 13%O2 | 0,13% |
| Flue gas temperature | 171 °C |
| Thermal output | – 84996 kJ / 23,6 kWh |
| Thermal storage capacity | 100% after 3,9 hrs 50% after 10,2 hrs 25% after 15,6 hrs |
| Energy efficiency | 84,0% |
| Opening of the air vent control (%) | +/- 40% |
| Nominal heat output during discharge period (100%- 25%) | 2,1 kW |
| Chimney draft | 12 Pa |
| Length of wood logs (max) | 250 mm |
| Weight | 305 kg 64 kg – woodshelf |
| Load size | 1,35 kg |
| Max nr. loads | 5 |
| Loading interval | 45 min |
| Nr. burning cycles per 24 hours | 1 |
Before Installing a new fireplace
Several European countries have local
regulations for installation of fireplaces, which change regularly. It is the responsibility of the client that these regulations are complied with in the country/region where the fireplace is installed. Nordpeis AS is not responsible for incorrect installation.
Important to check (please note that this list is not exhaustive):
- distance from firebox to combustible/flammable materials
- insulation materials/requirements between fireplace surround and back wall
- size of floor plates in front of fireplace if required
- flue connection between firebox and chimney
- insulation requirements if flue passes through flammable wall
Chimney Draft
Compared to older models, the clean burning fireplaces of today put significantly higher demands on the chimney. Even the best fireplace will not work properly if the chimney does not have the right dimensions or is not in good working order. The draught is mainly controlled by gas temperature, outside temperature, air supply as well as the height and inner diameter of the chimney. The diameter of the chimney should never be less than that of the flue/chimney collar. At nominal effect there should be a negative pressure of 12 to 25 Pascal.
The draft increases when:
- The chimney becomes warmer than the outside air
- The active length of the chimney over the hearth increases
- Good air supply to the combustion
It can be difficult to obtain the right draught conditions in case the chimney is too large relative to the fireplace, as the chimney does not heat up well enough. In such cases you should to contact professional for evaluation of possible measures. Draught that is too strong can be controlled with a damper. If necessary, contact a chimney sweeper. The product is type tested and should be connected to a chimney that is dimensioned for the smoke gas temperature indicated in the CE declaration. When necessary, contact a professional in advance
Attention! It is recommended to use a qualified professional when installing a new fireplace.
Air supply (=mm AIR)
A set for fresh air supply is available as an accessory. This will ensure that the air supply to the combustion chamber is less affected by ventilation systems, kitchen fans and other factors which can create a down-draught in the room. In all new constructions, we strongly recommend the product is designed and prepared for direct supply of outside air. In older houses also, the use of fresh air supply set is also recommended. Insufficient air supply can cause poor draught and thereby low combustion efficiency and the problems this entails: soot stains on the glass, inefficient utilisation of the wood and a soot deposits in the chimney.
Warning!
Keep combustion and convection air inlet free from blockage.
Warrning! Extractor fans when operating in the same room or space as the appliance may cause problem.
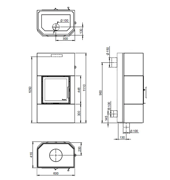
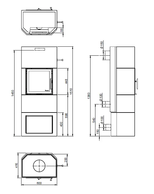
Distance illustration (FIG 1)
- The illustration indicates the approximate centre height of the recess for the flue. Consider possible inclination of the flue prior to making perforating the chimney. Distortions in floors and walls may also influence the height, dry stack therefore the fireplace for accurate height and positioning of the flue/chimney connection. If a fresh air supply set (accessory) is connected through the floor, mark where the hole should be.
Attention! Since the inner core is composed of many layers the connection height may vary by up to a few centimeters from installation to installation.
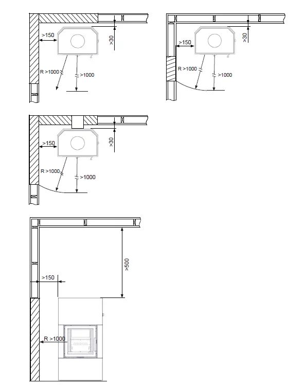
Safety distances (FIG 2)
Ensure that the safety distances are complied with.
IMPORTANT! Drying Process
The fireplace contains a lot of moisture when it is new and no fire has been made before. This mois-ture must be dried out before the fireplace can with-stand the combustion rate given below.
To extract the moisture, follow this procedure:
- Ensure that the air vent control just below the door is completely open
- Ensure that the damper is in ignition mode
- Make a small fire with 0.5-1 kg of kindling wood
- Set the damper in operatin mode, once the flames have taken proper hold of the wood, this will ensure that the hot smoke circulates the ducts.
Important! Let the air vent and damper remain open until the fire is burnt out.
This procedure is repeated twice more, with a 24 hrs gap between each time.
Important! Failure to follow the guidelines for drying can cause the elements to crack.
The air vent control is turned to the right to increase the air supply to Salzburg. The vent is working in two modes.
- When you turn the vent maximally to the right it is in ignition mode.
- If you turn the vent to the left ingnition air is diminish. When you felt a click then ignition air is closed and there is maximum secondary air provided. Futher turning to the left decraese amount of secondary air.

Combustion pace
An accumulating fireplace is designed to absorb thermal energy during a relatively short period of relatively intense heat. When the period of intensive combustion is completed, the product will deliver the accumulated heat over a longer period of time.
Important! Combustion beyond the recommended pace (see table with Technical Information) will result in a higher surface temperatures, which can lead to discoloration of the paint. It can also result in higher than intended temperatures against combustible walls.
Follow the values in the table to find the correct load size and what loading interval is right for your product. When the last load has passed into the ember phase with few embers left, the air vent and damper is closed to prevent heat escaping through the chimney. Remember to open the damper before making a fire in the fireplace. The ignition mode should only be open during when necessary for short periods (10-15 minutes) at the time a fire is lit, and at new loads, in order to prevent smoke or ash escaping into the room. Persistent combustion with an open ignition mode can result in exceeding the maximum allowed chimney temperature.
Due to the length of the smoke gas ducts, the fireplace is heated up somewhat unevenly. After lighting a fire, the front above the door and one of the sides will heat up first. The heat will then be evened out after a few hours of burning and when all the ducts have been warmed up.
Assembly
Important! It is very important that installation instructions are read carefully and followed closely in order to ensure the optimal functioning of the product.
Some advice in case of combustion problems
| Error | Explanation | Solution |
|
No draught | The chimney is blocked | Contact a chimney sweeper / dealer for more information or clean the flue, smoke baffle and burn chamber. |
| The flue is sooty or there is accumulated soot on the smoke baffle | ||
| The smoke baffle is wrongly positioned | Verify the assembly of the smoke baffle – see assembly instructions. | |
|
The stove release smoke when lighting the fire and during combus- tion | Downdraught in the room caused by no draught, that the house is too “air tight”. | Light the fire with an open window. If this helps, more/bigger vents must be installed in the room. |
| Downdraught in the room – caused by extractor and/or central ventilation system that pulls too much air out of the room. | Turn off/regulate extractor and/or other ventilation. If this helps, more vents must be installed. | |
| The flues from two fireplaces/stoves are connected to the same chimney at the same height. | One flue must be repositioned. The height difference of the two flue pipes must be of at least 30 cm. | |
| The flue is in a declining position from the smoke dome to the chimney. | The flue must be moved so that there is an inclination of at least 10º from smoke dome to chimney. Possibly install a smoke suction device*. | |
| The flue is too far into the chimney. | The flue must be reconnected so that it does not enter into the chimney but ends 5 mm before the chimney inner wall. Possibly install a smoke suction device*. | |
| Soot hatch in the basement or attic that is open and thus creating a false draught. | Soot hatches must always be closed. Hatches that are not tight or are defected must be changed. | |
| Damper/top draught vents or doors on fireplaces that are not in use are open and create a false draught. | Close damper, doors and top draught vents on fireplaces that are not in use. | |
| An open hole in the chimney after that a fireplace has been removed, thus creating a false draught. | Holes must be completely sealed off with masonry. | |
| Defect masonry in the chimney, e.g. it is not airtight around the flue pipe entry and/or broken partition inside the chimney creating a false draught. | Seal and plaster all cracks and sites that are not tight. | |
| The cross-section in the chimney is too large which results in no or very low draught. | The chimney must be refitted, possibly install a smoke suction device*. | |
| The cross-section in the chimney is too small and the chimney cannot carry out all the smoke. | Change to a smaller fireplace or build new chimney with a larger cross section. Possibly install a smoke suction device*. | |
| The chimney is too low and hence a poor draught. | Increase the height of the chimney and/or install a chimney cap/ smoke suction device*. | |
| The stove releases smoke inside when it is windy outside. | The chimney is too low in relationship to the surrounding terrain, buildings, trees etc. | Increase the height of the chimney and/or install a chimney cap/ smoke suction device*. |
| Turbulence around the chimney due to the roof being too flat. | Increase the height of the chimney and/or install a chimney cap/ smoke suction device*. | |
| The stove does not heat suf- ficiently. | The combustion receives too much oxygen due to a leakage under the lower border of the stove or too strong chimney draught. Difficult to regulate the combustion and the wood burn up too quickly. | Any possible leakage must be sealed off. A draught regulator or possibly a damper can reduce the chimney draught. NB! A leakage of only 5 cm2 is enough for 30% of the heated air to disappear. |
|
Too much draught | The smoke buffer is wrongly positioned. | Verify the positioning of the smoke buffer – see assembly instruc- tions. |
| In case of using oven-dried wood, this requires less air supply than when using normal wood. | Turn down the air supply. | |
| The gaskets around the door are worn and totally flat. | Replace the gaskets, contact your dealer. | |
| The chimney is too large. | Contact chimneysweeper or other professional for more details. | |
|
The glass is sooty | The wood is too wet. | Only use dry wood with a humidity of maximum 20%. |
| The air vent control is closed too tightly. | Open the air vent control to add air to the combustion. When new wood logs are inserted all vent controls should be completely opened or the door slightly opened until the flames have a good take on the wood. | |
|
White glass | Bad combustion (the temperature is too low) | Follow the guidelines in this user guide for correct combustion. |
| Using wrong material for combustion (such as: painted or impregnated wood, plastic laminate, plywood etc) | Ensure to use only dry and clean wood. | |
| Smoke is relea- sed when the door is opened | A levelling out of pressure occurs in the burn chamber. | Open the air vent control for about 1 min before opening the door – avoid opening the door too quickly. |
| The door is opened when there is a fire in the burn chamber. | Open the door carefully and/or only when there is hot ember. | |
| White smoke | The combustion temperature is too low. | Increase the air supply. |
| The wood is humid and contains water damp. | Ensure to use only dry and clean wood. | |
| Black or grey/ black smoke | Insufficient combustion. | Increase the air supply. |
Technical parameters for solid fuel local space heaters
| Model identifier(s): Salzburg S | ||||||||
| Indirect heating functionality: no | ||||||||
| Direct heat output: 2,1 (kW) | ||||||||
| Fuel | Preferred fuel (only one): | Other suitable fuel(s): | ||||||
| Wood logs with moisture content ≤ 25 % | yes | no | ||||||
| Compressed wood with moisture content < 12 % | no | no | ||||||
| Other woody biomass | no | no | ||||||
| Non-woody biomass | no | no | ||||||
| Anthracite and dry steam coal | no | no | ||||||
| Hard coke | no | no | ||||||
| Low temperature coke | no | no | ||||||
| Bituminous coal | no | no | ||||||
| Lignite briquettes | no | no | ||||||
| Peat briquettes | no | no | ||||||
| Blended fossil fuel briquettes | no | no | ||||||
| Other fossil fuel | no | no | ||||||
| Blended biomass and fossil fuel briquettes | no | no | ||||||
| Other blend of biomass and solid fuel | no | no | ||||||
| Characteristics when operating with the preferred fuel | ||||||||
| Seasonal space heating energy efficiency η s [%]: 84 | ||||||||
| Energy Efficiency Index (EEI): 113,5 | ||||||||
| Item | Symbol | Value | Unit | Item | Symbol | Value | Unit | |
| Heat output | Useful efficiency (NCV as received) | |||||||
| Nominal heat output | Pnom | 2,1 | kW | Useful efficiency at nominal heat output | ηth,nom | 84 | % | |
| Auxiliary electricity consumption | Type of heat output/room temperature control (select one) | |||||||
| At nominal heat output | elmax | kW | single stage heat output, no room temperature control | no | ||||
| At minimum heat output | elmin | kW | two or more manual stages, no room temperature control | yes | ||||
| In standby mode | elSB | kW | with mechanic thermostat room temperature control | no | ||||
| with electronic room temperature control | no | |||||||
| with electronic room temperature control plus day timer | no | |||||||
| with electronic room temperature control plus week timer | no | |||||||
| Other control options (multiple selections possible) | ||||||||
| room temperature control, with presence detection | no | |||||||
| room temperature control, with open window detection | no | |||||||
| with distance control option | no | |||||||
| Permanent pilot flame power requirement | ||||||||
| Pilot flame power requirement (if applicable) | Ppilot | kW | ||||||
| Contact details | Name and address of the supplier: Nordpeis AS, Gjellebekkstubben 11, N-3420 LIERSKOGEN, Norway | |||||||
Nordpeis AS, Gjellebekkstubben 9-11, N-3420 LIERSKOGEN, Norway www.nordpeis.no
DIMENSION




INSTALLATION INSTRUCTION























































POSITION OF THE SERIAL NUMBER
Feature

Nordpeis AS, Gjellebekkstubben 9-11, N-3420 LIERSKOGEN, Norway www.nordpeis.no




















