POTTER PCMS Corrosion Monitoring Station

Model Description
- 1119500 PCMS2510 (2.5” Schedule 10)
- 1119505 PCMS2540 (2.5” Schedule 40)
- 1119510 PCMS3010 (3” Schedule 10)
- 1119515 PCMS3040 (3” Schedule 40)
- 1119520 PCMS4010 (4” Schedule 10)
- 1119525 PCMS4040 (4” Schedule 40)
- 1119530 PCMS6010 (6” Schedule 10)
- 1119535 PCMS6040 (6” Schedule 40)
- 1119540 PCMS8010 (8” Schedule 10)
- 1119545 PCMS8040 (8” Schedule 40)
- 1119670 Replacement Coupon Holder
- 1119650 Replacement Coupon Holder
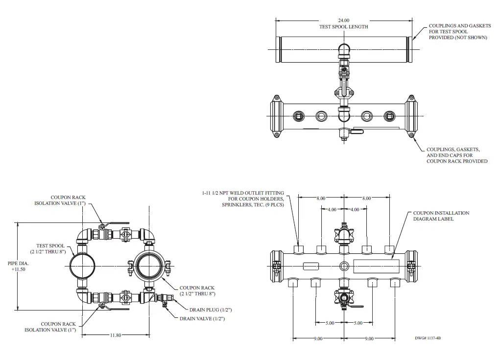
The model PCMS is a corrosion monitoring station consisting of a test spool and coupon rack that is installed in a fi re sprinkler main or branch line to monitor corrosion in a fi re sprinkler system. The PCMS is designed to simulate conditions within the main or branch line that it is installed. The coupon rack can be isolated from the test spool and easily accessed for servicing and monitoring of test specimens (coupons, sprinkler, etc.) without interruption to fi re protection. Test material strip specimens (coupons) are installed into the coupon rack by the use of coupon holders. Test Spool and Coupon Rack Assmbly and Installation: (See Fig. 1)
- Install the Test Spool Assembly (Item #1 of Fig.1) into the fi re sprinkler main or branch line with the grooved couplings and gaskets provided. Position the outlets so they are on the top and bottom of the spool piece. Support the test spool as required.
- Install the end caps with the grooved couplings and gaskets provided onto the ends of the Coupon Rack Assembly (Item #2 Fig. 1). The products label should be visible and in proper orientation on the outside edge of the coupon rack.
- Assemble the trim in accordance with the drawing provided in Fig. 1 of this document. The trim can be assembled on the PCMS components at any time during the installation process. Be sure to properly position all of the components. The trim installed separately on the spool piece or the coupon rack and joined together using the 1” fl exible grooved coupling provided. The fl exible grooved couplings serve as a union and will aide in aligning the coupon rack to the test spool.
- Provide support for the coupon rack. Hangers should be installed at the end of the coupon rack as not to obscure the view of the orientation label. Hangers must be installed in accordance the NFPA standards or as required by local AHJ. The Test Spool Assembly (Item #1 of fi g. 1) and the Coupon Rack (Item #2 if Fig. 1) must be installed on the same horizontal plane.
Corrosion Coupon Installation
- Assemble a corrosion coupon on to the coupon holder as shown in Figure 2. Attach coupon to holder with the supplied nonconductive screw and nut. Follow these instructions provided with coupon.
- Install Coupon Holder Assemblies (Item #13 in Fig. 1) and/or sprinklers, etc. in the recommended 1” NPT outlet fi tting on the coupon rack assembly, as indicated in Figure 3 or the label on the coupon rack assembly. Plug all remaining outlet fi ttings not used in the Coupon Rack Assembly. Be sure to close the drain valve and open the coupon rack isolation valves upon fi lling of the fi re sprinkler system.
- Fill out the coupon card completely for the coupon analysis. Forward the coupon and completed card to the coupon supplier after the required amount of time.
PCMS ASSEMBLY


Caution
Outlets are provided for the most common system sprinklers. These sample sprinklers are installed ONLY when their operation will not interfere with the operation of system fi re sprinklers. The operation of test sprinklers could delay or prevent operation of system sprinklers.

FIG. 3 CORROSION COUPON INSTALLATION DIAGRAM

PCMS OUTLINE DRAWING




















