CWCB Packaged Circulation Heaters
Instructions
Application
Type CWCB packaged water heaters are designed for installation in circulating loops where space is limited. The basic unit can be equipped with various control packages which will allow the heater to function:
- As a side arm domestic water heater or commercial dishwasher booster heater, or
- As a commercial hot water furnace for comfort or process heating.
Construction
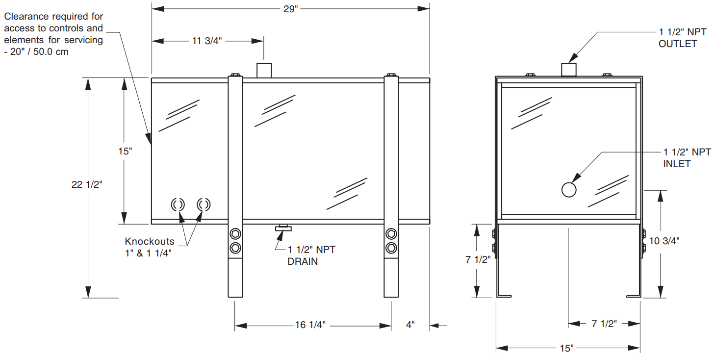
The unit features a 12” (305 mm) SCH. 20 galvanized steel shell designed to accept one or two heavy duty flange heaters having copper sheathed heating elements.
The shell is insulated and protected with a preprinted sheet metal casing. Standard control equipment is contained within the heater and control compartment at one end of the casing. A hinged inner panel allows convenient access to the heaters.
Standard Equipment
- Factory prewired
- Galvanized shell designed to the ASME code for pressure vessels
- 1 1/2” N.P.T. inlet and outlet
- 1 1/2” N.P.T. drain
- Flange heater(s) with heavy duty copper sheathed elements
- Insulated shell with painted sheet metal casing
- Mounting legs
- Magnetic contactor(s)
- Splitter block
- On-off switch

Model CWCB-XX-2 for Domestic Water Heating and
Dishwasher Booster Heating
| Kilowatts | Std. Voltages | Catalog Number | Net Wt. – kg (lbs.) I | |||
| 208,240 | 480,600 | |||||
| 10 | 30 | 10 | 30 | |||
| 6 | ✓ | ✓ | ✓ | ✓ | CWCB-06-2 | 86 (189) |
| 9 | ✓ | ✓ | ✓ | ✓ | CWCB-09-2 | 86 (189) |
| 12 | ✓ | ,./ | ✓ | ✓ | CWCB-12-2 | 90 (198) |
| 15 | ✓ | ✓ | ✓ | ✓ | CWCB-15-2 | 90 (198) |
| 18 | ✓ | ✓ | ✓ | ✓ | CWCB-18-2 | 90 (198) |
| 21 | ✓ | ✓ | ✓ | ✓ | CWCB-21-2 | 90 (198) |
| 24 | ✓ | ✓ | ✓ | ✓ | CWCB-24-2 | 90 (198) |
| 27 | ✓ | ✓ | ✓ | ✓ | CWCB-27-2 | 90 (198) |
| 30 | ✓ | ,./ | ✓ | ✓ | CWCB-30-2 | 90 (198) |
| 36 | ✓ | ✓ | ✓ | ✓ | CWCB-36-2 | 90 (198) |
| 42 | ✓ | ✓ | ✓ | ✓ | CWCB-42-2 | 95 (209) |
| 48 | — | ✓ | ✓ | ✓ | CWCB-48-2 | 95 (209) |
| 54 | — | ,./ | ✓ | ✓ | CWCB-54-2 | 95 (209) |
| 60 | — | ✓ | ✓ | ✓ | CWCB-60-2 | 95 (209) |
The CWCB when configured to function as a domestic water or dishwasher booster heater has the following equipment in addition to the standard equipment listed on the previous page
- 125 psig maximum pressure
- Adjustable manual reset high limit control
- Pressure/temperature relief valve 125 psig / 210°F (99°C)
- Control circuit transformer (when required) with 120V fused secondary
- Thermostat 100°F to 240°F (38°C to 116°C) supplied loose
- Pressure/temperature gauge supplied loose
Optional Equipment (check factory)
- Flow switch
- Circulating pump and motor
- ASME registration
Model CWCB-XX-3 for Comfort Heating or Process Water Heating
| Kilowatts | Std. Voltages | Catalog Number | Net Wt. – kg N. (lbs.) .m | |||
| 208,240 | 480,600 | |||||
| 10 | 30 | 10 | 30 | |||
| 6 | ✓ | ✓ | ✓ | ✓ | CWCB-06-3 | 86 (189) |
| 9 | ✓ | ✓ | ✓ | ✓ | CWCB-09-3 | 86 (189) |
| 12 | ✓ | ✓ | ✓ | ✓ | CWCB-12-3 | 90 (198) |
| 15 | ✓ | ✓ | ✓ | ✓ | CWCB-15-3 | 90 (198) |
| 18 | ✓ | ✓ | ✓ | ✓ | CWCB-18-3 | 90 (198) |
| 21 | ✓ | ✓ | ✓ | ✓ | CWCB-21-3 | 90 (198) |
| 24 | ✓ | ✓ | ✓ | ✓ | CWCB-24-3 | 90 (198) |
| 27 | ✓ | ✓ | ✓ | ✓ | CWCB-27-3 | 90 (198) |
| 30 | ✓ | ✓ | ✓ | ✓ | CWCB-30-3 | 90 (198) |
| 36 | ✓ | ✓ | ✓ | ✓ | CWCB-36-3 | 90 (198) |
| 42 | ✓ | ✓ | ✓ | ✓ | CWCB-42-3 | 95 (209) |
| 48 | — | ✓ | ✓ | ✓ | CWCB-48-3 | 95 (209) |
| 54 | — | ✓ | ✓ | ✓ | CWCB-54-3 | 95 (209) |
| 60 | — | ✓ | ✓ | ✓ | CWCB-60-3 | 95 (209) |
The CWCB when configured to function as a hot water furnace for comfort heating or for process water heating has the following equipment in addition to the standard equipment listed on the previous page:
- 0 psig maximum pressure
- Adjustable manual reset high limit control
- Pressure relief valve set at 30 psig
- Control circuit transformer (when required) with 120V fused secondary
- Built-in thermostat 50°F to 250°F (10°C to 120°C)
- Low voltage relay for 24V thermostat
- Pressure/temperature gauge supplies loose
Optional Equipment (check factory)
- Flow switch
- Circulating pump and motor
- ASME registration
- Expansion tank
- Outdoor thermostat
To Order Specify
Quantity, catalog number, voltage, phase, wattage, application, optional equipment, operating pressure, ultimate owner’s name and address, installation location name and address.
CWCB- Packaged Circulation Heaters
Caloritech™
THS2056-0223

















