TRAEGER Timberline Finishing Kit

NOTE: This guide is designed to be used as a tool to assist the user when building their Timberline and Timberline XL into an outdoor kitchen space, and to ensure a safe and effective experience.
DISCLAIMER: The built-in grill is mounted on casters. For a flush surface between grill and counter, refer to the Timberline Outdoor Kitchen Trim Kit.
IMPORTANT SAFETY PRECAUTIONS
READ ALL INSTRUCTIONS BEFORE INSTALLING AND USING YOUR TRAEGER® GRILL
A MAJOR CAUSE OF FIRES IS FAILURE TO MAINTAIN REQUIRED CLEARANCES (AIR SPACES) BETWEEN COMBUSTIBLE MATERIALS AND YOUR GRILL. IT IS OF UTMOST IMPORTANCE THAT THIS PRODUCT BE INSTALLED ONLY IN ACCORDANCE WITH THESE INSTRUCTIONS AND YOUR TRAEGER® GRILL OWNER’S MANUAL.
Please read all instructions and warnings in this Installation Guide and your Traeger® Grill Owner’s Manual before installing. Scan the QR Code below to take you to the Timberline Owner’s Manual. Failure to follow these instructions could result in property damage, bodily injury, or even death. We highly recommend you use a licensed contractor to build your Traeger® Grill into an outdoor kitchen. Provide these instructions and your Traeger® Grill Owner’s Manual to your contractor prior to installation. Observe all building codes and fire ordinances when installing your Traeger® Grill. Contact your local building inspector or fire official for information about inspection requirements in your area. SAVE THESE INSTRUCTIONS.
WARNING: Fire Hazard
- When operating your Traeger® Grill, observe all MINIMUM clearances provided in these instructions and recommended by your contractor or local authorities.
- Do not install your Traeger® Grill on or near any combustibles, including combustible floors, countertops, cabinets, railing, home siding, window frames, furniture, trees, and trash receptacles, etc. If you have questions on which materials are considered combustible, contact your local building materials supplier or fire department.
- Only use your Traeger® Grill outside in a well-ventilated area. This grill is intended for OUTDOOR USE ONLY.
- Never install your Traeger® Grill in a garage, breezeway, shed, or any other enclosed space. Ensure your Traeger® Grill is installed in a location where there is enough room to safely evacuate the area in case of a fire.
- Never modify your Traeger® Grill or install any parts or components not authorized by Traeger. Any modification
of your Traeger® Grill or installation of unauthorized parts or components will void the warranty and may create a safety hazard including, without limitation, a fire.
WARNING: Electrical Shock Hazard
- Ground Fault Circuit Interrupter (GFCI) protection must be provided on the circuit(s) or outlet(s) to be used for the operation of your Traeger® Grill.
- If using an extension cord, only use an extension cord suitable for outdoor use, to prevent electric shock in accordance with the instructions and warnings accompanying that product. This type of cord is designated with “W-A” or “W” on the cord’s jacket, such as an extension cord of cord type: SW-A, SOW-A, STW-A, STOW-A, SJW-A, SJOW-A, SJTW-A, or SJTOW-A.
- Do not modify the plug on your Traeger® Grill, the extension cord receptacle, or the extension cord plug in any way, including by removing the ground (earth) prong.
- Keep all electrical plugs, outlets, and cords clear of snow and standing water and away from hot surfaces.
CLEARANCE TO COMBUSTIBLE MATERIALS
WARNING: Grill (free-standing or built-in) must maintain a minimum distance of 18″ (45.7 cm) from any nearby combustibles, including wooden railing, home siding, window frames, furniture, trees, and trash receptacles, etc.
NOTE: For clearance distance to combustible materials above the grill, refer to your local codes requirements for outdoor kitchens.

| DIMENSIONS (IMPERIAL) | REQUIRED CLEARANCES (AIR SPACES) TO COMBUSTIBLE MATERIALS | |
| A | *DEFER TO LOCAL CODES AND REGULATIONS | |
| B | 18″ | 18″ |
| C | 18″ | 18″ |
| DIMENSIONS (METRIC) | REQUIRED CLEARANCES (AIR SPACES) TO COMBUSTIBLE MATERIALS | |
| A | *DEFER TO LOCAL CODES AND REGULATIONS | |
| B | 45.7 cm | 45.7 cm |
| C | 45.7 cm | 45.7 cm |
CABINET DESIGN AND MEASUREMENTS (MINIMUMS)

- A Minimum counter depth is 24″ (61 cm).
- B See page 11 for receptacle location information.
- 1 Countertop must be wide enough for Induction Cooktop to be 3″ (7.6 cm) from any edge (see page 7).
- 2 Recommended cabinet width for installing a Timberline XL is 50 13/16″ (129.5 cm). If installing a Timberline, minimum cabinet width is
39 3/10″ (99.8 cm).
GRILL CLEARANCES
WARNING: A minimum distance of 2″ (5.1 cm) from backsplash or another surface is required for the exhaust.

- C Recommended for ease of installation.
- D Required minimum distance for exhaust performance. Minimum distance is 2″ (5.1 cm).
LID CLEARANCE REQUIREMENTS
- E Maximum backsplash height is 39 27/32″ (101.2 cm).
- F From rear face of grill barrel, lid overhang is approximately 12″ (30.5 cm)
INDUCTION COOKTOP LOCATION OPTIONS
Timberline and Timberline XL Induction Cooktops are located on the left side of the grill, but can be built into either side of the cabinets in your outdoor kitchen. The Induction Cooktop must be a minimum of 3″ (7.6 cm) from any edge. The Timberline Outdoor Kitchen Trim Kit includes a 6 ft. extension cord for the Induction Cooktop.
INDUCTION COOKTOP CUTOUT DIMENSIONS
- G Cooktop must be 3″ (7.6 cm) from any edge.
- Dimensions provided are for the proper fit of the Induction Cooktop into the outdoor kitchen counter.
- Dimensions in in Detail A must reference the red and blue lines on either side.
- Tolerance of measurements is 1/32″ (unless otherwise specified).
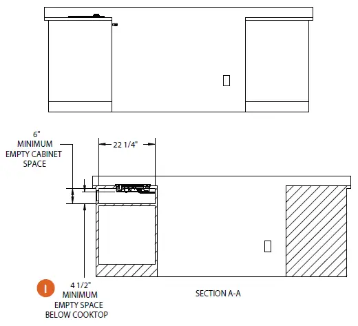
INDUCTION COOKTOP VENTILATION
IMPORTANT
- Ventilation is required for performance of the Induction Cooktop.
- Exhaust and intake airflows must be separated for proper operation.
- Keep the cabinet space below the Induction Cooktop empty for proper airflow and efficiency.
- H 18″ (45.7 cm) is the minimum vent width for proper performance.
- I A minimum of 4.5″ (11.45 cm) of empty space is required from the bottom of the Induction Cooktop.
INDUCTION COOKTOP PARTITION
IMPORTANT

- The exhaust and intake airflow must be separated for proper operation of the Induction Cooktop.
- The Induction Cooktop partition material must be NON-COMBUSTIBLE.
- J The closed cell foam rubber will need to be cut for the Induction Cooktop to sit properly in the countertop (see detail D).
- K Ensure the closed cell foam rubber is flush with the bottom surface of the Induction Cooktop.
- L The minimum distance from the front wall of the cabinet to the front of the partition is 7 1/8″ (18 cm). The partition separates the intake from the exhaust on the Induction Cooktop.
| ITEM NO. | DESCRIPTION | QTY. |
| 1 | INDUCTION COOKTOP PARTITION | 1 |
| 2 | 3/8″-THICK CLOSED CELL FOAM RUBBER | 1 |
OUTLET/POWER CORDS
Review Electrical Shock Hazard in Important Safety Precautions. Defer to local ordinances for installation of electrical outlets.
- M Acceptable wall outlet locations
- N For Induction Cooktop power cord, a cutout will be needed on the inside wall of the cabinet (side of cooktop) to pass cord through.
NOTES
- Induction Cooktop power cord length is 60″ (152.5 cm).
- Grill power cord length is 40.5″ (102.9 cm).


























