Timber Project – Garden Bar
CUTTING LIST

https://www.wickes.co.uk/how-to-guides/garden-landscaping/build-your-own-garden-bar
Materials Checklist
| QTY | Material | |
| 18 | Redwood PSE Treated Timber 44 x 44 x 2400mm | ❑ |
| 40 | Deck Board 25 x 120mm x 1.8m | ❑ |
| 5 | limber Fence Post 75 x 75mm x 2.4m | ❑ |
| 12 | Feather Edge Fence Board 11 x 150mm x 1.8m | ❑ |
| 1 | Treated Kiln Dried Timber 45 x 95mm x 2.4m | ❑ |
| 201 | 8 x 64mm Decking Screws | ❑ |
| 53 | 5 x 80mm Wood Screws | ❑ |
| 40 | 4 x 40mm Wood Screws | ❑ |
| 1 | Clear Wood Preserver | ❑ |
Screws and wood preserver are not included. We recommend studying the cutting list for efficiency before construction begins in order to optimise the cut lengths.
Cutting List

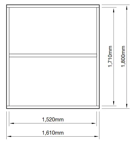
Back Panel
44 x 44 x 2400mm Redwood PSE Treated Timber PSE cut to:
2x 1,610mm
2x 1,710mm
1x 1,520mm
14x 25 x 120mm x 1.8m Deck Board fitted vertically with the grooves on the outside
70x 8 x 64mm Decking Screws to fix the Deck Board to the frame
6x 5 x 80mm Wood Screws for assembling the frame
9x 5 x 80mm Wood Screws for fixing the frame to the posts

Front Panel
44 x 44 x 2400mm Redwood PSE Treated Timber PSE cut to:
2x 1,610mm
2x 810mm
1x 1,520mm
7x 25 x 120mm x 1.8m Deck Board fitted vertically with the grooves on the outside and cut to 900mm and fit to the panel
70x 8 x 64mm Decking Screws to fix the Deck Board to the frame
6x 5 x 80mm Wood Screws for assembling the frame
6x 5 x 80mm Wood Screws for fixing the frame to the posts

Left Panel
44 x 44 x 2400mm Redwood PSE Treated Timber PSE cut to:
2x 1,035mm
2x 810mm
1x 945mm
5x 25 x 120mm x 1.8m Deck Board fitted vertically with the grooves on the outside and cut to 900mm and fit to the panel
45x 8 x 64mm Decking Screws to fix the Deck Board to the frame
6x 5 x 80mm Wood Screws for assembling the frame
6x 5 x 80mm Wood Screws for fixing the frame to the posts

Right Panel (bar entrance)
44 x 44 x 2400mm Redwood PSE Treated Timber PSE cut to:
2x 460mm
2x 810mm
16x 8 x 64mm Decking Screws to fix the Deck Board to the frame
2x 25 x 120mm x 1.8m Deck Board fitted vertically with the grooves on the outside and cut to 900mm and fit to the panel
4x 5 x 80mm Wood Screws for assembling the frame
4x 5 x 80mm Wood Screws for fixing the frame to the posts

Roof
44 x 44 x 2400mm Redwood PSE Treated Timber PSE cut to:
2x 1,760mm
3x 1,130mm
12x 11 x 150mm x 1.8m Feather Edge Fence Board cut to 1,760mm
6x 5 x 80mm Wood Screws for assembling the frame
40x 4 x 40mm Wood Screws to fit Feather Edge to frame

Posts
2x 75 x 75mm x 2.4m Timber Fence Post cut to 2110mm
2x 75x75mmx2.4m Fence Post cut to 1820mm
1x 75x75mmx2.4m Fence Post cut to 900mm
Bar Brackets
1x 45 x 95mm x 2.4m Treated Kiln Dried Timber cut to 10x 125mm
Fascia (Top & Bottom)
6x 25 x 120mm x 1.8m Deck Board cut to length
Bar Top
5x 25 x 120mm x 1.8m Deck Board cut to length
Bar Shelves
1x 25 x 120mm x 1.8m Deck Board offcuts from the fascia
cut to length


















