Titus Lynergy Electric Heat

Lynergy Electric Heat with Discharge Temperature Limit
The Lynergy Electric Heat with Discharge Temperature Limit is an electric heating unit that is controlled and operated by the Lynergy board. The unit is ordered with an LXY code, where X is coded for unit power and Y is coded for the application. This Y application can be changed in the field.
Product Information
- Capable of being controlled and operated 10 different ways
- The two-stage application accepts two 24 Vac inputs to step the heater output from off to 50% or 100% heater kW rating
- Accepts one 24 Vac input at Out 1 to step the heater output from OFF to 100% heater kW rating
- Discharge temperature limit
- Wiring diagrams for each application are provided on pages 6 & 7
Product Usage Instructions
Step 1: Inspection
- Thoroughly inspect all packages upon receipt
- Ensure carton(s) have not been dropped, crushed, or punctured
- Inspect all contents for damage. If damage is found, immediately file a claim with the delivering carrier
Step 2: Preparation
- Unpack Lynergy and check contents against the Bill of Materials
- Review all submittal drawings and verify that all components have been delivered
- Store all components in a clean and secure area
Step 3: Operation
The Lynergy board is capable of being controlled and operated in 10 different ways:
- On/Off: This application accepts one 24 Vac input at Out 1 to step the heater output from OFF to 100% heater kW rating. The signal may be pulsed off and on over a small time period to provide proportional heat. For example, a signal that is on for 4.5 seconds every 10 seconds would produce 45% of the heater’s kW rating. This is the default value for LX1 heat.
- 2 Stage (2Stg): This two-stage application accepts two 24 Vac inputs to step the heater output from off to 50% or 100% heater kW rating. This is the default value for LX2 heat.
- Out 1= Off & Out 2= Off
Heat = Off - Out 1= On & Out 2= Off
Heat = 50% - Out 1= On or Off & Out 2= On
Heat = 100%
Step 4: Troubleshooting
If you encounter any issues with the Lynergy Electric Heat with Discharge Temperature Limit, please refer to the Troubleshooting section on page 4 of the Installation, Operation & Maintenance Manual for assistance.
Introduction
Lynergy is a patented (USPN 7,177534) electronic, time-proportional electric heat system. The heat output of the heater is modulated utilizing quiet, rapid performing solid state relays. The relays are switched off and on to allow the heating of electrical resistance elements. The proportion of time the relay is on dictates the proportion of maximum heat the electric heater can produce. The solid-state relays are switched off and on by a supplied Electric Heat Module (EHM). The EHM accepts an input signal from the terminal unit controller or thermostat for the amount of heat desired. The EHM can accept a variety of different input signals when interfacing with controls. The type of input the EHM will accept is modified by changing the position of one to three jumpers easily accessible on the board.
The Lynergy is available with an optional discharge temperature sensor. When used with the discharge sensor option, the Lynergy will modulate outgoing temperature from the unit between the maximum temperature setting and the initial temperature of incoming air before heating began. The discharge temperature set point is easily adjusted in the field by rotating the temperature dial on the EHM. The EHM will not allow temperatures over the set point to prevent overheating, stratification, and energy waste from heated air lost through overhead returns.
Additional information may be found at the Titus website, www.titus-hvac.com.
General
The following information is to be used by the installer as a guide. Since each installation is unique unto itself, only general topics are covered. Topic order may not be the same as required by actual installation.
This guide is not intended to supersede or circumvent any applicable national, state or local codes. The installation is to be performed only by individuals whose experience meets or exceeds the requirements of the work involved. The installer MUST read the entire contents of this guide and develop a thorough understanding before beginning installation. Due to a continuing program of product research, Titus reserves the right to discontinue or change without notice, any or all specifications or designs without incurring obligations.
Inspection
Thoroughly inspect all packages upon receipt. Ensure carton(s) have not been dropped, crushed or punctured. Inspect all contents for damage. If damage is found, immediately file a claim with the delivering carrier.
Preparation
Unpack Lynergy and check contents against the Bill of Materials. Review all submittal drawings and verify that all components have been delivered. Store all components in a clean and secure area.
Operation
Input Setting
The Lynergy board is capable of being controlled and operated in 10 different ways. The units are ordered with an LXY code, where “X” is coded for unit power and “Y” is coded for the application. This “Y” application can be changed in the field. The application desired is chosen by the placement of jumpers in the corner of the board. The jumper settings below are representative of pins at the bottom right of the control board as shown in the drawing. Wiring diagrams for each are on pages 6 & 7.
On/Off:
This application accepts one 24 Vac input at Out 1 to step the heater output from OFF to 100% heater kW rating. The signal may be pulsed off and on over a small time period to provide proportional heat. For example, a signal that is on for 4.5 seconds every 10 seconds would produce 45% of the heater’s kW rating. This is the default value for LX1 heat.
2 Stage (2Stg):
This two-stage application accepts two 24 Vac inputs to step the heater output from off to 50% or 100% heater kW rating. This is the default value for LX2 heat.
| Out 1= Off & Out 2= Off | Heat = Off |
| Out 1= On & Out 2= Off | Heat = 50% |
| Out 1= On or Off & Out 2= On | Heat = 100% |
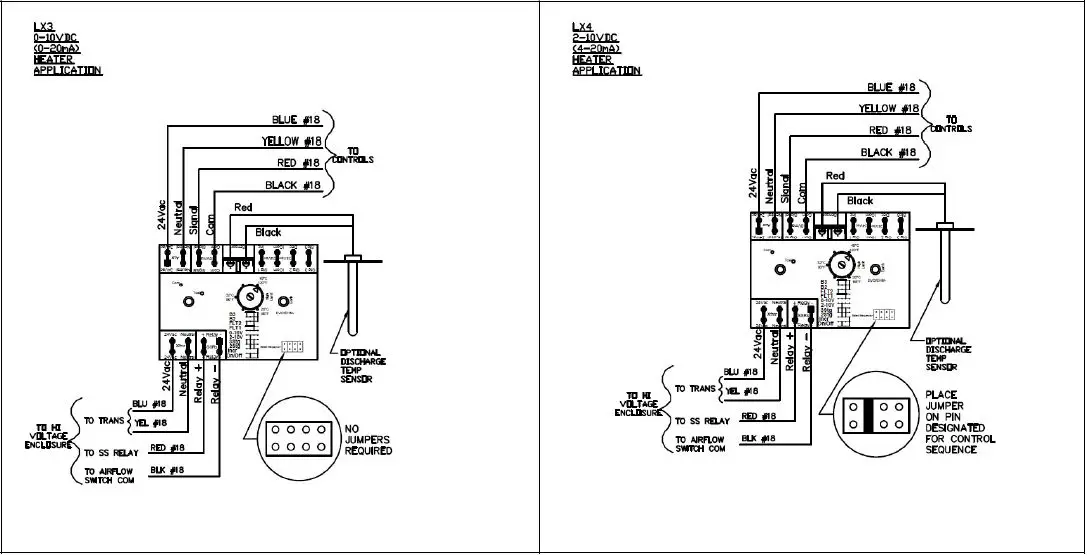
0-10V:
This application accepts a 0-10 Vdc (0-20mA) signal to modulate the heater output. The output is proportional to input signal (i.e., 4.5 volts sets the heater to 45% of kW rating). This is the default value for LX3 heat.

2-10V:
This application accepts a 2-10 Vdc (4-20 mA) signal to modulate the heater output. The output is proportional to input voltage above 2 volts (i.e., 4.5 volts sets the heater to 25% of kW rating). This is the default value for LX4 heat.

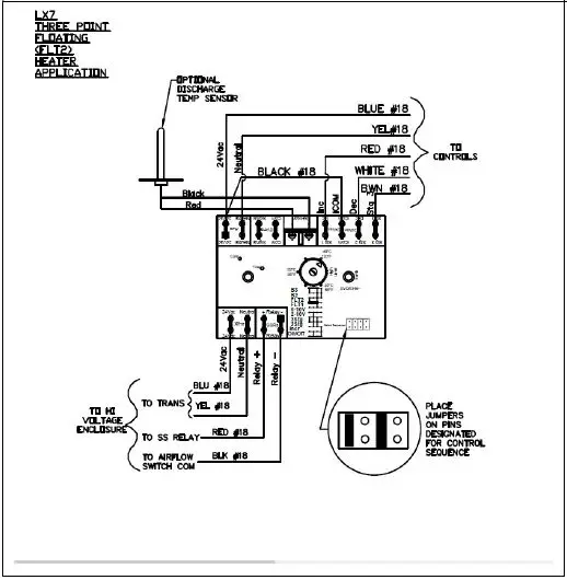
3 Point Floating (FLT2):
This floating input application accepts two 24 Vac inputs to increase or decrease the heater output. As either an increase or decrease signal is sent, the heater output will change at a rate of 1% per second. When no change is called, the heater output remains constant at the value of the last call. This is the default value for LX7 heat.
Thermostat (Incr):
This application accepts one 24 Vac input to modulate heater output. An output signal will increase the heater output 1% per second. When the output is off, heat decreases at a rate of 1% per second. This is the default value for LX5 heat.

Binary (B2):
This application accepts two 24 Vac inputs to step the heater from off to 33%, 67%, or 100% of the heater’s kW rating. This is the default value for LX6 heat.

| Out 1= Off & Out 2= Off | Heat = Off |
| Out 1= On & Out 2= Off | Heat = 33% |
| Out 1= Off & Out 2= On | Heat = 67% |
| Out 1= On & Out 2= On | Heat = 100% |
Wiring
The EHM control board is powered by 24Vac (1) from the transformer in the electric heater. The EHM has auxiliary 24Vac outputs (2) that can be used to power the unit’s electrical controls. Next to the “Xfmr” inputs are the “+” and “-“ Relay connections (3) that control the solid state relays by sending pulses of ~25Vdc.
There are two terminations to use for dc Volt control (4) of the electric heat (applications LX3 and LX4 from above). These are polar sensitive. The “+” signal from the controller must be connected to the “Signal” on the EHM Control Board. The “-“ from the controller must be connected to “Com” next to “Signal (Note: NOT “iCom”). A termination to “-“ is possible, but not necessary to measure mA signals to the board.
There are three terminations for 24 Vac control (5) of the electric heat (applications LX1, LX2, LX5, LX6, and LX7 from above). “Inc” is for the increased signal in applications LX5 and LX7, as well as the first stage heat signal in applications LX1, LX2, and LX6. “Dec” is for the decrease signal in application LX7, as well as the second stage heat signal in applications LX2 and LX6. A connection to “iCom” is necessary for all of these 24 Vac applications. If the unit’s controller does not have a Common output, a jumper to the correct “Aux” terminal can be used. If the unit controller outputs the “24Vac” side from it’s input power, a jumper should be made from “Neutral” to “iCom” (See sample diagram on page 7). If the unit controller outputs the “Neutral” side of it’s input power, a jumper should be made from “24Vac” to “iCom”.
Discharge Temperature Set Point
Lynergy comes with a discharge temperature set point (DTS) option. This option allows a maximum temperature to be set at the board to prevent overheating of the discharge air. When the unit receives a signal to start heating, the board will take an initial temperature reading and modulate heat from that point to the maximum temperature. For example, if a thermostat requires only a 10% heating output of air that was initially 60°F and has a maximum temperature setting of 90°F, the EHM will modulate the heater’s output temperature to 63°F (the additional 3 degrees coming from (90-60)*10%). This allows heaters to be sized for morning warm-up in the winter and still comfortably operate on those days when the inlet temperatures are slightly warmer.
The discharge temperature sensor comes with a 9’ cable for mounting in the downstream ductwork. The sensor should be mounted a minimum of 36” from the discharge of the unit and be vertically centered in the ductwork. The sensor can be mounted by drilling a 1/2” hole into the ductwork, inserting the sensor, and securing it with 2 sheets of metal screws. The sensor is 6” long, and the tip should not touch any part of the ductwork.
Neither the jumper settings nor the controls wiring needs to be changed when this option is ordered. The EHM control board will detect if a sensor has been connected, and it will adjust the control function accordingly. The sensor wires are connected to the screw terminals at the “Sensor” (6) location on the EHM. The connection at this termination is not polar sensitive and the two wires may be switched with no effect.
The desired discharge temperature is set by rotating the discharge temperature set point dial arrow to the maximum outlet temperature desired. To fine tune the discharge temperature set point, connect the positive and negative leads of a multi-meter to “Tcal” and “Com” (7), respectively, on the EHM. Then place a jumper between the two screw heads on the sensor termination. Rotate the discharge temperature set point dial until the desired voltage per temperature is obtained. After the voltage is obtained, the EHM board must be reset. To reset the board, remove the jumpers and then place back in correct position.
Troubleshooting
Problem: No heat when called for
- Confirm the jumper setting is correct for the input given.
- If the controls are outputting Vdc, the jumper should be set as shown on page 2 for applications LX3, and LX4.
- If the controls are outputting 24Vac, the jumper setting should be set as shown on page 2 for applications LX1, LX2, LX5, LX6, & LX7. (Also see diagrams on page 6 & 7)
- Check that wiring to the EHM is correct.
- If using applications LX3 and LX4, confirm the positive Vdc connection is wired to the “Signal” terminal, and the negative Vdc connection is wired to the “Com“ terminal.
- If using 24Vac, confirm the wires are terminated correctly at (5) with a connection at “iCom”. If an “Aux” terminal (2) on the EHM has been jumpered to “iCom”, make sure that the opposite 24Vac input is what is outputted at the controls.
- Check that airflow is above the minimum. Terminal units with electric heat come with pressure switches to insure that heater elements have airflow over them. See the catalog for the minimum airflow required for specific-size terminal units. Fan boxes must have minimum downstream static of 0.2”
- Check that the discharge temperature setpoint is not below the airflow temperature.
- Check Relay wiring. Solid-state relays are polarity sensitive. The wire from “+” on the EHM control board should be terminated on the “+3” VDC terminal of the relay. The wire from “-“ on the EHM control board should be terminated on “4-“ VDC terminal of the relay. If there are two relays used in the heater, the relays are daisy-chained from “4-“ to “+3” together.
- Check the potentiometer on the SSR control board to ensure that it is in the 100% position.
Problem: Discharge Temperature is not at the Temperature Setting
- Check that wires from the sensor are stripped and terminated in EHM control terminals.
- Check that wires from controls are terminated at the correct point on the EHM board. Increase or stage 1 signal should be terminated at “Inc”. Decrease or stage 2 signal should be terminated at “Dec”.
- Check the volt setting.
- Check sensor placement. Make sure that sensor is well placed vertically in ductwork and at least 36” from discharge. The sensor tip should not touch the inside of the ductwork.
- Try staging or ramping of output on oversized heaters. When controls call for full heat from the cooling mode, if heaters are too large and heating times are small, the heater output may be over setpoint. Staging or ramping of output over a 60-second interval will provide a smooth transition. If only one output of heat is available from controls, application LX5 will proportionally ramp heat output from 0 to 100% over a 2-minute 1-second span.




























