28002681 Scenecom xl
Instruction Manual
INSTALLATION

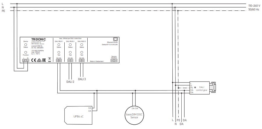
Topology A

Installation types

Application area
Control device with 3 DALI-compliant outputs for controlling a maximum of 192 luminaires.
Technical data
| Nominal voltage | 110–240 V, 50–60 Hz |
| Permissible input voltage | 100–260 V, 50–60 Hz |
| Power dissipation | Max. 20 W |
| Outputs | 3 DALI-compliant outputs (DALI BUS 1 – 3); per output: max. 64 DALI addresses; |
| Ports | 1 Ethernet port (Ethernet): RJ45 plug; speed of data transfer: 10/100 Mbit/s |
| Interface | Service Interface |
| Terminals | 0.5 – 2.5 mm² (solid or fine-stranded) |
| Degree of protection | IP20 |
| Protection class | Protection class II (only with correctly installed terminal covering) |
| Housing material | Polycarbonate (PC), flame-retardant, halogen-free |
| Installation | On top-hat rail, 35 mm in accordance with EN 50022 |
| Dimensions | 160 × 91 × 62 (W × H × D, in mm), 9 HP every 17.8 mm |
| Permissible ambient temperature | 0–50°C, installation type 1 (e.g. in distribution board) 0–40°C, installation types 2 and 3 |
| Permissible relative humidity | 20–90%, non-condensing |
| Weight | Approx. 600 g |
System design and installation notes
- Installation: fixed only, in a clean and dry environment, access only possible with tools; in solid distribution board or solid, closed distribution unit only, requirements given in standards for fire and contact safety must be met
- Topology: connect sceneCOM XL and display device (touch panel, computer) via Ethernet cable (topology A) or connect sceneCOM XL and display device (touch panel, computer, mobile device) via a wireless access point (topology B)
- Mains line: must not be interrupted by control points
- Ethernet line: at least CAT5 cable, shielded
- Bus line and DALI control line: use standard installation materials for low-voltage systems (< 1,000 V); only tree, linear and star topologies permitted
- Bus cores: may be reverse connected
- DALI control line
| Conductor cross-section | Maximum DALI line length |
| 2 x 0.50 mm² | 100m |
| 2 x 0.75 mm² | 150m |
| 2 x 1.50 mm² | 300m |
Function key
The function key can be used to trigger certain functions

Triggering a function
- Press the function key.
- Release the function key in the desired orange phase.
→ Function is triggered.
Orange phases (status LED device)

| Orange phase | Function |
| 1 | Restart the sceneCOM XL. |
| 2 | Delete the addresses and short addresses of all control gear and input devices connected to the 3 DALI control lines. |
| 3 | Reset the IP address to the factory setting (10.10.40.254). |
Test key
The test key can be used to trigger tests and certain functions for the related output (DALI BUS 1 – 3)

Triggering a function
- Press the test key.
- Release the test key in the desired orange phase.
→ Function is triggered
Orange phases (status LED DALI BUS 1 – 3)

| Orange phase | Function |
| 1 | Exit test mode for all outputs. |
| 2 | Delete the addresses and short addresses of all control gear and input devices connected to the corresponding DALI control line. |
Test mode
- If the test key is pressed for less than 2 seconds, all connected luminaires are switched on.
- If the test key is then pressed again for less than 2 seconds, the luminaires alternate each time between on and off.
- To exit test mode, press the test key and release during the 1st orange phase
Status LED
Device
| Status LED | Duration | Description |
| Green, intermittently flickering | Continuous | Fault-free operation |
| Off | Continuous | No mains voltage (L, N) |
DALI BUS 1 – 3
| Status LED | Duration | Description |
| Green, intermittently flickering | Continuous | Fault-free operation |
| Green, flashing on/off every 0.5 s | Continuous | Test mode |
| Orange, flashing on/off every 0.5 s | Continuous | Addressing (Exception: visual and acoustic sensor location) or DALI initialisation |
| Off | Continuous | No mains voltage (L, N) |
| Red | Continuous | More than 64 DALI-compliant devices connected |
| Red, intermittently flickering | Continuous | DALI control line short-circuited or more than 120 DALI loads |
| Red, interrupted by intermittent green flickering | Continuous | Lamp failure |
Safety instructions
- The device may only be used for the application area specified.
- Relevant health and safety regulations must be observed.
- When mounting and installing the device, the voltage supply must be disconnected.
- Only qualified personnel may mount, install and commission the device.
- Protection class II can only be guaranteed when the terminal covering has been correctly installed.
- If a fault occurs, dangerous voltage levels may be present at the DALI terminals and on the DALI control line.
Installation
- Disconnect the voltage supply.
- Press the black locking hook down.

Installation type 1 (e.g. in distribution board)
- First attach the top part and then the bottom part of the device to the top-hat rail.
Installation type 2
- First attach the top part and then the bottom part of the device to the top-hat rail.

Installation type 3
Depending on which side the black locking hook is situated:
- First attach the left part and then the right part of the device to the top-hat rail.
— or — - First attach the right part and then the left part of the device to the top-hat rail.
- Fasten the locking hook again.
- Reconnect the voltage supply.

Initial steps after installation
Requirement:
- The sceneCOM XL control device and display device (touch pane) computer) have been connected in accordance with topology A. -Or-
The sceneCOM XL control device and display device (touch panel, computer, mobile device) have been connected in accordance with topology B.
- Ensure that the following settings are stored for the display device and the wireless access point:
– IP address 1010.40.2 – 10.10.40.253
– Subnet mask 255255.0.0 - Open a browser (Google Chrome recommended).
- Go to the IP address of the sceneCOM XL (1010.40.254).
→ The Tridonic system web application is displayed. - Run the installation test (see Test key – Test mode).
- Correct the installation faults.
- Commission the Tridonic system.
Note: Detailed information on commissioning and configuration can be found in the commissioning instructions.

For latest software versions please access our WEB page: www.tridonic.com/software
PHASED OUT
Tridonic GmbH & Co KG
Faerbergasse 15
6850 Dornbirn AUSTRIA
www.tridonic.com
sceneCOM XL_IA_190212 ©![]()


















