MODULAR CRESCENT CUBER
KM-470AJ, KM-470AWJ, KM-470AJ-S, KM-470AWJ-S
INSTRUCTION MANUAL
KM-470AJ Crescent Cuber
HOSHIZAKI (SUZHOU) CO., LTD.
No. 15 Qingqiu Street, Suzhou Industrial Park, Suzhou 215126 China
IMPORTANT
This manual should be read carefully before the appliance is installed and operated. Read the warnings and guidelines contained in this manual carefully as they provide essential information for the continued safe use and maintenance of the appliance. Retain this manual for any further reference that may be necessary.
Important Safety Information
Throughout this manual, notices appear to bring your attention to situations which could result in death, serious injury, damage to the appliance, or damage to property.
WARNING Indicates a hazardous situation that could result in death or serious injury.
NOTICE
Indicates a situation that could result in damage to the appliance or property.
IMPORTANT
Indicates important information about the installation, use, and care of the appliance.
WARNING
The appliance should be destined only to the use for which it has been expressly conceived. Any other use should be considered improper and therefore dangerous. The manufacturer cannot be held responsible for injury or damage resulting from improper, incorrect, and unreasonable use. Failure to install, operate, and maintain the appliance in accordance with this manual will adversely affect safety, performance, component life, and warranty coverage and may result in costly water damage.
To reduce the risk of death, electric shock, serious injury, or fire, follow basic precautions including the following:
- Only qualified service technicians should install and service the appliance.
- The appliance must be installed in accordance with applicable national, state, and local codes and regulations.
- Electrical connection must be hard-wired and must meet national state, and local electrical code requirements. Failure to meet these code requirements could result in death, electric shock, serious injury, fire, or damage.
- The icemaker requires an independent power supply of proper capacity. See the specifications in this manual. Failure to use an independent power supply of proper capacity can result in a tripped breaker, blown fuse, damage to existing wiring, or component failure. This could lead to heat generation or fire.
- THE ICE MAKER MUST BE GROUNDED. Failure to properly ground the icemaker could result in death or serious injury.
- To reduce the risk of electric shock, do not touch the control switch with damp hands.
- Move the control switch to the “OFF” position and turn off the power supply before servicing. Lockout/Tagout to prevent the power supply from being turned back on inadvertently.
- Do not make any alterations to the appliance. Alterations could result in electric shock, serious injury, fire, or damage.
- The appliance is not intended for use by persons (including children) with reduced physical, sensory, or mental capabilities, or lack of experience and knowledge unless they have been given supervision or instruction concerning the use of the appliance by a person responsible for their safety.
- Children should be properly supervised around the appliance.
- Do not climb, stand, or hang on the appliance or allow children or animals to do so. Serious injury could occur or the appliance could be damaged.
- Do not use combustible spray or place volatile or flammable substances near the appliance. They might catch fire.
- Keep the area around the appliance clean. Dirt, dust, or insects in the appliance could cause harm to individuals or damage to the appliance.
Additional Warning for Remote Models
- THE REMOTE CONDENSER UNIT MUST BE GROUNDED. The power supply and ground connection to the remote condenser unit is supplied by the ice maker. Failure to properly ground the remote condenser unit could result in death or serious injury.
- Wire routing (conduit) and disconnect (if required) must meet national, state, and local electrical code requirements. Failure to meet these code requirements could result in death, electric shock, serious injury, fire, or damage.
NOTICE
- Follow the water supply, drain connection, and maintenance instructions carefully to reduce the risk of costly water damage.
- In areas where water damage is a concern, install in a contained area with a floor drain.
- Install the icemaker in a location that stays above freezing. Normal operating ambient temperature must be between 7°C to 38°C.
- Do not leave the icemaker on during extended periods of non-use, extended absences, or in sub-freezing temperatures. To properly prepare the icemaker for these occasions, follow the instructions in “IV. Preparing the Icemaker for Periods of Non-Use.”
- Do not place objects on top of the appliance.
- The dispenser unit/ice storage bin is for ice use only. Do not store anything else in the dispenser unit/ice storage bin.
Specifications
A. Electrical and Refrigerant Data
The nameplate provides electrical and refrigerant data. The nameplate is located on the left panel. For certification marks, see the nameplate.
We reserve the right to make changes in specifications and design without prior notice.
1. KM-470A_J/KM-470A_J-S
| Model | KM-470AJ/KM-470AJ-S | KM-470AWJ/KM-470AWJ-S |
| Type | Air-cooled, crescent-cube ice | Water-cooled, crescent-cube ice |
| Power Supply | 1 phase 220-240V 50Hz/1 phase 220-230V 60Hz | 1 phase 220-240V 50Hz/1 phase 220-230V 60Hz |
| Power Supply Capacity | 3.45 kVA (15.0A) /3.51 kVA (15.2A) | 3.64 kVA (15.8A) /3.51 kVA (15.3A) |
| Electric Consumption | 1850W / 1910W (AT:32°C,WT:21°C) | 1523W / 1634W (AT:32°C,WT:21°C) |
| Ice Production per 24h | 495kg / 505kg (AT:10°C,WT:10°C) | 495kg / 500kg (AT:10°C,WT:10°C) |
| Dimensions | 762mm(W) x 695mm(D) x 825mm(H) | 762mm(W) x 695mm(D) x 825mm(H) |
| Refrigerant | R404A 1.40kg (GWP:3920, CO2: 5.488t) | R404A 0.80kg (GWP:3920, CO2: 3.136t) |
| Insulation Foam Blowing Agent | Cyclopentane | Cyclopentane |
| Weight | Net:122kg (Gross:136kg) | Net:107kg (Gross:121kg) |
| Ambient Temp | 7 – 38°C | 7 – 38°C |
| Water Supply Temp | 7 – 32°C | 7 – 32°C |
| Water Supply Pressure | 0.07 – 0.78MPa (0.7 – 7.8bar) | 0.07 – 0.78MPa (0.7 – 7.8bar) |
| Voltage Range | 198 – 254V | 198 – 254V |
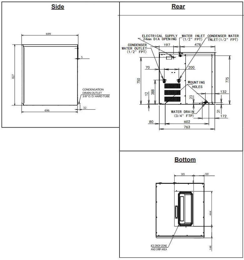
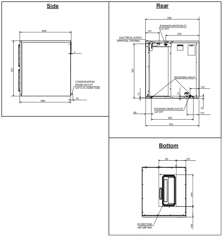
B. Dimensions/Connections
- KM-470AJ/KM-470AJ-S
NOTICE
• KM-470AJ/KM-470AJ-S: Allow 30 cm clearance at the rear, sides, and top for proper air circulation and ease of maintenance and/or service should they be required.
• The ice storage bin opening must match the bottom opening as in the illustration. - KM-470AWJ/KM-470AWJ-S
NOTICE
• KM-470AWJ/KM-470AWJ-S: Allow 30 cm clearance at the rear, sides, and top for proper air circulation and ease of maintenance and/or service should they are required.
• The ice storage bin opening must match the bottom opening as in the illustration.
Installation and Operating Instructions
WARNING
- The appliance must be installed in accordance with applicable national, state, and local codes and regulations.
- Failure to install, operate, and maintain the appliance in accordance with this manual will adversely affect safety, performance, component life, and warranty coverage and may result in costly water damage.
- CHOKING HAZARD: Ensure all components, fasteners, and thumbscrews are securely in place after installation. Make sure that none have fallen into the dispenser unit/ice storage bin.
A. Location
NOTICE
- The ice maker is not intended for outdoor use. Normal operating ambient temperature must be within 7°C to 38°C; Normal operating water temperature
must be within 7°C to 32°C. Operation of the icemaker, for extended periods, outside of these normal temperature ranges may affect icemaker performance. - The ice maker will not work at sub-freezing temperatures. To prevent damage to the water supply line, drain the icemaker if the air temperature is going to go below 0°C. See “IV. Preparing the Icemaker for Periods of Non-Use.”C
- The ice maker should not be located next to ovens, grills, or other high-heat-producing equipment.
- For KM- 470A-J/KM-470A-J-S models, allow 30 cm clearance at the rear, sides, and top for proper air circulation and ease of maintenance and/or service should they be required.
- The location should provide a firm and level foundation for the appliance.
B. Checks Before Installation
- Visually inspect the exterior of the shipping container and immediately report any damage to the carrier. Upon opening the container, any concealed damage should also be immediately reported to the carrier.
- Remove the shipping carton, tape, and packing material. If any are left in the appliance, it will not work properly.
- See the nameplate on the left panel, and check that the voltage supplied corresponds with the voltage specified on the nameplate.
- Remove the panels to prevent damage when installing the appliance. See “II.C. How to Remove Panels.”
- Remove the package containing the accessories.
- Remove the protective plastic film from the panels. If the appliance is exposed to the sun or to heat, remove the film after the appliance cools.
- Check that the refrigerant lines do not rub or touch lines or other surfaces and that the fan blade (if applicable) turns freely.
- Check that the compressor is snug on all mounting pads.
- The ice maker can be installed on a storage bin 30″ wide or wider. Hoshizaki Ice Storage Bins, Model B-500 series is recommended. For further options, contact your local Hoshizaki distributor.
Model Number Bin Width Recommended Hoshizaki Ice Storage Bin KM-470A J/KM-470A J-S 30″ or Wider B-500 Series For further options, contact your local Hoshizaki distributor.
C. How to Remove Panels
See Fig. 1
- Front Panel: Remove the screw. Lift up and pull towards you.
- Top Panel: Lift up at front slightly, push rearward and lift off.
- Right Side Panel: Remove the screw. Slide forward slightly and lift off.
- Insulation Panel: Lift up slightly, and pull towards you.

D. Setup
- Ice Storage Bin and Icemaker Setup
WARNING
The installer must ensure the ice storage bin is compatible with the icemaker, and that the dispenser unit/ice storage bin and icemaker are properly attached and secured.
1) Unpack the ice storage bin and attach the 4 adjustable legs provided (bin accessory) to the bottom of the ice storage bin.
2) Position the ice storage bin in its permanent location.
3) Place the icemaker on top of the storage bin.
4) Secure the icemaker to the storage bin using the 2 mounting brackets and the bolts provided. See Fig. 2.
5) Level the icemaker and storage bin in both the left-to-right and front-to-rear directions.
Adjust the storage bin legs to make the icemaker level.
6) Icemaker: Replace the panels in their correct positions. See Fig. 2.
- Bin Control Installation
NOTICE
Before operating the icemaker, the bin control must be installed. Failure to properly install the bin control could result in ice backup and icemaker damage.
1) Install the bin control thermostat assembly as follows. See Fig. 3.
a. Remove the bin control thermostat assembly from the shipping hook.
b. Remove the 2 thumbscrews below the bin control thermostat assembly.
c. Lower the bin control thermostat assembly through the hole located in the bottom of the ice maker. Secure the bin control thermostat assembly with the lower hook and the 2 thumbscrews removed in the previous step.
d. Insert the plug into the receptacle on the assembly until it locks into place.
IMPORTANT! The plug must be inserted into the receptacle for the icemaker to operate.
2) Replace the panels in their correct positions.
E. Electrical Connection
WARNING
For All Models
- Electrical connection must be hard-wired and must meet national state, and local electrical code requirements. Failure to meet these code requirements could result in death, electric shock, serious injury, fire, or damage.
- The icemaker requires an independent power supply of proper capacity. See the nameplate for electrical specifications. Failure to use an independent power supply of proper capacity can result in a tripped breaker, blown fuse, damage to existing wiring, or component failure. This could lead to heat generation or fire.
- THE ICE MAKER MUST BE GROUNDED. Failure to properly ground the icemaker could result in death or serious injury.
- Electrical connection must be made in accordance with the instructions on the
“WARNING” tag, provided with the pig tail leads in the junction box. See Fig. 4.
Additional Warnings for Remote Models - To reduce the risk of electric shock, make all remote condenser unit connections before connecting the icemaker power supply.
NOTICE
On remote models, the appliance must have power for a minimum of 4 hours prior to startup to prevent compressor damage.
- Usually, an electrical permit and the services of a licensed electrician are required.
- The maximum allowable voltage variation is ±10 percent of the nameplate rating.
- NOTICE! KM-470A_J/KM-470A_J-S models, the main transformer’s voltage tap switch must be positioned to match incoming voltage at startup.
- The opening for the power supply connection is 7/8″ DIA to fit a 1/2″ trade-size conduit.
F. Water Supply and Drain Connections
See Figs. 5
WARNING
Water supply and drain connections must be installed in accordance with applicable national, state, and local regulations.
NOTICE
- Normal operating water temperature should be between 7°C to 32°C. Operation of the appliance, for extended periods, outside of this normal temperature range may affect appliance performance.
- Water supply pressure must be a minimum of 0.07MPa (0.7bar) and a maximum of 0.78MPa (7.8bar). If the pressure exceeds 0.78MPa (7.8bar), the use of a pressure-reducing valve is required.
- To prevent damage to the appliance, do not operate the appliance when the water supply is off, or if the pressure is below 0.07MPa(0.7bar). Do not run the appliance until the proper water pressure is reached.
- External filters, strainers, or softeners may be required depending on water quality. Contact your local Hoshizaki Certified Service Representative or local Hoshizaki distributor for recommendations.
- A plumbing permit and the services of a licensed plumber may be required in some areas.
- The icemaker drain line, ice storage bin drain line, and water-cooled condenser drain line must be run separately. The condensation drain line can be connected to the ice maker drain line or can be run separately.
- Drain lines must have a 2 cm fall per 1 m on horizontal runs to get a good flow. A vented tee connection is also required for proper flow.
- Drain lines should not be piped directly to the sewer system. An air gap of a minimum of 5 vertical centimeters should be between the end of the drain pipes from the icemaker and condensation drain, ice storage bin, water-cooled condenser, and the floor drain.
- Icemaker
Icemaker Water
Supply InletMinimum Icemaker
Water Supply Line SizeIcemaker Drain
OutletMinimum Icemaker
Drain Line Size1/2″ Female Pipe
Thread (FPT)3/8″ Nominal ID Copper
Water Tubing or
Equivalent3/4″ Female Pipe
Thread (FPT)3/4″ Nominal
ID Hard Pipe or
Equivalent• An icemaker water supply line shut-off valve and drain valve must be installed.
• Be sure there is sufficient extra water supply line and drain line for the appliance to be pulled out for service.
- Water-Cooled Condenser
a) Connection to an Open Drain SystemCondenser Water Supply Inlet Minimum Condenser Water Supply Line Size Condenser Drain Outlet Minimum Condenser Drain Line Size 1/2″ Female Pipe Thread (FPT) 3/8″ Nominal ID Copper Water Tubing or Equivalent 1/2″ Female Pipe Thread (FPT) 3/8″ Nominal ID Hard Pipe or Equivalent • A condenser water supply line shut-off valve and drain valve must be installed.
• In some areas, a backflow preventer may be required in the cooling water circuit.
• In order to maintain the proper high side pressure, the condenser water supply inlet temperature should not drop below 7°C and the condenser drain outlet temperature must be in the 40°C to 46°C range. Once the icemaker installation is complete, confirm the condenser drain outlet temperature 5 minutes after a freeze cycle starts. If the condenser drain outlet temperature is not in the proper range, use a flat-blade screwdriver to rotate the adjustment screw on the water-regulating valve until the temperature is in the proper range (rotate counterclockwise to raise the temperature or clockwise to lower temperature).
b) Connection to a Closed Loop System
| Condenser Water Supply Inlet | Minimum Condenser Water Supply Line Size | Condenser Return Outlet | Minimum Condenser Return Line Size |
| 1/2″ Female Pipe Thread (FPT) | 3/8″ Nominal ID Copper Water Tubing or Equivalent | 1/2″ Female Pipe Thread (FPT) | 3/8″ Nominal ID Copper Water Tubing or Equivalent |
- Shut-off valves and drain valves must be installed at both the condenser water supply inlet and condenser return outlet.
- The minimum water flow to the condenser is 15 LPM.
- The pressure differential between the condenser water supply inlet and condenser return outlet must be no less than 0.07MPa(0.7bar).
- When using a glycol blend, the solution mixture should be less than 30% glycol.
- In order to maintain the proper high side pressure, the condenser water supply inlet temperature should not drop below 7°C and the condenser return outlet temperature must be in the 40°C to 46°C range. Once the icemaker installation is complete, confirm the condenser return outlet temperature 5 minutes after a freeze cycle starts. If the condenser return outlet temperature is not in the proper range, use a flat blade screwdriver to rotate the adjustment screw on the water-regulating valve until the temperature is in the proper range (rotate counterclockwise to raise the temperature or clockwise to lower temperature).

G. Installation of Remote Condenser Unit
WARNING
- Installation of remote condenser units must be performed by properly trained and EPA-certified service personnel.
- The remote condenser unit must be installed in accordance with applicable national, state, and local codes and regulations.
- Failure to install the remote condenser unit within these guidelines may adversely affect safety, performance, component life, and warranty coverage.
- Power supply and ground wire to the remote condenser unit are supplied from the ice maker. For details, see section “II.G.6. Electrical Connection.”
- Location
NOTICE
• The remote condenser unit is intended for outdoor use. Normal operating ambient temperature must be within -29°C to +50°C. Operation of the remote condenser unit, for extended periods, outside of this normal temperature range may affect appliance performance.
• The maximum line length for the standard line sizes and refrigerant charge is 20 m. With larger line sizes and/or additional refrigerant, the maximum line length is 30.5 m.
• The maximum vertical distance between the remote condenser unit and the icemaker is 10 m above or 3 m below the ice maker. These distances are measured fitting to fitting. See Fig. 8.
The remote condenser unit must be positioned in a permanent site under the following guidelines:
• A firm and flat site.
• A dry and well-ventilated area with 61 cm clearance at front and rear for proper air circulation and ease of maintenance and/or service should they be required. See Fig. 9.
- Checks Before Installation
1) Remove the shipping carton, tape, and packing material.
2) Check that the refrigerant lines do not rub or touch lines or other surfaces and that the fan blades move freely. - Setup
1) Assemble 2 sets of legs using the legs, bolts, and nuts provided. See Fig. 10.
2) Position 1 of the plates provided between a set of legs and the remote condenser unit, then secure the legs to the remote condenser unit with the bolts and nuts provided. Repeat on the other side with the remaining set of legs.
3) The bottom of each leg has a mounting hole. Secure the legs to the permanent site with 4 bolts (not included). - Line Set Exceeding 20 m
CAUTION
The ice maker, line set, and remote condenser unit must contain the same type of refrigerant. Mixing of refrigerants will result in improper operation and possible damage to the refrigeration system.
The maximum line length for the standard refrigerant charge is 20 m. Should an installation require a longer line length, the additional refrigerant must be added. Add 40 g of R-404A for each meter over 20 m to a maximum of 30.5 m. Your nearest Hoshizaki Service office is available for recommendations. After weighing in the additional charge, mark the unit’s nameplate to show the new correct total refrigerant charge. - Line Set Installation
Precharged factory line sets, available as optional equipment from Hoshizaki are recommended. For details, see “II.G.5.a) Factory Line Set Installation.” Field-fabricated line sets are allowed. For details, see “II.G.5.b) Field Fabricated Line Set Installation.”
a) Factory Line Set Installation
1) Route the factory line set from the remote condenser unit to the ice maker. Leave a service loop behind the icemaker to allow the icemaker to be pulled out for service. See Fig. 11. Factory-fabricated line sets are precharged and do not need to be evacuated. If the line set is too long or too short, see “II.G.5.a)(1) Factory Line Set Modification.”
NOTICE
• Ensure that there are no traps and no kinks in the line set. The service loop is not considered an oil trap.
• Do not coil extra line set.
2) Connect the refrigerant lines to the appropriate male fittings on the remote condenser unit first and then at the ice maker. Make a proper connection as follows:
a. Remove the protective covers from the male fitting and female coupling.
b. Apply Polyol Ester (POE) refrigerant oil or Parker Super O Lube to the entire male fitting, including O-ring, diaphragm, and threads before making the connection.
See Fig. 12. NOTICE! Do not use thread sealant on the fittings. Use POE refrigerant oil or Parker Super O Lube only. Couplings are for one-time use only.
c. Make sure the male fitting and female coupling is properly aligned, then start the connection by hand to ensure that it is not cross-threaded.
d. Place a backup wrench on the back of the female coupling, then tighten the connection with a wrench until it is tight. At this point, the nut has covered most of the threads on the male fitting. NOTICE! Failure to use a backup wrench may result in damage to the line set and possible refrigerant leaks.
e. Mark a reference line on the female coupling and the remote condenser unit or icemaker panel. Using a backup wrench on the back of the female coupling, tighten the six-sided nut of the female coupling an additional 1/6 turn. See Fig. 13.
NOTICE! Confirm connection is free of leaks.
3) If you lengthened the line set as outlined in “II.G.5.a)(1) Factory Line Set Modification” and it exceeds 20 m, see “II.G.4. Line Set Exceeding 20 m ” for proper charging of the appliance.
(1) Factory Line Set Modification
1) Recover the line set charge through the Schrader access ports on the Parker quick-connect couplings and store it in an approved container. Do not discharge the refrigerant into the atmosphere. Remove the extra line set length or add extra tubing. When adding extra tubing, insulate the additional copper tubes separately.
2) Use an electronic leak detector or soap bubbles to check for leaks. Add a trace of refrigerant to the lines through the Schrader access ports on the Parker quick-connect couplings (if using an electronic leak detector), and then raise the pressure using nitrogen gas (0.97MPa).
WARNING! Do not use R-404A as a mixture with pressurized air for leak testing.
3) Evacuate through the Schrader access ports on the Parker quick-connect couplings and charge with R-404A refrigerant vapor to a pressure of 0.1 to 0.2 MPa. Go to step 2 in “II.G.5.a) Factory Line Set Installation.”
b) Field Fabricated Line Set Installation
1) Route the copper tube liquid line and copper tube discharge line from the remote condenser unit to the ice maker. Leave a service loop behind the icemaker to allow the icemaker to be pulled out for service. See Fig. 11.
NOTICE
• Ensure that there are no traps and no kinks in the line set. The service loop is not considered an oil trap.
• Do not coil extra line set. Fabricate the line set to the proper length.
2) Insulate the two copper tubes separately.
3) Install Parker quick-connect couplings on each end. OS-QUICK, a universal quick-connect coupling kit available as optional equipment from Hoshizaki, is recommended.
NOTICE! Before brazing, remove the Schrader valve core from the access port. When brazing, protect the coupling by using a wet cloth to prevent the coupling from overheating. Do not use silver alloy or a copper alloy containing arsenic.
4) Allow the coupling to cool, then replace the Schrader valve core.
5) Use an electronic leak detector or soap bubbles to check for leaks. Add a trace of refrigerant to the lines through the Schrader access ports on the Parker quick-connect couplings (if using an electronic leak detector), and then raise the pressure using nitrogen gas (0.97 MPa). WARNING! Do not use R-404A as a mixture with pressurized air for leak testing.
6) Evacuate through the Schrader access ports on the Parker quick-connect couplings and charge with R-404A refrigerant vapor to a pressure of 0.1 to 0.2 MPa.
7) Connect the refrigerant lines to the appropriate male fittings on the remote condenser unit first and then at the ice maker. Make a proper connection as follows:
a. Remove the protective covers from the male fitting and female coupling.
b. Apply Polyol Ester (POE) refrigerant oil or Parker Super O Lube to the entire male fitting, including O-ring, diaphragm, and threads, before making the connection. See Fig. 12. NOTICE! Do not use thread sealant on the fittings. Use POE refrigerant oil or Parker Super O Lube only. Couplings are for one-time use only.
c. Make sure the male fitting and female coupling is properly aligned, then start the connection by hand to ensure that it is not cross-threaded.
d. Place a backup wrench on the back of the female coupling, then tighten the connection with a wrench until it is tight. At this point, the nut has covered most of the threads on the male fitting. NOTICE! Failure to use a backup wrench may result in damage to the line set and possible refrigerant leaks.
e. Mark a reference line on the female coupling and the remote condenser unit or icemaker panel. Using a backup wrench on the back of the female coupling, tighten the six-sided nut of the female coupling an additional 1/6 turn. See Fig. 13.
NOTICE! Confirm connection is free of leaks.
8) If the line set exceeds 20 m, see “II.G.4. Line Set Exceeding 20 m ” for proper charging of the appliance.
- Electrical Connection
WARNING
• Electrical connection must meet national, state, and local electrical code requirements. Failure to meet these code requirements could result in death, electric shock, serious injury, fire, or damage.
• To reduce the risk of electric shock, make all remote condenser unit connections before connecting the icemaker power supply.
• THE REMOTE CONDENSER UNIT MUST BE GROUNDED. Install a ground wire from the icemaker fan motor junction box to the remote condenser unit junction box. Use wire of an appropriate gauge and outdoor rating. Failure to properly ground the remote condenser unit could result in death or serious injury.
• Install line and neutral wires from the fan motor leads in the icemaker fan motor junction box to the leads in the remote condenser unit junction box. Use wire of an appropriate gauge and outdoor rating.
• Do not connect the fan motor leads in the icemaker to an incoming power source. Do not connect the fan motor leads in the icemaker together. Do not allow the leads to contact the junction box walls.
• Do not connect the remote condenser unit to an external power source.
NOTICE
On remote models, the appliance must have power for a minimum of 4 hours prior
to startup to prevent compressor damage.
• Usually an electrical permit and the services of a licensed electrician are required.
• The opening for the power supply connection is 7/8″(22mm)DIA to fit a 1/2″ trade-size conduit.
1) Remove the remote condenser unit louver panel. See Fig. 14.
2) Remove the icemaker fan motor junction box cover. Remove the remote condenser unit junction box cover.
3) Install a ground wire from the icemaker fan motor junction box to the remote condenser unit junction box. Use wire of an appropriate gauge and outdoor rating.
4) Install line and neutral wires from the fan motor leads in the icemaker fan motor junction box to the leads in the remote condenser unit junction box. Use wire of an appropriate gauge and outdoor rating.
5) Replace the junction box covers and the louver panel in their correct positions. - Stacking Remote Condenser Unit
1) Install the lower remote condenser unit as described earlier in this section.
2) Place the upper remote condenser unit on top of the lower remote condenser unit. See Fig. 15.
3) Secure the upper remote condenser unit to the lower remote condenser unit with the 4 screws provided.
4) Install refrigerant lines and make the electrical connections as described earlier in this section.
H. Final Checklist
WARNING
CHOKING HAZARD: Ensure all components, fasteners, and thumbscrews are securely in place after installation. Make sure that none have fallen into the dispenser unit/ice storage bin.
- Is the icemaker level?
- Is the icemaker in a site where the ambient temperature is between 7°C to 38°C and the water temperature within 7°C to 32°C all year around?
- For the KM-470A_J/KM-470A_J-S model, is there at least 30 cm clearance at the rear, sides, and top of the ice maker?
- Have the shipping carton, tape, and packing material been removed from the appliance? Is the cube guide in the correct position? Are the separators between the evaporator banks properly attached to their holding clips?
- Have all electrical and water connections been made? Do electrical and water connections meet applicable national, state, and local codes and regulation
requirements? - Has the power supply voltage been checked or tested against the nameplate rating?
Has a proper ground been installed for the ice maker? - Are the water supply and drain lines sized as specified? Are the water supply line shut-off valve(s) and drain valve(s) installed? Has the water supply pressure been checked to ensure a minimum of 0.07MPa(0.7bar) and a maximum of 0.78MPa(7.8bar)?
- Is the compressor snug on all mounting pads? Have the refrigerant lines been checked to make sure they do not rub or touch other lines or surfaces? Have the fan blades been checked to make sure they turn freely?
- Are all components, fasteners, and thumbscrews securely in place?
- Has the end user been given the instruction manual, and instructed on how to operate the appliance and the importance of the recommended periodic maintenance?
- Has the end user been given the contact information of an authorized service agent?
I. Startup
WARNING
All parts are factory-adjusted. Improper adjustments may adversely affect safety, performance, component life, and warranty coverage.
NOTICE
- If the ice maker is turned off, wait for at least 3 minutes before restarting the icemaker to prevent damage to the compressor.
- To prevent damage to the water pump seal, do not leave the control switch in the “WASH” position for extended periods when the water tank is empty.
- At startup, confirm that all internal and external connections are free of leaks.
1) Open the water supply line shut-off valve(s).
2) Remove the front panel.
3) Move the control switch on the control box to the “ICE” position.
4) Replace the front panel in its correct position.
5) Turn on the power supply and allow the icemaker to operate for a total of 10 minutes.
6) Turn off the power supply, then remove the front panel and the insulation panel.
7) Slide the cube guide to the right, then remove the rubber cap and sleeve covering the overflow pipe. See Fig. 16. Unscrew the overflow pipe. After the water tank has drained, reconnect the overflow pipe. Replace the rubber hose, overflow cap, and cube guide in their correct positions.
NOTICE! Make sure the O-ring is attached to the bottom of the overflow pipe and be careful not to cross-thread the overflow pipe.
8) Replace the insulation panel and the front panel in their correct positions.
9) Clean the dispenser unit/ice storage bin liner using a neutral cleaner. Rinse thoroughly after cleaning.
10) Turn on the power supply to start the automatic icemaking process.
11) When the icemaker is running, hold an ice cube in contact with the bulb. The icemaker should stop within 10 seconds. Adjustments may be needed, particularly at higher altitude locations.
Maintenance
The appliance must be maintained in accordance with the instruction manual and labels provided. Consult with your local Hoshizaki Certified Service Representative about maintenance service.
WARNING
- Only qualified service technicians should service the appliance.
- To reduce the risk of electric shock, do not touch the control switch with damp hands.
- Move the control switch to the “OFF” position and turn off the power supply before servicing. Lockout/Tagout to prevent the power supply from being turned back on inadvertently.
- CHOKING HAZARD: Ensure all components, fasteners, and thumbscrews are securely in place after any maintenance is done to the appliance. Make sure that none have fallen into the dispenser unit/ice storage bin.
A. Maintenance Schedule
The maintenance schedule below is a guideline. More frequent maintenance may be required depending on water quality, the appliance’s environment, and local sanitation regulations.
Maintenance Schedule | ||
Frequency | Area | Task |
| Daily | Scoop | Clean the ice scoop using a neutral cleaner. Rinse thoroughly after cleaning. |
| Bi-Weekly | Air Filters | Inspect. Wash with warm water and neutral cleaner if dirty. |
| Monthly | External Water Filters | Check for proper pressure and change if necessary. |
| Icemaker Exterior | Wipe down with a clean, soft cloth. Use a damp cloth containing a neutral cleaner to wipe off oil or dirt buildup. Clean any chlorine staining (rust-colored spots) using a non-abrasive cleanser. | |
| The underside of Icemaker and Top Kits; Bin Door | Wipe down with a clean cloth and warm water. | |
| Yearly | Icemaker and Dispenser Unit/Ice Storage Bin | Clean and sanitize per the cleaning and sanitizing instructions provided in this manual. See “III.B. Cleaning and Sanitizing Instructions.” |
| Water Supply Inlet | Close the icemaker water supply line shut-off valve and drain the water system. Clean the water supply inlet screen. | |
| Condenser | Inspect. Clean if necessary by using a brush or vacuum cleaner. More frequent cleaning may be required depending on location. | |
| Water Hoses | Inspect the water hoses and clean/replace them if necessary. | |
B. Cleaning and Sanitizing Instructions
The ice maker must be cleaned and sanitized at least once a year. More frequent cleaning and sanitizing may be required in some water conditions.
WARNING
- To prevent injury to individuals and damage to the icemaker, do not use ammonia-type cleaners.
- Carefully follow any instructions provided with the bottles of cleaning and sanitizing solution.
- Always wear liquid-proof gloves and goggles to prevent the cleaning and sanitizing solutions from coming into contact with the skin or eyes.
- Do not leave the icemaker unattended when the panels are off.
NOTICE
To prevent damage to the water pump seal, do not leave the control switch in the “WASH” position for extended periods when the water tank is empty.
IMPORTANT
- The cleaning valve is opened during cleaning and sanitizing to allow solution flow to the inside of the evaporator. It should be closed for all icemaking operations. The compressor will not operate unless this valve is completely closed.
- To close the cleaning valve, the valve handle should be at a right angle to the valve body. To open the cleaning valve, the valve handle should be parallel to the valve body.
Preparation
- Remove the front panel, then move the control switch to the “OFF” position.
After 3 min., move the control switch to the “ICE” position, then replace the front panel. - After 3 min., remove the front panel, then move the control switch to the “OFF” position.
- Remove all ice from the ice storage bin. WARNING! If on a dispenser unit, turn off the dispenser unit power supply after dispensing the ice.
Cleaning - Remove the front insulation panel, then slide the cube guide to the right. Remove the rubber cap and sleeve covering the overflow pipe. See Fig. 6. Unscrew the overflow pipe. After the water tank has drained, reconnect the overflow pipe. Replace the rubber hose, overflow cap, cube guide, and front insulation panel. NOTICE! Make sure the O-ring is attached to the bottom of the overflow pipe and be careful not to cross-thread the overflow pipe.
- To fill the water tank, move the control switch to the “ICE” position, then replace the front panel. After 3.5 min., remove the front panel, then move the control switch to the “OFF” position.
- Remove the front insulation panel, then pour 887 ml of Hoshizaki “Scale Away” or the other recommended Hoshizaki sanitizer as directed into the water tank. Replace the front insulation panel. Turn the cleaning valve to the left until completely vertical (open).
- NOTICE! To avoid excessive foaming, wait 1 min. before proceeding. After 1 min., move the control switch to the “WASH” position, then replace the front panel.
- After 30 min., remove the front panel, then move the control switch to the “OFF” position.
- Remove the front insulation panel, then slide the cube guide to the right. Remove the rubber hose and overflow cap covering the overflow pipe. Unscrew the overflow pipe. After the water tank has drained, reconnect the overflow pipe. Replace the rubber hose, overflow cap, cube guide, and front insulation panel.
- In bad or severe water conditions, turn off the power supply, then remove, clean (cleaning solution = 5 oz. Hoshizaki “Scale Away” per gallon of warm water), rinse, and replace the cube guides, float switch, water supply tubes, spray tubes, and spray guides; turn on the power supply when complete. Otherwise, continue to step 11.
Cleaning Rinse - Turn the cleaning valve to the right until completely horizontal (closed). Move the control switch to the “ICE” position, then replace the front panel. After 3.5 min., remove the front panel, then move the control switch to the “OFF” position. Note: The icemaker will not operate unless the cleaning valve is completely closed.
- Turn the cleaning valve to the left until completely vertical (open). Move the control switch to the “WASH” position, then replace the front panel. After 5 min., remove the front panel, then move the control switch to the “OFF” position.
- Remove the front insulation panel, then slide the cube guide to the right. Remove the rubber hose and overflow cap covering the overflow pipe. Unscrew the overflow pipe. After the water tank has drained, reconnect the overflow pipe. Replace the rubber hose, overflow cap, cube guide, and front insulation panel.
Sanitizing - To fill the water tank, turn the cleaning valve to the right until completely horizontal (closed). Move the control switch to the “ICE” position, then replace the front panel. After 3.5 min., remove the front panel, then move the control switch to the “OFF” position.
- Remove the front insulation panel, then pour 50 ml of an 8.25% sodium hypochlorite solution (chlorine bleach) into the water tank. Replace the front insulation panel. Turn the cleaning valve to the left until completely vertical (open). IMPORTANT! Use regular bleach with no additives. Using bleach with additives causes excessive foaming during sanitizing, reducing the effectiveness of sanitizing.
- NOTICE! To avoid excessive foaming, wait 1 min. before proceeding. After 1 min., move the control switch to the “WASH” position, then replace the front panel.
- After 45 min., remove the front panel, then move the control switch to the “OFF” position.
- Remove the front insulation panel, then slide the cube guide to the right. Remove the rubber hose and overflow cap covering the overflow pipe. Unscrew the overflow pipe. After the water tank has drained, reconnect the overflow pipe. Replace the rubber hose, overflow cap, cube guide, and front insulation panel.
Sanitizing Rinse 1 - Turn the cleaning valve to the right until completely horizontal (closed). Move the control switch to the “ICE” position, then replace the front panel. After 3.5 min., remove the front panel, then move the control switch to the “OFF” position.
- Turn the cleaning valve to the left until completely vertical (open). Move the control switch to the “WASH” position, then replace the front panel. After 5 min., remove the front panel, then move the control switch to the “OFF” position.
- Remove the front insulation panel, then slide the cube guide to the right. Remove the rubber cap and sleeve covering the overflow pipe. Unscrew the overflow pipe. After the water tank has drained, reconnect the overflow pipe. Replace the rubber hose, overflow cap, cube guide, and front insulation panel.
Sanitizing Rinse 2 - Turn the cleaning valve to the right until completely horizontal (closed). Move the control switch to the “ICE” position, then replace the front panel. After 3.5 min., remove the front panel, then move the control switch to the “OFF” position.
- Turn the cleaning valve to the left until completely vertical (open). Move the control switch to the “WASH” position, then replace the front panel. After 5 min., remove the front panel, then move the control switch to the “OFF” position.
- Remove the front insulation panel, then slide the cube guide to the right. Remove the rubber hose and overflow cap covering the overflow pipe. Unscrew the overflow pipe. After the water tank has drained, reconnect the overflow pipe. Replace the rubber hose, overflow cap, cube guide, and front insulation panel.
Sanitizing Rinse 3 - Turn the cleaning valve to the right until completely horizontal (closed). Move the control switch to the “ICE” position, then replace the front panel. After 3.5 min., remove the front panel, then move the control switch to the “OFF” position.
- Turn the cleaning valve to the left until completely vertical (open). Move the control switch to the “WASH” position, then replace the front panel. After 5 min., remove the front panel, then move the control switch to the “OFF” position.
- Remove the front insulation panel, then slide the cube guide to the right. Remove the rubber hose and overflow cap covering the overflow pipe. Unscrew the overflow pipe. After the water tank has drained, reconnect the overflow pipe. Replace the rubber hose, overflow cap, cube guide, and front insulation panel. NOTICE! Be sure the O-ring is attached to the bottom of the overflow pipe and be careful not to cross-thread the overflow pipe.
- Clean the ice storage bin liner using a neutral cleaner. Rinse thoroughly after cleaning.
- Turn the cleaning valve to the right until completely horizontal (closed). Move the control switch to the “ICE” position. Note: If on a dispenser unit, turn on the dispenser unit power supply.
- Replace all panels in their correct positions.
IV. Preparing the Appliance for Periods of Non-Use
NOTICE
- When storing the icemaker for an extended time or in sub-freezing temperatures, follow the instructions below to prevent damage.
- To prevent damage to the water pump seal, do not leave the control switch in the “WASH” position for extended periods when the water tank is empty.
When the icemaker is not used for two or three days under normal conditions, it is sufficient to move the control switch to the “OFF” position. When storing the icemaker for an extended time or in sub-freezing temperatures, follow the instructions below.
- Remove the water from the icemaker water supply line:
1) Turn off the power supply, then remove the front panel.
2) Move the control switch to the “OFF” position.
3) Close the icemaker water supply line shut-off valve, then open the icemaker water supply line drain valve.
4) Allow the line to drain by gravity.
5) Attach a compressed air or carbon dioxide supply to the icemaker water supply line drain valve.
6) Move the control switch to the “ICE” position.
7) Replace the front panel in its correct position, then turn on the power supply.
8) Blow the icemaker water supply line out using the compressed air or carbon dioxide supply.
9) Close the icemaker water supply line drain valve. - Drain the water tank:
1) Turn off the power supply, then remove the front panel. Move the control switch to the “OFF” position.
2) Remove the insulation panel.
3) Slide the cube guide to the right, then remove the rubber hose and overflow cap covering the overflow pipe. See Fig. 16. Unscrew the overflow pipe. After the water tank has drained, reconnect the overflow pipe. Replace the rubber hose, overflow cap, and cube guide in their correct positions. NOTICE! Make sure the O-ring is attached to the bottom of the overflow pipe and be careful not to cross-thread the overflow pipe.
4) Replace the insulation panel in its correct position.
5) Remove all ice from the storage bin. Clean the storage bin using a neutral cleaner.
Rinse thoroughly after cleaning.
6) Replace the front panel in its correct position.
V. WARRANTY
Hoshizaki warrants to the original owner/user that all Hoshizaki branded products shall be free of defects in material and/or workmanship for the duration of the “warranty period”. The warranty shall be effective for two years from the date of installation.
Hoshizaki’s liability under the terms of the warranty is limited and shall exclude routine servicing, cleaning, essential maintenance, and/or repairs occasioned by misuse and installations, not in accordance with Hoshizaki guidelines.
Warranty repairs should be completed by an approved Hoshizaki dealer or service agency using genuine Hoshizaki components.
To obtain full details of your warranty and approved service agency, please contact your dealer/supplier, or the nearest Hoshizaki Service office:
VI. DISPOSAL
Comply with local regulations regarding the disposal of this appliance and its refrigerant gas.
Before you scrap the appliance, take off the door to prevent children trapped.
Correct disposal of this product:
This marking indicates that this product should not be disposed of with other household wastes throughout the EU. To prevent possible harm to the environment or human health from uncontrolled waste disposal, recycle it responsibly to promote the sustainable reuse of material resources. To return your used device, use the return and collection systems or contact the retailer where the product was purchased. They can take this product for environmentally safe recycling.
WARNING
The insulation foaming agent used for the unit body contains flammable gas cyclopentane. With this in mind, dispose of the product properly.
NOTICE
NOTICE






2) Position 1 of the plates provided between a set of legs and the remote condenser unit, then secure the legs to the remote condenser unit with the bolts and nuts provided. Repeat on the other side with the remaining set of legs.
3) Install a ground wire from the icemaker fan motor junction box to the remote condenser unit junction box. Use wire of an appropriate gauge and outdoor rating.



















