CHAMBERLAIN GROUP my Q Pet Portal Door

Preparation
Safety Symbol and Signal Word Review
When you see these Safety Symbols and Signal Words on the following pages, they will alert you to the possibility of serious injury or death if you do not comply with the warnings that accompany them. The hazard may come from something mechanical or from electric shock. Read the warnings carefully.
When you see this Signal Word on the following pages, it will alert you to the possibility of damage to your property or product if you do not comply with the cautionary statements that accompany it. Read them carefully.


IMPORTANT INSTALLATION INSTRUCTIONS
To reduce the risk of SEVERE INJURY or DEATH:
| To protect against injury:
|
| Unit will be installed to meet national and local jurisdiction codes. | |
WARNING: This product can expose you to chemicals including lead, which are known to the State of California to cause cancer or birth defects or other reproductive harm. For more information go to www.P65Warnings.ca.gov.
Installation
Job Checklist
Thank you for being the caretaker of this exciting installation. Use these steps to guide you through the job. Use “White Glove” handling during loading and unloading, transport and installation. Take EXTRA CARE to protect the electrical and mechanical components sealed in the door during the installation process.
At the Install Site
Done
- Reference the job order and review this complete document.
- Check with the Pet Parent that they have downloaded the myQ® Pet Portal app and created an account.
- Test power of the myQ® Pet Portal at the intended outlet BEFORE INSTALLING the door.
- Install the door panel.
- Wire and power up the Portal control panel.
- Set control panel for programming.
- Instruct Pet Parent to access myQ® Pet Portal , and add the myQ® Pet Portal.
- Pet Parent tests operation found in the myQ® Pet Portal Owner’s Manual.
- Sign off, send an image of this page, images of the completed installation, and leave this manual and the myQ® Pet Portal Owner’s manual.
What’s in the Box
Inventory
- Door Panel (Slab or Pre-Hung)
- (Kolbe Door Kit**???)
Hardware Kit:
- 2 or 3 Non-powered Hinges (qty. depends on door height.)
Power kit
- 1 Powered Hinge
- 1 Plug-in Adapter (24VDC 2A Wall Adapter)
- 10 Wire Crimps
- Wall Grommet
- 25′ low-voltage (18 gauge) wire
- Owner’s Manual and Installer Manual
What’s in the Door
myQ® Pet Portal
All myQ® Pet Portal doors encase the technology used to provide a high performance, functional access system. IMPORTANT: Be sure to locate the job order with your installation to confirm the hinge side, which also runs the wiring to the INTERIOR outlet. The EXTERIOR side displays weep holes along the bottom of the door panel frame.
Tools Needed
- Level
- Drill Bit Set
- Power Strip
- Hammer
- Handsaw
- Reciprocating Saw
- Jamb Level
- Square
- Wire Crimping Tool
- Wire Cutters
- Tape Measure
- Masking Tape
- 6 ‘ Extension Cord
- Flat Screw Driver
- Philips Screw Driver
- Plastic Putty Knife
- Hex Key
- Torx
Additional Items You May Need
- Sealant
- Utility Knife
- Wood Glue
- Sand Paper
- Silicone Sealant
- Cord Cover
- Shop Vac
Basic Terms

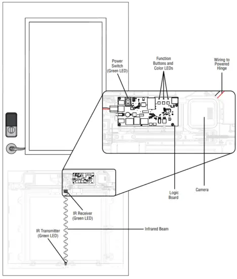
Access Control Panel
All myQ® Pet Portal doors encase the technology used to provide a high performance, functional access system.
IMPORTANT: Your door handedness may be dierent than the images. Locate the job order with your installation to conrm the hinge side, which also runs the wiring to the interior outlet.


The power switch and 3 buttons under the LED need to be darker and if possible. Remove extra lines behind the compontents of the control panel. We need an exterior image (fl ip) to call out 3 weep holes at the bottom.
Wire the Control Panel
Connect Power
Use the following guide to test power to the module sealed in the door panel, and install.
- Place the new door panel upright, close to the intended power outlet on
the job order. - Use a plastic putty knife to carefully pry the Service Panel Frame, and
unscrew the Component Cover to access the spooled wire connected to the myQ® Logic Board. IMPORTANT: Do not pull on the wire connection. - Thread the wire through the Control Panel poke hole, hinge side, on the job order.
- Strip 1/4″ insulation at the unconnected wire end.
- Connect the stripped Black wire to NEGATIVE and the stripped Red wire to POSITIVE on the adapter.
- Connect the adapter to an extension cord, and plug in to the outlet. The adapter LED glows red.
Remove logic board cover globally
- Press the power switch on. The power LED glows green.
- Check the infrared (IR) receiver, center above portal panels, glows green. The module is powered.
- Switch off the module, unplug and disconnect the adapter, and tape down the wire to the hinge stile.
- Set the wired middle hinge aside, and install the top and bottom, load-bearing hinges.
- At the middle hinge, drill a 1/4″ hole into the hinge jamb, and another out through the interior wall by the frame to thread the hinge wire through, and out the interior side. Tip: Tape down the threaded wire.
- Untape the hinge stile wire, and crimp/ connect it to the hinge wire. Gently push the connection back into the hinge jamb hole. Install the wired middle hinge to the door.
- Measure from the middle hinge down along door frame to baseboard, and out to the intended outlet, per job order. Add an extra 6″ and cut included wire to that measurement. Strip 1/4″ wire.
- Thread the newly cut wire through the wall grommet, wide side, crimp/connect to the wire in the wall, and carefully push the connection through the hole, Red followed by the grommet flush to wall.
- Encase the newly connected wire in the cord cover, and affix along the door frame, down and over to outlet.
- Connect the stripped Black wire to NEGATIVE and the stripped Red wire to POSITIVE on the adapter.
- Plug the adapter into the outlet. The adapter LED glows red.
- Press the power switch on. The power LED glows green.
- Check the Infrared (IR) receiver, center above Portal panels, glows green. The unit is powered and ready to program.

Add new image for showing unspooled wire threading through poke hole,
Bill – do we add the electric hinge warning (restate)
#14 could use a better image. We’ve seen installers remove thresholds and wire into walls, direct to outlet. Reviews -is this adequate as is? What is safe, and optimal for aesthetics?
Use this component area to update the components to show on page 5, as there are 2 cameras (in/outdoor)
Check Power
Remove myQ cover, replace w/ lobic board (global) Use the lower image w/all callouts
Power Up
- Power the door. The Logic board’s Blue LED blinks. The Adapter LED glows steady Red. The receiver light at the IR sensor glows steady Green.
- Press the #3 Door Activation button, and the doors open.

Set for Programming
Activate Program Mode
IMPORTANT: Instruct the Pet Parent to check their Wi-Fi and access the myQ® Pet Portal app. Promptly, after you activate programming, they will have up to 1 hour to add devices to their account.
- Press the Power Switch on. The Blue LED begins to blink, glows solid, flashes, then glows solid again.
- Press and hold the #3-Program button for 5 seconds, and release when it blinks Blue.The unit is now in Program Mode.
- The Pet Parent promptly adds the Pet Portal from their mobile device, then adds cameras, and then the myQ® Pet Sensor.
- Assure wires are secure within the module when reattaching the Component Cover and Service Portal Frame,
Test Operation
Basic Function
After programming the myQ® Pet Portal, cameras and Collar Sensor, the Pet
Parent can test the cameras and speaker, as well. They will test:
- From the myQ® Pet Portal app, open the Portal door while inside the home.
- As the Portal door starts to close, wave a pen between the IR Beam at the threshold center, and the Portal door reverses open.
- Hold the Collar Sensor near the Portal door, and the Portal door opens. The Portal door closes after the default time passes.
- Inspect the camera views standing in front of each one added.
- Tap Push to Talk and speak to hear their voice through the speaker.
- Repeat steps 1-5 from outside. Basic operation testing completes.

Troubleshooting
Logic Board LED Status
| What You See on #1 Button | What It Means |
| Blue LED OFF | myQ® Pet Portal is powered off. |
| Blinking Blue | Portal is powering up, looking for connection to mobile device or home Wi-Fi®. |
| Solid Blue | Connected to your mobile device or home Wi-Fi®. You are not yet connected to the Internet. If this persists after setup, check your home router and Internet. |
| Flashing Blue | Connecting to Wi-Fi® and connecting to the myQ® App. |
| Solid Blue | Connected to myQ® Pet Portal app, Wi-Fi®. |
| Solid Purple | Receiving firmware updates. |
myQ® Pet Portal Collar Sensor LED Status
| What You See on #2 Button | What It Means |
| Blinking Blue LED | Collar Sensor detected, but not close. |
| Blinking Green LED | Collar Sensor detected, and on 3 consecutive green blinks, the door opens . |
Infrared (IR) Light Beam Sensors LED Status
| What You See | What It Means |
| Receiver (Top) LED glows steady Green Transmitter (Bottom) LED glows steady Green | The IR sensors are aligned, and active. |
| Transmitter (Bottom) LED doesn’t glow Green. |
|
| Receiver (Top) LED doesn’t glow Green. |
|
| Diagnostics | |
| What You See | What To Try |
| No power to Portal |
|
| Elevator Portal Doors won’t open/ close |
|
| Grinding noise |
|
| Camera(s) don’t work. |
|
| Pet Collar Sensor doesn’t work |
|
| Pet Collar Sensor Lost | Remove the Collar Sensor from the myQ® Pet Portal app promptly, and order a new Collar Sensor. |
Repair Parts
| Description | Part Number |
| Power kit | |
| Kolbe kit | |
| Plug-in Adapter (24VDC 2A Wall Adapter) | |
| Center seal | |
| Motor | |
| Logic board | |
| Belt | |
| Camera |
Notices
FCC Information and Notices
(may need to add in warranty and language from Andrew Nelson and Jenny R.)
| NOTICE: This device complies with part 15 of the FCC rules and Innovation, Science and Economic Development Canada license-exempt RSSs. Operation is subject to the following two conditions: (1) this device may not cause harmful interference, and (2) this device must accept any interference received, including interference that may cause undesired operation. Any changes or modifi cations not expressly approved by the party responsible for compliance could void the user’s authority to operate the equipment. This device must be installed to ensure a minimum 20 cm (8 in.) distance is maintained between users/bystanders and device. This device has been tested and found to comply with the limits for a Class B digital device, pursuant to part 15 of the FCC rules and Industry Canada ICES standard. These limits are designed to provide reasonable protection against harmful interference in a residential installation. This equipment generates, uses and can radiate radio frequency energy and, if not installed and used in accordance with the instructions, may cause harmful interference to radio communications. However, there is no guarantee that interference will not occur in a particular installation. If this equipment does cause harmful interference to radio or television reception, which can be determined by turning the equipment off and on, the user is encouraged to try to correct the interference by one or more of the following measures:
|
Need Help?
For door, installation and service information call:
844-myQ-PETS (844-697-7387)
Email: [email protected]
Go to: https://www.myqpetportal.com/
Before calling, please have the job order number of your installation.
© 2021, The Chamberlain Group, Inc.
All Rights Reserved
Wi-Fi® is a registered trademark of Wi-Fi Alliance.

























