CHIEF CSPBPTA In-Wall Box Back Plane Accessory Instruction Manual
DISCLAIMER
Legrand | AV and its affiliated corporations and subsidiaries (collectively “Legrand | AV”), intend to make this manual accurate and complete. However, Legrand | AV makes no claim that the information contained herein covers all details, conditions or variations, nor does it provide for every possible contingency in connection with the installation or use of this product. The information contained in this document is subject to change without notice or obligation of any kind. Legrand | AV makes no representation of warranty, expressed or implied, regarding the information contained herein. Legrand | AV assumes no responsibility for accuracy, completeness or sufficiency of the information contained in this document. Chief® is a registered trademark of Legrand AV Inc.
DEFINITIONS
- MOUNTING SYSTEM:
A MOUNTING SYSTEM is the primary Chief product to which an accessory and/or component is attached. - ACCESSORY:
AN ACCESSORY is the secondary Chief product which is attached to a primary Chief product, and may have a component attached or setting on it. - COMPONENT:
A COMPONENT is an audiovisual item designed to be attached or resting on an accessory or mounting system such as a video camera, CPU, screen, display, projector, etc.
WARNING:
A WARNING alerts you to the possibility of serious injury or death if you do not follow the instructions.
CAUTION:
A CAUTION alerts you to the possibility of damage or destruction of equipment if you do not follow the corresponding instructions.
IMPORTANT SAFETY INSTRUCTIONS
WARNING:
Failure to read, thoroughly understand, and follow all instructions can result in serious personal injury, damage to equipment, or voiding of factory warranty! It is the installer’s responsibility to make sure all accessories are properly assembled and installed using the instructions provided.
WARNING:
Failure to provide adequate structural strength for this accessory can result in serious personal injury or damage to equipment! It is the installer’s responsibility to make sure the structure to which this accessory is attached can support five times the combined weight of all equipment.
Reinforce the structure as required before installing the accessory.
WARNING:
Exceeding the weight capacity can result in serious personal injury or damage to equipment! It is the installer’s responsibility to make sure the combined weight of all components attached to this accessory does not exceed 20 lbs (9.07 kg).
WARNING:
Use this accessory only for its intended use as described in these instructions.
Do not use attachments not recommended by the manufacturer.
WARNING:
Never operate this accessory if it is damaged.
Return the accessory to a service center for examination and repair.
WARNING:
Do not use this accessory outdoors.
WARNING:
RISK OF INJURY TO PERSONS! Do not use this accessory to support video equipment such as televisions or computer monitors.
–SAVE THESE INSTRUCTIONS–
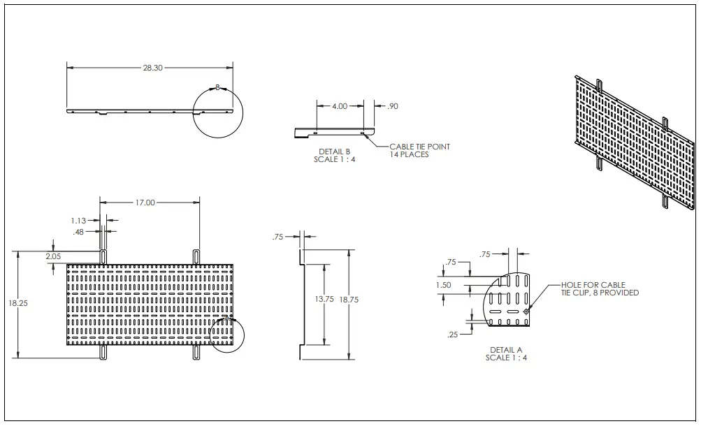
DIMENSIONS

LEGEND
| Tighten Fastener | ![]() |
| Loosen Fastener | ![]() |
| Phillips Screwdriver | ![]() |
| Pencil Mark | ![]() |
| Drill Hole | ![]() |
| Security Wrench | ![]() |
TOOLS REQUIRED FOR INSTALLATION

PARTS

Assembly And Installation
- Mount TA500/501 enclosure box to wall following TA500/ 501 installation instructions.
- Install four attachment brackets to inside of TA500/501 following TA500/501 installation instructions.
- Attach accessory plate (A) to top two attachment brackets while also attaching top plate of Thin stall mount to two
attachment brackets following TA500/501 installation instructions. (See Figure 1)
Figure 1
- Slide Thin stall mount onto top plate as described in Thin stall mount installation instructions.
- Attach Thin stall mount and accessory plate (A) to two lower attachment brackets following TA500/501 installation instructions. (See Figure 2)
Figure 2
Component Installation
WARNING:
Exceeding the weight capacity can result in serious personal injury or damage to equipment! It is the installer’s responsibility to make sure the combined weight of all components attached to this accessory does not exceed 20 lbs (9.07 kg).
- Install components to accessory plate (A) as desired using cable clips (B) and cable ties (C) for each component.
Customer Support
6436 City West Parkway, Eden Prairie, MN 55344
Phone: 800.582.6480 / 952.225.6000
Fax: 877.894.6918 / 952.894.6918
8800-003121 Rev01
2019 Legrand | AV
www.legrandav.com
05/19


























